经典楼盘 | 泰禾【杭州院子】
扫描到手机,新闻随时看
扫一扫,用手机看文章
更加方便分享给朋友


泰禾杭州院子是继合肥院子后,我今年看过的第二个中国院子,深深的为它的高品质和高精致所震撼。

泰禾以造院出名,中国院子更是闻名遐迩,那么杭州版的院子究竟什么样?今天让我们一起走进杭州院子,感受它的精彩魅力。

泰禾杭州院子承袭千年国府礼制,以北京紫禁城和恭王府、福州三坊七巷、杭州南宋御街等为参照,打造出“五街八坊十巷”的院落格局,这在杭州市场上可谓独具一格,既彰显出居住者的身份与地位,又与西溪矜贵的气质相匹配。 除此之外,泰禾杭州院子因地制宜,融入江南韵味,秉持“理水、叠石、园路、造景、植栽”的匠心,呼应了西溪的水韵之美,打造出有天有地的院落生活。

中国式的居住文化,主要体现在三个方面:建筑观、园林观、邻里观、用简单几个词表达,即:坊巷、院落、围合、自然、礼序等。院子系要占领这些词语作为品牌基因,即我们的定位语一语中的:“新中式院落别墅”。

杭州院子室外延续街,坊,巷传统空间秩序格局。
总体布局手法:十巷、八坊、五街
十巷:以西湖十景为命名方向,保留意境不过于常规化。
八坊:杭州之美离不开丰富的植物花卉,庭院植物花卉与景观植物相结合,映衬四季的八种花卉。
五街:从历代名家描绘杭州诗句中摄取。(闻潮街道、望湖街、潋雨街、花漾街、端云街)

传统礼制,皇家气度。门被视为气场的出口,象征门风脸面,从皇宫王府到富贵大家,“门”在宅邸建筑的过程中,都被摆在首要位置。杭州院子主入口大门斥巨资请名匠,精雕细琢。将中国传统门文化中象征较高阶层的元素纳入其中,气度非凡。

△泰禾·杭州院子大门效果图

△泰禾·杭州院子街坊大门效果图

△泰禾·杭州院子巷子大门

△泰禾·杭州院子门头

△泰禾·杭州院子门头

宅门能给人关于主人身份、地位的直观感受,杭州院 譬如,门头由黑色火山岩或花岗岩切块拼接而成,再用汉白玉装饰点缀;大门用真铜包裹门扇,并在包边中镶嵌花草、祥云等门饰;门钹用方正硬朗的雕花把手,既有大气的视觉感又符合现代人使用习惯。 还有,以恭王府为蓝本的汉白玉抱鼓石,定制化的牌匾、铜制方灯等,都可见泰禾“国宅”的工艺痕迹。

“中式合院+联排+沿河大宅”是杭州院子最终呈现的产品形态:一个100%纯低密度的别墅社区。

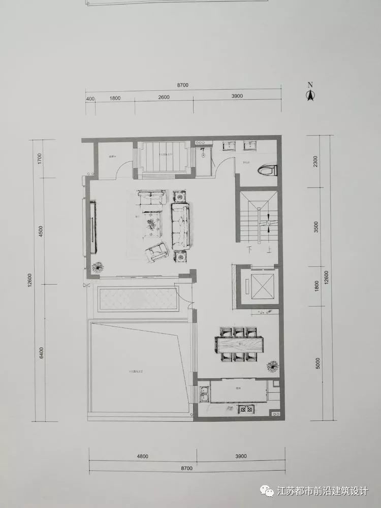
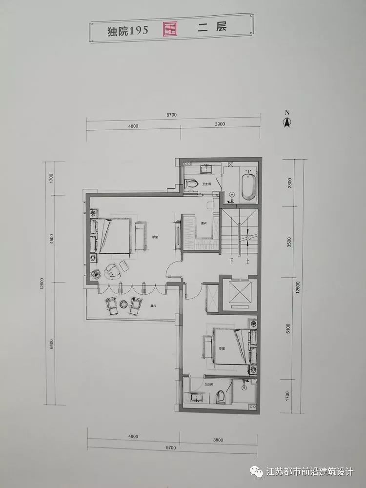
155方和195方的合院是杭州院子的主力户型。
虽然别墅物业本身的得房率就已出奇的高,但杭州院子的实际面积还要多得多。
比如,建筑面积约155方的合院,实际得到的面积要多出近一倍;同理,195方的合院也是这样。
这要归结于泰禾多年的“造院”功底,正是在低密别墅设计上的深厚积累,才营造出了杭州院子更多可想象的空间。

杭州院子的合院属于泰禾创新的别墅形态,有很多优越性。如独特设计的东西入户,两户人家分别从东侧和西侧入户,东西两户同为“边套”概念等。独门独院的设计让房主私密性得到保障,俨然“独栋”的居住感。

△泰禾·杭州院子院落效果图

△泰禾·杭州院子院落效果图

△泰禾·杭州院子院落效果图

△泰禾·杭州院子院落效果图

△泰禾·杭州院子院子实景

△泰禾·杭州院子院子实景

△泰禾·杭州院子建筑细部

△泰禾·杭州院子建筑细部

△泰禾·杭州院子建筑细部

△泰禾·杭州院子建筑细部

△泰禾·杭州院子建筑细部

△泰禾·杭州院子建筑细部

△泰禾·杭州院子建筑细部

△泰禾·杭州院子建筑细部

△泰禾·杭州院子建筑细部

△泰禾·杭州院子建筑细部

△泰禾·杭州院子建筑细部

△600平米豪华别墅样板房室内实景

△600平米豪华别墅样板房室内实景

△600平米豪华别墅样板房室内实景

△600平米豪华别墅样板房室内实景

△600平米豪华别墅样板房室内实景

△600平米豪华别墅样板房室内实景

△600平米豪华别墅样板房室内实景

△600平米豪华别墅样板房室内实景

△600平米豪华别墅样板房室内实景

△600平米豪华别墅样板房室内实景

△600平米豪华别墅样板房室内实景

△195平米合院户型图

△195平米合院户型图

△195平米合院户型图
● ● ●
欢 迎 转 发
给您推荐一个非常好的微信公众号…
↓↓↓
声明:本文由入驻焦点开放平台的作者撰写,除焦点官方账号外,观点仅代表作者本人,不代表焦点立场。


