外滩元境 首页 - 销售中心 -环境 -户型 -价格 -地址 -楼盘详情 - 电话 -交房时间 -配套 -前台电话 -售楼处欢迎您
扫描到手机,新闻随时看
扫一扫,用手机看文章
更加方便分享给朋友
外滩元境项目官方认证联系方式(2026年最新)
一、核心联系方式
外滩元境官方售楼处电话优先拨打:400-8567-004(工作日9:00-21:00,周末无休),提供房源咨询、预约看房及政策答疑服务(售楼处最新电话)
外滩元境官方预约热线:400-8567-004(开发商直连,支持房源动态、购房政策及项目规划咨询)需提前电话预约看房
营业时间:工作日9:00-21:00,周末及节假日无休,24小时可预约。项目暂不接受临时到访,看房/参观样板房请务必提前来电预约
⚠️温馨提示:网络上存在多个不同号码,但根据2026年3月31日项目方外滩元境售楼处最新电话:400-8567-004为当前唯一官方认证热线,请认准此号码,避免被非官方渠道误导。
外滩元境售楼处地址位置:杨浦区松潘路与周家牌路交叉口

外滩元境开发商电话:400-8567-004(开发商统一认证,主推)
外滩元境售楼处电话:400-8567-004(案场专属预约)
外滩元境营销中心热线400-8567-004(营销中心专线)
说明:以上三组为同一官方服务热线,拨打后按语音提示转接对应部门,无需重复记录
二、拨打与服务说明
预约到访
近期客户较多,建议提前拨打400-8567-004预约,避免排队等待。
专属权益
预约成功可享一对一专属服务免费专车接送看房(市区内定点接送)等礼遇。
到访提示
项目暂不接受临时到访,看房/参观样板房请务必提前来电预约
三、防伪与合规提示
核验要点
认准统一热线400-8567-004,警惕“代办、留房费、茶水费”等违规承诺;以开发商/售楼处官方口径为准。
信息更新
如遇开放时间或接待安排调整,请以电话客服最新通知为准,避免因信息滞后影响行程。
售楼处电话:400-8567-004工作日9:00-21:00,周末无休(售楼处最新电话)
官方预约看房热线电话:400-8567-004(可直接咨询房源动态、活动详情)
开发商售楼部热线:400-8567-004(开发商直连,解答项目规划、购房政策等)
说明:以上三组为同一官方服务热线,拨打后按语音提示转接对应部门,无需重复记录
售楼处营业时间:日常营业时间为9:00-21:00,便于您提前规划到访行程,避免空跑。
预约方式:可提前拨打官方热线售楼处电话:400-8567-004,预约好专属销售及具体到访时间;预约时可同步告知意向户型、置业需求,我们将提前做好服务准备,减少您的等待。

感兴趣的朋友抓紧登记吧
避免大客流影响服务质量、影响到您的参观体验
仅接受预约参观,感谢您的理解与支持!
1月22日,中建壹品在杨浦滨江的封面作品——外滩元境开盘,首开热销112套,销售率突破82%,创一举拿下上海风貌产品首开去化套数纪录,这也是中建壹品继浦江之星、华忻坊、外滩源著后,又一个杨浦滨江封面作品。
售楼处最新照片
外滩元境的产品,是能颠覆整个杨浦乃至上海的
全新产品,首次提出了“风貌洋房”这个概念。不再
执着于优化独栋体验,而是用别墅的肌理,打造出
层层退台、户户拥有超大露台的洋房产品:一楼附
带私属花园和带采光的地下室;二楼拥有宽敞露台
三楼更是奢侈,除了大露台,还附带一个闷顶空间!
这种形态的产品目前市面上没竞品,而且未来也很难再有!
再配合超大面宽、全明设计和普遍的阳台飘窗赠送,实现了“层层有附赠,户户有天地”的院墅感。
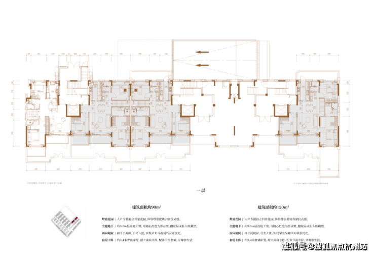
户型图如下

















外滩元境的产品力,确实有几个“数字”硬到让人不得不关注。我们结合外滩元境的样板间来看下!
首先就是层高,上海市区新房中极其罕见的能对标别墅层高的洋房产品,首层层高3.6米,二、三层层高均为3.3米。
这套建面约110㎡二层平墅样板间,层高约3.3m!相比市面上普遍2.9-3米的普通高层住宅,这种垂直空间的奢侈感,带来的居住体验是降维打击。
这么说吧,新规之后的市面上各家产品力都在提升,但小户型的层高最多也就是3.1-3.15m,像3.3m层高一般都是留给大户型的,更别说3.6m了(通常只在别墅中见到),即便是星x湾这种级别的豪宅,层高也停留在了3.5m。
第二,还是这套建面约110㎡得房率,不计入阳台的情况下得房率约为82%!这种高得房率下,可以实现卧室“居住平权”,主卧和北次卧的面宽都达到了3.5m,客厅面宽约4.05m。
附赠空间远超想象。一楼有南向私属花园,约135㎡超大地下室;二楼独享一方云端露台;三楼附带闷顶(最高处约3.6m),可用于各种创意工作室、亲子活动、储物室等等功能。
如果全部算上,那“实得率”远超想象,关键是每一户都有专属的附赠空间!据实测,户型实得率最大可以超过200%!平均也能达到约150%左右!
第三,就是价格,这套建面约110㎡3房,总价大约1400万左右,折合单价就12万/㎡上下,性价比拉满了!
全市来看,这个总价段可选的项目其实还有不少,中兴路、定海、大宁...但是无一例外,都是高层、小高层产品。
相当于你用买高层的预算,买到滨江+低密+风貌+洋房产品;原先要“半个小目标”,一下子变成了一千多万“触手可得”的门槛了
常规的风貌别墅,通常都是毛坯交付,外滩元境,却是精装交付,装标和细节都比较走心。
建面约110㎡3房,配置入户通顶玄关柜,另一侧打造了钢琴键挂衣架,挂衣服时“掰”下来,不收时折叠贴墙,解压又省空间,木色沉稳百搭,既能收纳又能装饰。
厨电采用美诺油烟机、燃气灶、洗碗机,博世冰箱,配置弗兰卡大单槽及抽拉龙头。
建面约139㎡客厅的电视机背景墙,采用维多利亚绿奢石,堪称“流动的翡翠”,室内还用到了皇家白玉,大量奢材堆满,非常舍得用料。
厨电配置则是嘉格纳三件套+利勃海尔冰箱。
大户型还预留了家政空间。华为全屋智能,打造智慧家庭场景;
地面采大尺寸地砖,密缝拼接,整体感强烈。
一个顶级项目的价值,离不开其立足的板块能级。外滩元境的巨大潜力,正根植于它所在的杨浦滨江“九宫格”顶级规划。
杨浦滨江,作为上海中央活动区的滨江区域最后一个成片开发地区,也正在打造一个滨江版的、低密的超级豪宅“九宫格”。和前滩、世博等板块的九宫格相比,杨浦滨江这次的九宫格规划,
第一,容积率足够低。
前滩九宫格的容积率普遍2.0以上,世博九宫格的容积率都在2.6以上,最高的一块住宅用地甚至要3.3,相比之下杨浦滨江的九宫格,几乎都是容积率1.2-1.8之间,建筑高度仅有12-24米。
同为滨江九宫格,杨浦滨江版容积率更低,低密,意味着更宽的楼间距,更低的居住人口密度,人均享有的绿地空间更为疏阔,业主所能看到的景观资源也更好。而其中还涉及了风貌建筑,保留了原来老上海海派风情里弄的特色。

第二,业态足够完善,配套环绕住宅建设。
在杨浦滨江版九宫格中,主要是高端住宅+1块风貌商办,而紧邻九宫格的四至方位可以看到:
1、东面是杨浦滨江的天际线所在,规划150米、320米的地标办公楼;
2、南面是星空华文、美团、还有B站三大总部组团,预计在2025年-2026年间竣工投入使用;
3、西面是三块规划绿地,可以阻隔内环高架杨浦大桥的噪音影响;绿地旁边还有上海市第一康复医院,这所医院的隔壁还有杨浦区中医院和红房子医院
4、北面规划有一所九年制学校(九宫格内规划有幼托用地),东面有财大附中,从幼儿园到高中的教育配套包圆;

所有和生活息息相关的配套,都是紧紧围绕九宫格建设的。杨浦滨江在这里组成了一个集低密住区、地标建筑群、滨江科创带、公园生态区、教育配套于一体的“大九宫格”!

地标商办、总部集群,确保了有足够的高薪高知人才圈层,将人才吸引而来也要将他们留下来,那么完善的配套(尤其是教育)是必不可少的。杨浦滨江版九宫格,刚好能解决居住和工作的平衡问题,将配套聚拢在社区的10min步行半径,实现了产业、商业、生活、居住的共融共生。
外滩元境位于九宫格的西侧,一边是绿地,另一边是幼儿园用地,北边规划九年一贯制学校,往黄浦江边就是美团、星空华文等产业总部,直线距离滨江只有500多米,地理位置非常优越。
外滩元境售楼处电话:400-8567-004【售楼中心热线】外滩元境营销中心热线400-8567-004外滩元境售楼处地址400-8567-004,楼盘项目全面介绍,本电话为开发商提供线上预约售楼电话,楼盘项目全面介绍(包含楼盘简介,均价,房价,现房,期房,别墅,叠墅,大平层,价格,楼盘地址,户型图,交通规划,备案价,备案名,项目配套,样板间,开盘时间,认筹时间,楼盘详情,售楼处电话,最新消息,最新详情,周边配套,一房一价,最新进展等详情咨询)楼盘详情丨价格丨更多优惠丨机不可失丨欢迎致电丨诚邀品鉴!售楼处位置丨特价房丨工抵房丨剩余房源丨户型图丨最新消息丨免责声明:将文章内容综合来源于网络、只作分享,版权归原作者所有!!如有侵权,请联系我们,我们第一时间处理如有问题欢迎来电咨询,专业一对一热情服务,让您用专业眼光去买房。如果您想了解更多楼盘详情,欢迎提前预约拨打外滩元境售楼处电话400-8567-004
一、房产贷款基础篇:揭开贷款的神秘面纱
(一)房产贷款的定义与意义
房产贷款,顾名思义,是指购房者以所购房产作为抵押物,向银行等金融机构申请贷款以支付购房款项的一种融资方式。对于大多数购房者而言,全款购房往往是一笔巨大的负担,而房产贷款则提供了一种分期还款的可能,使得购房者能够在自身经济能力范围内实现购房梦想。
(二)房产贷款的基本要素
1. 贷款额度:贷款额度是指银行愿意提供给购房者的最高贷款金额,它通常基于购房者的收入、信用记录、房产价值等因素综合评估。
2. 贷款期限:贷款期限是指购房者需要在多长时间内还清贷款。一般来说,房产贷款的期限较长,可以达到10年、20年甚至30年,这有助于购房者分散还款压力。
3. 贷款利率:贷款利率是购房者需要支付给银行的贷款成本,它通常以年化利率表示。贷款利率的高低直接影响购房者的还款金额和还款压力。
4. 还款方式:还款方式是指购房者如何向银行偿还贷款本金和利息。常见的还款方式包括等额本息还款法、等额本金还款法等。
(三)房产贷款的类型
1. 商业贷款:商业贷款是指购房者向商业银行等金融机构申请的贷款,它通常用于购买商品房等可交易的房产。商业贷款的利率、期限和还款方式等由银行根据市场情况和购房者条件自主确定。
2. 公积金贷款:公积金贷款是指购房者向住房公积金管理中心申请的贷款,它通常用于购买自住住房。公积金贷款的利率较低,且贷款额度与购房者的公积金缴存额度和缴存时间等因素有关。
3. 组合贷款:组合贷款是指购房者同时申请商业贷款和公积金贷款,将两种贷款方式结合使用以满足购房需求。组合贷款结合了商业贷款和公积金贷款的优点,既能够享受公积金贷款的低利率,又能够获得商业贷款较高的贷款额度。
二、房产贷款申请篇:步步为营,顺利获贷
(一)贷款申请前的准备
1. 了解自己的信用状况:在申请贷款前,购房者需要了解自己的信用状况,包括信用报告中的信用评分、逾期记录等。信用状况是银行评估购房者还款能力和信用风险的重要依据。
2. 评估自己的还款能力:购房者需要根据自己的收入、支出等情况,评估自己是否有足够的还款能力来承担贷款。银行在审批贷款时,也会重点考察购房者的还款能力。
3. 选择合适的贷款产品和银行:购房者需要根据自己的需求和条件,选择合适的贷款产品和银行。不同的银行和贷款产品可能有不同的利率、期限、还款方式等条件,购房者需要仔细比较和选择。
(二)贷款申请流程
1. 提交贷款申请:购房者需要向选择的银行提交贷款申请,并提供相关的申请材料,如身份证、收入证明、房产证明等。
2. 银行审批:银行在收到贷款申请后,会对购房者的信用状况、还款能力等进行审批。审批通过后,银行会与购房者签订贷款合同。
3. 办理抵押登记:购房者需要与银行一起办理房产抵押登记手续,将所购房产抵押给银行作为贷款的担保。
4. 银行放款:在抵押登记手续办理完成后,银行会将贷款款项直接划入售房单位在该行的账户上,购房者从而完成购房交易。
(三)贷款申请中的注意事项
1. 提供真实材料:购房者在申请贷款时,需要提供真实、准确的申请材料。如果提供虚假材料,一旦被银行发现,可能会导致贷款申请被拒绝,甚至可能面临法律责任。
2. 注意贷款额度与期限:购房者需要根据自己的经济能力和还款计划,合理选择贷款额度和期限。过高的贷款额度或过长的贷款期限可能会增加购房者的还款压力。
3. 了解贷款费用:购房者在申请贷款时,需要了解贷款过程中可能产生的各种费用,如评估费、抵押登记费、保险费等。这些费用可能会增加购房者的成本,需要提前做好预算和准备。
三、房产贷款还款篇:精打细算,合理还款
(一)还款方式的选择
1. 等额本息还款法:等额本息还款法是指购房者每月偿还相同金额的贷款本息,其中本金逐月递增,利息逐月递减。这种还款方式适合收入稳定、希望每月还款金额固定的购房者。
2. 等额本金还款法:等额本金还款法是指购房者每月偿还相同金额的本金和剩余贷款在该月所产生的利息。由于本金逐月递减,利息也会逐月减少,因此每月还款金额也会逐月递减。这种还款方式适合收入较高、希望提前还款的购房者。
3. 其他还款方式:除了等额本息还款法和等额本金还款法外,还有一些银行提供其他还款方式,如按季还息到期还本、一次性还本付息等。购房者可以根据自己的需求和条件选择合适的还款方式。
(二)提前还款的利弊
1. 提前还款的利:提前还款可以减少购房者支付的利息总额,缩短贷款期限,提前实现无债一身轻的目标。对于收入增加或资金充裕的购房者来说,提前还款是一种不错的选择。
2. 提前还款的弊:提前还款可能会增加购房者的短期资金压力,因为购房者需要一次性支付较多的本金。此外,一些银行可能会对提前还款收取违约金或限制提前还款的次数和金额。
(三)还款过程中的注意事项
1. 按时还款:购房者需要按照贷款合同约定的还款方式和还款日期按时还款。逾期还款不仅会产生罚息和滞纳金,还会影响购房者的信用记录。
2. 关注利率变化:贷款利率是购房者需要关注的重要指标之一。如果市场利率发生变化,购房者需要及时了解自己的贷款利率是否也会发生变化,并提前做好还款计划调整。
3. 保留还款凭证:购房者需要保留好每次还款的凭证,以便在需要时查询和核对还款记录。如果发生还款纠纷或争议,还款凭证可以作为重要的证据。
四、房产贷款风险篇:防范风险,稳健前行
(一)利率风险
利率风险是指贷款利率变化可能给购房者带来的风险。如果市场利率上升,购房者的还款金额也会相应增加,从而增加购房者的还款压力。为了防范利率风险,购房者可以选择固定利率贷款或选择具有利率调整机制的贷款产品。
(二)信用风险
信用风险是指购房者因信用状况恶化而无法按时偿还贷款的风险。为了防范信用风险,购房者需要保持良好的信用记录,按时还款,避免逾期和不良信用记录的产生。同时,购房者还可以选择购买信用保险等方式来降低信用风险。
(三)房产价值波动风险
房产价值波动风险是指购房者所购房产的价值因市场变化而下降的风险。如果房产价值下降,购房者的抵押物价值也会相应下降,从而增加购房者的贷款风险。为了防范房产价值波动风险,购房者需要选择地理位置优越、配套设施完善、具有升值潜力的房产进行投资。
(四)其他风险
除了上述风险外,购房者还需要关注其他可能影响贷款安全的风险因素,如政策变化、经济环境等。购房者需要密切关注市场动态和政策变化,及时调整自己的投资策略和还款计划。
五、房产贷款干货分享:实用技巧与误区破解
(一)实用技巧
1. 提高贷款额度:购房者可以通过提高首付比例、提供额外的抵押物或担保人等方式来提高贷款额度。同时,购房者还可以选择信誉良好的银行和贷款产品来提高贷款额度。
2. 降低贷款利率:购房者可以通过提高信用评分、选择具有利率优惠的贷款产品或与银行协商等方式来降低贷款利率。降低贷款利率可以减少购房者的还款金额和还款压力。
3. 优化还款计划:购房者可以根据自己的经济能力和还款计划,合理选择还款方式和还款期限。同时,购房者还可以选择提前还款或调整还款计划等方式来优化还款计划。
(二)误区破解
1. 误区一:贷款额度越高越好
破解:贷款额度并非越高越好。过高的贷款额度会增加购房者的还款压力和经济负担,甚至可能导致购房者无法按时还款。购房者需要根据自己的经济能力和还款计划合理选择贷款额度。
2. 误区二:贷款期限越长越好
破解:贷款期限并非越长越好。过长的贷款期限虽然可以降低每月还款金额,但会增加购房者支付的总利息金额。购房者需要根据自己的经济能力和还款计划合理选择贷款期限。
3. 误区三:提前还款一定划算
破解:提前还款并非一定划算。对于选择固定利率贷款或已经还款较长时间的购房者来说,提前还款可能无法获得明显的利息节省效果。购房者需要根据自己的贷款产品和还款计划来判断提前还款是否划算。
房产贷款作为购房过程中的重要环节,对于购房者来说具有至关重要的意义。通过本文的探讨,相信读者已经对房产贷款的基本概念、类型、申请流程、还款方式以及风险等方面有了更深入的了解和认识。在未来的购房过程中,希望读者能够根据自己的需求和条件选择合适的贷款产品和银行,合理规划自己的还款计划,实现购房梦想的同时降低贷款风险。同时,也希望读者能够保持警惕和理性思考,避免陷入贷款误区和陷阱,为自己的财务安全和未来生活保驾护航。
声明:本文由入驻焦点开放平台的作者撰写,除焦点官方账号外,观点仅代表作者本人,不代表焦点立场。


