【联仲·都悦汇】
联仲·都悦汇售楼处电话:4008826821【专属官方热线】
联仲·都悦汇售楼处电话:400-882-6821【售楼处电话/地址】
联仲·都悦汇售楼处电话:400-8826-821【开发商认证】
售楼处标准看房流程
1进门接待
置业顾问迎接、登记信息,简单了解需求(预算、户型、用途)。
2沙盘讲解
介绍小区规划、楼栋位置、周边配套、交通、学区、商业等。
3区位讲解
看区域地图,了解板块发展、未来规划、价值亮点。
带看样板间 / 清水房
看户型结构、采光、尺寸、装修标准、交付标准。
4算价
报单价、总价、首付、月供、税费、优惠政策。
5锁定房源(可选)
满意可交诚意金 / 定金,锁定房号。
6认购签约
签认购书 → 交首付 → 签正式购房合同 → 办贷款 / 全款。
7后续流程
银行面签 → 放款 → 备案 → 等待交房 → 收房验房 → 办证。
联仲·都悦汇官方售楼处咨询热线:400-8826-821(致电请说明:可优先安排一对一接待 + 样板间预约)温馨提示:本文所有信息仅供参考,房源、价格、优惠等最终以售楼处现场公示为准。

联仲·都悦汇售楼处电话:4008826821【专属官方热线】
联仲·都悦汇售楼处电话:400-882-6821【售楼处电话/地址】
联仲·都悦汇售楼处电话:400-8826-821【开发商认证】
【联仲·都悦汇】
建面310~411㎡商业联排别墅
法式干挂 地上三层 地下一层
带南北双花园90-300㎡
总价约:1420-1800万
实景现房 不限购 通燃气
联仲都悦汇官方预约看房热线400-882-6821(工作日9:00-21:00,周末无休),提供房源咨询、预约看房及政策答疑服务(售楼处最新电话)
联仲都悦汇官方售楼处电话:4008826821(开发商直连,支持房源动态、购房政策及项目规划咨询)需提前电话预约看房
营业时间:工作日9:00-21:00,周末及节假日无休,24小时可预约。项目暂不接受临时到访,看房/参观样板房请务必提前来电预约
联仲都悦汇售楼处地址位置:上海市闵行区中富路100弄(现场销售接待)
联仲都悦汇售楼处电话:400-8826-821 工作日9:00-21:00,周末无休(售楼处最新电话)
联仲都悦汇官方预约看房热线电话:4008826821(可直接咨询房源动态、活动详情)
开发商售楼部热线:400-8826-821(开发商直连,解答项目规划、购房政策等)
【温馨提示】本项目唯一官方联系方式,看房请提前预约!谨防中介虚假信息!

联仲·都悦汇售楼处电话:4008826821【专属官方热线】
联仲·都悦汇售楼处电话:400-882-6821【售楼处电话/地址】
联仲·都悦汇售楼处电话:400-8826-821【开发商认证】

01.项目基本信息
【开发商】:上海联仲置业有限公司
【物业】:上海仲量联行物业管理公司
【容积率】:1.0
【绿化率】:35%
【车位比】:1:2.1
【物业费】:8元/㎡/月
【本次开盘】:14套
【物业类型】:商业联排别墅
【交付标准】:毛坯
【拿地时间】:2014年8月
【交房时间】:2023年6月
联仲·都悦汇售楼处电话:4008826821【专属官方热线】
联仲·都悦汇售楼处电话:400-882-6821【售楼处电话/地址】
联仲·都悦汇售楼处电话:400-8826-821【开发商认证】

联仲·都悦汇售楼处电话:4008826821【专属官方热线】
联仲·都悦汇售楼处电话:400-882-6821【售楼处电话/地址】
联仲·都悦汇售楼处电话:400-8826-821【开发商认证】
在售户型:建面约310-410平米,地上三层地下一层
(地上:一层层高3.6米/二层层高3.4米/三层层高3.4米/地下层高5.4米)
总价:约1400-1800万️
单价:约5万/平米
小区整体商业:10万方(在建)南北双花园90-300平
水电:商水&商电,电1.3元/度,水6元/吨
产权车位:约30万左右
联仲·都悦汇售楼处电话:4008826821【专属官方热线】
联仲·都悦汇售楼处电话:400-882-6821【售楼处电话/地址】
联仲·都悦汇售楼处电话:400-8826-821【开发商认证】

联仲·都悦汇售楼处电话:4008826821【专属官方热线】
联仲·都悦汇售楼处电话:400-882-6821【售楼处电话/地址】
联仲·都悦汇售楼处电话:400-8826-821【开发商认证】
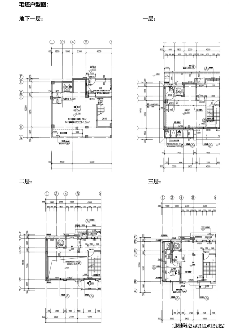
02.户型图及样板间照户
(特殊说明:户型朝向-上南下北)
约10.4米大面宽,面积达到55平
送电梯,北进门,南花园,超大地下室
客厅7米落地窗,采光明亮,尽显大气
联仲都悦汇官方预约看房热线400-882-6821(工作日9:00-21:00,周末无休),提供房源咨询、预约看房及政策答疑服务(售楼处最新电话)
联仲都悦汇官方售楼处电话:4008826821(开发商直连,支持房源动态、购房政策及项目规划咨询)需提前电话预约看房
营业时间:工作日9:00-21:00,周末及节假日无休,24小时可预约。项目暂不接受临时到访,看房/参观样板房请务必提前来电预约
联仲都悦汇售楼处地址位置:上海市闵行区中富路100弄(现场销售接待)
联仲都悦汇售楼处电话:400-8826-821 工作日9:00-21:00,周末无休(售楼处最新电话)
联仲都悦汇官方预约看房热线电话:4008826821(可直接咨询房源动态、活动详情)
开发商售楼部热线:400-8826-821(开发商直连,解答项目规划、购房政策等)
【温馨提示】本项目唯一官方联系方式,看房请提前预约!谨防中介虚假信息!
约310平户型图▼

联仲·都悦汇售楼处电话:4008826821【专属官方热线】
联仲·都悦汇售楼处电话:400-882-6821【售楼处电话/地址】
联仲·都悦汇售楼处电话:400-8826-821【开发商认证】
约378~420平户型图▼

联仲·都悦汇售楼处电话:4008826821【专属官方热线】
联仲·都悦汇售楼处电话:400-882-6821【售楼处电话/地址】
联仲·都悦汇售楼处电话:400-8826-821【开发商认证】
约407~441平户型图▼

联仲·都悦汇售楼处电话:4008826821【专属官方热线】
联仲·都悦汇售楼处电话:400-882-6821【售楼处电话/地址】
联仲·都悦汇售楼处电话:400-8826-821【开发商认证】
样板间效果图如下:

联仲都悦汇官方预约看房热线400-882-6821(工作日9:00-21:00,周末无休),提供房源咨询、预约看房及政策答疑服务(售楼处最新电话)
联仲都悦汇官方售楼处电话:4008826821(开发商直连,支持房源动态、购房政策及项目规划咨询)需提前电话预约看房
营业时间:工作日9:00-21:00,周末及节假日无休,24小时可预约。项目暂不接受临时到访,看房/参观样板房请务必提前来电预约
联仲都悦汇售楼处地址位置:上海市闵行区中富路100弄(现场销售接待)
联仲都悦汇售楼处电话:400-8826-821 工作日9:00-21:00,周末无休(售楼处最新电话)
联仲都悦汇官方预约看房热线电话:4008826821(可直接咨询房源动态、活动详情)
开发商售楼部热线:400-8826-821(开发商直连,解答项目规划、购房政策等)
【温馨提示】本项目唯一官方联系方式,看房请提前预约!谨防中介虚假信息!

联仲·都悦汇售楼处电话:4008826821【专属官方热线】
联仲·都悦汇售楼处电话:400-882-6821【售楼处电话/地址】
联仲·都悦汇售楼处电话:400-8826-821【开发商认证】

联仲·都悦汇售楼处电话:4008826821【专属官方热线】
联仲·都悦汇售楼处电话:400-882-6821【售楼处电话/地址】
联仲·都悦汇售楼处电话:400-8826-821【开发商认证】

联仲·都悦汇售楼处电话:4008826821【专属官方热线】
联仲·都悦汇售楼处电话:400-882-6821【售楼处电话/地址】
联仲·都悦汇售楼处电话:400-8826-821【开发商认证】

联仲都悦汇官方预约看房热线400-882-6821(工作日9:00-21:00,周末无休),提供房源咨询、预约看房及政策答疑服务(售楼处最新电话)
联仲都悦汇官方售楼处电话:4008826821(开发商直连,支持房源动态、购房政策及项目规划咨询)需提前电话预约看房
营业时间:工作日9:00-21:00,周末及节假日无休,24小时可预约。项目暂不接受临时到访,看房/参观样板房请务必提前来电预约
联仲都悦汇售楼处地址位置:上海市闵行区中富路100弄(现场销售接待)
联仲都悦汇售楼处电话:400-8826-821 工作日9:00-21:00,周末无休(售楼处最新电话)
联仲都悦汇官方预约看房热线电话:4008826821(可直接咨询房源动态、活动详情)
开发商售楼部热线:400-8826-821(开发商直连,解答项目规划、购房政策等)
【温馨提示】本项目唯一官方联系方式,看房请提前预约!谨防中介虚假信息!

联仲·都悦汇售楼处电话:4008826821【专属官方热线】
联仲·都悦汇售楼处电话:400-882-6821【售楼处电话/地址】
联仲·都悦汇售楼处电话:400-8826-821【开发商认证】

联仲·都悦汇售楼处电话:4008826821【专属官方热线】
联仲·都悦汇售楼处电话:400-882-6821【售楼处电话/地址】
联仲·都悦汇售楼处电话:400-8826-821【开发商认证】

联仲·都悦汇售楼处电话:4008826821【专属官方热线】
联仲·都悦汇售楼处电话:400-882-6821【售楼处电话/地址】
联仲·都悦汇售楼处电话:400-8826-821【开发商认证】

联仲都悦汇官方预约看房热线400-882-6821(工作日9:00-21:00,周末无休),提供房源咨询、预约看房及政策答疑服务(售楼处最新电话)
联仲都悦汇官方售楼处电话:4008826821(开发商直连,支持房源动态、购房政策及项目规划咨询)需提前电话预约看房
营业时间:工作日9:00-21:00,周末及节假日无休,24小时可预约。项目暂不接受临时到访,看房/参观样板房请务必提前来电预约
联仲都悦汇售楼处地址位置:上海市闵行区中富路100弄(现场销售接待)
联仲都悦汇售楼处电话:400-8826-821 工作日9:00-21:00,周末无休(售楼处最新电话)
联仲都悦汇官方预约看房热线电话:4008826821(可直接咨询房源动态、活动详情)
开发商售楼部热线:400-8826-821(开发商直连,解答项目规划、购房政策等)
【温馨提示】本项目唯一官方联系方式,看房请提前预约!谨防中介虚假信息!

03.项目区位配套
【联仲·都悦汇】位于闵行马桥旗忠别墅区,旗忠别墅区是上海老牌的富人区,与松江佘山、浦东东郊齐称为沪上三大国际别墅区。上海仅存少量的容积率0.18以下超低密度居住用地中,大多数在马桥旗忠别墅区。

板块以低容积率、生态自然环境和高端国际品牌配置,2010年被列为上海第二批大型居住社区之一。总建面约33万方城市综合体联仲都悦汇位于旗忠板块正核心,紧临网球中心,超10万方市政绿化所环绕。

【联仲都悦汇】同样是低密度别墅区里的一员,背靠绿城玫瑰园,容积率低至1.0。项目贯穿了3条自然水系,分为ABCD四个地块,其中ABC为商住办综合地块,自带商业办公。

交通配套方面:项目距离嘉闵高架元江路出口3公里,毗邻G15、S32等快速主动脉,大虹桥,抵达浦东机场,快捷畅达全城。
联仲都悦汇官方预约看房热线400-882-6821(工作日9:00-21:00,周末无休),提供房源咨询、预约看房及政策答疑服务(售楼处最新电话)
联仲都悦汇官方售楼处电话:4008826821(开发商直连,支持房源动态、购房政策及项目规划咨询)需提前电话预约看房
营业时间:工作日9:00-21:00,周末及节假日无休,24小时可预约。项目暂不接受临时到访,看房/参观样板房请务必提前来电预约
联仲都悦汇售楼处地址位置:上海市闵行区中富路100弄(现场销售接待)
联仲都悦汇售楼处电话:400-8826-821 工作日9:00-21:00,周末无休(售楼处最新电话)
联仲都悦汇官方预约看房热线电话:4008826821(可直接咨询房源动态、活动详情)
开发商售楼部热线:400-8826-821(开发商直连,解答项目规划、购房政策等)
【温馨提示】本项目唯一官方联系方式,看房请提前预约!谨防中介虚假信息!

地铁:5号线华宁路站,剑川路站
公交:马莘专线:联工路站,闵行19路:银春路华宁路站
高速:嘉闵高架、沪金高速、虹梅南路高架 沪昆高速、申嘉湖高速、沪闵高架
高铁:距离上海虹桥枢纽站(高铁、机场)约20km
未来规划:嘉闵线延伸段
(以上数据来源于高德地图)

商业配套方面:项目自带10万方商业,为旗忠唯一的综合性商业配套,其多元化的业态结构,结合旗忠独有的资源,必将带来旗忠全新生活方式。


联仲都悦汇官方预约看房热线400-882-6821(工作日9:00-21:00,周末无休),提供房源咨询、预约看房及政策答疑服务(售楼处最新电话)
联仲都悦汇官方售楼处电话:4008826821(开发商直连,支持房源动态、购房政策及项目规划咨询)需提前电话预约看房
营业时间:工作日9:00-21:00,周末及节假日无休,24小时可预约。项目暂不接受临时到访,看房/参观样板房请务必提前来电预约
联仲都悦汇售楼处地址位置:上海市闵行区中富路100弄(现场销售接待)
联仲都悦汇售楼处电话:400-8826-821 工作日9:00-21:00,周末无休(售楼处最新电话)
联仲都悦汇官方预约看房热线电话:4008826821(可直接咨询房源动态、活动详情)
开发商售楼部热线:400-8826-821(开发商直连,解答项目规划、购房政策等)
【温馨提示】本项目唯一官方联系方式,看房请提前预约!谨防中介虚假信息!
一、限购政策(核心变化)
1. 沪籍家庭 / 单身
家庭:全市限购2 套;成年子女婚后购房,按新家庭认定。
单身:全市限购1 套。
2. 非沪籍家庭 / 单身(2026 新政)
社保 / 个税满 1 年:外环内限购1 套;外环外不限套数。
社保 / 个税满 3 年:外环内可增购 1 套(共 2 套),等同沪籍家庭待遇。
持上海居住证满 5 年:全市限购1 套,无需社保 / 个税。
3. 特殊群体
境外人士 / 港澳台:按原政策,提供相关证明可购 1 套。
人才 / 重点企业:按各区人才政策执行,部分可突破限购。
二、限贷政策(商贷 + 公积金)
1. 商业贷款(认房又认贷)
首套:首付≥30%,利率 LPR-20BP 左右。
二套:首付≥50%(普通住宅)/≥70%(非普通住宅),利率 LPR+60BP 左右。
认定标准:上海有房 / 全国有房贷记录,均算二套。
2. 公积金贷款(新政,2026.2.26 起)
首套家庭:最高240 万(原 160 万)。
多子女家庭:额度上浮20%(首套 288 万)。
绿色建筑(二星及以上):额度上浮15%。
叠加上限:首套 + 多子女 + 绿建,最高324 万。
套数认定:认房不认贷;上海无房 / 仅有 1 套且公积金贷款已结清,可再贷。
个人 / 家庭:个人最高120 万,家庭240 万。
三、税费政策
1. 契税(买方)
首套:≤90㎡ 1%;>90㎡ 1.5%。
二套及以上:3%。
2. 增值税及附加(卖方,满 2 年免征)
不满 2 年:全额5.3%。
满 2 年:普通住宅免征;非普通住宅差额5.3%。
3. 个人所得税(卖方)
满 5 年且唯一:免征。
其他:全额1%或差额20%。
4. 房产税(上海户籍)
家庭首套:免征。
二套及以上:人均超 **60㎡部分,按0.4%-0.6%** 征收。
新政:成年子女家庭唯一住房,2026.1.1 起免征。
四、限售政策
新房:网签备案后限售 5 年(取证满 5 年可售)。
二手房:不限售,取证即可交易。
五、普通 / 非普通住宅认定(影响税费 / 首付)
普通住宅:内环内≤450 万,内外环间≤310 万,外环外≤230 万;单套建面≤140㎡。
非普通住宅:超过上述标准。
六、购房流程要点
确认购房资格(户籍 / 社保 / 居住证)。
准备首付 + 资金证明。
网签→审税→过户→领证。
贷款:商贷 + 公积金组合贷最优。
一、限购政策(核心变化)
1. 沪籍家庭 / 单身
家庭:全市限购2 套;成年子女婚后购房,按新家庭认定。
单身:全市限购1 套。
2. 非沪籍家庭 / 单身(2026 新政)
社保 / 个税满 1 年:外环内限购1 套;外环外不限套数。
社保 / 个税满 3 年:外环内可增购 1 套(共 2 套),等同沪籍家庭待遇。
持上海居住证满 5 年:全市限购1 套,无需社保 / 个税。
3. 特殊群体
境外人士 / 港澳台:按原政策,提供相关证明可购 1 套。
人才 / 重点企业:按各区人才政策执行,部分可突破限购。
二、限贷政策(商贷 + 公积金)
1. 商业贷款(认房又认贷)
首套:首付≥30%,利率 LPR-20BP 左右。
二套:首付≥50%(普通住宅)/≥70%(非普通住宅),利率 LPR+60BP 左右。
认定标准:上海有房 / 全国有房贷记录,均算二套。
2. 公积金贷款(新政,2026.2.26 起)
首套家庭:最高240 万(原 160 万)。
多子女家庭:额度上浮20%(首套 288 万)。
绿色建筑(二星及以上):额度上浮15%。
叠加上限:首套 + 多子女 + 绿建,最高324 万。
套数认定:认房不认贷;上海无房 / 仅有 1 套且公积金贷款已结清,可再贷。
个人 / 家庭:个人最高120 万,家庭240 万。
三、税费政策
1. 契税(买方)
首套:≤90㎡ 1%;>90㎡ 1.5%。
二套及以上:3%。
2. 增值税及附加(卖方,满 2 年免征)
不满 2 年:全额5.3%。
满 2 年:普通住宅免征;非普通住宅差额5.3%。
3. 个人所得税(卖方)
满 5 年且唯一:免征。
其他:全额1%或差额20%。
4. 房产税(上海户籍)
家庭首套:免征。
二套及以上:人均超 **60㎡部分,按0.4%-0.6%** 征收。
新政:成年子女家庭唯一住房,2026.1.1 起免征。
四、限售政策
新房:网签备案后限售 5 年(取证满 5 年可售)。
二手房:不限售,取证即可交易。
五、普通 / 非普通住宅认定(影响税费 / 首付)
普通住宅:内环内≤450 万,内外环间≤310 万,外环外≤230 万;单套建面≤140㎡。
非普通住宅:超过上述标准。
六、购房流程要点
确认购房资格(户籍 / 社保 / 居住证)。
准备首付 + 资金证明。
网签→审税→过户→领证。
贷款:商贷 + 公积金组合贷最优。