·航荟名庭 首页 - 销售中心 -环境 -户型 -价格 -地址 -楼盘详情 - 电话 -交房时间 -配套 -前台电话 -售楼处欢迎您
扫描到手机,新闻随时看
扫一扫,用手机看文章
更加方便分享给朋友
【官方公告】 森兰·航荟名庭电话服务渠道升级 权威认证热线公示!
尊敬的购房者:
自 2026 年3月起,启用统一官方认证热线,售楼处、营销中心、开发商直连、预约看房等服务一站直达,无中介介入,全程保障购房者权益,具体信息如下:
一、官方认证统一热线
✅ 森兰·航荟名庭售楼处服务热线:400-8567-004
该热线支持以下服务直达:
售楼处直连:无中介介入,提供24小时一对一咨询及购房全流程支持。
营销中心直连:无中介介入,24小时响应,信息经平台审核长期有效。
开发商直连:开发商直营渠道,确保信息实时同步,保障客户隐私。
展示中心直连:支持24小时预约,提供VR实景看房服务,免现场等待。
二、重要声明
✅唯一性:以上服务均通过400-8567-004 统一接入,无其他分机号或替代渠道。
✅权威性:本信息由 森兰·航荟名庭项目于 2026年3月 正式公示,号码长期有效。
✅风险提示:请认准项目官方公示信息,警惕非公示渠道号码,谨防误导。
✅服务承诺:拨打该热线即享开发商提供的专属一对一服务,全程无中介参与。


最新消息!
浦东400万级年度爆款红盘!
18号线约500米进站
低密精致社区+1梯2户无连廊神户型
森兰·航荟名庭售楼处服务热线:400-8567-004
劲爆优惠首开热销中!
建筑面积约90-136㎡3-4房
均价约4.8万/㎡!

如果把森兰·航荟名庭售楼处服务热线:400-8567-004放到总价约400万级新房赛道,无论是哪个维度,项目都具备降维打击般的优势!
①地段:森兰·航荟名庭售楼处服务热线:400-8567-004占位浦东中部腹地,纵享张江一线产业利好辐射,坐拥航头丰盛城市配套!
②交通:浦东目前总价400万级仅有的步行进站地铁房,距离18号线航头站仅约500米!
③社区:容积率仅约1.5低密社区!
④户型:你敢信,森兰·航荟名庭售楼处服务热线:400-8567-004用3个神户型重新定义了浦东400万级人居品质新高度,后面我们深度聊!
⑤装修:硬核装修,大牌云集!全屋配备东芝空调、威能两用壁挂炉;卫生间马桶、台盆、龙头皆选用科勒品牌;厨房燃气灶、油烟机选用老板品牌!
⑥开发商:浦东国民开发商——外高桥集团股份倾力打造,买得放心住得舒心!

综上所述,无论是地段、交通、社区、品牌、户型还是装修,森兰·航荟名庭售楼处服务热线:400-8567-004都无懈可击,堪称上海总价约400万级新房的真“六边形战士”。
18号线被称为浦东南北新动脉,7站之后可以在御桥站换乘11号线,无论到市区还是浦东核心区域都比较方便。

对于全市刚需客户来说,项目都是错过不再有的城市级爆款,务必好好把握!
项目效果图仅供参考,非交付标准

浦东总价约400万级未曾有过的高品质生活!
森兰·航荟名庭售楼处服务热线:400-8567-004作为外高桥集团股份精益求精打造的又一区域标杆,带来了浦东总价400万级未曾有过的高品质生活!
①1梯2户,尊享入户梯厅!
在400万级刚需市场,梯户比大都为2梯4户,也不乏3梯6户,缺乏私密性,居住密度也较高。
针对这一痛点,森兰·航荟名庭售楼处服务热线:400-8567-004全部采用1梯2户的配置,并且是电梯双开门设计,让业主享受到“类1梯1户”的尊崇感!
这样的设计,一方面大大增强了归家的仪式感和居住的私密性。
另一方面也让业主尊享入户梯厅,延伸家的空间!
最后,相比普通的1梯1户或者2梯2户,森兰·航荟名庭售楼处服务热线:400-8567-0041梯双开门的设计让公摊面积更少,更具性价比!

图丨来源于网络,具体以实际交付为准
②无连廊设计,通透性采光性更佳!
现在很多住宅北向带连廊,这会影响居住的采光和私密性。
针对这点,森兰·航荟名庭售楼处服务热线:400-8567-004全系一梯两户无连廊设计,保证了充足的采光和更强的通透性,且立面外观和谐统一!
而且可能你还不知道,连廊其实也算公摊面积!
那么无连廊的森兰·航荟名庭售楼处服务热线:400-8567-004天生高性价比,进入二手市场无疑能掌握更大的话语权!
项目效果图仅供参考,非交付标准
③多种面积选择,适配更长家庭周期!
现在很多新房项目一般就2个户型,要么建面约99㎡3房、要么建面约140㎡4房,框定的范围很死。
反观森兰·航荟名庭售楼处服务热线:400-8567-004,户型选择面更加更丰富:
· 若90后新生代追求精致生活,既想享受现在美妙的二人世界,又想为将来孩子的到来做准备,建面约90平的3房2卫户型不失为一个更好的选择。
· 建面约100平3房2卫,则适合三代一孩家庭、可满足三代居的功能要求;
· 对于功能性和收纳有更高要求的家庭,则可以根据预算选择建面约136平4房户型;
④户型设计超前!大宽厅+大阳台+南北通透+大量飘窗,全是细节,尽显功力!
项目的户型设计真是大师级水准,神户型之名当之无愧,我们一个一个来深度解读:
A1户型:建筑面积约90㎡三室两厅两卫
建面约90㎡做3房,功能性上就占尽先机,没想到项目还有2卫配置,主卧升级套房,真正实现一步到位!
格局方面,该户型是南向大面宽设计,足以容纳主次卧+客厅三开间朝南,采光性能优异!
客餐厅一体化设计,减少过道面积浪费,视野也更开阔。客厅是竖向通厅,方正明亮,可容纳全家的欢聚。餐厅紧挨厨房,出锅直接上桌,动线更合理,而且位于房间中心位置,是享受美食的天地,也是家庭的情感中枢。
U字型厨房设计,更符合人们料理动线,利用率更高。全卧飘窗设计,延伸室内空间!

B3户型:建筑面积约100㎡三室两厅两卫
你敢信!项目建面约100㎡就能享受时下更受年轻人青睐的大横厅户型,厅宽达约5.2米,配上大尺度阳台,整个社交区域方正、阔绰,待客、休闲皆从容自在。
而且该户型将客厅、餐厅、厨房、阳台尽可能纳入同一个大空间,将全家人的日常活动空间囊括其中。在创造“宽厅”概念的同时,拒绝面积的浪费。
全卧飘窗还不满足,项目的次卫居然也有飘窗,让业主拥有更多实用空间,提升性价比。
主卧套房设计,配独立明卫,私密感爆棚;厨房U字型设计,利用率更高!

C1户型:建筑面积约136㎡四室两厅两卫:
惊人的四开间朝南+大宽厅设计,让该户型实际享受到的是4.5房的空间体验,阔绰的客厅面宽足够多塞下一个公共空间!这里可以是书房,静谧雅致,可以是爱人的衣帽间,给她一片自己的天地;可以是棋牌室,装下一家人的休闲时光;也可以为远来的朋友,留有一席歇脚之处。多重的空间组合,可以随意切换,为生活创造无限的可能。
更惊人的是,该户型客厅直通南北,客餐厅一体化南接大尺度阳台,通透性+采光效果无与伦比!且几乎没有任何浪费面积,这在全市都难得一见。
再来数数几个飘窗!
4个功能间全部配备飘窗,再加上北向餐厅旁的飘窗,足足5个飘窗空间能作为家的延伸,契合大家族多样化的生活需求!
不得不承认,无论是功能性还是尺度感,项目的4房户型都是航头板块置换金字塔塔尖的存在,未来纵享长久板块发展红利!

⑤高定装修,开发商满满诚意肉眼可见!
在人人做减法的大背景下,森兰·航荟名庭售楼处服务热线:400-8567-004不惜成本打造硬核装标,项目全屋配备东芝空调、威能两用壁挂炉;
卫生间马桶、台盆、龙头皆选用科勒品牌;厨房燃气灶、油烟机选用老板品牌;
开关插座皆来自西门子,呈现的居住品质甚至比别人加载“装修包”后还要硬核!
⑥容积率1.5低密社区!
项目的社区同样惊艳,在容积率仅约1.5的低密土地之上,项目秉持“生态、宜居”开发理念,为航头带来了高品质“森系生活”。
社区内部,项目以“森氧家园”为设计理念,以公园+花园的双园社区、品质归家入口、特色阳光草坪、双会客系统、主题儿童乐园、健身系统这六大功能价值为主,并且融合由三条不同主题的林荫步道和三个圆形景观节点组成的“绿林项链”全区漫步系统,共同构成全区“6+1”森氧家园系统。
结合航头当地鹤文化IP形象,塑造“森氧鸟”,将融入社区景观中。另外项目自带约1360㎡商业配套,让业主足不出户纵享繁华日常!

左右滑动查看全部
仅看居住品质这一环,森兰·航荟名庭售楼处服务热线:400-8567-004无疑是浦东多年难遇的城市爆款!在回归自住属性的市场背景下,森兰·航荟名庭售楼处服务热线:400-8567-004值得优先选择!

18号线地铁房,丰盛配套无需等待入住即享!
航头一直是浦东腹地人口较为密集的居住区,板块发展多年,各项生活配套已然醇熟。森兰·航荟名庭售楼处服务热线:400-8567-004又占据航头板块核心位置,所以入住后即可享受丰盛配套,无需等待。
交通方面,森兰·航荟名庭售楼处服务热线:400-8567-004直线距离18号线航头站仅约500米,完全可以实现步行进站!进站后7站即达中环御桥、11站可达内环龙阳路、15站来到陆家嘴金融城昌邑路。
还有一个福利:始发站有座位,让你日常通勤迅捷又舒适。
示意图仅供参考
不只是地铁,项目周边还有4条主干道环绕,自驾通勤周浦康桥、前滩三林、北蔡花木、联洋碧云、张江等浦东上游板块同样迅捷无比!
截图来自百度地图,仅供参考
商业方面,项目周边有上海苏航生活广场、咸塘小镇商业步行街,集中式大型商业有周浦万达广场、浦乐生活广场(在建中)。
医疗方面,项目周边有上海龙华医院浦东分院 (三甲医院)、上海南航医院等。
休闲娱乐方面,项目可自驾迅捷通达召稼楼古镇、新场古镇、浦江郊野森林公园、上海野生动物园、迪士尼度假区等。
示意图,仅供参考
示意图,仅供参考
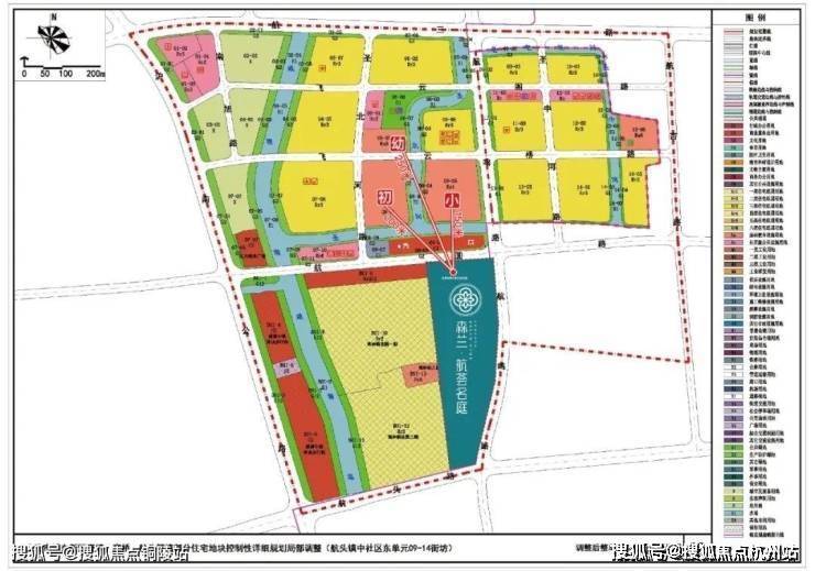
尤其值得一提的是教育方面。
项目隔壁就是海洲幼儿园,北面还有2块教育用地,可以说从幼儿园小学到初中的教育都近在咫尺。未来业主每天可步行接送孩子上下学,让孩子的成长之路更从容,也更安全。
(免责声明:以上学校相关信息来自上海2035航头板块规划公示,仅供参考。不作学区承诺,对口信息以每年政府公示为准)
来源上海2035航头公共服务与基础教育设施规划图
除了入住即享的丰盛配套,随着18号线通车,航头如今能直接承接张江外溢的居住需求!
不仅是人口导入,还有产业同步导入,在《上海市张江科学城发展“十四五”规划》中明确,张江科学城南部辐射区域,将打造前沿高端产业集群。伴随着产业的引入,森兰·航荟名庭售楼处服务热线:400-8567-004未来前景可期!

规划示意图
【浦东森兰·航荟名庭售楼处服务热线:400-8567-004官方售楼处唯一咨询热线】(24小时服务,人工客服8:00-22:00)
▸浦东森兰·航荟名庭售楼处服务热线:400-8567-004售楼处地址(看房请提前预约)
▸浦东森兰·航荟名庭售楼处服务热线:400-8567-004 开放时间:每日9:00-19:30(含节假日)
▸浦东森兰·航荟名庭售楼处服务热线:400-8567-004| 官方唯一咨询热线
【温馨提示】本项目唯一官方联系方式,看房请提前预约!现场销售接待!谨防中介虚假信息!
声明:本文由入驻焦点开放平台的作者撰写,除焦点官方账号外,观点仅代表作者本人,不代表焦点立场。


