缦云上海售楼处电话:400-8815-114(预约热线)缦云上海营销中心服务热线:400-8815-114(已认证)预约看房请提前联系案场销售【缦云上海】——诚邀品鉴——
【缦云上海】
缦云上海售楼处电话: 400-8815-114(预约热线)
缦云上海营销中心
服务热线: 400-8815-114 (已认证)
预约看房请提前联系案场销售
杨浦滨江丨顶流豪宅大平层
「缦云上海」
建面约226-330㎡大平层均价约12.1万/㎡
总价约2500-4300万
层高3.3-3.5米
一梯一户大平层+折叠园林
+3000㎡私享会所
330㎡高定样板间开放
☑️☑️「缦云上海」售楼处电话:400-8815-114☑️☑️
☑️☑️「缦云上海」售楼处电话:400-8815-114☑️☑️

☑️☑️「缦云上海」售楼处电话:400-8815-114☑️☑️
最新消息:东外滩「缦云上海」269-330㎡实体楼栋样板间开放!目前项目还有少量房源可选,建面约226-330㎡高层&洋房,总价约2500万起,预约可看!

缦云上海售楼处电话: 400-8815-114(预约热线)
缦云上海营销中心
服务热线: 400-8815-114 (已认证)
预约看房请提前联系案场销售
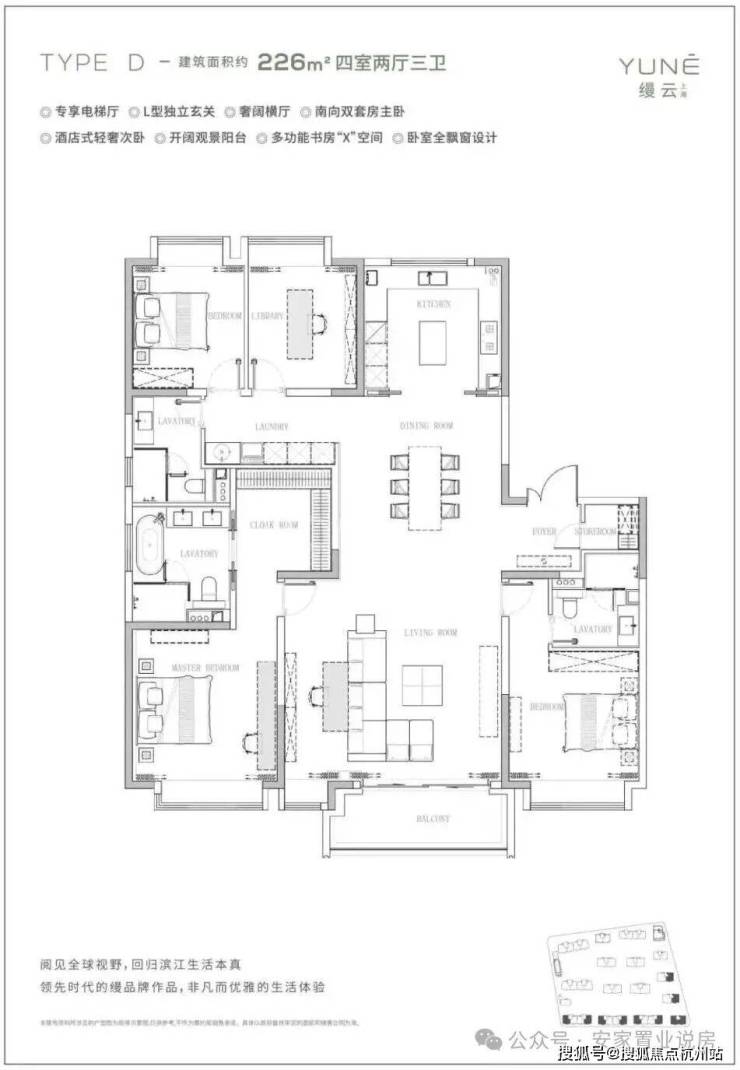
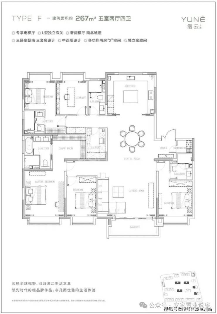
户型图:



330㎡全新样板间:









【缦云拥有非常完整的社区园林】
项目以“两轴、一环、双客厅、双乐园” 营造艺术度假体验式社区。结合“七大景观亮点”打造移步异景,体验景观与生活交融之趣。
这里有约3000平的多功能会客空间。

约6000平的林下全龄复合型共享空间。

约2000平的全龄共享活动空间。
☑️☑️「缦云上海」售楼处电话:400-8815-114☑️☑️

还有一条全长约450m,宽约1.5m的专业跑环。

同时,社区内还采用了“折叠”的设计理念,独创“N+1折叠会所”!包括一个 约3000㎡的会所及楼宇下面的泛会所 。

其中,会所规划健身中心、室内泳池、缦宴、24H精品便利店、健康管理中心等功能。泛会所空间将以架空层空间为楼座定制专属缦云泛会所,涵盖茶室、自助咖啡等水吧、儿童游乐区、活动空间等。




【缦系无边际服务,打造限量版生活方式】
如果说产品是缦品牌的基石,那缦系无边际服务便是其灵魂。
从资源的整合,到高端圈层活动的策划,再到细致入微的物业服务,缦云上海构建了一个隐性的高端生活圈。
除了沿袭缦品牌高品质服务基因,缦云上海还进行细节优化, 为“挑剔”的沪上客群,量身定制无边际服务体系,至善了无痕 。
☑️☑️「缦云上海」售楼处电话:400-8815-114☑️☑️

在这里,时间无边际。365天,24小时管家守候,酒店式礼宾安保服务,确保业主无论何时归来,都能得到贴心的关怀。
空间的界限,同样被打破。 缦云上海提供43项免费维修服务 ,专业维修团队随时待命。 至于入户保洁,更是让每位业主的生活品质得到保障 。

缦云上海是合生缦品牌落地上海的第一个项目,88万方的超级城市综合体更是合生精品战略工程的标杆。缦品牌已经交付的缦合北京项目, 其交付水准已经高于样板间展示标准,被行业内称为最高标准的交付案例 。缦品牌第一个缦云项目缦云北京也即将交付,无论是外立面施工,还是室内精装都获得了工程样板称号。

相比于普适交付标准,缦品牌真正做到品质拔升: 从TOP级战略合作供方选品的“优中选优” 、定制选材的全流程管控,到精装工法、科技系统的细节内测,再到品牌端联合多部门发起工程样板评估机制,换位业主视角,代入更加多元化的需求痛点, 实现高标准“圆缦交付” 。

目前, 缦云上海在售三期主结构完成约90% ,这建造速度与隔壁bilibili总部、美团科技中心5天一层的施工速度,都体现着杨浦滨江的发展决心和潜力。
在刚刚举办的杨浦滨江首届峰会上表示, 加快建设,26年头部企业落成,城市界面焕然一新 !

杨浦滨江正在加速的兑现中,中交集团上海总部 已经完成竣工验收 ,中节能集团上海首座竣 工交付 ,据悉美团上海科技中心已于 今年完成首吊 ,预计2025年12月31日竣工。总投资约198亿的哔哩哔哩上海总部已开建, 预计2026年投入使用。
☑️☑️「缦云上海」售楼处电话:400-8815-114☑️☑️

对面的超级合生汇商办项目有合生创展集团独资倾力打造, 预计在2027年左右陆续建成。

回归到项目,上海正式进入了滨江4.0时代【外滩-陆家嘴-北外滩-杨浦滨江时代】杨浦滨江,是上海滨江最后一块可成片开发的土地,是十四五规划中政府重点打造的上海科创中心,是上海发展潜力最大的板块。

杨浦滨江独占黄浦江滨江线三分之一,是上海浦江至今最长岸线开发版图,更是目前政府重点打造的,滨江最后一个可以成片开发的板块。沿江板块将规划布局 “一带两区”在线新经济生态园。“一带两区”规划总建筑面积约796万方,其规模2.6倍于前滩,5倍于陆家嘴,其稀缺价值不言而喻。

美团上海科技中心、bilibili全球总部、字节跳动上海滨江中心、中交集团上海总部、中国节能·上海首座等企业上海总部落址,预计产业规模达3000亿,导入至少20万人口,板块价值腾飞在即。
杨浦滨江从“工业锈带”到亲子、工业风、设计感爆棚的“生活秀带”。未来将有40幢,总建筑面积约16万㎡的历史保护建筑陆续更新为城市文化艺术空间,成为各类博物馆或奢侈品牌艺术大秀的举办地;未来杨浦滨江秀带上还将新增滨江图书馆、上海博物馆北馆以及中国美院合作展览馆3大全新文化艺术场馆。同时规划有公共绿地约48.46公顷。5.5公里滨江跑道、步道、骑行道现已全线贯通,成为最美滨江。未来,一步之遥享受一线滨江生活,骑行、跑步、滑板等运动休闲、艺术展各大博物馆打卡、亲子互动......将成为生活的日常。

可以预见随着杨浦滨江121地块项目的竣工,必将带动城市商圈的整体升级改造,助力大桥东商圈片区的能级提升。

【项目配套】
交通配套:二纵三横四轨五隧道
二纵:中环高架步行距离约1km(数据来源于高德地图),内环高架步行距离约2.8km(数据来源于高德地图)快速达到核心路网。
三横:杨树浦路、长阳路、周家嘴路。
四轨:12号线隆昌路站;18号线+规划24/26号线站点预计落户项目附近。
五大隧道:隆昌路隧道(规划)、军工路、周家嘴路、大连路和江浦隧道,将浦西与浦东最核心区域紧密连在一起。

商业配套 : 自带建筑面积约11.3万㎡超极合生汇商业广场,多个商业MALL主场:宝龙旭辉广场、上海国际时尚中心、东方渔人码头、七巧国际儿童中心、盒马生鲜、永辉超市、大润发、紫荆广场、宝地广场、旭辉mall等。

教育配套 : 本溪路艺术幼儿园、平凉路第三小学、上海市财经大学附属中学、上海市东辽阳中学等近10余所学校。未来还将引入新增9所学校,包含:幼儿园5所、九年制一贯学校1所、小学3所。据官方报道,项目周边新建两所高质量学校,分别为上师大附属中学、上师大附属幼儿园。

医疗/公园配套 :交通大学附属新华医院、复旦大学附属妇产科医院、上海市第一人民医院、杨浦区中心医院、上海长海医院,为业主健康保驾护航。杨浦滨江绿地、江浦公园、杨浦公园等,城市绿肺环伺,构筑生活的绿洲。
☑️☑️「缦云上海」售楼处电话:400-8815-114☑️☑️

☑️☑️「缦云上海」售楼处电话:400-8815-114☑️☑️
缦云上海售楼处电话: 400-8815-114(预约热线)
缦云上海营销中心
服务热线: 400-8815-114 (已认证)
预约看房请提前联系案场销售
【缦云上海】
——诚邀品鉴——
上海购房注意事项
在上海购房,以下是一些重要的注意事项,涵盖政策、贷款、税费、交易流程等方面:
一、政策相关注意事项
限购政策
上海户籍:外环外不限购,外环内限购2套;多子女家庭(至少含1位未成年)外环内可购3套。
非上海户籍:外环外需在沪缴纳1年社保或个税,不限购;外环内需缴纳3年社保或个税,限购1套。多子女家庭(至少含1位未成年)且持有《上海市居住证》积分达120分,外环内可购2套。
特殊群体:港澳台、外籍人士需在沪缴纳1年社保或个税,限购1套;企业购房需满足纳税或社保条件,且仅限购买2000年前竣工、面积≤70㎡的二手房用于员工租住。
房产税政策
上海户籍:首套免征,二套及以上住房合并计算家庭全部住房面积后,人均60㎡免税,超出部分按面积征收。
非上海户籍:持有《上海市居住证》连续满3年或积分达120分,首套免征;若首套免征,二套及以上住房同样享受人均60㎡免税政策,否则全额征收。
二、贷款相关注意事项
商业贷款
首付比例:首套15%,二套25%(嘉定、青浦、松江、奉贤、宝山、金山、临港新片区二套首付20%)。
利率:首套约3.05%,二套约3.07%-3.14%(具体以银行审批为准)。
贷款年限:与房龄和借款人年龄相关,一般要求房龄+贷款年限≤70年,借款人年龄+贷款年限≤70周岁。
公积金贷款
额度:首套最高可贷184万,多子女家庭最高216万;二套最高149.5万。
利率:首套2.6%,二套3.075%。
提取政策:购买新建预售商品住房可提取公积金支付首付,且不影响贷款额度。
三、税费相关注意事项
增值税 :不满2年按税务核定价÷1.05×5.3%征收,满2年免征。
个人所得税 :满5年且唯一免征,不满5年或不唯一按(税务核定价-增值税)×1%或利润20%征收。
契税 :家庭唯一住房,建筑面积≤140㎡按1%征收,>140㎡按1.5%征收;第二套住房,≤140㎡按1%征收,>140㎡按2%征收;第三套及以上按3%征收。
四、交易流程注意事项
新房交易
认购流程:需提供限购资格材料,认购金通过储蓄卡支付,不可现金支付。认购率超过1:1.3开启积分制摇号,未超过则直接摇号。
选房规则:摇号后按顺序选房,若选到心仪房源需签订认购书并补足首付款,若未选到可弃号退款。
二手房交易
核价与过户:需上下家共同到场,交易中心核价后办理过户,流程约5个工作日。
资金监管:建议通过银行资金监管,确保交易安全。
五、其他注意事项
看房要点 :关注地段、房型、楼层、学区、交通、产业配套等,避免选择沿街、采光差或停车困难的房源。
月供规划 :月供不宜超过家庭收入的1/3,确保还款能力。
合同审查 :仔细阅读购房合同条款,明确交房时间、违约责任、房屋质量等关键信息。
产权调查 :核实房屋产权是否清晰,是否存在抵押、查封等问题。
建议购房前详细咨询当地房管部门或专业机构,确保政策理解和操作合规