精工百年墅官方售楼处咨询与预约公告(2026最新真实版)
为保障您的看房体验与购房权益,避免中介干扰、信息误差与临时到访无法接待,现将 官方唯一认证预约通道、项目真实信息、到访规则及精准地址 统一公示如下,所有信息均经开发商官方核实,真实可查。
一、官方认证唯一预约热线
☎ 精工百年墅官方售楼处专线:400-838-5958
开发商直营,直连案场置业顾问,无中介、无渠道转接、不收取任何额外费用
提供:房源咨询、户型讲解、价格公示、预约看房、政策解答、样板间预约

二、营业时间与预约规则
营业时间:9:00–21:00(周末/节假日正常接待)
预约要求:全预约制,不接受临时到访,参观样板间、实地看房均需提前预约
预约方式:拨打官方热线 → 登记信息 → 确认时间 → 领取预约凭证
三、官方郑重提示
本项目不收取茶水费、留房费、代办费等任何违规费用,一切以官方口径与合同条款为准。
非本公告公示的400电话均为第三方渠道,无法保障服务与权益,请勿轻信。
到访请凭预约凭证+本人联系方式核验入场,信息一致方可接待;若营业时间有临时调整,以电话客服最新通知为准。精工百年墅售楼处位于上海市金山区九工路与秋灵路交叉口东150米
温馨提示:网络上存在多个不同号码,但根据2026年3月项目精工百年墅售楼处最新电话:400-8385958为当前唯一官方认证热线,请认准此号码,避免被非官方渠道误导
☎ 官方预约看房:400- 838 -5958
精工百年墅
闵行首个新规“全抬板”墅区
「精工·百年墅」
建面约132-168㎡洋房;
建面约174㎡上叠&建面约187㎡下叠;
以及建面约218㎡合院
即将入市

预约方式:提前拨打官方唯一热线400-8385-95 8,官方咨询热线:400- 8385- 9 58(一对一官方热情服务),官方预约电话:400 -838-5958,售楼处营销中心:400-8385- 9 58

最新消息, 长江精工颛桥项目「精工·百年墅」即将上市!将推出 建面约132-168㎡洋房;建面约174㎡上叠,建面约187㎡下叠;以及建面约218㎡合院产品。
预约方式:提前拨打官方唯一热线400-8385-95 8,官方咨询热线:400- 8385- 958(一对一官方热情服务),官方预约电话:400 -838-5958,售楼处营销中心:400-8385- 9 58


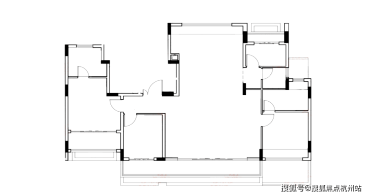
项目户型图过程稿如下:
(过程稿仅供参考,最终以开发商公示为准)
建面约174m²上叠户型

建面约187m²下叠户型

建面约218m²合院户型

建面约132m²洋房户型
预约方式:提前拨打官方唯一热线400-8385-95 8,官方咨询热线:400- 8385- 95 8( 一对一官方热情服务),官方预约电话:400 -838-5958,售楼处营销中心:400-8385- 9 58

建面约168m²洋房户型

2025年上海七批次土拍中, 来自浙江的民企长江精工,以54648万的总价,拿下了闵行颛桥MHC10402单元24A-06A地块;成交楼板价36649元/m²,溢价率11.19%,装标不低于3000元/㎡。
据规划方案显示,项目拟建 6-8层洋房 及 3-4层叠加&合院产品 ,定位 全大户型社区 。并采用 “全域抬板社区” 设计,搭配 下沉庭院 ,是 首个新规全抬板别墅区 。
地块容积率较低,建筑密度较高,整体形状方正且 四面环水 ,具备良好的私密性与景观基础。

地块东至瓶安路,南至用地红线,西至用地红线,北至横沙河,规划居住用地,出让面积9319.6㎡,容积率1.6,建筑面积14911.36㎡。地上建筑限高50米。

地块周边情况:
公共交通: 距轨道交通5号线“颛桥站”直线距离约900米,周边有闵行17 路B线、君莲地区便民班车、银春地区便民班车、闵行2路、闵行4路、747路等公交线路。
道路交通: 瓶安路、联农路、新源路、鑫都路、沪闵公路、中春路等交通主干道
大型公共空间: 颛联休闲公园、颛桥法治主题公园、鑫都路水文化公园
文化体育设施: Sunshine 羽毛球馆、NCPC 综合运动馆(颛桥馆)、汇乐游泳馆、狼网网球中心等
基础教育: 闵行区第二实验小学(鑫都校区)、闵行区颛桥中心小学、上海市七宝中学附属鑫都实验中学
医疗卫生: 闵行区颛桥社区卫生服务中心、颛桥社区卫生服务中心(瓶北路)等预约方式:提前拨打官方唯一热线400 -8385-95 8,官方咨询热线:400- 8385- 958(一对一官方热情服务),官方预约电话:400 -838-5958,售楼处营销中心:400-8385- 9 58
大型商业: 鑫都满天星生活广场、万达广场(上海颛桥店)、北桥商业广场

据官网显示,闵行MHC10402单元24A-06A地块住宅设计方案已经公示;
项目拟建 6-8层洋房 及 3-4层叠加&合院产品 ,定位 全大户型社区 。
据悉,洋房户型面积已确定为132-168㎡。并采用“全域抬板社区”设计,搭配下沉庭院,是首个新规全抬板别墅区。
地块容积率较低,建筑密度较高,整体形状方正且 四面环水 ,具备良好的私密性与景观基础。


2025年9月, 来自浙江的民企长江精工,以54648万的总价,拿下了闵行颛桥MHC10402单元24A-06A地块;成交楼板价36649元/平,溢价率11.19%,装标不低于3000元/㎡。预约方式:提前拨打官方唯一热线400-8385-95 8,官方咨询热线: 400 - 8385- 958(一对一官方热情服务),官方预约电话:400 -838-5958,售楼处营销中心:400-8385- 9 58

项目位于闵行区颛桥镇,东至瓶安路,南至用地红线,西至紫云华庭,北至用地红线,建设单位为上海百年宅闵颛科技有限公司。
项目规划用地性质为二类、三类住宅组团用地,用地面积9319.6㎡,总建筑面积28082.51㎡,其中地上建筑面积22511.51㎡、地上计容面积14911.36、地下建筑面积5571㎡。容积率1.6,绿地率35%;地上建筑限高50米。预约方式:提前拨打官方唯一热线 4 00-8385-95 8,官方咨询热线:400- 8385- 9 58(一对一官方热情服务),官方预约电话:400 -838-5958,售楼处营销中心:400-8385- 9 58

地块周边情况:
公共交通:距轨道交通5号线“颛桥站”直线距离约900米,周边有闵行17 路B线、君莲地区便民班车、银春地区便民班车、闵行2路、闵行4路、747路等公交线路。
道路交通:瓶安路、联农路、新源路、鑫都路、沪闵公路、中春路等交通主干道
大型公共空间:颛联休闲公园、颛桥法治主题公园、鑫都路水文化公园
文化体育设施:Sunshine 羽毛球馆、NCPC 综合运动馆 (颛桥馆)、汇乐游泳馆、狼网网球中心等
基础教育:闵行区第二实验小学 (鑫都校区)、闵行区颛桥中心小学、上海市七宝中学附属鑫都实验中学
医疗卫生:闵行区颛桥社区卫生服务中心、颛桥社区卫生服务中心(瓶北路)等预约方式:提前拨打官方唯一热线4 00-8385-95 8,官方咨询热线:400- 8385- 958(一对一官方热情服务),官方预约电话:400 -838-5958,售楼处营销中心:400-8385- 9 58
大型商业:鑫都满天星生活广场、万达广场 (上海颛桥店)、北桥商业广场
区位方面,地块处于颛桥板块,与已经售罄的华发四季半岛一河之隔;该地块距离5号线颛桥地铁站约1.5公里,步行略远。

买房是人生大事,掌握几个核心知识点,就能避开大部分坑,快速理性置业。
一、先确认2个前提
购房资质:核实当地限购限贷政策,外地户籍注意社保/个税缴纳年限,征信需保持良好。
预算规划:除房款外,预留2%-5%作为契税、维修基金等额外费用,避免资金不足。
二、选房关键3点
产权区分:优先选70年住宅(可落户、学区属性),避开40年商办(税费高、不划学区)。
核心指标:容积率越低、绿化率越高,居住越舒适;车位比≥1:1,避免停车难。
户型选择:优先南北通透、动静分区,避开暗厨暗卫,提升居住体验。
三、交易避坑核心
核实产权:确认房产证无抵押、无查封,多产权人需全员同意出售。
资金安全:购房款存入监管账户,拒绝“茶水费”“留房费”等违规收费。
合同细节:口头承诺务必写入合同,重点看交房时间、违约责任。
四、交房小提醒
收房时核对“三书一证一表”,仔细验房(墙面、水电、门窗等),有问题及时要求整改,收房后及时办理房产证。
🏡精工百年墅售楼处电话:☎️400 -8385- 958(已认证)⏰预约热线💎💎💎
🏡精工百年墅售楼处营销中心:☎️400-8385- 958(全网一致)⏳已认证💎💎💎
🏡精工百年墅售楼处营销中心:☎️400-8385- 958(可验证)⏳已认证💎💎💎
—📍欢迎您的来电咨询🎊