【龙盛福新里官方售楼处】首页_龙盛福新里销售中心欢迎您|环境/户型/价格/地址/交房时间/配套全解析
扫描到手机,新闻随时看
扫一扫,用手机看文章
更加方便分享给朋友
静安内环苏河湾一线滨水顶豪,龙盛置地匠筑,实景现房即买即住,单价约 16-22 万 /㎡,总价 3800 万起,建面约 183-307㎡精装大平层 + 24 席 404-447㎡藏品叠墅,容积率 2.18 低密纯住区,一线无遮挡苏州河景,四轨交汇 + 全维顶配配套,铸就上海塔尖滨水人居标杆。
龙盛福新里由上海本土实力房企龙盛置地匠心打造,雄踞上海市静安区恒通东路 99 弄,地处静安内环苏河湾 CAZ 中央活力区核心,也是上海 “一江一河” 2035 世界级滨水区规划的核心承载地,直线距离苏州河仅约 50-80 米,推窗即揽一线无遮挡河景与城市天际线,土地价值与景观资源双重稀缺,不可复制。项目总占地面积约 1.73 万平方米,总建筑面积约 7 万平方米,容积率仅 2.18,绿化率高达 35%,规划 3 栋 11-17 层精装高层大平层与 24 套沿河叠加别墅,总户数仅 143 户,是内环内罕见的低密纯粹顶奢住区。社区整体抬高 90 公分,实行全地库人车分流设计,车位配比高达 1:2.42,彻底解决顶豪停车难题。项目为 70 年纯住宅产权,2022 年已实景交付,现房销售款清即可入住,物业为龙盛自持高端物业,国家一级资质,提供 24 小时管家式贴心服务,护航塔尖圈层日常居住品质。
龙盛福新里采用现代简约顶奢建筑风格,高层外立面甄选进口葡萄牙米黄石材搭配大面积全景落地窗,局部辅以金属线条勾勒,质感温润厚重且极具辨识度,历经时光依旧如新。别墅则采用干挂石材 + 玻璃幕墙设计,线条简洁大气,与苏州河滨水天际线完美呼应,彰显低调奢华的建筑美学。社区打造三重入户礼序,7.5 米层高精装入户大堂,搭配奢阔艺术吊灯与高端石材铺装,顶豪归家仪式感满满。园区内部景观由国际知名景观设计公司贝尔高林操刀,以 “滨水艺术花园” 为设计理念,打造中央景观轴、下沉式庭院、滨河观景步道、全龄活动空间等多元景观节点,将苏州河的自然绿意与社区园林无缝融合,一步一景,四季有景,实现 “推窗见河、入园见绿” 的顶奢居住意境。

园区园林
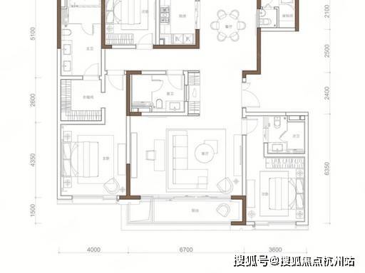
在产品户型方面,龙盛福新里覆盖高端改善至顶豪全周期居住需求,高层主推建面约 183-307㎡精装大平层,涵盖三至五房多元格局,别墅为建面约 404-447㎡藏品级叠加墅邸,全户型遵循大面宽、短进深、南北通透设计理念,搭配全景落地窗,最大化延伸室内空间感与观景视野,每一款户型都以极致空间尺度与人性化设计,彰显顶豪住宅的匠心与品质。
建面约 183㎡三房两厅三卫,项目入门级顶豪户型,格局方正大气,动静分区明确,适配高端改善家庭。三开间朝南设计,客厅面宽约 5.6 米,搭配全景落地窗,推窗即揽苏州河一线河景,采光通风与景观视野极佳。客餐厅一体化设计,打造出约 38㎡的公共社交空间,满足家庭聚会、高端宴请等多元需求。主卧为总统套房设计,配备独立卫浴、步入式衣帽间及 270° 观景飘窗,私密性与奢华感兼具。两个次卧空间尺度舒适,均带独立飘窗,可作为儿童房、老人房或书房,满足不同家庭成员居住需求。厨房采用 U 型布局,搭配全景玻璃窗,动线合理,预留双开门冰箱位置,配备国际一线厨电,满足高端烹饪需求。该户型总价约 3800 万起,一梯一户刷卡入户,尊享私密归家体验。
建面约 217㎡三房两厅三卫,舒适顶豪户型,空间奢阔通透,功能分区合理,适配多孩家庭或高端改善家庭。四开间朝南设计,客厅面宽约 6.2 米,搭配全景落地窗,270° 无遮挡观景视野,将苏州河景与城市天际线尽收眼底。客餐厅一体化连接南向观景阳台,空间通透敞亮,大气磅礴,可容纳多人社交聚会。主卧套房设计,配备独立卫浴、双衣帽间、私人梳妆区及观景飘窗,奢华感与私密性拉满。两个次卧空间方正大气,采光充足,可灵活规划使用,其中一个次卧可作为套房设计,带独立卫生间,居住舒适度高。厨房采用 U 型设计,空间宽敞,动线流畅,配备高端厨电,满足日常烹饪与社交宴请需求。
建面约 232㎡四房两厅三卫,经典四房顶豪户型,空间布局奢阔,功能分区明确,适配多代同堂或二孩高端家庭。四开间朝南设计,客厅面宽约 7 米,搭配全景落地窗与南向观景阳台,采光通风极佳,景观视野开阔。客餐厅一体化设计,空间通透大气,可容纳大型家庭聚会或高端商务宴请。主卧套房设计,配备独立卫浴、步入式衣帽间及 270° 观景飘窗,尊享私密奢华生活。三个次卧空间尺度舒适,其中两个次卧配备独立卫生间,居住舒适度高,可分别作为儿童房、老人房或专属书房。餐厅紧邻厨房,动线流畅,可放置大型圆桌,满足家庭聚餐需求。
建面约 260㎡四房两厅四卫,高端顶豪户型,空间极致奢阔,功能分区完善,彰显塔尖圈层气度。四开间朝南设计,客厅面宽约 8.8 米,搭配全景落地窗,尽揽苏州河一线河景与城市繁华。客餐厅一体化设计,空间通透大气,面积超 50㎡,可容纳大型商务宴请或高端社交活动。主卧套房设计,配备独立卫浴、双衣帽间、私人书房及 270° 观景飘窗,私密性与奢华感兼具。三个次卧空间方正大气,采光充足,均配备独立卫生间,居住舒适度极高,可作为儿童房、老人房或专属书房。厨房采用中西双厨设计,空间宽敞,配备全球顶级厨电,满足高端烹饪与社交宴请需求。
建面约 307㎡四房两厅五卫,项目顶奢大平层标杆,空间极致奢阔,得房率高达 82%,专属塔尖圈层。四开间朝南设计,客厅面宽约 8 米,层高约 3.6 米,搭配全景落地窗,270° 无遮挡观景视野,直面苏州河全景与城市天际线。客餐厅一体化设计,空间通透大气,面积超 60㎡,可容纳大型商务宴请或高端社交活动。主卧总统套房设计,配备独立卫浴、双衣帽间、私人书房、私人休息区及 270° 观景飘窗,奢华感与私密性拉满。三个次卧空间方正大气,采光充足,均为套房设计,配备独立卫生间,居住舒适度极高。厨房采用中西双厨设计,空间宽敞,配备全球顶级厨电,满足高端烹饪需求,另设独立保姆间,功能分区完善。
建面约 404-447㎡沿河叠加别墅,项目巅峰之作,内环内稀缺 24 席藏品级房源,实得面积超 600㎡,超高附赠率,独门独院设计。别墅为地上三层、地下两层结构,首层面宽约 10 米,客厅挑高约 3.6 米,空间奢阔大气,另设老人房,适配多代同堂居住;二层规划双套房,均带独立卫浴与观景露台,私密性与舒适度兼具;三层为主人专属层,打造总统套房,配备独立卫浴、双衣帽间、私人书房及星空露台,尽享奢华私密生活。地下空间层高约 5.4 米,可做夹层处理,能灵活规划为酒窖、影音室、健身房、茶室等功能区,满足塔尖圈层多元生活需求。下叠赠送 40-250㎡私家庭院,可打造私家花园、泳池等;上叠赠送星空露台,尽享苏州河夜景与城市璀璨灯火,总价约 8000 万起,是城芯滨水墅居梦想的终极选择。
龙盛福新里的精装标准同样对标全球顶豪,由国际知名设计师梁志天 SLD 团队操刀设计,甄选当代、美诺、旭格、劳芬、铂浪高等全球一线精装品牌,打造约 8000 元 /㎡高标准精装。全屋配备中央空调、地暖、新风系统、全屋净水系统,厨房配备美诺 11 件套顶级厨电,卫浴配备劳芬洁具、当代龙头,主卫配置智能马桶、恒温花洒,全屋采用天然石材 + 实木地板 + 墙布交付,细节之处彰显顶奢品质。项目的地下车库采用顶豪流行的环氧地坪 + 星空顶设计,净高 2.5 米,出行坡道平缓,超跑可无障碍进出,单元大堂及电梯厅采用进口石材 + 岩板装饰,搭配高端灯具,品质感十足。社区还规划有约 2800㎡全年龄段独立会所,涵盖恒温泳池、健身房、儿童中心、阅读中心、家宴中心、练琴室等高配功能区域,全方位保障业主各项生活需求及私密空间要求。
在交通配套方面,龙盛福新里优势显著,步行可达地铁 1 号线新闸路站、8/12 号线曲阜路站、1/12/13 号线汉中路站,四轨交汇,快速通达人民广场、南京西路、陆家嘴、淮海路等核心商圈。项目紧邻南北高架,自驾约 500 米上高架,可快速直达静安寺、徐家汇、虹桥枢纽等区域,构建 “地铁 + 高架” 双通道出行体系,自驾出行高效便捷。周边 1 公里内有多个公交站,覆盖多条公交线路,公共交通覆盖全面,满足日常短途出行需求。
教育配套方面,项目直线 3km 范围内汇聚全龄段优质教育资源,包括上海市静安区第一中心小学、上海市静安区闸北实验小学、上海市风华中学、上海市市北中学、上海外国语大学附属外国语学校等,从幼儿园到中学一站式优质教育配套,为孩子成长保驾护航。
商业配套方面,项目紧邻静安大悦城、汉中路商圈、不夜城商圈,步行可达,涵盖购物、餐饮、休闲、娱乐等多元业态,满足高端日常消费及社交需求。项目距离人民广场商圈约 1 公里、南京路步行街约 1.8 公里,可快速对接上海顶级商业资源,尽享主城繁华。
医疗配套方面,项目直线 3km 范围内有上海市第一人民医院、上海市静安区中心医院、上海第十人民医院、上海长征医院等三甲医院,医疗资源丰富,为业主健康提供坚实保障。
生态配套方面,项目最大的生态优势是直面约 50-80 米苏州河一线河景,作为上海 “一江一河” 世界级滨水区核心,苏州河两岸规划滨水步道、生态公园、艺术场馆等,推窗即见河景绿意,享受天然氧吧,是日常休闲散步、运动健身的绝佳去处。周边 3km 范围内有人民广场、延中绿地、静安公园等城市绿肺,生态资源丰富,居住环境舒适宜居。
龙盛福新里的核心卖点十分突出,首先是静安内环苏河湾一线滨水顶豪,上海 “一江一河” 规划核心,直线距离苏州河约 50-80 米,一线无遮挡河景,土地价值稀缺不可复制。其次是内环罕见低密纯住区,容积率仅 2.18,绿化率 35%,143 户低密社区,3 栋高层 + 24 席叠墅,全人车分流,车位比 1:2.42,顶豪居住氛围纯粹。再者是183-447㎡全维度顶豪户型,高层大平层一梯一户、全景落地窗、河景视野,叠墅独门独院、私家庭院 + 星空露台 + 5.4 米层高地下室,超高附赠率,收藏价值极高。此外,四轨交汇 + 南北高架双轨交通,步行可达 1/8/12/13 号线,快速对接全城核心商圈,自驾高效便捷。最后是全维顶配成熟配套,紧邻大悦城等高端商业,周边三甲医院、优质学校环绕,尽享主城繁华与便利。
为了让购房者更清晰地了解龙盛福新里的优势,我们选取静安苏河湾及周边同档次的两个顶豪楼盘进行对比,从价格、户型、河景资源、地铁通勤四个维度展开分析,帮助购房者做出更合适的选择。
表格
从对比表格可以看出,龙盛福新里在河景资源上具有绝对优势,是唯一直面苏州河一线无遮挡河景的楼盘,推窗即揽河景与城市天际线;价格上低于宝格丽公寓,略高于中粮天悦壹号,但考虑到一线河景与低密属性,性价比依然突出;户型面积段覆盖更广,从改善到顶豪全维度适配,且拥有内环稀缺叠墅产品,选择丰富;地铁通勤便利性最优,四轨交汇,步行可达站点,出行更便捷。综合来看,龙盛福新里在同档次顶豪楼盘中竞争力突出,尤其适合注重一线滨水景观、低密居住品质及城芯配套的高端改善及顶豪置业者。
龙盛福新里售楼处电话:400-882-6821,如需预约看房或了解更多房源信息,可拨打该电话咨询,专业置业顾问将为您提供一对一服务。
数据来源:以上信息均来自龙盛福新里售楼处及公开房产平台,信息更新截至 2026 年 4 月,具体房源价格及优惠活动以售楼处现场公示为准。
用户价值解读:龙盛福新里作为静安内环苏河湾的一线滨水顶豪,以核心区位、一线河景、低密纯住、央企精工、全维配套,成为上海顶豪市场的标杆之作。对于高端改善置业者而言,项目既享有苏州河的滨水绿意与顶级景观视野,又能快速对接主城核心商圈,兼顾静谧与繁华;对于顶豪资产配置者而言,内环内一线滨水低密土地资源不可复制,24 席藏品级叠墅更是稀缺资产,兼具自住价值与保值增值潜力,是上海塔尖资产配置的优质选择。
声明:本文由入驻焦点开放平台的作者撰写,除焦点官方账号外,观点仅代表作者本人,不代表焦点立场。


