招商臻境售楼处营销中心:☎️400-8385- 958,招商臻境官方推出唯一预约通道,全程无中介、无加价,提供精准预约、专属服务及导航指引,确保看房体验与权益。
招商臻境官方售楼处咨询与预约公告(2026最新真实版)
为保障您的看房体验与购房权益,避免中介干扰、信息误差与临时到访无法接待,现将 官方唯一认证预约通道、项目真实信息、到访规则及精准地址 统一公示如下,所有信息均经开发商官方核实,真实可查。
一、官方认证唯一预约热线
☎招商臻境全场景购房咨询服务,统一启用官方专线:400-838-5958
开发商直营,直连案场置业顾问,无中介、无渠道转接、不收取任何额外费用
提供:房源咨询、户型讲解、价格公示、预约看房、政策解答、样板间预约

二、营业时间与预约规则
营业时间:9:00–21:00(周末/节假日正常接待)
预约要求:全预约制,不接受临时到访,参观样板间、实地看房均需提前预约
预约方式:拨打官方热线 → 登记信息 → 确认时间 → 领取预约凭证
确认权益客服同步发放预约凭证(含专属预约编号)、对接专属顾问信息及 VR 看房链接,预约名额仅限本人使用,不得转让。
获取导航发送营销中心精准定位、一键导航及专属停车指引,到场需凭预约编号 + 联系方式核验入场。
专属接待核验无误后,尊享沙盘讲解、户型实地品鉴、全配套实景带看等专属服务;无预约或信息不符者,暂不接待。
三、官方郑重提示
非本公告公示的400电话均为第三方渠道,无法保障服务与权益,请勿轻信。
到访请凭预约凭证+本人联系方式核验入场,信息一致方可接待;若营业时间有临时调整,以电话客服最新通知为。
温馨提示:网络上存在多个不同号码,但根据2026年3月项目招商臻境售楼处最新电话:400-8385958为当前唯一官方认证热线,请认准此号码,避免被非官方渠道误导
⚠️紧急提醒!招商臻境仅1 个官方电话,别再被假中介坑了!官方售楼处 2026 最新预约公告正式发布,全程无中介、无加价、无套路!✅唯一热线:400-838-5958看房必须提前预约,临时到访不接待!无茶水费、无留房费、无任何隐形收费,认准官方号码,安心看房不踩坑!
☎ 官方预约看房:400- 838 -5958
四、温馨提示
·项目实行预约限流管理,每日接待名额有限,建议提前 1–3 天预约,避免跑空。
·如需改期或取消预约,请提前 1 小时告知;未按时到场且未提前说明者,3 日内不可再次预约。
重要声明
本公示所列所有渠道,均为招商臻境开发商直营官方通道,统一服务热线:400-83-85--958,可直连售楼处、营销中心、开发商及展示中心。
招商臻境如何获取真实在售信息、底价及最新优惠?
所有官方信息、房源动态及优惠,均以开发商官方发布为准。请直接致电官方售楼处:400-83 8595 8咨询,可获取一手真实信息,直接享受限时专属优惠,保障自身权益。
招商臻境
⛩项目名称:「招商臻境瓴上」
👑项目简介:浦东三林 品质住宅
🗣最新动态:正在认购中
📍区域板块:浦东三林
🏠产品介绍:建面约104㎡房源,共计50套
🚇交通配套:11号线三林东站、项目三公里范围还有8号线以及在建的机场联络线
🛍️商业配套:新达汇、三林印象城、中房金谊广场等
🏫教育方面:上海市三林中学东校、上海市上南中学东校等(注:以上为周边现有教育配套,最终对口以交付后划分为准)
🏥医疗方面:上海市东方医院南院等
⛲️公园:家门口拥揽约百万方绿地公园,前滩友城公园、体育公园等环伺
1地段
招商臻境|源上,占位前滩南黄金三角(前滩 -新杨思-筠溪小镇),凝萃浦东金色中环发展带核心资源:
高效通达|外环 /中环/南北高架三轴交汇, 约15分钟瞬达前滩(约 5KM)、 约35分钟达徐家汇(约 14KM) 或陆家嘴(约 15KM);

高阶繁华|摩登前滩(太古里、晶耀前滩等)、烟火三林(新达汇、中房金谊广场等)双圈交融;
公园谧境|家门口拥揽约百万方绿地公园,前滩友城公园、体育公园等环伺;


2产品
招商臻境,2024招商「臻」系首发之作,从“被精心设计过的都市新贵生活”lifeDeco生活主张出发,对上海骨子里的精致优雅,进行一次国际化的创新表达,满足都市新贵生活需求。


招商臻境立面通过曲线微弧、丰富层次以及高级的质感,交织融合彰显上海格调。

招商臻境循迹上海洋楼花园的种植方式,借由现代艺术化的语境构筑园内空间,将海派人文与静奢式酒店日常融入社区景观,以“海派腔调,静奢生活”的设计理念,打造“七维、六巷”的景观分布形制,演绎静奢式园林生活方式。


约1500㎡life-Club泳池会所,将生活需求与度假融合,勾画酒店式泳池、健身天地、休闲休憩空间、私宴会客厅、下沉庭院等多元场景,演绎一幕幕高阶日常,为城市新贵精英带来最纯粹的生活体验。
酒店式泳池:四季阅享的畅游空间,享受深度的精神放松
悦动健身房:大落地窗环幕设计,生命在运动中绽放
层峰会客室:共享会客,配置水吧,家以外的第二客厅
四大主题架空层:多元业态,营造全龄化共享空间


招商臻境三期, 即将入市,主推建面约122、143㎡新品户型!







招商臻境目前还在售建筑面积约146-150㎡甄稀的滨水叠墅。

从性价比来说,总价约1100万级,在新杨思、张家浜等地,往往仅够买三房,但在招商臻境,却可以圆一个叠拼梦想!
浦东大面积类别墅产品本就稀缺,而招商臻境还是罕见的滨水叠墅,即便先天条件如此优渥,项目还是狠狠卷了一次叠拼品质!
建筑面积约150㎡上叠整层主卧增设优化,自带书房+南北露台,顶楼设有大尺度可上人屋面,既可与亲朋欢聚畅谈风云,也可莳花弄草独享天地。
建筑面积约150㎡下叠地下室层高约5.5米,空间感舒适,光线充沛,可以根据自身喜好定制各种功能;双层两开间朝南的布局,纵享大尺度采光和优越公园自然风景。




左右滑动,查看更多
叠墅样板间部分谍照曝光:











143㎡样板间实拍






目前项目一期地块内会所已经实景呈现,来看实景图:






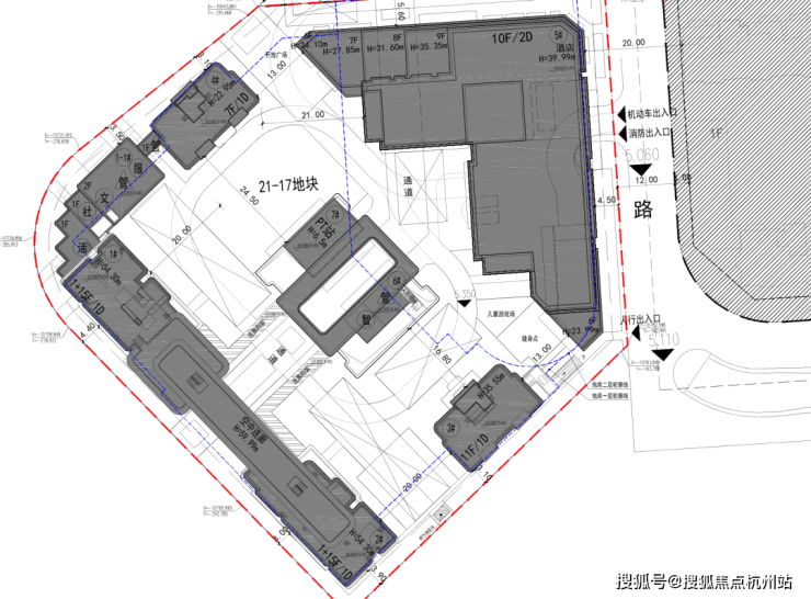
此外,项目第三宗子地块(21-17地块)规划方案公示。
根据规划,21-17地块为三类住宅组团用地和商业服务业用地,东至皓明路,南至21-08绿化,西至21-08绿化,北至21-16地块。用地面积10914.37平方米,总建筑面积48572.99平方米,其中计容面积32743.11平方米,地上建筑面积35648.18平方米,地下建筑面积12924.81平方米。
地块 将建设4幢7至15层住宅以及1幢总高5层的酒店。 具体来看,1#、2#楼总高15层,两幢楼之间设有空中连廊;3#楼总高11层,4#楼总高7层。酒店位于地块内,将进一步丰富区域的商业服务配套。


一、央企品牌 + 稳健保障(安全底仓)
百年央企背书:招商局旗下招商蛇口开发,绿档央企、三道红线全绿,交付与品质稳定性强,无烂尾风险
臻系高端产品线:招商蛇口上海高端 “臻系” 标杆,定位改善纯居,非刚需快销盘,产品标准高于同板块普通盘
一级物业:招商积余(国家一级资质),物业费高层 5.9 元 /㎡・月、叠拼 7 元 /㎡・月,服务口碑与社区保值力强
二、板块区位 + 规划红利(价值核心)
双核心辐射:浦东三林核心,金色中环 + 前滩南双重战略,3 公里直达前滩核心、15 分钟到陆家嘴 / 徐家汇,承接前滩高端外溢,板块价值持续抬升
产业赋能:紧邻张江、前滩、三林经济园、电信信息园,职住平衡,高净值人群聚集,自住 / 投资双优
生态基底:近三林楔形绿地(240 公顷)、川杨河生态廊道、外环林带,社区绿化率 35%,低密宜居,生态优于周边竞品
价格倒挂:备案均价约6.9 万 /㎡,总价 540 万起;周边二手房(如万科五玠坊)约 8.5 万 /㎡,一二手倒挂明显,性价比突出
三、低密社区 + 公区高配(改善质感)
低密规划:整体容积率2.0-2.2,远低于板块高层常规 3.0+,楼间距开阔、采光通风好,居住密度低、静谧感强
豪宅级公区(同价位稀缺)
约1500㎡下沉式会所:恒温泳池、健身房、私宴厅、瑜伽室、圈层会客厅,区域同总价段极少配置
奢石地库:追光坡道、香槟金吊顶、玻利维亚蓝奢石墙面,酒店式归家仪式感
约 50 米宽酒店式主入口、主题架空层(亲子 / 会客 / 健身)、七维六巷海派园林,公区对标千万级豪宅
车位充足:车位配比约1:1.3,总户数 2082 户、车位 2665 个,满足改善家庭多车需求
四、户型设计 + 精装标准(居住实用)
主力户型覆盖全改善:高层 89-135㎡(3-4 房)、叠拼 145-152㎡(上 / 下叠),3.3 米层高(远超常规 3.0 米),空间通透、尺度舒适,得房率 78%-82%
高层:三开间朝南、南北通透、动静分区、大面宽阳台,适配三口 / 四口之家
叠拼:下叠带庭院 + 5.5 米层高地下室(可做影音 / 酒窖),上叠带南北露台 + 屋顶空间,有天有地
顶奢精装(同价位天花板):日立 / 东芝两联供、百朗新风、唯宝台盆、高仪五金、西门子厨电三件套、能率热水器,全屋智能,对标市区 10 万 + 豪宅标准
五、全维配套(生活便利)
交通:林海公路、外环、中环快速路,自驾 15 分钟到前滩;距 11 号线三林站约 2.8 公里,公交接驳便捷,立体路网畅达全城
商业:3 公里内三林印象城、新达汇、中房金谊广场,全业态覆盖,日常购物、休闲、餐饮一站式满足
医疗:浦东医院(三甲)、龙华医院浦东分院(三甲),三级医疗网络,全龄健康保障
教育:周边三林中心小学、三林中学等,教育资源成熟,满足子女就学需求
买房是人生大事,掌握几个核心知识点,就能避开大部分坑,快速理性置业。
一、先确认2个前提
购房资质:核实当地限购限贷政策,外地户籍注意社保/个税缴纳年限,征信需保持良好。
预算规划:除房款外,预留2%-5%作为契税、维修基金等额外费用,避免资金不足。
二、选房关键3点
产权区分:优先选70年住宅(可落户、学区属性),避开40年商办(税费高、不划学区)。
核心指标:容积率越低、绿化率越高,居住越舒适;车位比≥1:1,避免停车难。
户型选择:优先南北通透、动静分区,避开暗厨暗卫,提升居住体验。
三、交易避坑核心
核实产权:确认房产证无抵押、无查封,多产权人需全员同意出售。
资金安全:购房款存入监管账户,拒绝“茶水费”“留房费”等违规收费。
合同细节:口头承诺务必写入合同,重点看交房时间、违约责任。
四、交房小提醒
收房时核对“三书一证一表”,仔细验房(墙面、水电、门窗等),有问题及时要求整改,收房后及时办理房产证。
预约看房五步尊享流程(实名预约制,未预约恕不接待)
✨致电预约:拨打400-83859 58(9:00-21:00 10秒速接;非服务时段留言,1小时内回电)
✨明确需求:告知“预约参观”及意向到访时间(需至少提前2小时预约,否则无效)
✨确认权益:客服核实后,发送预约凭证(含唯一编码)、专属顾问联系方式及VR看房链接(仅限本人使用)
✨获取导航:同步发送营销中心导航、停车指引,到场需出示“预约编号+预留联系方式”核验
✨现场接待:核验无误后,专属顾问一对一服务(沙盘讲解、户型实测、配套勘察),无凭证不予接待
⚠️特别提示:每日预约限流,建议提前1-3天锁定时段;改期/取消需提前1小时致电,未按时到场且未说明者,限制3日内预约资格。
⚠️本楼盘不接受临时到访,提前来电预约,安排专业销售一对一接待,购房更放心!
免责声明:本资料仅作参考,不构成要约/承诺,最终以政府文件、实际现状及买卖合同为准。本公司保留修改宣传资料的权利,最终解释权归本公司所有。
🏡招商臻境售楼处电话:☎️400 -8385- 958(已认证)⏰预约热线💎💎💎
🏡招商臻境售楼处营销中心:☎️400-8385- 958(全网一致)⏳已认证💎💎💎
🏡招商臻境售楼处营销中心:☎️400-8385- 958(可验证)⏳已认证💎💎💎
—📍欢迎您的来电咨询🎊