项目最小的别墅建面约190平,最大的别墅建面约达到1200平,共248套房源。550平只有2套,1200平只有1套,主力面积段集中在190-350平,主力总价段集中在3500-4500万。所以浦开江南里所处的…
浦东浦开江南里
浦东浦开江南里售楼处电话:400-8567-004【售楼中心】
咨询高峰期请耐心等待,预约来电尊享内部优惠,专业一对一热情服务,让您用专业眼光去买房
浦开江南里是容积率只有0.7的纯墅区,整体限高10米,中式园林的仪式感和规制,项目诠释的非常好。
浦东金桥低密别墅区

「浦开江南里」
建面约190-550㎡中式院墅
房源仅248套 · 首开了186套
2023年首开均价14.5万/平米

项目最小的别墅建面约190平,最大的别墅建面约达到1200平,共248套房源。550平只有2套,1200平只有1套,主力面积段集中在190-350平,主力总价段集中在3500-4500万。在东郊这样的总价门槛可谓非常低了!

上海一直有贵在西郊,富在东郊的说法。所以浦开江南里所处的东郊别墅区这一地段正是项目最大的优势。
浦开江南里紧邻内环,西面是汤臣高尔夫,东面是东郊宾馆,北面是张家浜。整个项目被一座待建的体育公园三面环绕,该体育公园占地面积达14.4万平,其中80%为绿地,20%为体育运动设施!

另外目前上海中环内纯别墅区几乎绝迹,绝大部分后续供应都是高低配。而浦开江南里是容积率只有0.7的中式纯墅区,项目的生态氛围又是一流,而且在内环旁占有如此丰富的绿地资源,收藏价值不言而喻!

同时,东郊别墅区豪宅林立,我们可以很轻易的找到项目的价格锚点。我们参考项目隔壁的云间绿大地,去年9月的网签单价已经超过25万。
浦东浦开江南里
浦东浦开江南里售楼处电话:400-8567-004【售楼中心】
咨询高峰期请耐心等待,预约来电尊享内部优惠,专业一对一热情服务,让您用专业眼光去买房

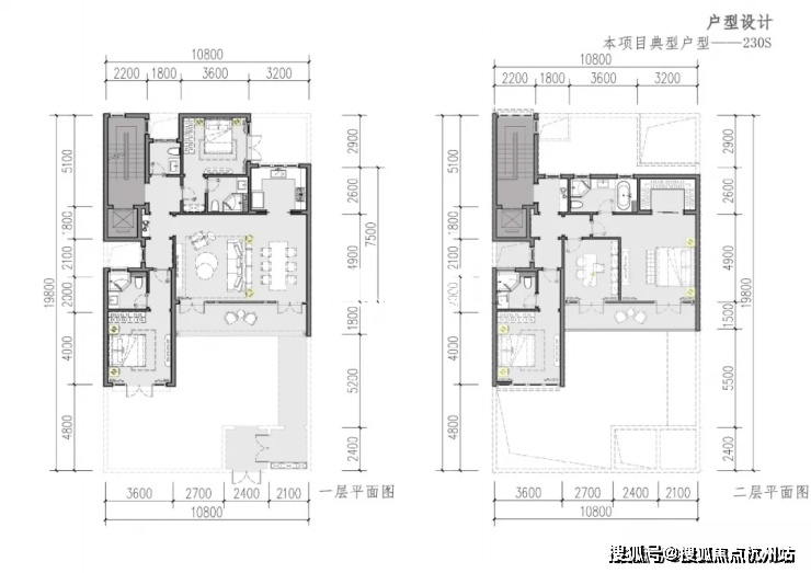
「浦开江南里」房源户型分布:
建面约190㎡(38套)
建面约230㎡(89套)
建面约280㎡(92套)
建面约350㎡(26套)
建面约550㎡(2套)
建面约1200㎡(1套)
共计248套房源




浦东浦开江南里
浦东浦开江南里售楼处电话:400-8567-004【售楼中心】
咨询高峰期请耐心等待,预约来电尊享内部优惠,专业一对一热情服务,让您用专业眼光去买房







浦东浦开江南里
浦东浦开江南里售楼处电话:400-8567-004【售楼中心】
咨询高峰期请耐心等待,预约来电尊享内部优惠,专业一对一热情服务,让您用专业眼光去买房
浦开江南里航拍图如下:




浦东东郊低密别墅区
「浦开江南里」
283㎡中式现房院墅直签出售
庭院150平地下室130平可做2层
283平出售样板间图片


浦东浦开江南里
浦东浦开江南里售楼处电话:400-8567-004【售楼中心】
咨询高峰期请耐心等待,预约来电尊享内部优惠,专业一对一热情服务,让您用专业眼光去买房





浦东浦开江南里
浦东浦开江南里售楼处电话:400-8567-004【售楼中心】
咨询高峰期请耐心等待,预约来电尊享内部优惠,专业一对一热情服务,让您用专业眼光去买房


浦东浦开江南里
浦东浦开江南里售楼处电话:400-8567-004【售楼中心】
咨询高峰期请耐心等待,预约来电尊享内部优惠,专业一对一热情服务,让您用专业眼光去买房
「浦开江南里」 毗邻东郊国宾馆及汤臣高尔夫别墅,周边云集众多高端别墅楼盘,墅居氛围浓厚,所以配套还是相对比较成熟。

🚇项目交通: 浦开江南里紧邻龙东高架,临近内环和中环,直线距离9号线蓝天路站约2公里、2号线张江高科站约1.3公里,出行便利。

🛍️项目商业: 周边有金桥购物中心、张江商业广场、浦东嘉里城、证大喜马拉雅中心、麦德龙等大型商场,满足日常购物娱乐需求。

🏫项目学校: 项目周边还有上海市实验学校东校、上海市进才实验小学,进才实验中学、张江集团学校、耀中国际学校这样一些学校。

🏥项目医疗: 周边有上海瑞东医院、上海中医药大学附属曙光医院(东院),还有众多社区卫生服务站,为业主的健康保驾护航。

浦东东郊低密别墅区
「浦开江南里」
二期即将加推190-280平联排
均价17.8万/平米
东郊稀缺中式合院别墅
浦东浦开江南里
浦东浦开江南里售楼处电话:400-8567-004【售楼中心】
咨询高峰期请耐心等待,预约来电尊享内部优惠,专业一对一热情服务,让您用专业眼光去买房。
郑重承诺:此房源信息真实有效,开发商直属全程营销策划,中介勿扰如有问题欢迎来电咨询,来电即可享受买房优惠!
1、本资料为要约邀请,不作为要约或承诺;买卖双方的权利义务以双方签订的《商品房买卖合同》及其补充协议、附件等书面文件为准;相关宣传内容不排除因政府相关规划、规定及出卖人分期规划、未能控制等原因发生变化;出卖人将!不定期对宣传材料进行修改,敬请留意最新资料。
2、图片来源于网络,仅作为推广示意使用;如涉及版权使用,请与我司联系。