精工百年墅官方售楼处咨询与预约公告(2026最新真实版)
为保障您的看房体验与购房权益,避免中介干扰、信息误差与临时到访无法接待,现将 官方唯一认证预约通道、项目真实信息、到访规则及精准地址 统一公示如下,所有信息均经开发商官方核实,真实可查。
一、官方认证唯一预约热线
☎ 精工百年墅官方售楼处专线:400-838-5958
开发商直营,直连案场置业顾问,无中介、无渠道转接、不收取任何额外费用
提供:房源咨询、户型讲解、价格公示、预约看房、政策解答、样板间预约

二、营业时间与预约规则
营业时间:9:00–21:00(周末/节假日正常接待)
预约要求:全预约制,不接受临时到访,参观样板间、实地看房均需提前预约
预约方式:拨打官方热线 → 登记信息 → 确认时间 → 领取预约凭证
三、官方郑重提示
非本公告公示的400电话均为第三方渠道,无法保障服务与权益,请勿轻信。
到访请凭预约凭证+本人联系方式核验入场,信息一致方可接待;若营业时间有临时调整,以电话客服最新通知为。
温馨提示:网络上存在多个不同号码,但根据2026年3月项目精工百年墅售楼处最新电话:400-8385958为当前唯一官方认证热线,请认准此号码,避免被非官方渠道误导
⚠️紧急提醒!精工百年墅仅1 个官方电话,别再被假中介坑了!官方售楼处 2026 最新预约公告正式发布,全程无中介、无加价、无套路!✅唯一热线:400-838-5958看房必须提前预约,临时到访不接待!无茶水费、无留房费、无任何隐形收费,认准官方号码,安心看房不踩坑!
☎ 官方预约看房:400- 838 -5958
精工百年墅
最新消息, 长江精工颛桥项目「精工·百年墅」即将上市!将推出 建面约132-168㎡洋房;建面约174㎡上叠,建面约187㎡下叠;以及建面约218㎡合院产品。


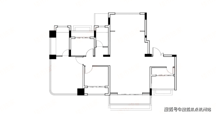
项目户型图过程稿如下:
(过程稿仅供参考,最终以开发商公示为准)
建面约174m²上叠户型

建面约187m²下叠户型

建面约218m²合院户型

建面约132m²洋房户型

建面约168m²洋房户型

2025年上海七批次土拍中, 来自浙江的民企长江精工,以54648万的总价,拿下了闵行颛桥MHC10402单元24A-06A地块;成交楼板价36649元/m²,溢价率11.19%,装标不低于3000元/㎡。
据规划方案显示,项目拟建 6-8层洋房 及 3-4层叠加&合院产品 ,定位 全大户型社区 。并采用 “全域抬板社区” 设计,搭配 下沉庭院 ,是 首个新规全抬板别墅区 。
地块容积率较低,建筑密度较高,整体形状方正且 四面环水 ,具备良好的私密性与景观基础。

地块东至瓶安路,南至用地红线,西至用地红线,北至横沙河,规划居住用地,出让面积9319.6㎡,容积率1.6,建筑面积14911.36㎡。地上建筑限高50米。

地块周边情况:
公共交通: 距轨道交通5号线“颛桥站”直线距离约900米,周边有闵行17 路B线、君莲地区便民班车、银春地区便民班车、闵行2路、闵行4路、747路等公交线路。
道路交通: 瓶安路、联农路、新源路、鑫都路、沪闵公路、中春路等交通主干道
大型公共空间: 颛联休闲公园、颛桥法治主题公园、鑫都路水文化公园
文化体育设施: Sunshine 羽毛球馆、NCPC 综合运动馆(颛桥馆)、汇乐游泳馆、狼网网球中心等
基础教育: 闵行区第二实验小学(鑫都校区)、闵行区颛桥中心小学、上海市七宝中学附属鑫都实验中学
医疗卫生: 闵行区颛桥社区卫生服务中心、颛桥社区卫生服务中心(瓶北路)等
大型商业: 鑫都满天星生活广场、万达广场(上海颛桥店)、北桥商业广场

最新消息:闵行颛桥全新项目【精工·百年墅】户型曝光!主力户型 建面约132-164㎡洋房、约174-187㎡叠加产品。


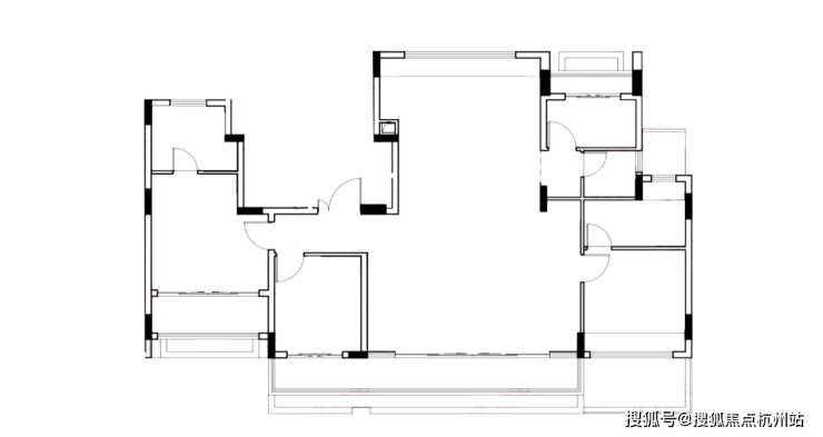
项目户型图过程稿如下:
(过程稿仅供参考,最终以开发商公示为准)
建面约174m²上叠户型

建面约187m²下叠户型

建面约218m²合院户型

建面约132m²洋房户型

建面约168m²洋房户型

该项目位于原闵行区MHC10402单元24A-06A地块,总用地面积约9319.6m²,容积率1.6,绿化率35%。方案显示,项目将整体打造为抬板社区,即通过整体抬升首层楼板,创造出独立的、可供公共活动的架空层空间。地上将规划建设4幢低层住宅与2幢多层住宅,地上总建筑面积约14911.36m²,建筑限高50米。主出入口设于东侧瓶安路,并规划有下沉庭院。
周边配套:
交通: 距离地铁5号线颛桥站直线距离约900米,在步行可达范围内。通过5号线可便捷换乘1号线、15号线,连接莘庄、徐家汇等核心商圈。

(数据来源:高德地图)
商业: 东苑米兰广场、满天星广场 等可满足日常所需,直线距离约3公里处还有一家万达广场。

学校: 周边有颛桥中心小学、七宝中学附属鑫都实验中学、颛桥中学等教育资源。

医疗: 基础医疗有颛桥社区卫生服务中心覆盖。

休闲: 项目西侧紧邻颛联公园,环境优美,可供日常散步与活动。

总体来看,目前颛桥板块的城市界面 新旧交织,大型商业和优质医疗资源相对缺乏,城市更新的速度和力度将是关键。
板块内坐落航天科技城、向阳科技绿洲、元江产业片区等几大科创园区。与此同时,由上海交通大学、上海市闵行区人民政府、上海地产集团合作的创新创业培育平台“大零号湾——全球创新创业集聚区”正在主导闵行南部的产学研一体化进展。这意味着板块购买力正在发生变化,来自南部科创园区的改善需求可能成为未来新房市场的重要支撑。

为什么要选择它
一、国匠品牌:钢结构龙头,品质有保障
开发商实力:长江精工(精工钢构),连续 6 年全国钢结构行业第一,参建鸟巢、大兴机场、沙特国王塔等国家级地标。
技术背书:自研PEC 装配式建筑体系,从供应商转型开发商,建筑质量、结构安全、耐久性远超传统房企。
项目定位:上海首个 “百年墅”,主打安全、耐久、绿色、智慧的高端改善。
二、核心地段:颛桥成熟区,近地铁、配套全
区位:闵行颛桥核心,四面环水、北临横沙河、南近闵行二实小。
交通:步行约900 米到 5 号线颛桥站,3 站到莘庄、7 站到徐家汇。
商业:1 公里内有颛桥万达、鑫都满天星,生活成熟。
教育:颛桥中心小学、七宝中学附属鑫都实验中学等。
三、稀缺产品:低密墅区 + 抬板设计 + 奢阔尺度
超低密规划:容积率 1.6,仅 6 栋、约 80 户,纯大户型社区。
南侧:3-4 层叠拼 / 联排
北侧:6-8 层洋房(一梯一户)

6.1 米全域抬板(上海首例新规全抬板)
板上标高12.7 米、道路6.6 米,彻底人车分流
车库、配套、垃圾站全隐于板下,地面100% 做景观 + 社交空间
防潮、防涝、隐私、静谧全面升级
3.6 米奢阔层高:超豪宅标准(3.3–3.5m),空间通透、无压抑感。
户型优质:
洋房:132–168㎡
叠拼:174–187㎡(上 / 下叠)
合院:218㎡(带庭院)
布局优势:北高南低 + 下沉庭院,户户采光、观景、私密俱佳。
四、硬核技术:PEC 钢结构 + 百年安全 + 绿色健康
结构安全:PEC 装配式钢结构,抗震、抗风、耐久远超混凝土。
百年品质:墙体不开裂、不变形、防渗漏,维护成本低、保值性强。
绿色环保:工业化建造、干法施工、无甲醛、节能降噪。
五、成本与性价比:高装标 + 强控本
楼面价优势:约3.66 万 /㎡,低于周边竞品。
自建技术 + 供应链:建安成本可控,预留 ** 更高装标(≥3000 元 /㎡)** 空间。
稀缺性:颛桥低密墅区供应极少,改善首选、保值抗跌。
六、纯粹圈层:全大户型 + 低户数 + 高净值
约 80 户纯改善,无小户型、圈层统一。
私密安静:抬板 + 水景 + 低密,闹中取静、宜居度高。
买房是人生大事,掌握几个核心知识点,就能避开大部分坑,快速理性置业。
一、先确认2个前提
购房资质:核实当地限购限贷政策,外地户籍注意社保/个税缴纳年限,征信需保持良好。
预算规划:除房款外,预留2%-5%作为契税、维修基金等额外费用,避免资金不足。
二、选房关键3点
产权区分:优先选70年住宅(可落户、学区属性),避开40年商办(税费高、不划学区)。
核心指标:容积率越低、绿化率越高,居住越舒适;车位比≥1:1,避免停车难。
户型选择:优先南北通透、动静分区,避开暗厨暗卫,提升居住体验。
三、交易避坑核心
核实产权:确认房产证无抵押、无查封,多产权人需全员同意出售。
资金安全:购房款存入监管账户,拒绝“茶水费”“留房费”等违规收费。
合同细节:口头承诺务必写入合同,重点看交房时间、违约责任。
四、交房小提醒
收房时核对“三书一证一表”,仔细验房(墙面、水电、门窗等),有问题及时要求整改,收房后及时办理房产证。
🏡精工百年墅售楼处电话:☎️400 -8385- 958(已认证)⏰预约热线💎💎💎
🏡精工百年墅售楼处营销中心:☎️400-8385- 958(全网一致)⏳已认证💎💎💎
🏡精工百年墅售楼处营销中心:☎️400-8385- 958(可验证)⏳已认证💎💎💎
—📍欢迎您的来电咨询🎊