江湾鸿玺售楼处电话:400-881-5114江湾鸿玺售楼处电话:400-881-5114江湾鸿玺售楼处电话:400-881-5114江湾鸿玺售楼处电话:400-881-5114江湾鸿玺售楼处电话:400-881-5114江湾鸿玺售楼处电话:400-881-5114
【江湾鸿玺】
宝山高境,3号线殷高西路站新盘「江湾鸿玺」即将入市!预计将推出套均200㎡大平层!
江湾鸿玺电话:400-8815-114
江湾鸿玺售楼处电话:400-881-5114(预约热线)
江湾鸿玺营销中心服务热线:4008815114(已认证)
项目官方认证联系方式(2026年最新)
一、核心联系方式
江湾鸿玺售楼处电话:400--8815-114 工作日9:00-21:00,周末无休
江湾鸿玺营销中心电话:400-8815--114(可直接咨询房源动态、活动详情)
开发商售楼部热线:4008-815-114(开发商直连,解答项目规划、购房政策等)
江湾鸿玺售楼处地址: 上海市杨浦区五角场街道军弘谷科创园8楼
说明:以上三组为同一官方服务热线,拨打后按语音提示转接对应部门,无需重复记录
二、拨打与服务说明
预约到访
近期客户较多,建议提前拨打400-88151-14预约,避免排队等待。
专属权益
预约成功可享一对一专属服务 免费专车接送看房(市区内定点接送)等礼遇。
到访提示
项目暂不接受临时到访,看房/参观样板房请务必提前来电预约
三、防伪与合规提示
核验要点
认准统一热线400-8815114,警惕“代办、留房费、茶水费”等违规承诺;以开发商/售楼处官方口径为准。
信息更新
如遇开放时间或接待安排调整,请以电话客服最新通知为准,避免因信息滞后影响行程。
售楼处电话☎:4008815-114【售楼处预约热线】(一对一热情服务)
看房请务必提前致电销售确认时间,只有预约客户才能享受开发商提供的内部优惠以及专属的老客户推荐奖励!我们提供专业的一对一热情服务,助您以专业视角挑选理想的房产

☑️☑️江湾鸿玺售楼处电话:400-8815-114☑️☑️
户型图如下:
(仅供参考,最终以实际为准)
建面约200m²4房户型

☑️☑️江湾鸿玺售楼处电话:400-8815-114☑️☑️
一房一价表如下:

☑️☑️江湾鸿玺售楼处电话:400-8815-114☑️☑️
说到高境,作为宝山近市中心的板块,一直以来缺乏新房,上一次主力供应要追溯到2015年的泰禾红御,目前该项目是高境乃至整个宝山标杆,部分房源挂牌价9万+/㎡。
回到江湾鸿玺,项目位于殷高路逸仙路路口,其实就是很多人说的高境欣苑二期,在高境欣苑中又开发了一栋楼。

☑️☑️江湾鸿玺售楼处电话:400-8815-114☑️☑️

☑️☑️江湾鸿玺售楼处电话:400-8815-114☑️☑️

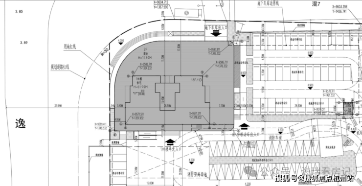
首层为商业配置,未来将引入运动健身、休闲会馆、便利商超等功能设施,物业提供24H管家式服务。
规划设计图:

☑️☑️江湾鸿玺售楼处电话:400-8815-114☑️☑️
我们放大看:这栋楼共18层,估计2梯2户,据悉首层为商业配置,将来可能引进运动健身、休闲会馆、便利商超等。
还有两套自持,所以可售为32套,户型为建面约200㎡大平层。

☑️☑️江湾鸿玺售楼处电话:400-8815-114☑️☑️
项目距离3号线殷高西路站仅100米,1公里直达18号线殷高路站,双轨并行锋速通达的时间效率;书香萦绕的教育高地,科创引领、产业先行的核心经济圈。此外,通过逸仙路高架,可以提升通行时效,快速连接五角场合生汇、百联又一城、万达广场、虹口龙之梦等中大型商业综合体。

☑️☑️江湾鸿玺售楼处电话:400-8815-114☑️☑️
生活配套成熟,项目西侧就是一个商场,吃喝玩乐都能满足,新业坊·源创潮流、精致元素的加持也为板块注入更多活力。
殷高西路上还有永辉、长江国际、景瑞生活广场等,生活很方便。

☑️☑️江湾鸿玺售楼处电话:400-8815-114☑️☑️
另外,紧邻逸仙高架路+3号线,可能会有一定噪音,同时处于交通要道五岔路口,这里的车流量、人流量非常大,拥堵情况比较严重。
3号线殷高西路地铁口
「江湾鸿玺」持续热销中!
32套建面约200㎡大平层
均价7.69万/㎡!总价1480万起
售楼处线上火热预约中!

当下,房地产已步入自住改善的时代。 除了更大的居住空间、更高的居住品质、更好的装修标准等产品力的加强, 改善客户想要买入核心地段,那真的要趁早了!

☑️☑️江湾鸿玺售楼处电话:400-8815-114☑️☑️
整个高境、淞南、五角场、新江湾等北中环之上的区域,都已断供许久。 今年终于迎来新房供应,但淞南新地块过会价格达到7万左右,而与杨浦、虹口近在咫尺的江湾鸿玺,未来售价仅在7字头,性价比不言而喻!

☑️☑️江湾鸿玺售楼处电话:400-8815-114☑️☑️
上海土拍取消地价上限之后,对装标等有了高品质的要求,核心地段的珍藏地块接连亮相,新地块普遍高溢价成交,楼面价屡创新高。
尤其是中环沿线,续徐汇滨江之后,长宁天山,静安大宁,杨浦滨江,浦东北蔡、新杨思等区域相续迎来单价“地王”,未来售价不断加码。
不难发现,中环沿线未来起步价格将会是10万+/㎡!

☑️☑️江湾鸿玺售楼处电话:400-8815-114☑️☑️
区位示意图,数据来源上海土地市场
再来看中环沿线新房价格当前的格局。规划强势的如徐汇长桥,三林滨江,静安大宁,杨浦滨江等,价格全面突破11万+/㎡。
☑️☑️江湾鸿玺售楼处电话:400-8815-114☑️☑️
地段核心的如长宁天山、西郊等,价格普遍在约11.8万+/㎡;
即使是闵行七宝、杨浦长海街道等,价格也普遍在10万/㎡左右。
不难发现, 中环沿线的产品,起步总价至少要千万级,想要买大面积改善户型,总价或将达到2000万左右!

区位示意图,数据来☑️☑️江湾鸿玺售楼处电话:400-8815-114☑️☑️源网上房地产
在如今普遍约10万+的上海中环沿线,以1500万级的价格就能买建面约200㎡起大4房,目前只有江湾鸿玺一盘。
目前,建面约200㎡以上的改善大户型主要集中在内环内,总价动辄3000万起步,是真正的顶豪产品。
江湾鸿玺主推建面约200 ㎡豪装大4房,仅有32席位,总价在1500万级,或是中环旁错过不再有的“一步到位”纯改善产品。

区位示意图,数据来源网上房地产
另外,真正的改善产品属于置换塔尖,天生具有臻稀属性。
据链家数据显示,全市建面约200㎡起的改善产品,站在置换链的塔尖,仅有5157套挂牌,占比不足5%,臻稀程度不言而喻。
☑️☑️江湾鸿玺售楼处电话:400-8815-114☑️☑️

数据来源链家,截止时间2025/4/28
过去两年的二手房市场是非常动荡的, 尤其是2023年二手房成交价剧烈下挫 ,让不少人丧失买房信心。 但在这样的环境中,建面约200㎡起的大户型却表现得极为坚挺,甚至成交均价抬高了不少。

☑️☑️江湾鸿玺售楼处电话:400-8815-114☑️☑️
数据来源网上房地产

☑️☑️江湾鸿玺售楼处电话:400-8815-114☑️☑️
所以,论稀缺性和性价比,江湾鸿玺总价1500万级的建面约200㎡豪装大4房,在中环沿线几乎就是独角兽般的存在。也是整个北上海难得的终极改善项目;均价7.69万/㎡!
项目的高人气是必然的,因为这可能是整个上海中环旁建面约200㎡起改善产品门槛级的价格了,真正的错过再无。
☑️☑️江湾鸿玺售楼处电话:400-8815-114☑️☑️


☑️☑️江湾鸿玺售楼处电话:400-8815-114☑️☑️


☑️☑️江湾鸿玺售楼处电话:400-8815-114☑️☑️
一房一价表如下:

☑️☑️江湾鸿玺售楼处电话:400-8815-114☑️☑️

☑️☑️江湾鸿玺售楼处电话:400-8815-114☑️☑️
总共32套房源,两梯两户配置
户型为建面约200㎡4房3卫大平层。
户型设计上,类一梯一户,方厅近50㎡,主卧超级套房。

☑️☑️江湾鸿玺售楼处电话:400-8815-114☑️☑️
⬇️专业销售一对一咨询⬇️
耐心等待官方VIP客户经理回电
品质方面有三点值得一提:
1、精装高标准, 据悉采用精雕铝板装甲入户门、耶鲁智能门锁、博世内嵌冰箱、玫瑰岛淋浴房、大金中央空调及地暖、格力空气能全屋循环热水系统、唯宝台盆、汉斯格雅龙头等。还搭载罗格朗全屋智能系统。


☑️☑️江湾鸿玺售楼处电话:400-8815-114☑️☑️


☑️☑️江湾鸿玺售楼处电话:400-8815-114☑️☑️

2、时尚的底层泛会所服务, 项目底层意向配备咖啡厅、洗衣房、健身空间、美容服务等商服功能(洽谈中,最终以实际为准),为业主提供更便捷精致的生活方式。

☑️☑️江湾鸿玺售楼处电话:400-8815-114☑️☑️

仅作示意,以最终交付为准
3、搭载万物梁行高端品牌物业顾问,万科上海在地优势+戴德梁行国际化视野,提供贴心管家式物业服务,7x24h全时守护。

☑️☑️江湾鸿玺售楼处电话:400-8815-114☑️☑️
配套方面:江湾鸿玺西侧就是3号线殷高西路地铁口,一路直达虹口足球场、鲁迅公园,换乘去市中心很方便。东面直线约1公里处有18号线殷高路站。门口还有99路公交车直达五角场。

自驾便捷, 逸仙路高架上下匝道就在小区门口,往东南西北出行都非常方便。

☑️☑️江湾鸿玺售楼处电话:400-8815-114☑️☑️
生活配套非常成熟, 新业坊·源创就在西侧,吃喝玩乐都能满足,潮流、精致元素也为板块注入更多活力。殷高西路上还有永辉、长江国际、景瑞生活广场等商业。如果要大商圈,项目自驾到五角场商圈、宝山万达、悠方购物中心、大宁商圈、虹口龙之梦也十分便捷。
休闲方面, 项目离新江湾湿地很近,周边还有新江湾体育场、高境纪念广场、彩虹湾公园等。

☑️☑️江湾鸿玺售楼处电话:400-8815-114☑️☑️
☑️☑️江湾鸿玺售楼处电话:400-8815-114☑️☑️
3号线殷高西路地铁口「江湾鸿玺」建面约200㎡大平层,均价7.69万/㎡
当下,房地产已步入自住改善的时代。 除了更大的居住空间、更高的居住品质、更好的装修标准等产品力的加强, 改善客户想要买入核心地段,那真的要趁早了!

☑️☑️江湾鸿玺售楼处电话:400-8815-114☑️☑️
江湾 ——这片历经千年沉淀的土地,始终是上海城市文明的重要注脚。
南宋初年,江湾镇以“铜江湾”的盛誉崛起,成为商贾云集的繁华市镇,青石板路上回响着岁月的足音。
时光流转至近代,这里又见证了城市发展的沧桑变迁,老厂房、石库门里弄等历史遗存,勾勒出独特的海派风情。
如今,在 “南北转型” 的战略机遇下,江湾迎来了 2.0时代 的华丽蜕变。
作为上海科创中心主阵地的重要组成部分,这里正以高新技术产业为引擎,吸引着科创人才与资本的集聚。
新江湾城国际住区的生态智慧底色,五角场科创商圈的创新活力,共同勾勒出江湾“历史与未来共生”的独特气质。
【江湾鸿玺】 落子于此, 既承接了千年古镇的人文厚度,又坐拥城市发展的时代红利,成为连接过去与未来的人居枢纽。

☑️☑️江湾鸿玺售楼处电话:400-8815-114☑️☑️

整个高境、淞南、五角场、新江湾等北中环之上的区域,都已断供许久。 今年终于迎来新房供应,但淞南新地块过会价格达到7万左右,而与杨浦、虹口近在咫尺的江湾鸿玺,未来售价仅在7字头,性价比不言而喻!

☑️☑️江湾鸿玺售楼处电话:400-8815-114☑️☑️
上海土拍取消地价上限之后,对装标等有了高品质的要求,核心地段的珍藏地块接连亮相,新地块普遍高溢价成交,楼面价屡创新高。
尤其是中环沿线,续徐汇滨江之后,长宁天山,静安大宁,杨浦滨江,浦东北蔡、新杨思等区域相续迎来单价“地王”,未来售价不断加码。
不难发现,中环沿线未来起步价格将会是10万+/㎡!

☑️☑️江湾鸿玺售楼处电话:400-8815-114☑️☑️
区位示意图
再来看中环沿线新房价格当前的格局。规划强势的如徐汇长桥,三林滨江,静安大宁,杨浦滨江等,价格全面突破11万+/㎡。
地段核心的如长宁天山、西郊等,价格普遍在约11.8万+/㎡;
即使是闵行七宝、杨浦长海街道等,价格也普遍在10万/㎡左右。

不难发现, 中环沿线的产品,起步总价至少要千万级,想要买大面积改善户型,总价或将达到2000万左右!

☑️☑️江湾鸿玺售楼处电话:400-8815-114☑️☑️
区位示意图
在如今普遍约10万+的上海中环沿线,以1500万级的价格就能买建面约200㎡起大4房,目前只有江湾鸿玺一盘。
目前,建面约200㎡以上的改善大户型主要集中在内环内,总价动辄3000万起步,是真正的顶豪产品。
江湾鸿玺主推建面约200 ㎡豪装大4房,仅有32席位,总价在1500万级,或是中环旁错过不再有的“一步到位”纯改善产品。

☑️☑️江湾鸿玺售楼处电话:400-8815-114☑️☑️
区位示意图
另外,真正的改善产品属于置换塔尖,天生具有臻稀属性。
据链家数据显示,全市建面约200㎡起的改善产品,站在置换链的塔尖,仅有5157套挂牌,占比不足5%,臻稀程度不言而喻。

☑️☑️江湾鸿玺售楼处电话:400-8815-114☑️☑️
过去两年的二手房市场是非常动荡的, 尤其是2023年二手房成交价剧烈下挫 ,让不少人丧失买房信心。 但在这样的环境中,建面约200㎡起的大户型却表现得极为坚挺,甚至成交均价抬高了不少。


☑️☑️江湾鸿玺售楼处电话:400-8815-114☑️☑️
所以,论稀缺性和性价比,江湾鸿玺总价1500万级的建面约200㎡豪装大4房,在中环沿线几乎就是独角兽般的存在。也是整个北上海难得的终极改善项目;均价7.69万/㎡!
项目的高人气是必然的,因为这可能是整个上海中环旁建面约200㎡起改善产品门槛级的价格了,真正的错过再无。

☑️☑️江湾鸿玺售楼处电话:400-8815-114☑️☑️


☑️☑️江湾鸿玺售楼处电话:400-8815-114☑️☑️
一房一价表如下:

总共32套房源,两梯两户配置
户型为建面约200㎡4房3卫大平层。
户型设计上,类一梯一户,方厅近50㎡,主卧超级套房。

☑️☑️江湾鸿玺售楼处电话:400-8815-114☑️☑️
项目高定奢标严选全球高端旗舰品牌,交付标准包括弗兰卡、唯宝、耶鲁、汉斯格雅、大金、玫瑰岛、博世、书香门地等国内外知名品牌,精致感和奢华感拉满。这都是市面上10万/㎡+的豪宅用的。

1、精装高标准, 据悉采用精雕铝板装甲入户门、耶鲁智能门锁、博世内嵌冰箱、玫瑰岛淋浴房、大金中央空调及地暖、格力空气能全屋循环热水系统、唯宝台盆、汉斯格雅龙头等。还搭载罗格朗全屋智能系统。

☑️☑️江湾鸿玺售楼处电话:400-8815-114☑️☑️
客餐厅区域,餐厅、电视背景墙面都是石材的,地面是瓷砖铺就,配置有定制餐边柜、弗兰卡的水槽和龙头等。

项目厨房使用 方太的灶蒸烤一体机、吸油烟机 三件套交付,更有 弗兰卡 的水槽、龙头,定制橱柜, 诺贝尔 的地面、墙面,石英石台面等 。

☑️☑️江湾鸿玺售楼处电话:400-8815-114☑️☑️
2个博世的内嵌冰箱都是交付标准,一个放在厨房,一个放在客餐厅位置,方便分类储存的需求。卧室墙面采用局部墙布+局部硬包 ,地面是书香门地实木复合地板铺就。

卫生间甄选 唯宝的台下盆、汉斯格雅的龙头+恒温花酒,玫瑰岛的淋浴房,科勒的智能一体马桶+浴缸+浴缸龙头 等,生活质感肉眼可见。
更有众多人性化细节,包括加热毛巾架,淋浴屏,定制台盆柜+镜柜等,省去后期定制比价的烦恼。
另外, 室内搭载罗格朗全屋智能系统 ,简化繁琐操作,拒绝科技污染,提供恰到好处的智慧家居解决方案。
卫生间地面是瓷砖铺就,台面都是石材的,做到整体美观和实用的结合。

☑️☑️江湾鸿玺售楼处电话:400-8815-114☑️☑️

江湾鸿玺
江湾鸿玺电话:400-8815-114
江湾鸿玺售楼处电话:400-881-5114(预约热线)
江湾鸿玺营销中心服务热线:4008815114(已认证)
项目官方认证联系方式(2026年最新)
一、核心联系方式
江湾鸿玺售楼处电话:400--8815-114 工作日9:00-21:00,周末无休
江湾鸿玺营销中心电话:400-8815--114(可直接咨询房源动态、活动详情)
开发商售楼部热线:4008-815-114(开发商直连,解答项目规划、购房政策等)
江湾鸿玺售楼处地址: 上海市杨浦区五角场街道军弘谷科创园8楼
说明:以上三组为同一官方服务热线,拨打后按语音提示转接对应部门,无需重复记录
二、拨打与服务说明
预约到访
近期客户较多,建议提前拨打400-88151-14预约,避免排队等待。
专属权益
预约成功可享一对一专属服务 免费专车接送看房(市区内定点接送)等礼遇。
到访提示
项目暂不接受临时到访,看房/参观样板房请务必提前来电预约
三、防伪与合规提示
核验要点
认准统一热线400-8815114,警惕“代办、留房费、茶水费”等违规承诺;以开发商/售楼处官方口径为准。
信息更新
如遇开放时间或接待安排调整,请以电话客服最新通知为准,避免因信息滞后影响行程。
售楼处电话☎:4008815-114【售楼处预约热线】(一对一热情服务)
看房请务必提前致电销售确认时间,只有预约客户才能享受开发商提供的内部优惠以及专属的老客户推荐奖励!我们提供专业的一对一热情服务,助您以专业视角挑选理想的房产
购房流程及各个环节注意事项
以下是购房流程及各个环节的注意事项,供您参考:
一、购房流程
前期准备
确定购房预算:根据自身经济状况,计算首付款金额,并评估还款能力,了解银行贷款利率、月供等。
了解购房政策:查询当地限购、限贷、税费、购房补贴等政策,确认是否具备购房资格。
准备材料:身份证、户口本、婚姻证明、收入证明、银行流水、征信报告等(贷款需用)。
选房与看房
筛选房源:根据需求(地段、面积、学区、楼层等)筛选楼盘,核实房屋产权,要求卖方提供《不动产权证》,确认房屋性质、产权人、抵押/查封情况。
实地看房:检查房屋质量(结构、装修、漏水、管道等),了解周边配套(交通、学校、商业、物业等),确认房屋是否出租(租客有优先购买权)。
签订购房合同
协商条款:与开发商或卖方协商价格、付款方式(全款/贷款)、交房时间、户口迁出、税费承担等,明确违约责任(如贷款失败、房屋瑕疵等处理方式)。
支付定金:定金一般不超过总房款的20%,签订《定金协议》或直接写入合同,要求卖方出具收据,注明“定金”字样。
签订正式合同:使用当地房管部门提供的《商品房买卖合同》范本,补充细节,中
贷款申请(如需)
提交贷款材料:买方需提供身份证、收入证明、银行流水、购房合同等,卖方需提供房产证、身份证、收款账户等。
银行审批:银行审核通过后,买方与银行签订《贷款合同》,办理抵押登记(银行代办或自行办理)。
资金监管与过户
办理资金监管:房款通过银行或第三方监管账户支付,避免风险,过户完成后,监管账户放款给卖方。
缴纳税费:买方需缴纳契税(1%-3%)、印花税(0.05%),卖方需缴纳增值税(满2年免征)、个人所得税(1%或差额20%)、土地出让金(如土地性质为划拨),具体税费因城市、房屋性质而异。
办理过户:双方携带材料到不动产登记中心办理,领取新《不动产权证》(买方名下)。
房屋交接
结清费用:确认物业费、水电燃气费、暖气费等无拖欠,保留缴费凭证,要求卖方提供最后一次缴费单据。
交房验收:核对房屋现状是否与合同一致,清点附属设施(家具、家电等),交接钥匙、门禁卡、水电卡等。
户口迁移:要求卖方迁出户口,避免纠纷(可约定违约金)。
后续事项
办理物业更名,更新水电燃气账户。
保存所有交易文件(合同、票据、证件复印件等)。
若需装修,提前向物业报备。
二、各个环节注意事项
前期准备
确认购房资格:不同城市限购政策不同,需提前了解社保、户籍、婚姻状况等要求。
评估还款能力:合理规划月供,避免因还款压力过大影响生活质量。
准备材料:确保材料真实、完整,避免因材料问题影响贷款审批或交易进度。
选房与看房
核实产权:通过不动产登记中心查询房屋权属、抵押、查封情况,避免购买到有产权纠纷的房屋。
关注房屋质量:检查房屋结构、装修、防水、管道等,避免购买到有质量问题的房屋。
了解周边配套:交通、学校、商业、医疗等配套是否完善,影响居住体验和房屋价值。
签订购房合同
仔细阅读合同条款:重点关注价格、付款方式、交房时间、违约责任等条款,避免合同中存在不公平或模糊的条款。
明确违约责任:如贷款失败、房屋质量问题、逾期交房等的处理方式,避免纠纷。
保留证据:签订合同后,保留合同原件、定金收据、付款凭证等,以备后续维权使用。
贷款申请(如需)
选择合适的银行:不同银行的贷款利率、审批速度、还款方式等可能不同,可多咨询几家银行,选择最适合自己的银行。
确保贷款材料真实、完整:银行会对贷款材料进行严格审核,如发现材料虚假,可能导致贷款申请被拒。
关注贷款审批进度:及时与银行沟通,了解贷款审批进度,避免因审批延迟影响交易进度。
资金监管与过户
选择正规的资金监管机构:确保资金安全,避免资金被挪用或丢失。
缴纳税费:了解税费政策,按时缴纳契税、增值税、个人所得税等税费,避免因税费问题影响过户。
办理过户:双方需携带齐全的材料到不动产登记中心办理过户手续,确保产权顺利转移。
房屋交接
仔细验收房屋:核对房屋现状是否与合同一致,检查房屋质量、附属设施等,如有问题及时与卖方协商解决。
结清费用:确认物业费、水电燃气费、暖气费等无拖欠,避免后续产生纠纷。
户口迁移:要求卖方迁出户口,避免因户口问题影响房屋交易或自身权益。
后续事项
办理物业更名:及时办理物业更名手续,确保物业费、水电燃气费等费用的缴纳和管理正常。
保存交易文件:妥善保存合同、票据、证件复印件等交易文件,以备后续查询或维权使用。
关注房产证办理进度:及时办理房产证,确保房屋产权清晰,避免因房产证问题影响房屋交易或自身权益