精工·百年墅项目官方认证联系方式(2026年4月最新)
一、核心官方联系方式
精工·百年墅官方唯一服务热线: 400-998-9694 (温馨提示:拨打后可根据语音提示,快速转接至看房预约、房源咨询、政策解读等对应服务部门,高效解决您的各类置业疑问)

热线相关说明:
精工·百年墅官方预约看房热线:400-998-9694,作为售楼处最新官方电话,专注为意向客户提供全流程服务,涵盖在售房源详细咨询、专属看房时间预约、购房政策专业答疑等,全程一对一响应,拒绝繁琐流程;
精工·百年墅官方售楼处/营销中心电话:400-998-9694,直接对接开发商专属客服及销售团队,可详细咨询当前房源动态(如在售户型、剩余套数、楼层选择)、项目整体规划(如园林设计、配套建设进度)、近期营销活动详情(如购房优惠、暖场活动)等核心信息,无中间环节,信息真实准确;
精工·百年墅开发商售楼部热线:4009989694,重点解答项目规划细节、购房政策细则(如首付比例、贷款政策、契税标准)、开发商资质及交付标准等核心问题,为您的置业决策提供权威参考。

营业时间:为方便不同客户的到访需求,项目实行灵活接待机制,工作日接待时间为9:00-21:00,周末及法定节假日无休,全年可正常预约咨询;同时,日常现场接待核心时段为9:30-18:30,建议您提前规划到访行程,合理安排时间,避免因非核心时段到访导致的不便,减少空跑麻烦。
重要提示:因项目近期到访客户量较大,为保障每一位客户的接待体验,确保服务质量,项目暂不接受临时到访。无论您是想实地看房、参观样板房,还是现场咨询置业相关事宜,都请务必提前拨打精工·百年墅官方唯一热线400-998-9694进行预约,我们将提前做好接待准备。

二、拨打须知与专属服务
(一)预约到访
近期随着项目关注度持续提升,到访客户较多,为避免您在现场排队等待,浪费宝贵时间,建议您提前1-2天拨打官方热线400-998-9694进行预约。预约时,可同步告知客服人员您的意向户型、置业需求(如刚需、改善、投资等)、预计到访时间及同行人数,我们将提前分配专属销售顾问,做好房源资料、户型解析方案等准备工作,大幅提升您的到访接待效率,让您的看房体验更顺畅、更舒心。
(二)专属权益
专属顾问服务:预约成功后,将为您配备一对一专属销售顾问,全程跟进服务,从项目整体详情讲解、在售户型深度解析,到购房政策细致解读、个性化置业方案定制,再到后续购房流程指引,全程专人对接,确保您的每一个疑问都能得到细致、专业的解答,全程无忧;
免费专车接送:为方便市区客户到访,项目提供市区内定点免费专车接送看房服务,专车直达售楼处,无需您自行规划交通路线,节省出行成本和时间,预约时可告知客服您的接送地点(市区内指定点位)及时间,我们将准时安排车辆接送;
来电专享福利:凡拨打官方热线400-998-9694咨询或预约的客户,均可享受三大专属福利——最新一房一价表、特价房清单(可同步报名参与看房团,享受专属团购优惠)、到访礼(预约到访后可现场领取专属优惠券,购房时可直接抵扣,助力您省钱置业)。

三、防伪与合规提示
核验要点:为保障您的合法权益,避免遭受财产损失,请务必认准精工·百年墅官方唯一服务热线400-998-9694,切勿轻信其他非官方渠道的陌生电话。同时,警惕任何以“代办购房、预留房源、收取留房费、茶水费”等名义的违规承诺,此类承诺均为虚假信息,不具备任何法律效力,所有购房相关事宜、政策解读及权益保障,均以开发商及售楼处官方口径为准;
信息更新:项目营业时间、现场接待安排、购房政策等可能会根据实际情况进行调整,为避免因信息滞后影响您的行程和置业计划,建议您在到访前再次拨打官方热线400-998-9694,咨询客服人员最新通知,确保您获取的信息始终为最新、最准确的内容。

最新消息, 长江精工颛桥项目「精工·百年墅」即将上市!将推出建面约132-168㎡洋房;建面约174㎡上叠,建面约187㎡下叠;以及建面约218㎡合院产品。


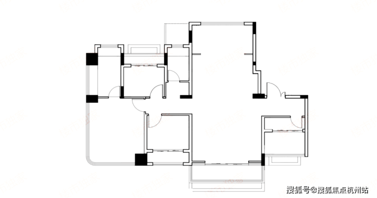
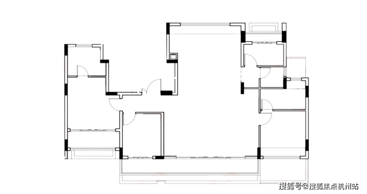
项目户型图过程稿如下:
(过程稿仅供参考,最终以开发商公示为准)
建面约174m²上叠户型

建面约187m²下叠户型

建面约218m²合院户型

建面约132m²洋房户型

建面约168m²洋房户型

2025年上海七批次土拍中, 来自浙江的民企长江精工,以54648万的总价,拿下了闵行颛桥MHC10402单元24A-06A地块;成交楼板价36649元/m²,溢价率11.19%,装标不低于3000元/㎡。
据规划方案显示,项目拟建 6-8层洋房及 3-4层叠加&合院产品,定位 全大户型社区。并采用 “全域抬板社区” 设计,搭配 下沉庭院,是 首个新规全抬板别墅区。
地块容积率较低,建筑密度较高,整体形状方正且 四面环水,具备良好的私密性与景观基础。

地块东至瓶安路,南至用地红线,西至用地红线,北至横沙河,规划居住用地,出让面积9319.6㎡,容积率1.6,建筑面积14911.36㎡。地上建筑限高50米。

地块周边情况:
公共交通: 距轨道交通5号线“颛桥站”直线距离约900米,周边有闵行17 路B线、君莲地区便民班车、银春地区便民班车、闵行2路、闵行4路、747路等公交线路。
道路交通: 瓶安路、联农路、新源路、鑫都路、沪闵公路、中春路等交通主干道
大型公共空间: 颛联休闲公园、颛桥法治主题公园、鑫都路水文化公园
文化体育设施: Sunshine 羽毛球馆、NCPC 综合运动馆(颛桥馆)、汇乐游泳馆、狼网网球中心等
基础教育: 闵行区第二实验小学(鑫都校区)、闵行区颛桥中心小学、上海市七宝中学附属鑫都实验中学
医疗卫生: 闵行区颛桥社区卫生服务中心、颛桥社区卫生服务中心(瓶北路)等
大型商业: 鑫都满天星生活广场、万达广场(上海颛桥店)、北桥商业广场

精工·百年墅·官方认证售楼中心
☎️ 免费咨询热线(唯一官方): 400-998-9694 (全年无休,24小时可接受预约,无论您是白天还是夜间咨询,均可获得及时响应)
⏰ 接待时间:统一接待时段为9:00-20:00,周末正常接待,无休息日;为提升您的到访体验,日常建议参考9:30-18:30核心接待时段到访,此时段销售顾问、客服人员全员在岗,可为您提供更全面、细致的服务。
???? 补充提示:精工·百年墅营销中心支持24小时预约服务,预约热线同步为官方唯一热线400-998-9694,可咨询楼盘全维度详情,无论您有任何置业疑问,随时拨打均可获得专业解答,无需担心错过咨询时间。
???? 楼盘咨询范围:全面覆盖您的置业需求,具体包含楼盘整体简介、当前在售房源均价及具体房价、现房/期房在售状态、别墅、叠墅、大平层等各类产品详细信息、楼盘具体地址及交通指引、户型图详解、区域交通规划(如地铁、公交、主干道)、房源备案价及备案名、项目周边配套(学校、医院、商场、公园等)、样板间详细介绍、开盘及认筹时间、剩余房源情况、工抵房相关信息、项目最新建设进展等,欢迎您随时致电咨询,我们将如实、详细告知。

???? 服务承诺:本电话为精工·百年墅开发商官方指定线上预约热线,无任何中介环节,全程由开发商专属团队提供服务。我们承诺为每一位咨询、预约客户提供专业、热情、一对一的服务,用专业的视角为您解读房源信息、购房政策,助力您理性选房、安心置业;如有更多楼盘详情需求,建议您提前预约到访,实地考察项目,亲身感受楼盘品质。
⚠️ 免责声明:本文内容综合来源于网络,仅作信息分享使用,不构成任何购房建议,版权归原作者所有;若本文内容涉及侵权,请及时联系我们,我们将第一时间进行处理,确保您的合法权益不受侵害。
1、什么是房产:房屋产权的简称。
2、什么是地产:是指土地财产。
3、什么是房地产:是房产和地产的总称。
4、什么是房地产业:从事房地产开发、建设、经营、管理以及维修、装饰和服务的综合性产业。
5、什么是房地产开发:是指在依法取得土地使用权的土地上按照使用性质的要求进行基础设施、房屋建筑的活动。
6、什么是土地开发:是将“生地”开发成可供使用的土地。
7、集体土地是指:农村集体所有的土地。
8、征用土地是指:国家为了公共利益的需要,可依照法律规定对集体所有的土地实行征用。
9、什么是土地所有权:是指国家或集体经济组织对国家土地和集体土地依法享有的占有、使用、收益和处分的权能。
10、什么是土地使用权的出让:指国家以协议、招标、拍卖的方式将土地所有权在一定年限内出让给土地使用者,由使用者向国家支付土地使用权出让金的行为。
11、什么是土地使用权转让:是指土地使用者通过出售、交换、赠与和继承的方式将土地使用权再转移的行为。
12、什么是地籍、产籍:是对在房地产调查登记过程产生的各种图表、证件等登记资料,经过整理、加工、分类而形成的图、档、卡、册等资料的总称。
13、生地是指:不具备开发条件的土地。
14、熟地是指:已完成三通一平(水、电、道路,土地平整)或七通一平,具备开发条件的土地。
15、什么是宗地:是地籍的最小单元,是指以权属界线组成的封闭地块。
16、什么是宗地图:是土地使用合同书附图及房地产登记卡附图。它反映一宗地的基本情况。包括:宗地权属界线、界址点位置、宗地内建筑位置与性质、与相邻宗地的关系等。
17、证书附图是指:房地产后面的附图,主要反映房地产情况及房地产所在宗地情况。
18、什么是物业管理:泛指一切有关房地产开发、经营、商品房销售、租赁及售后服务。
19、什么是业主委员会:是在物业管理区域内代表全体业主实施自治管理的组织。是代表
物业全体业主合法权益的社会团体,其合法权益受国家法律保护。
20、业主委员会是如何产生的:由业主大会从全体业主中选举产生。
21、住房补贴是指:国家为职工解决住房问题而给予的补贴资助。
22、房屋的所有权是指:对房屋全面支配的权利。
23、房地产交易的两种主要形式是:地产交易形式与房产交易形式。
24、建筑物是指:人工建造而成的房屋和构筑物。
25、构筑物是指:建筑物中除房屋以外的东西。
26、什么是期房:是指消费者在购买时不具备即买即可入住的商品房。
27、期房是如何介定的:房地产开发商拿到商品房预售许可证开始至取得房地产权证大产证或竣工验收合格可以直接入住使用)为止。
28、什么是预售合同:消费者在购买期房时签定的销售合同。
29、什么是现房:是指消费者在购买时具备即买即可入住的商品房,即开发商已办妥所售的商品房的大产证(或已经竣工验收合格并交付使用)的商品房。
30、什么是毛坯房:房地产商交付屋内只有门框没有门,墙面地面仅做基础处理而未做表面处理的房叫毛坯房。
31、什么是成品房:是指对墙面、天花、门套、地板实行装修。
32、什么是商品房:是指以完全的市场价格向购房者出售的房子。
33、商品房预售是指:在房地产尚未建成以前,房地产的经销商在取得受买人一定数量的定金后,将期房出售给受买人。
34、商品房现售是指:指房地产开发企业将竣工验收合格的商品房出售给买受人。
35、二手房通常指的是:再次进行买卖交易的住房。
36、经济适用房指的是:面向中低收入家庭的普通住宅。
37、例出3种以上的安居房的种类:准成本房、全成本房、全成本微利房和社会微利房。
38、低层住宅的介定:1-3层的住宅。
39、多层住宅的介定:4-6层的住宅。
40、小高层住宅的介定:7-11层的住宅。
41、中高层住宅的介定:12-16层的住宅。
42、高层住宅的介定:16层以上为高层住宅。
43、超高层建筑的介定:总高度超过100米的建筑。
44、商品房的结构是指:房屋主体所使用的施工工艺和用材。
45、钢结构的意思是:承重的主要结构是用钢材料建造的,包括悬索结构。
46、钢混结构的意思是:承重的主要结构是用钢和混凝上建造的。
47、砖木结构的意思是:承重的主要结构是用砖、木材建造的。
48、砖混结构的意思是:主要是砖墙承重,部分是钢盘混凝土承重的结构。
49、框架结构的意思是:以钢筋混凝土浇捣成承重梁柱,再用预制的隔墙分户的结构。
50、开间指的是:一间房屋内一面墙的定位轴线到另一面墙的定位轴线之间的实际距离。
51、进深指的是:一间独立的房屋或一幢居住建筑内从前墙的定位轴线到后墙的定位轴线之间的实际长度。
52、层高指的是:下层地板面或楼板面到上层楼层面之间的距离。
53、净高指的是:下层楼板上表面到上层楼板下表面之间的距离。
54、占地面积指的是:地块的总面积。
55、1亩约等于多少平方米:666.66㎡
56、居住小区总用地指的是什么用地的总和:住宅总用地,公共建筑设施总用地,道路、广场用地、庭院、绿化用地的总和。
57、住宅总用地是指:住宅用地面积的总和。
58、公建总用地是指:小区内部公共建筑占地面积的总和。
59、建筑用地面积的介定:建设用地位置和界线所围合的用地之水平投影面积。
60、建筑基底面积是指:建筑物首层的建筑面积。