桐乡较高气温突破38℃,为什么却有不少人大呼凉爽?
扫描到手机,新闻随时看
扫一扫,用手机看文章
更加方便分享给朋友
近日,有气候学家发表文章称,人体正“接近热量极限”。今年夏天,桐乡已经连续出现了几次38°及以上的高温,而这样的高温天,要一直持续到月底。夏日的阳光猛烈,经过一路的炙烤回到家中,却发现家里是同样的闷热,什么样的户型会让你感受到夏日室内的凉快?什么样的户型才是冬暖夏凉的标准?挑选户型时,就看这几点:
南北通透,空气形成对流
客厅南北有窗(或门),打开窗(或门)可以形成南北空气对流,加速室内空气流通,迅速为室内降温,起到天然风扇的作用。通风型的房子更适合居住,有冬暖夏凉的效果,在夏日炎炎的时候,在房间里能感受到凉风阵阵,而感觉不到外面闷热的温度。

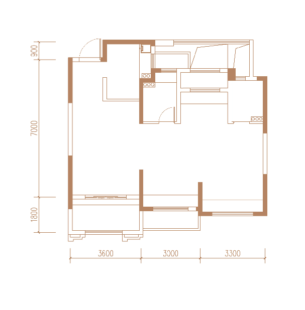
(桐乡·龙湖天宸原著/项目户型图)
龙湖·天宸原著二期90㎡的房型,餐厅连接客厅通景观阳台,南北贯通,不仅可以使整个客厅的采光面更大、通风更好,还增加了家庭公共的活动空间。打开阳台的窗户,室内每个角落都有空气流动,在餐厅吃饭,或在客厅休闲娱乐,清风袭来,凉爽无比。
户型方正,采光好
方正型的户型可以把面积利用起来,居住上也可以享受更多的空间,不会造成浪费。同时,方正的户型一般窗户的位置设计也更容易形成对流,阳光可以直射室内无死角,这样可以在夏天的时候凉风不断,室内不闷热,而冬天的时候又有足够阳光照入,温暖宜人。
(北京·龙湖花盛香醍/项目实景图)
龙湖·天宸原著二期90㎡户型方正,规划近10米面宽,南向大阳台,既能了家中更多房间能够沐浴阳光,又能将窗外美景尽收眼底。3.6米宽的客厅南北通透,让更多空气流通,即使一家老小在客厅休闲娱乐,或是亲朋好友前来聚会,都不会觉得拥挤和闷热。
3、更多房间朝南
考虑到房子结构和可利用面积的问题,主卧和客厅同时朝南是一个不错的选择,更多的卧室朝南,让过道变得宽敞,室内空间变大,居住起来更加宽敞舒适。
(广州·龙湖天宸原著/项目实景图)
龙湖·天宸原著二期90㎡三开间朝南,南向双卧室,规划一条更加宽敞的过道,让三口之家、四世同堂居区起来也阔绰舒适。早晨的阳光照进窗台时候,就可以看到正南约4万平米市政公园,无论是做儿童房、与父母同住,还是亲友来小住,都不必为了哪个房间能够享受更多阳光而争吵。
在龙湖·天宸原著二期90㎡的房子里,通透明朗,微风习习,伴你清凉过夏天。
(桐乡·龙湖天宸原著二期/项目效果图)
效果图中所示项目西侧待规划市政公园仅为示意,不代表实际交付标准,具体以政府为准
龙湖·天宸原著二期南北东三公园环绕,北侧约5万平米环湖商业广场,中间是一个悦湖,湖光旖旎,音乐喷泉相伴;南侧约4万平米市政公园(规划),滋养绿氧优居天地,漫步于此,呼吸一片清新;东侧约1千米就是占地约千亩的高端私人制度假庄园—--百翠山居,众多高端休闲娱乐项目集于一体,尽享田园乐趣。项目自身又是以水韵江南为景观规划特征的园林墅区,约2万方龙湖江南私园相伴,更有三进院落、五维园林、六大园景。富饶的自然业态围绕,城市公园的降温效应也使深处龙湖小区,比在别处更加凉快。
龙湖·天宸原著二期90㎡户型开盘即热销,是桐乡少有的好户型,现推出35号楼景观王座,南北瞰景无遮挡,礼献全城,数量有限,只待鉴藏!
“龙湖·天宸原著II期”仅用于本项目推广宣传使用,项目实际审批用名为“天宸原著小区”。本宣传资料仅为要约邀请,不构成要约内容,图片及文字等仅供参考。本资料的发布时间为2019年7月,本公司保留对其修改的权利,敬请留意较新资料。桐售许字(2019)第00364号。本宣传中指的公园为项目西南侧的待规划市政公园,因开工时间尚未确定,未来小区交付后公园的施工开放和运营可能会对小区有噪音灰尘及人流等影响。目前公园实际设计建造方案尚未确定,如有变化具体以政府规划为准。
【活动资讯】
2019浙江龙湖“小龙人计划”火热来袭,小龙人亲子夏令营、国潮六艺选拔赛、小龙人国潮大课堂,三大活动为青少年成长专属打造,杭州、宁波、绍兴、嘉兴、温州五城同启,精彩不容错过!
声明:本文由入驻焦点开放平台的作者撰写,除焦点官方账号外,观点仅代表作者本人,不代表焦点立场。


