【豪宅】杭州万科·大都会79号空中顶跃豪宅设计:精致又艺术的奢华
扫描到手机,新闻随时看
扫一扫,用手机看文章
更加方便分享给朋友
来源:一起设计 我们相信设计有带来转变的力量。
设计可以带领人们从平淡的日常环境穿越到特殊的感受和体验,从某一种心情跳跃到另一种心情。转变既可以是感官上的,也可以是情感上的。当你闻到某些气味,它也许会让你回忆童年,想起妈妈为你准备的早餐,在这一瞬间你就转变到了另一个时空。
我们的目标正是引领人们踏上这一段充满了转变的旅途,而这个目标是通过光影的运用、大小规模的组合和不同材质的交错而达成的。这是一段充满变革的旅程,我期待,她是这个时代变革的里程。
伴随着我们的整个时代,通过锐意不凡的图形、比例、线条、色彩、质感等一切的介质,以回归本心的坚韧,试图探索着更多属于当代生活方式的表达。——从今天起,我们回归生活。

挑空客厅
当你步入大都会,想象自己是这座公寓的主人时,仿佛置身于另外一种截然不同的生活。一定见过她,她无需依傍,徒手、只身在陌生的城市抒写自己的旅程,那杂糅着喜悦、伤痛与自由的旅程。
周游世界并享受精致的生活的人潮中,有她。在纽约购物、游览美术馆,与你擦身而过的人潮中,有她。去意大利的科莫湖行驶游艇、在美丽的酒店里享用午餐的人潮中,有她。而这座公寓就像一个摆满了世界各地工艺品的大厅,凸显了她在世界各地的旅途。
与此同时,我们回避了工业化、标准化的产品—这正是这个时代的衍生,而是选择了独特的、充满艺术性的家具——以期探索着更多自我的表达,例如 La Cividina 的几何切割扶手椅,Alexander Lamout 荷花艺术造型蜡烛架,手工研制的高柜,还有那灌注了无数个时代的匠人之心——凝聚着砂铸工艺的章鱼形把手。

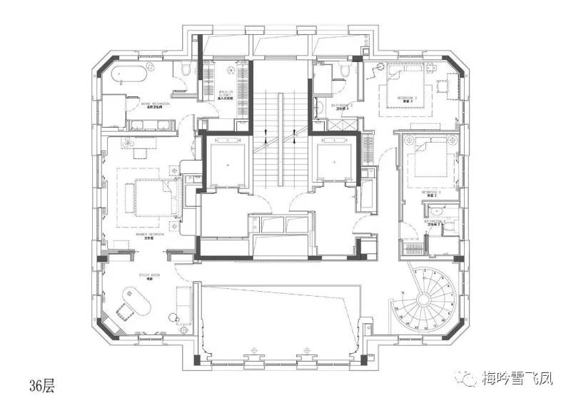
PENTHOUSE 户型共设有五房三厅两厨四卫,6 米高的挑空客厅位于南边,面朝钱塘江,旋转楼梯位于东南角,3 个空中露台依次与次卧、西厨、多功能房相连。

客厅
- Living Room -
6 米高的挑空客厅,采用现代优雅的设计格调,以优质的当代设计美学呈现。
意大利老牌家具品牌 Minotti 的黑色布艺沙发,配以造型利落的组合大理石茶几,营造的包围感之中,却被身旁几何立体切割造型的 La Cividina 橙色皮革椅轻易打破,以其强势的骨架将优质的现代感注入整个空间,在理性与时髦兼具的风格下,跳脱出艺术般的大胆前卫。
地面渐变色度的地毯,在丰富空间的同时,不破坏空间的整体性;在强调现代感与艺术感的同时,也更多的保留舒适感。在塑造包围感的同时,更是承载着一种多元文化的创意、革新与融合。

意大利鱼肚白拼黑色皮革电视墙

线条流畅的 La Cividina 座椅

富有层次感的空间
餐厅
- Dining Room -
「江水漾西风,江花脱晚红」朝南的江景餐厅与客厅、西厨及中厨相连通。在享受美食的同时,窗外的奢华尽收眼底。圆形餐桌带来的浑厚、黑金色带来的强烈视觉观感与向经典致敬的 Gallotti&Radice 餐椅营造的俊朗气质的搭配,融汇东西方文化。

餐厅

与西厨相连通的餐厅

餐桌细节, Galloti & Radice 餐椅, Meridiani 餐桌

拳击房
- Boxing Room -
充满视觉冲击力的黑白线条壁纸与整片镜面营造出的犀利幻境之中,深色调的真皮质感让人仿佛置身于 1930 年代的男士拳击俱乐部,法国斗牛犬形的音响让人联想到专业拳击者这一画面,诠释着 1930s 的独有风情。


让人联想到 1930年代的男士拳击俱乐部的拳击房
楼梯
- Staircase -
位于中心的深木旋转楼梯,如同艺术装置般立于其中,流畅的弧线呼应着建筑结构,传递着安静俊朗的空间气质。手工吹制而成的水波纹灯在这个空间内以光与影的介质散发出自己的独有声音,水波流转之间,她创造出了多种层次的灯光,展现出另一种视觉感官。

旋转楼梯,胡桃木,皮革和大理石共同营造更丰富的层次感

书房
- Study Room -
书房构建的是一个既可独处也能容纳交流的空间。优质简约的 Menu 沙发充满灵性之美,细致的木质构造与现代优雅的造型设计宛若轻盈优质的艺术品,与金属大理石落地灯组成一个巧妙的艺术构设。

主卧
- Master Bedroom -
现代优雅的空间设计,素雅的基调,金色自然点缀,让每一个物件富有艺术灵性。来自不同国家和品牌的家具以及艺术品,于这里巧妙邂逅,并在空间平衡出了自由的书写方式。



Alexander Lamont 高柜,灵感来源于海洋下的光线。章鱼手柄和铰链,青铜的脚是特别为其手工打造。用石膏再现表面质感是她的大胆革新之处,再喷涂漆、颜料或蜡。运用不同的技术来实现深刻的龟裂纹、雕刻甚至是破碎。
在高温情况下,所得到的石膏材料可以在多种光滑而可以手工处理的材料表面上应用。一件优雅且富有原始感生命力的艺术品由此诞生。当匠人的手划过雕刻的表面,他的时间和心意,都被按进了器物当中。堆砌着皱纹的双手有一种温柔,为充满原始生命力的高柜注入了一丝细腻与温情。
窗帘来自美国的 Pollack,它就像一件美丽的衣服在灯光中飘动、舞蹈。



次卧
- Other Bedrooms -
其他 3 间卧室,不同风格的演绎,创造新的感官体验。致力于追求其独特审美,探索生活的真谛,且对细节的巧妙处理,并将艺术贯穿其中。

灰色卧室大胆选用写意的艺术手绘墙纸,搭配玻璃、金属与皮质的现代材质家具,自然和谐地保持着某种平衡。


蓝色卧室的 Timothy Oulton的手工制作的水晶吊灯,投射在墙面的光与影,作为空间表现的设计元素,塑造空间的另类美感。



设计图纸


项目名称 | 杭州万科•大都会79号空中顶跃PENTHOUSE
设计公司 | More Design Office 木君建筑设计咨询(上海)有限公司
设计公司网站 | http://moredesignoffice.com/
设计师 | 徐伩君、桥义(Justin Bridgland)
项目地点 | 浙江.杭州
项目面积 | 406 ㎡
主要材料 | 石材(奥斯卡灰意大利鱼肚白 葡萄牙木纹石等),胡桃木饰面,胡桃木地板,白杨木饰面,皮革,壁纸,地毯,布艺等
摄影师 | 光影摄影 万科授权
声明:本文由入驻焦点开放平台的作者撰写,除焦点官方账号外,观点仅代表作者本人,不代表焦点立场。


