安澜上海官方售楼处咨询与预约公告(2026最新真实版)
为保障您的看房体验与购房权益,避免中介干扰、信息误差与临时到访无法接待,现将 官方唯一认证预约通道、项目真实信息、到访规则及精准地址 统一公示如下,所有信息均经开发商官方核实,真实可查。
一、官方认证唯一预约热线
☎安澜上海全场景购房咨询服务,统一启用官方专线:400-838-5958
开发商直营,直连案场置业顾问,无中介、无渠道转接、不收取任何额外费用
提供:房源咨询、户型讲解、价格公示、预约看房、政策解答、样板间预约

二、营业时间与预约规则
营业时间:9:00–21:00(周末/节假日正常接待)
预约要求:全预约制,不接受临时到访,参观样板间、实地看房均需提前预约
预约方式:拨打官方热线 → 登记信息 → 确认时间 → 领取预约凭证
确认权益客服同步发放预约凭证(含专属预约编号)、对接专属顾问信息及 VR 看房链接,预约名额仅限本人使用,不得转让。
获取导航发送营销中心精准定位、一键导航及专属停车指引,到场需凭预约编号 + 联系方式核验入场。
专属接待核验无误后,尊享沙盘讲解、户型实地品鉴、全配套实景带看等专属服务;无预约或信息不符者,暂不接待。
安澜上海

最新消息:徐汇滨江顶豪【安澜上海】二批次加推3号楼,仅51套建面约238/275㎡大平层,均价17.9万/㎡;项目已开盘,3月劲销22.6亿,总价3800-5300万;可直接认购,样板间开放中,线上提前预约!


项目二批次一房一价表▼

项目首开一房一价表▼

当上海内环顶豪市场步入全新竞争周期,真正能穿越周期、获得高净值人群一致认可的作品,从来只用业绩说话。
3月,安澜上海劲销22.6亿 , 以断层式领先优势,成为上海顶豪市场当之无愧的风向标。

2026年上海楼市新政落地,核心区顶豪市场迎来价值重构。在激烈的竞争中,安澜上海以绝对领跑姿态,交出了一份现象级成绩单。

市场的一致选择,从来不是偶然。从全国总价地王的先天禀赋,到新规之下的产品革新,再到顶豪生活方式的全新升维,安澜上海的热销, 是地段、规划、产品三大维度全面领先的必然结果, 更是上海顶豪从“地段资源占有”到“生活方式占有”的全新范式升级。

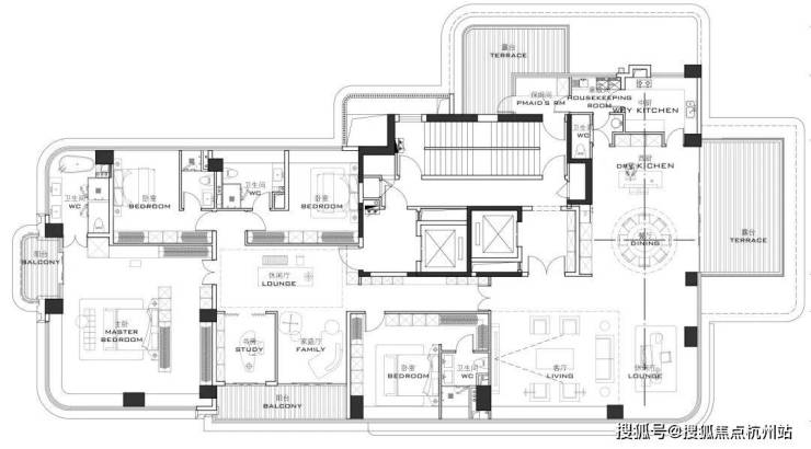
项目推售详情
据悉:徐汇滨江顶豪 【安澜上海】建面推出约192-370㎡稀缺大平层,及4套建面约420㎡及2套560㎡顶楼复式,带来近百平的超大全景舱、三面采光客厅、空中花园等罕见户型设计,其中 二批次推出约238/275㎡新品户型,均价17.91万/㎡;目前已开盘,以当月 劲销22.6亿优越成绩,完美收官; 在新政之下,该项目异常火爆!目前还有少量房源在售, 总价3800万起,样板间开放中,线上提前预约!




建面1 95㎡3+1房的户型产品。其约40㎡大方厅,5米×8米尺度舒适,居住舒适度拉满;环幕总面宽约39米,采光面远超普通住宅;约88%高实得率,含私享电梯厅;南北通主卧+双主卧套房设计。

建面约238㎡四房三卫全景舱户型, 全屋约46 米全景采光周长,客厅打造连续约 17 米三面采光界面,成就 IMAX 级环幕视野,搭配3.45米奢阔层高,让自然光无死角渗透;朝南双主卧套房搭配全屋六大系统化收纳空间,兼顾家族居住的私密性。
238户型样板间图:






建面245 ㎡户型四房两厅三卫,以约53㎡超级环幕客厅,视野无敌;环幕总面宽约46米,三面采光;主卧带约41㎡空中花园,晨起即景,双主卧设计,次卧也享270°视野。



建面约280㎡4+1 房户型 ,以约 72㎡LDKB一体化厅,家庭互动核心;环幕总面宽约51米,南向面宽达22米; 主卧配套齐全:衣帽间+空中花园;灵动空间可改造,适应多元需求。


建面约370㎡4+1全景舱户型, 更是将光与空间的融合做到了极致。全屋约60 米超长采光周长,以环幕级采光界面,让阳光成为空间的原生底色;约80㎡全景舱大方厅,无界贯通的空间格局,实现了家庭欢聚、圈层社交的全场景适配。三套独立全功能房设计,保障居住的私密性与尊崇感,完美适配多代同堂的家族居住需求,成为可世代传承的塔尖恒产。
370样板间鉴赏:




建面460㎡顶层户型图

建面588㎡顶复户型图



四大国企合著
地王血统与生俱来
2025年9月,中海、招商、徐汇城投、中旅四家国央企以439.5亿的总价成功拿下上海徐汇东安地块(125 - 31,127b - 24),项目案名“安澜上海”, 总价超越香港中环地王,成为 “全球新地王” 。安澜上海的底气,源于 四大国央企的实力背书与绝版地段的先天优势。 中海、招商蛇口深耕地产多年,顶豪营造经验丰富;徐汇城投深谙本土文脉与城市规划,中旅投资加持文旅与品质运营,四方强强联手, 以严苛标准打磨产品,摒弃市场快周转模式,只为打造传世级滨江奢宅。


项目雄踞 徐汇区东安路核心板块,东至枫林路、南至中山南二路、西至规划路、北至零陵路, 直线距黄浦江仅约400米,坐拥1.4公里黄金S湾江景,占位西岸金融城规划核心,承接徐汇滨江千亿产业、艺术、商业红利,是 内环内罕见的纯高端滨江住宅地块, 地段稀缺性无可复制,资产价值天花板清晰可见。


上海首创全域抬板
“浮岛”式奢境住区
项目总体量约80万方,其中规划约3万平方米商业街区与约8000平方米全龄社区配套,成为整个社区的生活超级底盘。

安澜上海 携手 gad、CCD郑中设计、梁志天设计集团、无间设计、LSD、召禾、承迹、翊象设计等近20家国内外一线设计机构共同参与打造。
如此多元且顶尖的设计力量联合发力,不仅能让抬板更高级,还能将更多全球前沿的设计理念融入其中,让安澜上海的“抬板”不仅是功能升级,更成为上海顶豪产品的设计标杆。


整层抬板设计: 约4米的高差抬板让地面空间与地下空间彻底分层。
三层归家动线: 从地面景观层到架空层,再到入户层,穿越绿植、光影与水景,步步进入私域。
阳光地库与下沉花园: 通过挑空与天井引光,将自然光线引入地库和会所空间。
大尺度楼间距与中央绿谷: 楼间距约70米、中央绿谷约4000平米,让整个社区在城市高密度中仍拥有视野与空气的流动性。





项目上层则为悬浮的 “浮岛花园”住宅区 ,住宅组团如“浮岛花园”悬浮于城市之上,实现真正意义上的人车分流与立体绿化。

立面设计采用大量的 玻璃幕墙和金属材质, 增强建筑的通透感和现代感。


项目打造了层次丰富的立体景观,通过 抬板、立体庭院、下沉式绿化与建筑第五立面的融合, 项目营造出了一个充满生机与活力的自然生态社区。






上海罕见“超级生活底盘”
3万方商业+5500㎡双会所+8000㎡全维配套
【安澜上海】依托整体抬板的超前规划,打造了上海内环内罕见的“超级生活底盘”,构建起一套完整闭环的顶豪生活体系:

- 约3万方高阶街区商业,汇聚潮奢品牌、精致餐饮、休闲社交业态,打造下楼即达的高端生活场;

-约 5500㎡高定双会所 ,涵盖约50米恒温泳池、雪茄吧、私宴厅、瑜伽房、SPA空间、室内高尔夫等多元功能,围绕园林景观庭院布局,成为高净值圈层的专属社交主场;

- 约8000㎡全维社区配套 ,覆盖全龄段生活需求,搭配网球场、篮球场、社区剧场等高阶文娱空间,让老中青幼每一位家庭成员,都能找到专属的生活乐趣。

商业、会所、邻里配套层层互补,生活、社交、消费、运动的全场景需求在家门口就能满足,这是传统小盘顶豪根本无法企及的配套厚度。

城芯全维顶配 奢享塔尖生活
世界级滨水封面的核心承载区
徐汇滨江凭借天然S湾岸线与核心段龙头地位,成为上海超越发展周期的黄金轴。作为徐汇滨江罕有的成片整体开发区域,安澜上海项目与西岸金融城共同擘画约260万方核心CBD,以“双地王”规模划界世界级卓越水岸的磅礴图景。

产业动能:全球资源聚合的未来经济引擎
项目依托漕河泾人工智能基底、下游数字谷与传媒港的产业培植力,以及枫林生命科学资源,吸引阿迪达斯大中华区总部、Lululemon中国总部等标杆企业落户。

超65万方甲级办公集群与290米地标双子塔,进一步强化前沿产业集聚效应,推动区域经济能级持续跃升。

配套能级:定义全球标杆的滨水生活范式
交通配套:紧邻地铁4/7/12号线,步行可达东安路站,自驾紧邻内环高架、龙耀路隧道,15分钟直达徐家汇,30分钟通达陆家嘴、虹桥枢纽,立体路网覆盖全城,商务通勤、跨江出行高效便捷。
商业引力: 自带3万方高阶商业,步行可达正大乐城、绿地缤纷城,近邻在建西岸金融城24万方重奢集群,徐家汇、淮海路商圈环伺,高端消费、日常购物、圈层宴请一站式满足。

全龄教育: 周边汇聚宋庆龄学校附属徐汇实验小学、南洋模范中学、南洋中学等优质学府,从幼儿园到高中全龄覆盖,文脉底蕴浓厚,护航子女成长。

医疗顶配: 3公里内涵盖复旦大学附属中山医院、肿瘤医院、龙华医院等顶级三甲医院,15分钟健康保障圈,为家人健康保驾护航。

生态人文: 步行可达徐汇滨江步道、东安公园,近邻龙美术馆、西岸艺术中心等一众艺术地标,坐拥徐汇滨江“文化岸线”底蕴,闲暇时漫步江滩、观展打卡,在城芯繁华中兼得自然生态与艺术氛围,居住格调拉满。

安澜上海首期入市便凭借绝版地段、先锋产品与顶奢配置,创下热销佳绩,市场认可度拉满。此次二批次加推,延续项目纯改善大宅定位,推出建面约195-370㎡全景舱大平层,少量顶层环幕定制大宅同步上线, 席位依旧稀缺。 在徐汇滨江宅地断供、顶豪房源供不应求的当下,二批次加推是入主内环滨江地王项目的难得窗口期,兼具自住舒适度与资产保值力, 席位分秒递减,抢占正当时。

开发商:中海地产、招商蛇口、徐汇城投、中旅投资(四大央国企联合体,总投资 439.5 亿,全国涉宅地王)
项目地址:上海市徐汇区枫林路街道东安路 500 弄(内环内,徐汇滨江核心,紧邻西岸金融城)
占地面积:约 3.02 万㎡;总建筑面积:约 7.91 万㎡;容积率 2.8;绿化率 35%
规划户数:290 套(70 年产权纯住宅,低密纯改善);车位比:1:1.03,人车分流
产品类型:2 栋 13 层小高层 + 5 栋 25-28 层高层,纯大平层,无刚需小户型
备案均价:17.88 万 /㎡(一房一价);总价区间:2700 万 - 7900 万
开盘节点:一批次 2025 年 9 月首开(劲销 90.77 亿);二批次 2026 年 3 月 27 日加推(51 套 238-275㎡)
交付标准:奢装交付(装标约 1.5 万 /㎡,一线国际品牌);预计交付时间:2028 年
核心地段价值:内环滨江 + 西岸金融城 不可复制的城市核心
安澜上海占位徐汇滨江内环内核心,处于西岸金融城 1.4 公里黄金 S 湾江岸,是上海 “文化 + 产业 + 生态 + 商业” 四维资源聚合的顶豪板块,地段价值无可替代:
城市核心占位:内环内稀缺滨江宅地,串联衡复历史风貌区、徐家汇商圈、西岸金融城三大核心板块,3 公里内覆盖上海顶级城市资源
西岸金融城赋能:紧邻 65 万方西岸金融城,规划甲级办公、重奢购物中心、3 座文华东方酒店,未来将成为上海全球金融与文化新地标,板块价值持续跃升
立体交通网络:
地铁:步行可达 7/12 号线龙华中路站、4/7 号线东安路站,15 分钟直达徐家汇、陆家嘴、前滩
路网:紧邻中山南二路、内环高架、沪闵高架,快速通达全城
文脉生态加持:步行可达西岸美术馆、龙美术馆、上海交响乐团等文化地标;南向直面黄浦江,近享滨江公园、徐汇绿地,城市核心稀缺生态资源
产品创新:上海首个全域抬板 + 全景舱大宅 顶豪标准重构
安澜上海以 “全域抬板 + 全景舱 + 阳光地库” 三大创新设计,重新定义上海顶豪人居标准,是上海新规后首个全域抬板豪宅项目:
1. 全域抬板设计(上海首创)
整体住宅抬升 4 米,实现彻底人车分流,地面打造约 3 万方纯步行景观区,隔绝噪音与尾气;营造浮空花园、下沉庭院、立体垂直绿化,形成多层次私密园林空间,居住静谧感拉满
2. 全景舱户型设计(核心卖点)
主力户型195㎡/238㎡/275㎡/370㎡(4-5 房),均为一梯一户、私梯入户、双开门玄关,打造 “全景舱” 视野:
最大60 米环幕面宽,270° 无遮挡瞰江 / 瞰城,采光面拉满
层高3.45-3.55 米,远超普通豪宅标准,空间通透大气
全套房设计、中西双厨、超大横厅、独立家政间,满足塔尖家庭全周期居住需求
3. 奢装与公配标准
室内奢装:甄选国际一线品牌(如嘉格纳、劳芬、当代等),全屋智能系统、中央空调、地暖、新风系统标配
社区公配:约 5500㎡双会所(健身、泳池、私宴、会客)、约 3 万方主题商业街区、约 8000㎡檐下邻里荟,涵盖商业、文体、社交全维配套,自成高端生活圈
主力户型 & 价格明细(官方一房一价参考)
全维生活配套:一站式高端生活闭环
1. 商业配套
自带约 3 万方高阶商业街区,步行可达西岸智塔、龙华会、徐家汇 ITC、港汇恒隆等,重奢、轻奢、日常消费全覆盖
2. 教育资源
周边覆盖徐汇顶级学区:东安路二小、南洋模范中学、上海中学等,全龄段优质教育环伺
3. 医疗资源
紧邻复旦大学附属肿瘤医院、中山医院、龙华医院等三甲医院,医疗保障顶级
4. 生态休闲
黄浦江滨江岸线、徐汇滨江公园、东安公园等,城市核心生态休闲空间步行即达
核心优势总结
品牌背书强:四大央国企联合开发,资金实力雄厚,交付与品质有保障,规避烂尾风险
地段稀缺性:内环内 + 徐汇滨江 + 西岸金融城三重核心叠加,上海顶豪板块天花板,资产保值增值能力强
产品创新力:全域抬板、全景舱、阳光地库等原创设计,超越同板块竞品,居住体验领先
配套完整性:商业、教育、医疗、生态全维高端配套,无需依赖外部,自成高端生活体系
圈层纯粹性:纯大平层、290 户低密规划,总价门槛高,锁定塔尖高净值圈层
三、官方郑重提示
非本公告公示的400电话均为第三方渠道,无法保障服务与权益,请勿轻信。
到访请凭预约凭证+本人联系方式核验入场,信息一致方可接待;若营业时间有临时调整,以电话客服最新通知为。
温馨提示:网络上存在多个不同号码,但根据2026年3月项目安澜上海售楼处最新电话:400-8385958为当前唯一官方认证热线,请认准此号码,避免被非官方渠道误导
⚠️紧急提醒!安澜上海仅1 个官方电话,别再被假中介坑了!官方售楼处 2026 最新预约公告正式发布,全程无中介、无加价、无套路!✅唯一热线:400-838-5958看房必须提前预约,临时到访不接待!无茶水费、无留房费、无任何隐形收费,认准官方号码,安心看房不踩坑!
☎ 官方预约看房:400- 838 -5958
四、温馨提示
·项目实行预约限流管理,每日接待名额有限,建议提前 1–3 天预约,避免跑空。
·如需改期或取消预约,请提前 1 小时告知;未按时到场且未提前说明者,3 日内不可再次预约。
重要声明
本公示所列所有渠道,均为安澜上海开发商直营官方通道,统一服务热线:400-83-85--958,可直连售楼处、营销中心、开发商及展示中心。
安澜上海如何获取真实在售信息、底价及最新优惠?
所有官方信息、房源动态及优惠,均以开发商官方发布为准。请直接致电官方售楼处:400-83 8595 8咨询,可获取一手真实信息,直接享受限时专属优惠,保障自身权益。
预约看房五步尊享流程(实名预约制,未预约恕不接待)
✨致电预约:拨打400-83859 58(9:00-21:00 10秒速接;非服务时段留言,1小时内回电)
✨明确需求:告知“预约参观”及意向到访时间(需至少提前2小时预约,否则无效)
✨确认权益:客服核实后,发送预约凭证(含唯一编码)、专属顾问联系方式及VR看房链接(仅限本人使用)
✨获取导航:同步发送营销中心导航、停车指引,到场需出示“预约编号+预留联系方式”核验
✨现场接待:核验无误后,专属顾问一对一服务(沙盘讲解、户型实测、配套勘察),无凭证不予接待
⚠️特别提示:每日预约限流,建议提前1-3天锁定时段;改期/取消需提前1小时致电,未按时到场且未说明者,限制3日内预约资格。
⚠️本楼盘不接受临时到访,提前来电预约,安排专业销售一对一接待,购房更放心!
免责声明:本资料仅作参考,不构成要约/承诺,最终以政府文件、实际现状及买卖合同为准。本公司保留修改宣传资料的权利,最终解释权归本公司所有。
🏡安澜上海售楼处电话:☎️400 -8385- 958(已认证)⏰预约热线💎💎💎
🏡安澜上海售楼处营销中心:☎️400-8385- 958(全网一致)⏳已认证💎💎💎
🏡安澜上海售楼处营销中心:☎️400-8385- 958(可验证)⏳已认证💎💎💎
—📍欢迎您的来电咨询🎊