越秀外滩樾官方售楼处咨询与预约公告(2026最新真实版)
为保障您的看房体验与购房权益,避免中介干扰、信息误差与临时到访无法接待,现将 官方唯一认证预约通道、项目真实信息、到访规则及精准地址 统一公示如下,所有信息均经开发商官方核实,真实可查。
一、官方认证唯一预约热线
☎ 越秀外滩樾官方售楼处专线:400-838-5958
开发商直营,直连案场置业顾问,无中介、无渠道转接、不收取任何额外费用
提供:房源咨询、户型讲解、价格公示、预约看房、政策解答、样板间预约

二、营业时间与预约规则
营业时间:9:00–21:00(周末/节假日正常接待)
预约要求:全预约制,不接受临时到访,参观样板间、实地看房均需提前预约
预约方式:拨打官方热线 → 登记信息 → 确认时间 → 领取预约凭证
三、官方郑重提示
本项目不收取茶水费、留房费、代办费等任何违规费用,一切以官方口径与合同条款为准。
非本公告公示的400电话均为第三方渠道,无法保障服务与权益,请勿轻信。
到访请凭预约凭证+本人联系方式核验入场,信息一致方可接待;若营业时间有临时调整,以电话客服最新通知为准。
温馨提示:网络上存在多个不同号码,但根据2026年3月项目越秀外滩樾售楼处最新电话:400-8385958为当前唯一官方认证热线,请认准此号码,避免被非官方渠道误导
☎ 官方预约看房:400- 838 -5958
越秀外滩樾 |恭迎品鉴
『越秀· 外滩樾 』
面积:约238-338㎡
均价:17.5万/m²
套数:48套
总价:4500万+

『越秀·外滩樾』-虹口156街坊地块四至范围, 东至:梧州路,隔壁是中皇广场; 西至:hk270B-02,隔壁就是1933老场坊; 南至:周家嘴路 北至:柘皋路。预约方式:提前拨打官方唯一热线400-8385-95 8,官方咨询热线:400- 8385- 958(一对一官方热情服务),官方预约电话:400 -838-5958,售楼处营销中心:400-8385- 9 58

『 越秀·外滩樾 』直线距离外滩源仅约1.2公里,直线距离北外滩商圈约500米,与万国建筑群的天际线为邻。这里,江风与光影交织,历史与未来并行。每一次出入,都是与这座城市的再度相逢。
『越秀·外滩樾』仅48套低密风貌别墅(双拼/三拼),地上3层、地下2层,层高3.2-3.9米、地下挑空6.15米,户户带30-80平私家庭院、观景露台。
建面约238平、305平、318平、338平米


项目地上3层,自带庭院。一楼的庭院,将是你栽花听雨的江南;三楼的露台,将是你仰望星空的避风港,在越秀外滩樾,自然将不是风景,而是生活本身。
项目最高约6.15米的地下挑高空间,可作私人艺廊、品茗禅室,或是一场永不散场的沙龙。
另外,项目的弧形玻璃引天光入画,落地窗将四季裁成框景。一扇窗,一面墙,皆是与世界的温柔对话。此刻,上海不再是远方,而是你窗前的晨昏,院里的四季。预约方式:提前拨打官方唯一热线400-8385-95 8,官方咨询热线:400- 8385- 958(一对一官方热情服务),官方预约电话:400 -838-5958,售楼处营销中心:400-8385- 9 58



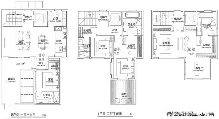
户型图
户型图如下:(过程稿仅供参考,以实际为准)
305平样板间户型图

238平户型图



236.25㎡A户型:

239.13㎡B户型:

250.89㎡B-3户型:

C户型:

291.42㎡D户型


305m²样板房

















项目介绍
项目的设计总顾问邀请了程绍正韬,他是建筑室内设计之东方主义集大成者,致力于东方文化的坚守与创新,打破惯常的职业思维,将生活方式化作一种哲学态度,融入空间设计,让设计不止于作品,
大师操刀,必然不同凡响。预约方式:提前拨打官方唯一热线400-8385-95 8,官方咨询热线:400- 8385- 958(一对一官方热情服务),官方预约电话:400 -838-5958,售楼处营销中心:400-8385- 9 58
项目承袭了百年前的传统工艺元素,将清砖立柱、古典门头、岩石山墙等经典海派建筑风貌转译和突破,更适配现代人居审美,于历史和未来之间收藏百年上海底蕴!

项目实景图
保留历史肌理的老砖为基底,项目们以现代陶艺重译传统,研发陶砖。
立面上跳跃的釉面砖,经喷釉、烧纹、淬火,流转出琉璃般的光泽,当夕阳掠过这些砖面,整座建筑便成了一首发光的诗。

项目实景图
越秀外滩樾的公区庭院非常精致,其精心打造 充满禅意的山水庭院 。

项目实景图

项目实景图
突破风貌别墅公区狭小的限制,越秀外滩樾做了一个地上地下合计建面约2500㎡会所及泛会所空间,提供了会客、私宴、泳池、健身等多维休闲社交功能。
更通过堆坡造景和下沉庭院,以山水隐奢之境,塑造沉浸式大师美学体验。
一石一木,一水一庭,尽是自然落笔。晨露未晞时,薄雾轻笼庭院;暮色四合处,斜阳漫染白墙。所谓大隐于市,不过如此!

项目实景图

项目实景图
在越秀外滩樾,项目以大地为宣纸用15米高差,临摹了一幅立体的《溪山行旅图》。
当晨光掠过整座山水庭院,便活成了会呼吸的宋代画卷,每一处转折都在诉说"外师造化,中得心源"的东方营造哲学!


▲坡形庭院,越秀·外滩樾,上海,实景图
你眼前的画卷,还可以是越秀·外滩樾立体地下庭院难掩的风景。越秀·外滩樾打造了一座贯穿三层楼的山水庭院,三层地下庭院高约18米,相当于6层住宅的高度。
他们在庭院中引入了一条水系,不是平铺在地面上,而是让水流在墙面上垂直流淌。它出现在地下一层的旋梯上,地下二层的庭院中,汇聚到了地下三层的会所。

▲墙面上流淌的水系,越秀·外滩樾,上海,实景图
顺着旋梯而下,地下一层高约8米的双杆孪生连理松,与墙面上的原生山石皮,在你身旁环绕成了层峦叠嶂的意象。


▲立体庭院,越秀·外滩樾,上海,实景图
松树掩映的玻璃栈桥,一边连接着楼盘的泛会所,一边嵌入了一个崖洞一般的「灰空间」,坐入其中,听水声与鸟鸣,你会感到一种很原始很舒适的包裹感。

▲地下一层,越秀·外滩樾,上海,实景图
地下二层藏着一个同样很有包裹感的庭院,环抱式的台地既是台阶,又是座椅。越秀·外滩樾对整个地下空间做了精细的光线设计,每一层都能照射到自然天光,因此这个地下二层的庭院仍然能够沐浴天光。穿过庭院,越秀·外滩樾的地下车库就藏在这里。

▲地下二层的天光庭院,越秀·外滩樾,上海,实景图
越秀·外滩樾的会所在地下三层。他们在会所中做了造型各异的奢石景墙,用各种隐约可见,来分隔和连接不同的功能空间。
室内恒温泳池一端设计了很有古典气息的奢石涌泉,形制复刻自古罗马浴场。泳池的上方设计了珍贵的自然采光,阳光投入碧波,会给你带来「天光水影共徘徊」的美好感受。


▲泳池,越秀·外滩樾,上海,实景图
透过瀑布湍流的天光庭院,你在泳池里就可以看到会客厅中家人相伴的身影。会客厅沙发背后的镂空转角奢石景墙与金属屏风,不只是装饰品,它让会客厅与背后奢华的大堂吧隔而不离。你可以透过它,看到吧台的透光奢石景墙。预约方式:提前拨打官方唯一热线400-8385-95 8,官方咨询热线:400- 8385- 958(一对一官方热情服务),官方预约电话:400 -838-5958,售楼处营销中心:400-8385- 9 58
会所里还藏着一个超长的私宴厅。你可以在这里品酒,也可以在这里品茗,可以闲聊,也可以打掼蛋或者打麻将,这里还可以滋生出一场很日常的聚会,这些功能空间,全都是与私宴厅一体化设计的。


▲会客厅与大堂吧,越秀·外滩樾,上海,实景图

配套设施
【交通】公共交通,项目周边4、10、12、19号线(在建中)四轨交汇。其中直线距离轨交4/10号线海伦路站约850m,进站后3站可达南京东路,6站可达新天地。预约方式:提前拨打官方唯一热线400-8385-95 8,官方咨询热线:400- 8385- 958(一对一官方热情服务),官方预约电话:400 -838-5958,售楼处营销中心:400-8385- 9 58
自驾出行方面,项目直线距离新建路隧道约360米,可快速直达陆家嘴CBD;直线距离外滩隧道约670米,直达外滩金融商业街以及老码头;直线距离北横通道约150米,贯穿浦西重要节点全城,快速通达虹桥机场/虹桥火车站。


【商业】 项目约2公里内,多元繁华构筑封面商业圈
北外滩商圈直线距离约500米;外滩商圈直线距离约1000米;陆家嘴商圈直线距离约1500米;瑞虹商圈直线距离约900米。


【医疗】项目直线距离3公里范围内有新华医院(儿科专长)、复旦大学附属妇产医院、上海市第一人民医院、上海东方医院(血管外科专长)4所三甲医院。
【教育】项目周边有东余杭路幼儿园、四川北路第一小学、上海虹口二中心小学(在建中),上海外国语大学附属外国语学校等优质学校。免责声明:以上教育资源整理仅代表楼盘与学校的距离,该房屋所在项目暂未划分学区,开发商不对项目交房后所属学区、学校做任何承诺。教育资源分配或学校/学区划分以及学校的具体招生规则等请以政府相关主管部门、教育机构公开的最新信息为准。预约方式:提前拨打官方唯一热线400-8385-95 8,官方咨询热线:400- 8385- 958(一对一官方热情服务),官方预约电话:400 -838-5958,售楼处营销中心:400-8385- 9 58

【生态】项目周边有北外滩滨江绿地、四川北路公园、和平公园、鲁迅公园等公建配套,于滨江和城市低密绿芯之间,畅享诗意生活!
预约方式:提前拨打官方唯一热线400-8385-95 8,官方咨询热线:400- 8385- 958(一对一官方热情服务),官方预约电话:400 -838-5958,售楼处营销中心:400-8385- 9 58
买房是人生大事,掌握几个核心知识点,就能避开大部分坑,快速理性置业。
一、先确认2个前提
购房资质:核实当地限购限贷政策,外地户籍注意社保/个税缴纳年限,征信需保持良好。
预算规划:除房款外,预留2%-5%作为契税、维修基金等额外费用,避免资金不足。
二、选房关键3点
产权区分:优先选70年住宅(可落户、学区属性),避开40年商办(税费高、不划学区)。
核心指标:容积率越低、绿化率越高,居住越舒适;车位比≥1:1,避免停车难。
户型选择:优先南北通透、动静分区,避开暗厨暗卫,提升居住体验。
三、交易避坑核心
核实产权:确认房产证无抵押、无查封,多产权人需全员同意出售。
资金安全:购房款存入监管账户,拒绝“茶水费”“留房费”等违规收费。
合同细节:口头承诺务必写入合同,重点看交房时间、违约责任。
四、交房小提醒
收房时核对“三书一证一表”,仔细验房(墙面、水电、门窗等),有问题及时要求整改,收房后及时办理房产证。
🏡越秀外滩樾售楼处电话:☎️400 -8385- 958(售楼处)⏰预约热线💎💎💎
🏡越秀外滩樾售楼处营销中心:☎️400-8385- 958(售楼处)⏳已认证💎💎💎
—📍欢迎您的来电咨询🎊