越秀外滩樾 (售楼处) 官方网站 - 2026越秀外滩樾销售中心 - 环境 - 户型 - 价格 - 地址 - 楼盘详情 - 配套 - 电话 - 交房时间 - 配套 - 电话 - 交房时间

搜狐焦点杭州站 2026-03-17 11:09:17
用手机看
扫描到手机,新闻随时看

扫一扫,用手机看文章
更加方便分享给朋友

越秀外滩樾售楼处营销中心:☎️400-8385-958,越秀外滩樾官方推出唯一预约通道,提供真实信息与精准地址,确保购房权益与看房体验。

越秀外滩樾官方售楼处咨询与预约公告(2026最新真实版)

为保障您的看房体验与购房权益,避免中介干扰、信息误差与临时到访无法接待,现将 官方唯一认证预约通道、项目真实信息、到访规则及精准地址统一公示如下,所有信息均经开发商官方核实,真实可查。

一、官方认证唯一预约热线

☎ 越秀外滩樾官方售楼处专线:400-838-5958

开发商直营,直连案场置业顾问,无中介、无渠道转接、不收取任何额外费用

提供:房源咨询、户型讲解、价格公示、预约看房、政策解答、样板间预约

二、营业时间与预约规则

营业时间:9:00–21:00(周末/节假日正常接待)

预约要求:全预约制,不接受临时到访,参观样板间、实地看房均需提前预约

预约方式:拨打官方热线 → 登记信息 → 确认时间 → 领取预约凭证

三、官方郑重提示

本项目不收取茶水费、留房费、代办费等任何违规费用,一切以官方口径与合同条款为准。

非本公告公示的400电话均为第三方渠道,无法保障服务与权益,请勿轻信。

到访请凭预约凭证+本人联系方式核验入场,信息一致方可接待;若营业时间有临时调整,以电话客服最新通知为准。

温馨提示:网络上存在多个不同号码,但根据2026年3月项目越秀外滩樾售楼处最新电话:400-8385958为当前唯一官方认证热线,请认准此号码,避免被非官方渠道误导

☎ 官方预约看房:400-838-5958

越秀外滩樾 |恭迎品鉴

外滩源仅约1.2公里

属于家族传承的风貌

越秀外滩樾别墅

约238-338㎡双拼、三拼

01

PART

区域介绍

越秀外滩樾直线距离外滩源仅约1.2公里,直线距离北外滩商圈约500米,直线距离瑞虹商圈约900米,直线距离陆家嘴商圈约1500米!

这样的地段天赋,保证了业主能在世界都心享全球封面级生活!

地理位置示意图,仅供参考

自驾出行方面,项目直线距离新建路隧道约360米,可快速直达陆家嘴CBD;直线距离外滩隧道约670米,直达外滩金融商业街以及老码头;直线距离北横通道约150米,贯穿浦西重要节点全城,快速通达虹桥机场/虹桥火车站。

公共交通方面,项目周边4、10、12、19号线(在建中)四轨交汇。其中直线距离轨交4/10号线海伦路站约850m,进站后3站可达南京东路,6站可达新天地。

地理位置示意图,仅供参考

医疗资源方面,项目直线距离3公里范围内有新华医院(儿科专长)、复旦大学附属妇产医院、上海市第一人民医院、上海东方医院(血管外科专长)4所三甲医院。

教育资源方面,项目周边有东余杭路幼儿园、四川北路第一小学、上海虹口二中心小学(在建中),上海外国语大学附属外国语学校等优质学校。

免责声明: 以上教育资源整理仅代表楼盘与学校的距离,该房屋所在项目暂未划分学区,开发商不对项目交房后所属学区、学校做任何承诺。教育资源分配或学校/学区划分以及学校的具体招生规则等请以政府相关主管部门、教育机构公开的最新信息为准。

示意图,图片来源于网络

尤其值得一提的是生态休闲资源。

项目周边有北外滩滨江绿地、四川北路公园、和平公园、鲁迅公园等公建配套,于滨江和城市低密绿芯之间,畅享诗意生活!

示意图,图片来源于网络

当然,当下显然并非项目的价值顶点,因为项目还坐拥北外滩的世纪红利!

要知道,作为滨江黄金三角的一部分,外滩、陆家嘴已臻成熟增量有限。而北外滩正处于价值大爆发的阶段。

据统计,北外滩规划了约650万方商办!对比几大当红炸子鸡板块,北外滩的商办体量几乎是徐汇滨江的2倍、前滩的3倍、世博的5倍!

示意图,图片来源于网络

另外,作为与外滩陆家嘴平起平坐的世纪规划,北外滩商办地标兑现的速度简直史无前例!

· 国华金融中心(158米地标)于2023年11月正式开幕;

· 友邦金融中心(180米地标)商业进入试运营阶段;

· 上海华贸中心(180米地标)预计2026年竣工开业;

· 上海北外滩中心(480米地标)预计2030年竣工、北外滩90街坊(180米地标)预计2030年竣工!

一旦北外滩的规划全部兑现,这股时代能量迸发,整个一江一河谁是对手?

在这样的背景下,越秀外滩樾无疑是这个时代的馈赠,且买且珍惜!

北外滩实景图

02

PART

楼盘介绍

去年开始,上海顶豪圈层出现了一个新物种,那就是地段与产品均位列塔尖序列的风貌别墅,这是天生的藏品级住宅。

但是,随着风貌别墅供应量的井喷,风貌别墅好像变的也没有那么稀缺。

同时,受制于保护规制,里弄风貌居住舒适度偏低成为此类建筑较为显著的居住感受。

比如黄浦等区域,风貌以保留改造与更新改建为主,需要沿袭之前的结构与风格。这些旧里发展出来的风貌,传承了海派文化精髓,但也继承了石库门旧里宽面小进深长,且窗墙比低的“缺点”。

正是因为以上2点,风貌别墅的藏品价值受到了一定质疑!

如今,打破质疑的破局者来了!

越秀外滩樾占位直线距离外滩约1.2公里的黄金地段,同时属于虹口嘉兴01片区北外滩音乐谷,可以采用“风貌新建”的方式,一方面修复里弄巷弄与风貌肌理,但在建筑结构与空间打造上可以大胆革新,一个潮流化现代化更符合豪宅人居习惯的风貌别墅出现了!

项目实景图

风貌别墅与普通别墅的最大区别无疑是对文化的传承。所以越秀外滩樾要做的第一件事是复原经典,包括建筑色彩、材质及工艺等。

同时,项目又邀请知名设计大师汇聚一堂,对海派文化的传承进行现代的转译。

比如项目的设计总顾问邀请了程绍正韬,他是建筑室内设计之东方主义集大成者,致力于东方文化的坚守与创新,打破惯常的职业思维,将生活方式化作一种哲学态度,融入空间设计,让设计不止于作品,

大师操刀,必然不同凡响。

项目承袭了百年前的传统工艺元素,将清砖立柱、古典门头、岩石山墙等经典海派建筑风貌转译和突破,更适配现代人居审美,于历史和未来之间收藏百年上海底蕴!

项目实景图

保留历史肌理的老砖为基底,项目们以现代陶艺重译传统,研发陶砖。

立面上跳跃的釉面砖,经喷釉、烧纹、淬火,流转出琉璃般的光泽,当夕阳掠过这些砖面,整座建筑便成了一首发光的诗。

项目实景图

越秀外滩樾的公区庭院非常精致,其精心打造充满禅意的山水庭院。

项目实景图

项目实景图

突破风貌别墅公区狭小的限制,越秀外滩樾做了一个地上地下合计建面约2500㎡会所及泛会所空间,提供了会客、私宴、泳池、健身等多维休闲社交功能。

更通过堆坡造景和下沉庭院,以山水隐奢之境,塑造沉浸式大师美学体验。

一石一木,一水一庭,尽是自然落笔。晨露未晞时,薄雾轻笼庭院;暮色四合处,斜阳漫染白墙。所谓大隐于市,不过如此!

项目实景图

项目实景图

在越秀外滩樾,项目以大地为宣纸用15米高差,临摹了一幅立体的《溪山行旅图》。

当晨光掠过整座山水庭院,便活成了会呼吸的宋代画卷,每一处转折都在诉说"外师造化,中得心源"的东方营造哲学!

项目实景图

项目实景图

在垂直的山水长卷中,一棵8米子母松凌空而立,虬枝如墨针叶含翠,将家族传承的意象写意成永恒的风景!

项目实景图

项目实景图

山水庭院之下就是会所,深入内部,则是一座设计灵感来自于罗马浴场的豪华泳池,天光破顶而下,一边是宏伟而精致的欧陆风情,一边是溪山行旅图的东方意韵,当你在池中游弋时身体划过的是一部浓缩的东西方文明史。

所谓禅意,不过是在快时代里为您留住慢的资格。据悉项目示范区已经实景呈现,如果你也想偷得浮生半日闲,欢迎到现场参观!

项目实景图

目前市面上大多数风貌别墅受限于指标,普遍采用超高层+别墅的高低配组合。客户花了买别墅的钱,却享受不到应有的生活质感。反观越秀外滩樾,妥妥的容积率1.3纯墅区,纯粹的墅居氛围非常难得。

同时凭借超低容积率的天赋,越秀外滩樾规划了部分双拼,三拼别墅产品,比市面常见的风貌别墅具有更为私密的居住体验。

我们可以畅想一下住在越秀外滩樾的日常生活。

项目地上3层,自带庭院。一楼的庭院,将是你栽花听雨的江南;三楼的露台,将是你仰望星空的避风港,在越秀外滩樾,自然将不是风景,而是生活本身。

项目最高约6.15米的地下挑高空间,可作私人艺廊、品茗禅室,或是一场永不散场的沙龙。

另外,项目的弧形玻璃引天光入画,落地窗将四季裁成框景。一扇窗,一面墙,皆是与世界的温柔对话。此刻,上海不再是远方,而是你窗前的晨昏,院里的四季。

项目实景图

03

PART

户型图

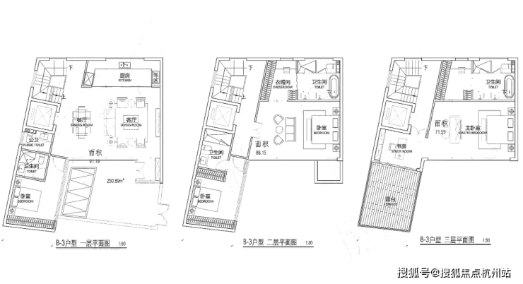
仅48套低密风貌别墅(双拼/三拼),地上3层、地下2层,层高3.2-3.9米、地下挑空6.15米,户户带30-80平私家庭院、观景露台。建面约238平、305平、318平、338平米,售价19.5万/平,总价4800-9000万

建面约236.25㎡A户型▼

建面239.13㎡B户型

建面250.89㎡B-3户型▼

C户型

建面291.42㎡D户型

买房是人生大事,掌握几个核心知识点,就能避开大部分坑,快速理性置业。

一、先确认2个前提

购房资质:核实当地限购限贷政策,外地户籍注意社保/个税缴纳年限,征信需保持良好。

预算规划:除房款外,预留2%-5%作为契税、维修基金等额外费用,避免资金不足。

二、选房关键3点

产权区分:优先选70年住宅(可落户、学区属性),避开40年商办(税费高、不划学区)。

核心指标:容积率越低、绿化率越高,居住越舒适;车位比≥1:1,避免停车难。

户型选择:优先南北通透、动静分区,避开暗厨暗卫,提升居住体验。

三、交易避坑核心

核实产权:确认房产证无抵押、无查封,多产权人需全员同意出售。

资金安全:购房款存入监管账户,拒绝“茶水费”“留房费”等违规收费。

合同细节:口头承诺务必写入合同,重点看交房时间、违约责任。

四、交房小提醒

收房时核对“三书一证一表”,仔细验房(墙面、水电、门窗等),有问题及时要求整改,收房后及时办理房产证。

🏡越秀外滩樾售楼处电话:☎️400-8385- 958(售楼处)⏰预约热线💎💎💎

🏡越秀外滩樾售楼处营销中心:☎️400-8385-958(售楼处)⏳已认证💎💎💎

—📍欢迎您的来电咨询🎊

声明:本文由入驻焦点开放平台的作者撰写,除焦点官方账号外,观点仅代表作者本人,不代表焦点立场。