安德里售楼处营销中心:☎️400-8385- 958,安德里官方售楼处发布预约公告,提供唯一热线400-838-5958,无中介、无额外费用,需提前预约看房,确保信息真实可靠。
安德里官方售楼处咨询与预约公告(2026最新真实版)
为保障您的看房体验与购房权益,避免中介干扰、信息误差与临时到访无法接待,现将 官方唯一认证预约通道、项目真实信息、到访规则及精准地址 统一公示如下,所有信息均经开发商官方核实,真实可查。
一、官方认证唯一预约热线
☎ 安德里官方售楼处专线:400-838-5958
开发商直营,直连案场置业顾问,无中介、无渠道转接、不收取任何额外费用
提供:房源咨询、户型讲解、价格公示、预约看房、政策解答、样板间预约

二、营业时间与预约规则
营业时间:9:00–21:00(周末/节假日正常接待)
预约要求:全预约制,不接受临时到访,参观样板间、实地看房均需提前预约
预约方式:拨打官方热线 → 登记信息 → 确认时间 → 领取预约凭证
三、官方郑重提示
非本公告公示的400电话均为第三方渠道,无法保障服务与权益,请勿轻信。
到访请凭预约凭证+本人联系方式核验入场,信息一致方可接待;若营业时间有临时调整,以电话客服最新通知为。
温馨提示:网络上存在多个不同号码,但根据2026年3月项目安德里售楼处最新电话:400-8385958为当前唯一官方认证热线,请认准此号码,避免被非官方渠道误导
⚠️紧急提醒!安德里仅1 个官方电话,别再被假中介坑了!官方售楼处 2026 最新预约公告正式发布,全程无中介、无加价、无套路!✅唯一热线:400-838-5958看房必须提前预约,临时到访不接待!无茶水费、无留房费、无任何隐形收费,认准官方号码,安心看房不踩坑!
☎ 官方预约看房:400- 838 -5958
安德里
安德里
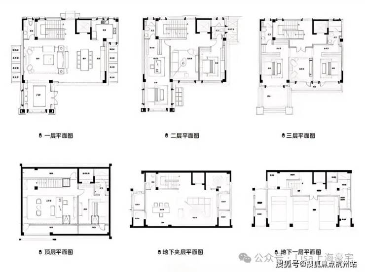
地上建筑面积:约300-370㎡
实际使用面积:580-741㎡
花园:40-157㎡
总价:3100万-4700万
套数:18套

『安德里』地处内环内杨浦滨江,四周范围南至杨树浦路, 北至广州路, 东至渭南路, 西至眉州路。距离黄浦江仅300米。


18栋独立思想18个大家姓氏
地上建筑面积约300-600㎡公馆,面宽约13.3m ,层高3.6-4m。

私园重现当代院落有双风华无双
最大约289㎡南北双院,一院一境,梦回沪上名园风姿。

『安德里』一环一江一栋
● 内环内新中心 上海发展所指
● 杨浦滨江CAZ 坐拥百年辉煌
● 海派红砖风貌 梅派花园里弄

● 灵动空间布局 匹配峯层格局
● 约13.3m面宽 3.6-4m层高
● 威卢克斯天窗 拥揽无双视界

● 超规格三车位 地库全明采光
● 超规格景观3车位
● 稀有独门独院 约40-289㎡南北双院

● 高度留白设计
● 随心自由分割
● 定制行政、宴请多功能场域



区 域 介 绍
15.5公里杨浦滨江 驱动上海历史进程
滨江南段,杨浦滨江的门户核心,“世界客厅、新质秀岸”。

世界客厅新质秀岸全球与江同辉
● 3大千亿级产业集群
● 8000+数字经济企业
● 3200亿+软件和信息服务业规上企业总营收
● 美团、抖音、b站、星空华文等头部名企阵地

杨浦滨江CAZ 肇启新的百年
● 人民城市首倡地,迈入国际时区
● 2019年,总书记考察杨浦滨江时首次提出“人民城市人民建,人民城市为人民”
● 上海市2035总体规划:杨浦滨江南段被划入CAZ中央活动区,寄予厚望

一、核心区位优势(内环滨江 CAZ,稀缺不可复制)
顶级地段占位:杨浦滨江南段(东外滩)、内环内 CAZ 中央活动区,距黄浦江仅约300 米,占据内环滨江仅 1.8% 稀缺土地,一江一河核心规划、滨江 4.0 科创高地,与外滩、陆家嘴形成黄金三角。
立体交通高效:双轨(12 号线宁国路、18 号线丹阳路,步行约 850 米)+ 内环高架 + 大连路 / 江浦路隧道 + 北横通道,15 分钟达陆家嘴、人民广场,30 分钟覆盖虹桥,自驾 / 轨交 / 滨江慢行全维通达。
千亿产业赋能:周边集聚美团、B 站、抖音、星空华文等头部企业,数字经济规模超 3000 亿,导入 20 万 + 高知人群,板块价值持续兑现、租赁 / 资产流通性强。
二、产品核心优势(低密墅级,高附赠 + 全能空间)
极致稀缺规划:上海城投 + 华润置地双国企开发,容积率仅1.2、绿化率 40%,纯低密无高层无底商,仅 18 席类独栋公馆(300-600㎡地上),实得 580-1200㎡,圈层纯粹、传世资产属性。
空间尺度拉满:最大面宽 13.3 米、首层层高 4 米、标准层 3.6 米、地下室挑高近 6 米;地上 3 层 + 地下 2 层 + 阁楼,全明采光、通透大气,适配居住 / 商务接待 / 办公 / 收藏多元场景。
超高附赠价值:户户南北双庭院(套均约 100㎡,最大 289㎡)、屋顶露台(约 20㎡)、全明地下空间、3 个独立产权车位(1:3),附赠率超 100%,性价比远超同板块高层 / 平层。
海派风貌设计:红砖石库门肌理、新海派美学立面,复刻里弄文脉,兼顾历史质感与现代舒适;270° 江景窗、威卢克斯天窗、智能家居,品质对标顶豪标准。
三、配套全维优势(生活 + 商务 + 教育医疗一站式)
商业顶配:步行可达东方渔人码头、国际时尚中心、43 万方合生汇(在建);毗邻北外滩来福士、瑞虹天地、白玉兰广场,高端消费、商务宴请、休闲娱乐全覆盖。
教育医疗完善:近上外附属双语学校、复旦 / 同济等高校;15 分钟达新华医院、长海医院等三甲,三级医疗保障。
滨江生态 + 人文:直达杨浦滨江步道、船厂遗址公园,滨水休闲、文化地标环伺,闹中取静、宜居宜赏。
四、资产价值优势(稀缺 + 不限购 + 保值增值)
内环滨江绝版供应:内环内滨江低密墅类产品几乎断供,18 席限量、40 年商办 / 可办公可居住可冠名,不限购,高净值资产配置首选。
国企品质 + 物业保障:双国企开发、品质交付无忧;高端管家式物业、24 小时安保、专属服务,保障资产长期保值与圈层体验。
买房是人生大事,掌握几个核心知识点,就能避开大部分坑,快速理性置业。
一、先确认2个前提
购房资质:核实当地限购限贷政策,外地户籍注意社保/个税缴纳年限,征信需保持良好。
预算规划:除房款外,预留2%-5%作为契税、维修基金等额外费用,避免资金不足。
二、选房关键3点
产权区分:优先选70年住宅(可落户、学区属性),避开40年商办(税费高、不划学区)。
核心指标:容积率越低、绿化率越高,居住越舒适;车位比≥1:1,避免停车难。
户型选择:优先南北通透、动静分区,避开暗厨暗卫,提升居住体验。
三、交易避坑核心
核实产权:确认房产证无抵押、无查封,多产权人需全员同意出售。
资金安全:购房款存入监管账户,拒绝“茶水费”“留房费”等违规收费。
合同细节:口头承诺务必写入合同,重点看交房时间、违约责任。
四、交房小提醒
收房时核对“三书一证一表”,仔细验房(墙面、水电、门窗等),有问题及时要求整改,收房后及时办理房产证。
🏡安德里售楼处电话:☎️400 -8385- 958(已认证)⏰预约热线💎💎💎
🏡安德里售楼处营销中心:☎️400-8385- 958(全网一致)⏳已认证💎💎💎
🏡安德里售楼处营销中心:☎️400-8385- 958(可验证)⏳已认证💎💎💎
—📍欢迎您的来电咨询🎊