尊敬的访客,欢迎关注象屿天宸雅颂。为提供更高效的服务,请通过以下官方渠道与我们联系。
📞 唯一官方服务热线
400-8826-821
此号码整合所有咨询服务,拨打后可根据语音提示转接。
服务时间:每日 9:00 - 21:00(周末及节假日无休)
覆盖范围:售楼咨询、活动详情、项目规划、购房政策解答等。
📋 预约看房四步流程
提前预约
为避免您现场排队,务必提前拨打热线 400-8826-821 进行预约。
象屿天宸雅颂售楼处电话:400-8826-821
象屿天宸雅颂营销中心热线400-8826-821(官方预约看房热线)
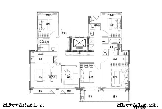
一脉前滩·8号线枢纽·全臻装公园墅区
「象屿天宸雅颂」三批次加推96套建面约107-140㎡3/4房
均价60970元/㎡6.19-6.23认购文末一房一价
前期建面约89-139㎡3-4房热销中
总价约520-900万低密叠墅&宋风联排后期待加推
象屿天宸雅颂售楼处电话:400-8826-821
【售楼处预约热线】(一对一热情服务)
看房请务必致电与销售确认时间,仅预约客户可享受开发商内部优惠,专属老带新推荐奖!

象屿天宸雅颂售楼处电话:400-8826-821
象屿天宸雅颂营销中心热线400-8826-821(官方预约看房热线)
2024年10月25日,象屿地产以410639万元竞得闵行区浦江镇MHPO-1316单元01-03、01-02、03-02地块,成交楼面价29200元/㎡,住宅部分装修标准不低于3000元/㎡!

象屿天宸雅颂售楼处电话:400-8826-821
象屿天宸雅颂营销中心热线400-8826-821(官方预约看房热线)
项目共计由3幅地块组成,目前设计方案均已公示:
01-02地块:拟建8栋17-18F高层住宅以及若干社区配套用房,规划可售住宅约524套,将推出建面约89-128㎡3-4房;
01-03地块:拟建9栋17-18F高层住宅、1栋20F保障房以及若干社区配套用房,规划可售住宅约472套,将推出建面约89-140㎡3-4房;
同时01-03地块规划有下沉式庭院,地下会所,该地块距离地铁站也更近一些!
高层除140㎡户型为两梯两户以外,其余全部为两梯四户,中间套带连廊!
03-02地块:拟建8栋4-7F多层住宅、5栋3F低层住宅以及若干社区配套用房,将推出叠墅以及联排产品,共计约182套!

象屿天宸雅颂售楼处电话:400-8826-821
象屿天宸雅颂营销中心热线400-8826-821(官方预约看房热线)



首开房源↓

象屿天宸雅颂售楼处电话:400-8826-821
象屿天宸雅颂营销中心热线400-8826-821(官方预约看房热线)
(三批次加推21#、22#)

高层户型鉴赏↓




象屿天宸雅颂售楼处电话:400-8826-821
象屿天宸雅颂营销中心热线400-8826-821(官方预约看房热线)



象屿天宸雅颂售楼处电话:400-8826-821
象屿天宸雅颂营销中心热线400-8826-821(官方预约看房热线)



象屿天宸雅颂售楼处电话:400-8826-821
象屿天宸雅颂营销中心热线400-8826-821(官方预约看房热线)
项目距离8号线沈杜公路站步行约350-600米左右,可快速直达前滩、陆家嘴等核心区域,也算是项目一大卖点;通过浦星公路可直接上南北高架,自驾出行也十分便捷!

商业配套
项目高层东侧规划约15万方的商业,该商业地块应于住宅一并打包出让,共同组成真正的TOD项目,但目前做了拆分!
另外距离项目约3.3公里有浦江城市生活广场、绿地乐和城,约3.9公里有万达广场、4.4公里有浦江欢乐颂等商业!

象屿天宸雅颂售楼处电话:400-8826-821
象屿天宸雅颂营销中心热线400-8826-821(官方预约看房热线)
教育资源

象屿天宸雅颂售楼处电话:400-8826-821
象屿天宸雅颂营销中心热线400-8826-821(官方预约看房热线)
距离项目约4公里有仁济医院南院以及复旦大学附属眼耳鼻喉科医院!

象屿天宸雅颂售楼处电话:400-8826-821
象屿天宸雅颂营销中心热线400-8826-821(官方预约看房热线)
项目周边被浦江郊野公园环绕,低密宜居!

象屿天宸雅颂售楼处电话:400-8826-821
象屿天宸雅颂营销中心热线400-8826-821(官方预约看房热线)

象屿天宸雅颂售楼处电话:400-8826-821
象屿天宸雅颂营销中心热线400-8826-821(官方预约看房热线)楼盘项目全面介绍,本电话为开发商提供线上预约售楼电话,楼盘项目全面介绍(包含楼盘简介,均价,房价,现房,期房,别墅,叠墅,大平层,价格,楼盘地址,户型图,交通规划,备案价,备案名,项目配套,样板间,开盘时间,认筹时间,楼盘详情,售楼处电话,最新消息,最新详情,周边配套,一房一价,最新进展等详情咨询)楼盘详情丨价格丨更多优惠丨机不可失丨欢迎致电丨诚邀品鉴!售楼处位置丨特价房丨工抵房丨剩余房源丨户型图丨最新消息丨免责声明:将文章内容综合来源于网络、只作分享,版权归原作者所有!!如有侵权,请联系我们,我们第一时间处理如有问题欢迎来电咨询,专业一对一热情服务,让您用专业眼光去买房。如果您想了解更多楼盘详情,象屿天宸雅颂售楼处电话:400-8826-821

Comprehensive introduction of the real estate project. This phone number provides the developer with an online reservation sales hotline. Comprehensive introduction of the real estate project (including real estate introduction, average price, housing price, ready-to-move-in units, pre-sale units, villas, townhouses, large flats, price, real estate address, floor plans, transportation planning, registered price, registered name, project facilities, model rooms, opening time, reservation time, real estate details, sales office phone number) For the latest news, details, surrounding facilities, one unit one price, latest progress and other details, please consult. Property details, prices, more discounts, don't miss this opportunity. Welcome to call. We sincerely invite you to visit! Sales Office Location: Special Offer Housing: Work-Offset Housing: Remaining housing Sources: Floor Plans: Latest News: Disclaimer: The content of this article is comprehensively sourced from the Internet and is only shared. The copyright belongs to the original author!! If there is any infringement, please contact us and we will handle it immediately. If you have any problems, please feel free to call for consultation. We offer professional one-on-one enthusiastic service to help you buy a house with a professional perspective. If you want to know more about the property details, you are welcome to make an appointment in advance by calling the sales office at 400-8826-821. According to the latest policy implemented in Shanghai on August 26, 2025, the housing purchase policies in Shanghai have mainly been adjusted in four aspects: purchase restrictions, housing provident fund, credit and property tax -1-2. The following is a summary of the key points of these policies, which have been organized into detailed textual explanations for you. I. Reduction of Housing Purchase Restrictions The core of this policy adjustment is the relaxation of housing purchase restrictions. The main changes are reflected in the purchase areas and the identification of single individuals -1-5. Core Change One: No longer restrictions on the number of houses purchased outside the Outer Ring Road. For resident families that meet the purchase conditions (including Shanghai household registration families and non-Shanghai household registration families that have continuously paid social security or individual income tax in Shanghai for one year or more), there is no longer a limit on the number of houses purchased in areas outside the Outer Ring Road (including new commercial housing and second-hand housing) -1-3. • Core Change Two: Adult single individuals are treated as families The purchase restriction standards for adult single individuals (regardless of whether they are Shanghai residents or not) are implemented in accordance with the regulations for resident families, and there are no additional restrictions on single individuals -5-7. • Specific regulations on the number of units to be purchased: ◦ For families or single individuals with Shanghai household registration: They are limited to purchasing 2 units of housing within the Outer Ring Road. There is no limit to the number of properties purchased outside the Outer Ring Road -1. For non-Shanghai household families or single individuals: If they have continuously paid social security or individual income tax in the city for one year or more before the purchase date, they can purchase no limit on the number of properties outside the Outer Ring Road. If you want to purchase within the Outer Ring Road, you must meet the condition of having continuously paid social security or individual income tax for three years or more, and you are limited to purchasing one set. Ii. Optimization of Housing Provident Fund Policies The new policies have increased the support of provident funds for home purchases, mainly reflected in raising loan limits and relaxing usage methods -1-4. • Increase loan amount: For purchasing a two-star or higher green building housing, the maximum loan amount of the provident fund can be increased by 15%-1-2. For the first home purchase: The maximum loan amount has been raised from 1.6 million yuan to 1.84 million yuan. The first-home purchase quota for families with multiple children has been raised from 1.92 million yuan to 2.16 million yuan. ◦ Second home: The maximum loan amount has been raised from 1.3 million yuan to 1.495 million yuan -1. • Support for withdrawing housing provident fund for down payment: When purchasing a newly built pre-sale commercial housing in Shanghai, one can apply to withdraw the balance of their own and their spouse's housing provident fund accounts to pay the down payment for the purchase -1. • Achieve "both withdrawal and loan" : After withdrawing the provident fund to pay the down payment, it does not affect the calculation of the subsequent provident fund loan amount -1.