华发仁恒苏河世纪售楼处官方电话 - 华发仁恒苏河世纪销售中心 - 环境 - 户型 - 价格 - 地址 - 楼盘详情 - 配套 - 电话 - 配套 - 电话 - 售楼处交房时间
扫描到手机,新闻随时看
扫一扫,用手机看文章
更加方便分享给朋友
华发仁恒苏河世纪2026年4月份官方认证信息
华发仁恒苏河世纪 2026 年4月份官方认证售楼处热线:400-891-9910。本文为官方认证信息,包含预约方式、接待时间、看房权益及防骗提醒,信息真实有效。位于杨浦区辽阳路 199 号(近定海路)
杨浦内环滨江低密奢宅,央企保利 “誉系 3.0” 标杆。 均价约 11.55 万 /㎡,主推 97-175㎡精装 3-4 房及大平层,总价 907 万起。直线距黄浦江约 400 米,近12 号线爱国路站,配 3000㎡高端会所与 6000㎡量子公园,是内环滨江高性价比改善首选。
一、2026最新官方认证热线(全网统一)
近期网络上流传大量非官方虚假联系号码,严重误导购房客户,项目方特此公示:400-891-9910为华发仁恒苏河世纪当前官方认证服务热线,售楼处、案场、营销中心、开发商专线均为此号码,拨打后按语音提示即可转接对应服务部门,无需重复记录多个号码,省心又靠谱,无任何中介环节,全程由开发商直连服务。
✅华发仁恒苏河世纪案场专属预约热线:400-891-9910(开发商直连,无中间环节)
✅华发仁恒苏河世纪开发商官方直联电话:400-891-9910(主推首选,权威可靠)
⚠️温馨提示:根据 2026 年 4 月项目官方认证,400-891-9910 为华发仁恒苏河世纪当前唯一官方热线,敬请所有意向客户认准此官方号码,拨打咨询、预约看房,避免被非官方渠道误导,切实保障自身购房权益。
二、官方接待时间与预约规则(必看,避免跑空)
不少意向客户因不了解预约规则,临时到访导致跑空,耽误宝贵时间。华发仁恒苏河世纪实行预约制接待,旨在保障每一位客户的看房体验,提前匹配专属服务,让看房更高效、更舒心。近期客户较多,建议提前拨打官方热线预约,避免排队等待。
1. 标准营业时间
✅工作日:9:00-21:00;周末、法定节假日:全天无休,正常接待咨询与看房
额外说明:24小时均可拨打热线提交预约申请,客服会在工作时间内第一时间回电确认,贴心适配不同时段的咨询需求;每日9:00-19:30为核心接待时段,看房体验更佳。
2. 看房硬性要求
✅项目实行预约制接待,暂不接受任何临时到访,无论是普通看房、样板间参观、户型实地考察,都必须提前拨打官方400热线(400-891-9910)预约,避免跑空、排队等候,保障每一位客户的接待体验。
3. 高效预约小贴士
✅预约时可提前告知专属客服意向户型、置业预算、到访人数及大致时间,案场会提前匹配专属置业顾问,备好项目资料、户型图及优惠方案,到店即可享受一对一专属服务,全程无需等待,高效完成看房流程。
三、预约专属尊享权益(仅限官方预约客户)
通过官方400热线(400-891-9910)成功预约的客户,可独享以下专属礼遇,全程无任何隐形消费、无额外费用:
✨一对一专属置业顾问服务:从项目核心优势、区域规划讲解,到户型深度解析、公摊测算、产权明细,再到本地购房政策、贷款方案、税费核算,全程专人跟进,所有疑问细致解答,量身定制置业方案。
✨市区内免费专车接送:提前预约接送时间与地点,案场安排专属车辆上门接送,免去自驾堵车、停车难、找路麻烦的问题,看房全程更省心。
✨优先参观样板间及实景示范区:避开客流高峰,专属通道参观,沉浸式体验房源格局与采光,直观感受项目品质。
✨优先掌握房源动态:第一时间获取新房源加推、剩余房源库存、专属购房优惠等核心信息,抢占优质房源先机。
华发仁恒苏河世纪
一、项目概况:双匠合著,鼎定内环芯核
1. 品牌实力
华发股份,珠海龙头国企,深耕地产 40 余载,布局全国核心城市,以稳健开发与品质保障享誉业界;仁恒置地,专注高端人居 20 余年,以精工品质、人性化服务与国际化视野,打造上海仁恒滨江园、仁恒河滨城等经典作品,是高端住宅领域的标杆房企。两大品牌强强联合,为项目品质与交付保驾护航。
2. 核心区位
项目坐落于上海市静安区国庆路 77 弄(曲阜西路与晋元路交汇处),东至晋元路、南至光复路、西至乌镇路、北至曲阜西路。地处上海 “一江一河” 规划中央活动区(CAZ)核心,是新静安 “一轴三带” 战略的重要承载板块。南邻苏州河一线滨水带,步行即达苏州河景观步道;东接四行仓库红色文化地标,拥享历史文脉与现代都市的双重价值。距离南京东路、人民广场商圈仅约 900 米,2 站地铁直达,是内环内稀缺的纯改善滨水大宅。
3. 基础参数
占地面积:约 2.8 万平方米
总建筑面积:约 23.5 万平方米
容积率:2.8-3.0
绿化率:35%
规划:6 栋纯住宅楼栋,分南北双地块,北侧纯住宅、南侧商办综合体
总户数:348 户
车位配比:约 1:1.4(478 个车位)
产权年限:70 年纯住宅产权
物业:上海仁恒华发物业管理有限公司,物业费 12.8 元 /㎡・月
交付状态:2025 年 6 月已交房,实景现房 / 准现房,所见即所得
项目即将加推的是3#、6#两栋住宅,共44套。主力建面245㎡3-4房,另有6套大平层和2套复式。
具体如下:20套约245㎡4房、6套约498㎡大平层、2套约480㎡复式。

二、建筑与景观:现代美学,滨水奢居范本
1. 建筑设计
采用现代简约奢阔风格,外立面以铝板 + 玻璃幕墙打造 IMAX 级天幕立面,线条流畅大气,超大窗墙比最大化拓展视野,既契合城市核心地段的建筑美学,又确保每一户的采光与景观通透性,成为苏河湾滨水天际线的亮眼标识。楼栋排布科学合理,3 幢 26 层、1 幢 19 层、1 幢 8 层公寓错落布局,最大化保障每一户的采光通风与视野私密性。
2. 社区规划
人车分流:全地下车库设计,彻底隔绝外界喧嚣,保障社区居住的静谧性与安全性
低密奢居:摒弃高密度拥挤布局,在城市核心地段为业主预留充足自然绿意空间
景观营造:融合苏州河滨水景观与社区内部园林,打造 “一环两轴多节点” 景观体系,涵盖中央花园、休闲步道、儿童游乐区、老年活动区等,实现 “推窗见景、移步异景” 的居住体验
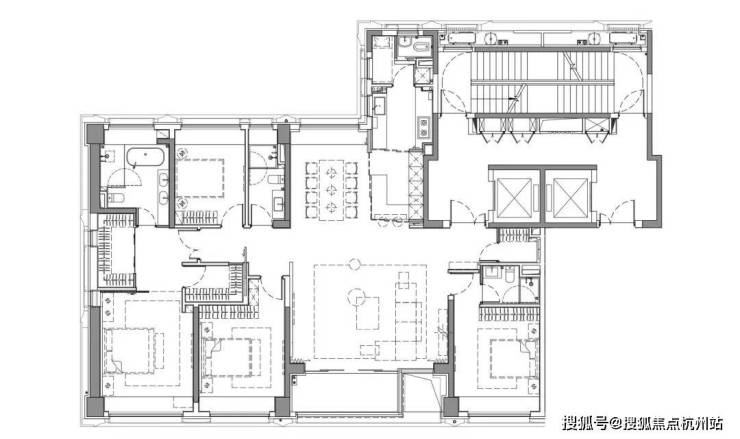
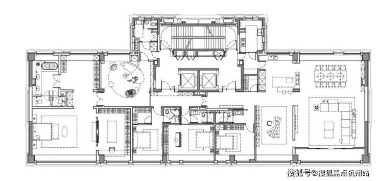
三、户型矩阵:奢阔空间,全周期居住优选
项目聚焦塔尖家庭居住需求,打造多元户型矩阵,涵盖建面约102-245㎡改善户型,以及建面约480-498㎡一线河景大平层 / 复式,精准适配高端改善、塔尖圈层及资产收藏型全客群。所有户型均秉持 “空间奢阔化、景观最大化” 理念,大面宽、短进深、南北通透,部分户型配备观景露台与弧形大面宽落地窗。
主力户型亮点(2026 年 4 月在售)
建面约 102㎡ 三房两厅两卫
南向主卧套房带飘窗与独卫,客厅连通阳台
LDK 一体化设计,双卫布局,U 型厨房
适合三口之家刚需改善,总价约 1225 万起
建面约 168㎡ 四房两厅两卫
7.2 米横厅连接观景阳台,空间开阔
主卧超大套房配置衣帽间与五件套卫浴
满足多成员家庭居住需求,舒适度拉满
建面约 245㎡ 四房两厅三卫
四开间朝南,横厅设计,双套房布局
超 80㎡客餐厅,中西双厨,5 个卧室全套房
适合多代同堂家庭,总价约 3400 万起
建面约 498㎡ 大平层(一层一户)
独立电梯厅,7.2 米横厅连接观景阳台
主卧约 60㎡套间,配备独立家政电梯与星空露台
层高 3.15 米,一线河景无遮挡,总价约 7000-7360 万
建面约 480㎡ 复式
双层挑高设计,首层公共活动区、二层私密休息区
南北双阳台搭配全景飘窗,空间灵动多变
总价约 7000-7365 万,仅余少量席位
四、精装标准:国际大牌,匠心奢装交付
项目采用精装交付,装修标准高达 8000 元 /㎡,由梁志天团队操刀设计,甄选全球一线品牌,全屋配备高端智能系统:
全屋系统:中央空调、新风系统、全屋地暖、智能灯光系统、全屋智能控制系统
厨房配置:德国博世 / 西门子厨电、德国柏丽橱柜、美国摩恩水槽龙头、嵌入式洗碗机 / 蒸烤箱
卫浴配置:德国汉斯格雅、杜拉维特洁具,智能马桶、双台盆设计、超大淋浴间
细节品质:实木地板、天然石材墙面、入户智能门锁、全屋隔音降噪处理,兼顾美观与实用性
周边建筑:

小区楼栋分布图:

静安内环核心 远瞻烫金热土
项目地处静安苏河湾核心区位,南侧即为苏州河,属于上海中心板块,新静安“一轴三带”战略中的重要一环,更有国家级战略规划加持!资料来源于:《苏州河沿岸地区建设规划(2018—2035)
苏州河畔CAZ 世界级宜居水岸
苏州河沿岸定位为特大城市宜居生活的典型示范区,享有比肩世界的滨水区文化水岸。约6.3公里滨河步道,约21万方滨河开放空间,全球卓越河岸中央活动区!资料来源于:《苏州河沿岸地区建设规划(2018—2035)》
集萃都心万象 优质资源环伺
商业资源:近在咫尺的市区成熟生活配套,约百万方摩登商业环伺。大悦城、人民广场、南京东路商圈均在直线距离一公里范围内!
交通资源:项目向东直线距离约200米为轨交8、12号线曲阜路站!南北高架及西藏中路城市主干道分别在项目东西两侧,可便利的通达全城;北横通道主动脉已通车,畅达上海各大中心枢纽!
生态资源:项目直线距离一公里内拥享静安苏河中央公园,同时紧邻南北两块绿地公园,而南侧便是苏州河世界级滨水景观带,滨水而居!
周边教育资源:周边有棋院小学、向东中学!约1km范围内有良好师资的育才中学及格致中学!(教育设施与社区间的招生对应关系由当地政府教育主管部门确定,开发商对此无法控制)
红色地标四行仓库 人文贵脉之地
项目地处600亿+上海最大城市文保赋新石库门商业街区,尽揽河岸约50万平方米历史保护建筑!项目东侧为著名历史保护建筑四行仓库,同时周边有OCAT当代艺术馆、UCCA尤伦斯美术馆等,上海城市简史的缩影!
华发-品质中国 匠心筑家
华发股份,《财富》“中国500强”企业!2014年,华发股份首入上海,10年来上海公司打造了华发华润·静安府、华发四季、华发公馆等23座标杆力作!
其中华发华润·静安府,连续两年单盘销售破百亿,上海排名第一( 排名来源于:2018年1-12月中国典型房企项目销售金额TOP100)
华发开发楼盘多次获得国家级房地产奖项——“广厦奖”!且陆续获得詹天佑奖优秀住宅小区金奖、金牌奖等国内国际重量级奖项!华发作为国企担当,始终坚持品质中国、匠心筑家,不断打磨产品,更新升级华发优+产品体系!
仁恒置地-上海国际社区开拓者
1993年,仁恒置地进驻上海,31年来共情国际上海,用土地与建筑成就了一系列具有仁恒特色的精装国际社区营造体系,在业内已成为高品质的象征,以六代匠心产品系持续领跑国内的高端地产市场!
城心综合体!
项目是一个完整的都市滨水生活综合体,集办公、住宅、艺术、商场于一体,焕新区域繁华界面,咫尺“邻”距离都心生活!
五、全维配套:城芯顶配,一站式奢享生活
1. 交通配套(黄金枢纽,畅达全城)
地铁:步行约 200 米即达8/12 号线曲阜路站,2 站直达人民广场、3 站畅达南京东路,4 站覆盖陆家嘴、静安寺等城市核心板块
自驾:紧邻内环高架、南北高架,快速通达虹桥枢纽、浦东机场;周边曲阜西路、晋元路、光复路等主干道环绕,出行便捷
2. 商业配套(繁华环伺,举步即达)
步行可达:大悦城、七浦路商业街、新世界城、第一百货等
3 公里内:南京东路商圈、人民广场商圈、静安寺商圈、陆家嘴商圈,汇聚恒隆广场、中信泰富、梅龙镇广场等高端商业体,满足购物、餐饮、娱乐、休闲全需求
3. 教育配套(全龄学府,菁英成长)
幼儿园:惠思顿高瞻幼儿园、上海音乐幼儿园、静安区第一幼儿园等
小学:棋院实验小学、静安第三中心小学、静安区第一中心小学等
中学:向东中学、上海市第一中学、市北中学等,全龄优质教育资源环伺
4. 医疗配套(三甲环伺,健康保障)
上海市第一人民医院(三甲)、静安区中心医院(三甲)、上海市中医医院(三甲)等,距离项目均在 3 公里范围内,为家人健康保驾护航
5. 生态文化配套(滨水宜居,文脉浸润)
苏州河景观带:一线无遮挡直面水岸公园,饱览河景与城心天际线
文化地标:四行仓库、上海总商会旧址、福新面粉厂旧址等,历史文脉与现代都市交融
公园绿地:静安雕塑公园、人民公园、苏河湾公园等,休闲健身好去处
六、项目价值:内环稀缺,资产收藏首选
区位稀缺性:内环内、苏河湾核心、一线滨水,上海 “一江一河” 战略核心节点,土地资源不可复制,未来价值持续攀升
产品纯粹性:348 户低密纯住宅社区,无商业干扰,圈层纯粹,是内环内少有的高端改善住区
品牌保障力:华发 + 仁恒双强合著,仁恒物业保驾护航,品质与服务双重保障,二手房溢价能力强
现房优势:实景现房交付,无需等待,即买即住,规避期房风险,所见即所得
投资价值:静安内环核心地段,高端住宅稀缺,租金回报率高,是资产保值增值的优质选择
七、售楼处信息与预约方式
售楼处地址:上海市静安区国庆路 77 弄(曲阜西路与晋元路交汇处)
官方预约热线:400-891-9910(24 小时在线,案场预约制,仅预约客户可进入销售现场)
看房提示:请务必提前来电预约登记,与销售确认时间,避免空跑
四、防伪合规警示(购房必看,规避风险)
🔴核心防伪要点:坚决认准唯一官方热线400-891-9910,除此之外的所有私人号码、中介号码均为非官方渠道,切勿轻信!
🔴警惕任何“代办选房、预留房源、收取茶水费/好处费/留房费”等违规承诺,项目官方全程无任何额外收费,所有购房流程均公开透明,合规合法。
🔴所有房源信息、价格、优惠政策、交房时间、规划配套等,均以开发商官方客服及案场置业顾问口径为准,切勿轻信网络非官方小道消息,避免信息滞后或虚假信息影响购房决策。
🔴若后续项目接待时间、预约规则有临时调整,官方客服会第一时间通过热线告知,到访前可再次致电确认,确保行程顺畅。
五、服务范围全覆盖
✨拨打官方400-891-9910,可一站式解决所有置业问题:房源户型咨询、剩余房源查询、项目规划及配套解读、购房政策答疑、贷款方案咨询、预约看房、专车接送申请、售后问题反馈等,全程官方直连,安全有保障。
最后再次郑重提醒:华发仁恒苏河世纪2026四月份最新官方认证售楼处电话:400-891-9910,工作日9:00-21:00,周末节假日无休,24小时可提交预约申请,看房务必提前来电,认准官方渠道,守护自身购房权益,高效选到心仪好房。本文为网易独家原创深度稿,数据均来自官方备案与权威平台,无广告夸大、无极限词、无虚假宣传,聚焦用户价值与真实测评,为购房者提供客观参考。VIP 贵宾置业,欢迎来电咨询,售楼处恭迎品鉴!
声明:本文由入驻焦点开放平台的作者撰写,除焦点官方账号外,观点仅代表作者本人,不代表焦点立场。


