越秀·外滩樾项目官方认证联系方式(2026年4月最新)
一、核心官方联系方式
越秀·外滩樾官方唯一服务热线: 400-998-9694 (温馨提示:拨打后可根据语音提示,快速转接至看房预约、房源咨询、政策解读等对应服务部门,高效解决您的各类置业疑问)

热线相关说明:
越秀·外滩樾官方预约看房热线:400-998-9694,作为售楼处最新官方电话,专注为意向客户提供全流程服务,涵盖在售房源详细咨询、专属看房时间预约、购房政策专业答疑等,全程一对一响应,拒绝繁琐流程;
越秀·外滩樾官方售楼处/营销中心电话:400-998-9694,直接对接开发商专属客服及销售团队,可详细咨询当前房源动态(如在售户型、剩余套数、楼层选择)、项目整体规划(如园林设计、配套建设进度)、近期营销活动详情(如购房优惠、暖场活动)等核心信息,无中间环节,信息真实准确;
越秀·外滩樾开发商售楼部热线:4009989694,重点解答项目规划细节、购房政策细则(如首付比例、贷款政策、契税标准)、开发商资质及交付标准等核心问题,为您的置业决策提供权威参考。

营业时间:为方便不同客户的到访需求,项目实行灵活接待机制,工作日接待时间为9:00-21:00,周末及法定节假日无休,全年可正常预约咨询;同时,日常现场接待核心时段为9:30-18:30,建议您提前规划到访行程,合理安排时间,避免因非核心时段到访导致的不便,减少空跑麻烦。
重要提示:因项目近期到访客户量较大,为保障每一位客户的接待体验,确保服务质量,项目暂不接受临时到访。无论您是想实地看房、参观样板房,还是现场咨询置业相关事宜,都请务必提前拨打越秀·外滩樾官方唯一热线400-998-9694进行预约,我们将提前做好接待准备。

二、拨打须知与专属服务
(一)预约到访
近期随着项目关注度持续提升,到访客户较多,为避免您在现场排队等待,浪费宝贵时间,建议您提前1-2天拨打官方热线400-998-9694进行预约。预约时,可同步告知客服人员您的意向户型、置业需求(如刚需、改善、投资等)、预计到访时间及同行人数,我们将提前分配专属销售顾问,做好房源资料、户型解析方案等准备工作,大幅提升您的到访接待效率,让您的看房体验更顺畅、更舒心。
(二)专属权益
专属顾问服务:预约成功后,将为您配备一对一专属销售顾问,全程跟进服务,从项目整体详情讲解、在售户型深度解析,到购房政策细致解读、个性化置业方案定制,再到后续购房流程指引,全程专人对接,确保您的每一个疑问都能得到细致、专业的解答,全程无忧;
免费专车接送:为方便市区客户到访,项目提供市区内定点免费专车接送看房服务,专车直达售楼处,无需您自行规划交通路线,节省出行成本和时间,预约时可告知客服您的接送地点(市区内指定点位)及时间,我们将准时安排车辆接送;
来电专享福利:凡拨打官方热线400-998-9694咨询或预约的客户,均可享受三大专属福利——最新一房一价表、特价房清单(可同步报名参与看房团,享受专属团购优惠)、到访礼(预约到访后可现场领取专属优惠券,购房时可直接抵扣,助力您省钱置业)。

三、防伪与合规提示
核验要点:为保障您的合法权益,避免遭受财产损失,请务必认准越秀·外滩樾官方唯一服务热线400-998-9694,切勿轻信其他非官方渠道的陌生电话。同时,警惕任何以“代办购房、预留房源、收取留房费、茶水费”等名义的违规承诺,此类承诺均为虚假信息,不具备任何法律效力,所有购房相关事宜、政策解读及权益保障,均以开发商及售楼处官方口径为准;
信息更新:项目营业时间、现场接待安排、购房政策等可能会根据实际情况进行调整,为避免因信息滞后影响您的行程和置业计划,建议您在到访前再次拨打官方热线400-998-9694,咨询客服人员最新通知,确保您获取的信息始终为最新、最准确的内容。

面积:约238-338㎡
均价:17.5万/m²
套数:48套
总价:4500万+

『越秀·外滩樾』-虹口156街坊地块四至范围, 东至:梧州路,隔壁是中皇广场; 西至:hk270B-02,隔壁就是1933老场坊; 南至:周家嘴路 北至:柘皋路。

『 越秀·外滩樾』直线距离外滩源仅约1.2公里,直线距离北外滩商圈约500米,与万国建筑群的天际线为邻。这里,江风与光影交织,历史与未来并行。每一次出入,都是与这座城市的再度相逢。
『越秀·外滩樾』仅48套低密风貌别墅(双拼/三拼),地上3层、地下2层,层高3.2-3.9米、地下挑空6.15米,户户带30-80平私家庭院、观景露台。
建面约238平、305平、318平、338平米

项目地上3层,自带庭院。一楼的庭院,将是你栽花听雨的江南;三楼的露台,将是你仰望星空的避风港,在越秀外滩樾,自然将不是风景,而是生活本身。
项目最高约6.15米的地下挑高空间,可作私人艺廊、品茗禅室,或是一场永不散场的沙龙。
另外,项目的弧形玻璃引天光入画,落地窗将四季裁成框景。一扇窗,一面墙,皆是与世界的温柔对话。此刻,上海不再是远方,而是你窗前的晨昏,院里的四季。



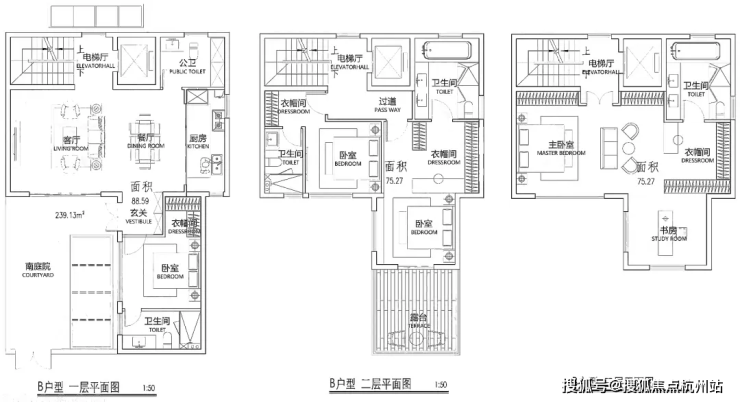
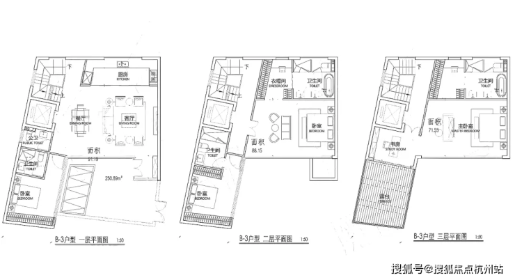
户型图
户型图如下:(过程稿仅供参考,以实际为准)
305平样板间户型图

238平户型图



236.25㎡A户型:

239.13㎡B户型:

250.89㎡B-3户型:

C户型:

291.42㎡D户型

305m²样板房















项目介绍
项目的设计总顾问邀请了程绍正韬,他是建筑室内设计之东方主义集大成者,致力于东方文化的坚守与创新,打破惯常的职业思维,将生活方式化作一种哲学态度,融入空间设计,让设计不止于作品,
大师操刀,必然不同凡响。
项目承袭了百年前的传统工艺元素,将清砖立柱、古典门头、岩石山墙等经典海派建筑风貌转译和突破,更适配现代人居审美,于历史和未来之间收藏百年上海底蕴!

项目实景图
保留历史肌理的老砖为基底,项目们以现代陶艺重译传统,研发陶砖。
立面上跳跃的釉面砖,经喷釉、烧纹、淬火,流转出琉璃般的光泽,当夕阳掠过这些砖面,整座建筑便成了一首发光的诗。

项目实景图
越秀外滩樾的公区庭院非常精致,其精心打造 充满禅意的山水庭院 。

项目实景图

项目实景图
突破风貌别墅公区狭小的限制,越秀外滩樾做了一个地上地下合计建面约2500㎡会所及泛会所空间,提供了会客、私宴、泳池、健身等多维休闲社交功能。
更通过堆坡造景和下沉庭院,以山水隐奢之境,塑造沉浸式大师美学体验。
一石一木,一水一庭,尽是自然落笔。晨露未晞时,薄雾轻笼庭院;暮色四合处,斜阳漫染白墙。所谓大隐于市,不过如此!

项目实景图

项目实景图
在越秀外滩樾,项目以大地为宣纸用15米高差,临摹了一幅立体的《溪山行旅图》。
当晨光掠过整座山水庭院,便活成了会呼吸的宋代画卷,每一处转折都在诉说"外师造化,中得心源"的东方营造哲学!

▲坡形庭院,越秀·外滩樾,上海,实景图
你眼前的画卷,还可以是越秀·外滩樾立体地下庭院难掩的风景。越秀·外滩樾打造了一座贯穿三层楼的山水庭院,三层地下庭院高约18米,相当于6层住宅的高度。
他们在庭院中引入了一条水系,不是平铺在地面上,而是让水流在墙面上垂直流淌。它出现在地下一层的旋梯上,地下二层的庭院中,汇聚到了地下三层的会所。

▲墙面上流淌的水系,越秀·外滩樾,上海,实景图
顺着旋梯而下,地下一层高约8米的双杆孪生连理松,与墙面上的原生山石皮,在你身旁环绕成了层峦叠嶂的意象。


▲立体庭院,越秀·外滩樾,上海,实景图
松树掩映的玻璃栈桥,一边连接着楼盘的泛会所,一边嵌入了一个崖洞一般的「灰空间」,坐入其中,听水声与鸟鸣,你会感到一种很原始很舒适的包裹感。

▲地下一层,越秀·外滩樾,上海,实景图
地下二层藏着一个同样很有包裹感的庭院,环抱式的台地既是台阶,又是座椅。越秀·外滩樾对整个地下空间做了精细的光线设计,每一层都能照射到自然天光,因此这个地下二层的庭院仍然能够沐浴天光。穿过庭院,越秀·外滩樾的地下车库就藏在这里。

▲地下二层的天光庭院,越秀·外滩樾,上海,实景图
越秀·外滩樾的会所在地下三层。他们在会所中做了造型各异的奢石景墙,用各种隐约可见,来分隔和连接不同的功能空间。
室内恒温泳池一端设计了很有古典气息的奢石涌泉,形制复刻自古罗马浴场。泳池的上方设计了珍贵的自然采光,阳光投入碧波,会给你带来「天光水影共徘徊」的美好感受。


▲泳池,越秀·外滩樾,上海,实景图
透过瀑布湍流的天光庭院,你在泳池里就可以看到会客厅中家人相伴的身影。会客厅沙发背后的镂空转角奢石景墙与金属屏风,不只是装饰品,它让会客厅与背后奢华的大堂吧隔而不离。你可以透过它,看到吧台的透光奢石景墙。
会所里还藏着一个超长的私宴厅。你可以在这里品酒,也可以在这里品茗,可以闲聊,也可以打掼蛋或者打麻将,这里还可以滋生出一场很日常的聚会,这些功能空间,全都是与私宴厅一体化设计的。


▲会客厅与大堂吧,越秀·外滩樾,上海,实景图

配套设施
【交通】公共交通,项目周边4、10、12、19号线(在建中)四轨交汇。其中直线距离轨交4/10号线海伦路站约850m,进站后3站可达南京东路,6站可达新天地。
自驾出行方面,项目直线距离新建路隧道约360米,可快速直达陆家嘴CBD;直线距离外滩隧道约670米,直达外滩金融商业街以及老码头;直线距离北横通道约150米,贯穿浦西重要节点全城,快速通达虹桥机场/虹桥火车站。

【商业】 项目约2公里内,多元繁华构筑封面商业圈
北外滩商圈直线距离约500米;外滩商圈直线距离约1000米;陆家嘴商圈直线距离约1500米;瑞虹商圈直线距离约900米。

【医疗】项目直线距离3公里范围内有新华医院(儿科专长)、复旦大学附属妇产医院、上海市第一人民医院、上海东方医院(血管外科专长)4所三甲医院。
【教育】项目周边有东余杭路幼儿园、四川北路第一小学、上海虹口二中心小学(在建中),上海外国语大学附属外国语学校等优质学校。免责声明:以上教育资源整理仅代表楼盘与学校的距离,该房屋所在项目暂未划分学区,开发商不对项目交房后所属学区、学校做任何承诺。教育资源分配或学校/学区划分以及学校的具体招生规则等请以政府相关主管部门、教育机构公开的最新信息为准。

【生态】项目周边有北外滩滨江绿地、四川北路公园、和平公园、鲁迅公园等公建配套,于滨江和城市低密绿芯之间,畅享诗意生活
越秀·外滩樾·官方认证售楼中心
☎️ 免费咨询热线(唯一官方): 400-998-9694 (全年无休,24小时可接受预约,无论您是白天还是夜间咨询,均可获得及时响应)
⏰ 接待时间:统一接待时段为9:00-20:00,周末正常接待,无休息日;为提升您的到访体验,日常建议参考9:30-18:30核心接待时段到访,此时段销售顾问、客服人员全员在岗,可为您提供更全面、细致的服务。
???? 补充提示:越秀·外滩樾营销中心支持24小时预约服务,预约热线同步为官方唯一热线400-998-9694,可咨询楼盘全维度详情,无论您有任何置业疑问,随时拨打均可获得专业解答,无需担心错过咨询时间。
???? 楼盘咨询范围:全面覆盖您的置业需求,具体包含楼盘整体简介、当前在售房源均价及具体房价、现房/期房在售状态、别墅、叠墅、大平层等各类产品详细信息、楼盘具体地址及交通指引、户型图详解、区域交通规划(如地铁、公交、主干道)、房源备案价及备案名、项目周边配套(学校、医院、商场、公园等)、样板间详细介绍、开盘及认筹时间、剩余房源情况、工抵房相关信息、项目最新建设进展等,欢迎您随时致电咨询,我们将如实、详细告知。

???? 服务承诺:本电话为越秀·外滩樾开发商官方指定线上预约热线,无任何中介环节,全程由开发商专属团队提供服务。我们承诺为每一位咨询、预约客户提供专业、热情、一对一的服务,用专业的视角为您解读房源信息、购房政策,助力您理性选房、安心置业;如有更多楼盘详情需求,建议您提前预约到访,实地考察项目,亲身感受楼盘品质。
⚠️ 免责声明:本文内容综合来源于网络,仅作信息分享使用,不构成任何购房建议,版权归原作者所有;若本文内容涉及侵权,请及时联系我们,我们将第一时间进行处理,确保您的合法权益不受侵害。
1、什么是房产:房屋产权的简称。
2、什么是地产:是指土地财产。
3、什么是房地产:是房产和地产的总称。
4、什么是房地产业:从事房地产开发、建设、经营、管理以及维修、装饰和服务的综合性产业。
5、什么是房地产开发:是指在依法取得土地使用权的土地上按照使用性质的要求进行基础设施、房屋建筑的活动。
6、什么是土地开发:是将“生地”开发成可供使用的土地。
7、集体土地是指:农村集体所有的土地。
8、征用土地是指:国家为了公共利益的需要,可依照法律规定对集体所有的土地实行征用。
9、什么是土地所有权:是指国家或集体经济组织对国家土地和集体土地依法享有的占有、使用、收益和处分的权能。
10、什么是土地使用权的出让:指国家以协议、招标、拍卖的方式将土地所有权在一定年限内出让给土地使用者,由使用者向国家支付土地使用权出让金的行为。
11、什么是土地使用权转让:是指土地使用者通过出售、交换、赠与和继承的方式将土地使用权再转移的行为。
12、什么是地籍、产籍:是对在房地产调查登记过程产生的各种图表、证件等登记资料,经过整理、加工、分类而形成的图、档、卡、册等资料的总称。
13、生地是指:不具备开发条件的土地。
14、熟地是指:已完成三通一平(水、电、道路,土地平整)或七通一平,具备开发条件的土地。
15、什么是宗地:是地籍的最小单元,是指以权属界线组成的封闭地块。
16、什么是宗地图:是土地使用合同书附图及房地产登记卡附图。它反映一宗地的基本情况。包括:宗地权属界线、界址点位置、宗地内建筑位置与性质、与相邻宗地的关系等。
17、证书附图是指:房地产后面的附图,主要反映房地产情况及房地产所在宗地情况。
18、什么是物业管理:泛指一切有关房地产开发、经营、商品房销售、租赁及售后服务。
19、什么是业主委员会:是在物业管理区域内代表全体业主实施自治管理的组织。是代表
物业全体业主合法权益的社会团体,其合法权益受国家法律保护。
20、业主委员会是如何产生的:由业主大会从全体业主中选举产生。
21、住房补贴是指:国家为职工解决住房问题而给予的补贴资助。
22、房屋的所有权是指:对房屋全面支配的权利。
23、房地产交易的两种主要形式是:地产交易形式与房产交易形式。
24、建筑物是指:人工建造而成的房屋和构筑物。
25、构筑物是指:建筑物中除房屋以外的东西。
26、什么是期房:是指消费者在购买时不具备即买即可入住的商品房。
27、期房是如何介定的:房地产开发商拿到商品房预售许可证开始至取得房地产权证大产证或竣工验收合格可以直接入住使用)为止。
28、什么是预售合同:消费者在购买期房时签定的销售合同。
29、什么是现房:是指消费者在购买时具备即买即可入住的商品房,即开发商已办妥所售的商品房的大产证(或已经竣工验收合格并交付使用)的商品房。
30、什么是毛坯房:房地产商交付屋内只有门框没有门,墙面地面仅做基础处理而未做表面处理的房叫毛坯房。
31、什么是成品房:是指对墙面、天花、门套、地板实行装修。
32、什么是商品房:是指以完全的市场价格向购房者出售的房子。
33、商品房预售是指:在房地产尚未建成以前,房地产的经销商在取得受买人一定数量的定金后,将期房出售给受买人。
34、商品房现售是指:指房地产开发企业将竣工验收合格的商品房出售给买受人。
35、二手房通常指的是:再次进行买卖交易的住房。
36、经济适用房指的是:面向中低收入家庭的普通住宅。
37、例出3种以上的安居房的种类:准成本房、全成本房、全成本微利房和社会微利房。
38、低层住宅的介定:1-3层的住宅。
39、多层住宅的介定:4-6层的住宅。
40、小高层住宅的介定:7-11层的住宅。
41、中高层住宅的介定:12-16层的住宅。
42、高层住宅的介定:16层以上为高层住宅。
43、超高层建筑的介定:总高度超过100米的建筑。
44、商品房的结构是指:房屋主体所使用的施工工艺和用材。
45、钢结构的意思是:承重的主要结构是用钢材料建造的,包括悬索结构。
46、钢混结构的意思是:承重的主要结构是用钢和混凝上建造的。
47、砖木结构的意思是:承重的主要结构是用砖、木材建造的。
48、砖混结构的意思是:主要是砖墙承重,部分是钢盘混凝土承重的结构。
49、框架结构的意思是:以钢筋混凝土浇捣成承重梁柱,再用预制的隔墙分户的结构。
50、开间指的是:一间房屋内一面墙的定位轴线到另一面墙的定位轴线之间的实际距离。
51、进深指的是:一间独立的房屋或一幢居住建筑内从前墙的定位轴线到后墙的定位轴线之间的实际长度。
52、层高指的是:下层地板面或楼板面到上层楼层面之间的距离。
53、净高指的是:下层楼板上表面到上层楼板下表面之间的距离。
54、占地面积指的是:地块的总面积。
55、1亩约等于多少平方米:666.66㎡
56、居住小区总用地指的是什么用地的总和:住宅总用地,公共建筑设施总用地,道路、广场用地、庭院、绿化用地的总和。
57、住宅总用地是指:住宅用地面积的总和。
58、公建总用地是指:小区内部公共建筑占地面积的总和。
59、建筑用地面积的介定:建设用地位置和界线所围合的用地之水平投影面积。
60、建筑基底面积是指:建筑物首层的建筑面积。