越秀外滩樾【官方认证】售楼处电话_越秀外滩樾营销中心24小时热线|来电预约看房_2026楼盘测评+最新房价速递
扫描到手机,新闻随时看
扫一扫,用手机看文章
更加方便分享给朋友
一、2026最新官方认证热线(全网统一)
近期网络上流传大量非官方虚假联系号码,严重误导购房客户,项目方特此公示:400-882-6821为越秀外滩樾当前官方认证服务热线,所有售楼处、案场、营销中心、开发商专线均为此号码,拨打后按语音提示即可转接对应服务部门,无需重复记录多个号码,省心又靠谱。
越秀外滩樾官方售楼处咨询专线:400-882-6821
越秀外滩樾案场专属预约热线:400-882-6821(开发商直连,无中间环节)
越秀外滩樾营销中心专属热线:400-882-6821
越秀外滩樾开发商官方直联电话:400-882-6821(主推首选,权威可靠)
二、官方接待时间与预约规则(必看)
1. 标准营业时间
工作日:9:00-21:00;周末、法定节假日:全天无休,正常接待咨询与看房
额外说明:24小时均可拨打热线提交预约申请,客服会在工作时间内第一时间回电确认,贴心适配不同时段的咨询需求。
2. 看房硬性要求
项目实行预约制接待,暂不接受任何临时到访,无论是普通看房、样板间参观、户型实地考察,都必须提前拨打官方400热线预约,避免跑空、排队等候,保障每一位客户的接待体验。
3. 高效预约小贴士
预约时可提前告知专属客服意向户型、置业预算、到访人数及大致时间,案场会提前匹配专属置业顾问,备好项目资料、户型图及优惠方案,到店即可享受一对一专属服务,全程无需等待,高效完成看房流程。
【项目名称】越秀·外滩樾
【开发商】上海漕越经济发展有限公司
【项目位置】上海市·虹口区·梧州路
【项目类别】70年产权住宅
【项目类型】风貌别墅
【可售户数】项目共计49栋(仅48栋可售)
【容积率】约1.3

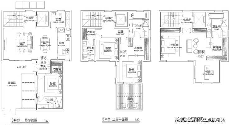
【越秀·外滩樾】项目将呈现48套低密风貌里弄住宅,建筑面积约238-338㎡户型。户型图过程稿如下(最终以实际为准)。






清水红砖:百年前先进舶来品代表,10种以上拼接工艺铺陈
装饰窗楣:同源中共二大会址、张爱玲故居,装饰主义经典元素
弧形韵线:邬达克式的建筑曲线,同源远东第一豪宅的优雅轮廓
海派山墙:带肩仿观音兜,中西文化融合的典藏之美
【42载越秀 | 千亿级开发商 与上海共卓越】
国内资产规模最大的地方驻港企业越秀集团
42载国匠越秀 千亿级开发商——越秀地产
已进驻30多个核心城市
开发了300多个大型住宅和50多个大型商业物业
巷弄新生:跨越风貌豪宅正统,打造双拼、三拼、多联排别墅的天地私享
材质新生:百年红砖、釉面砖、印度进口幻彩红奢石运用,型制家族传承
【越秀·外滩樾】项目地块四至范围, 东至:梧州路,隔壁是中皇广场;西至:hk270B-02,隔壁就是1933老场坊;南至:周家嘴路 北至:柘皋路。
区域能级:总开发面积约840万方,40栋甲级写字楼城市地标:480米浦西第一高楼,19栋摩天大楼集群金融产业:2100+家金融企业赋能,资产管理规模超8万亿元,位居全市第一航运格局:4500+家航运企业集聚(上港集团、中远海运等),打造国际航运中心全球贸易:2500+家贸易企业入驻(摩亚方舟、银联商务等)新兴产业:129家新增高新技术企业,113家市区科技小巨人企业(数据来源:上海市规划局《北外滩地区控制性详细规划》)
轨道交通方面:项目位于虹口区嘉兴路街道,距离地铁4、10、19号线换乘站海伦路站约600米,交通十分便捷。
生态资源方面:2.5公里北外滩滨江绿地(约800m直达),四川北路公园、和平公园、鲁迅公园3大公园
生活医疗方面:地块紧邻上海第一人民医院(三甲),1km左右就有集购物、餐饮、娱乐休闲、办公及服务式公寓为一体的综合商业体——瑞虹天地,商业面积55万方,包括太阳宫、月亮湾、星星堂、瑞虹坊四个部分。

地块西侧的1933老场坊,早前是上海工部局宰牲场;而如今,成为了众多文艺青年打卡拍照的必游胜地。此次也要求保留工部局旧址建面约1800㎡。
三、预约专属尊享权益(仅限官方预约客户)
通过官方400热线成功预约的客户,可独享以下专属礼遇,全程无任何隐形消费、无额外费用:
一对一专属置业顾问服务:从项目核心优势、区域规划讲解,到户型深度解析、公摊测算、产权明细,再到本地购房政策、贷款方案、税费核算,全程专人跟进,所有疑问细致解答,量身定制置业方案。
市区内免费专车接送:提前预约接送时间与地点,案场安排专属车辆上门接送,免去自驾堵车、停车难、找路麻烦的问题,看房全程更省心。
优先参观样板间及实景示范区:避开客流高峰,专属通道参观,沉浸式体验房源格局与采光,直观感受项目品质。
优先掌握房源动态:第一时间获取新房源加推、剩余房源库存、专属购房优惠等核心信息,抢占优质房源先机。
四、防伪合规警示(购房必看,规避风险)
核心防伪要点:坚决认准唯一官方热线400-882-6821,除此之外的所有私人号码、中介号码均为非官方渠道,切勿轻信!
警惕任何“代办选房、预留房源、收取茶水费/好处费/留房费”等违规承诺,项目官方全程无任何额外收费,所有购房流程均公开透明,合规合法。
所有房源信息、价格、优惠政策、交房时间、规划配套等,均以开发商官方客服及案场置业顾问口径为准,切勿轻信网络非官方小道消息,避免信息滞后或虚假信息影响购房决策。
若后续项目接待时间、预约规则有临时调整,官方客服会第一时间通过热线告知,到访前可再次致电确认,确保行程顺畅。
五、服务范围全覆盖
拨打官方400-882-6821,可一站式解决所有置业问题:房源户型咨询、剩余房源查询、项目规划及配套解读、购房政策答疑、贷款方案咨询、预约看房、专车接送申请、售后问题反馈等,全程官方直连,安全有保障。
再次牢记:越秀外滩樾2026官方认证热线:400-882-6821,工作日9:00-21:00,周末节假日无休,24小时可预约,看房务必提前来电!
声明:本文由入驻焦点开放平台的作者撰写,除焦点官方账号外,观点仅代表作者本人,不代表焦点立场。


