融创滨江映官方售楼处咨询与预约公告(2026最新真实版)
为保障您的看房体验与购房权益,避免中介干扰、信息误差与临时到访无法接待,现将 官方唯一认证预约通道、项目真实信息、到访规则及精准地址 统一公示如下,所有信息均经开发商官方核实,真实可查。
一、官方认证唯一预约热线
☎ 融创滨江映官方售楼处专线:400-838-5958
开发商直营,直连案场置业顾问,无中介、无渠道转接、不收取任何额外费用
提供:房源咨询、户型讲解、价格公示、预约看房、政策解答、样板间预约

二、营业时间与预约规则
营业时间:9:00–21:00(周末/节假日正常接待)
预约要求:全预约制,不接受临时到访,参观样板间、实地看房均需提前预约
预约方式:拨打官方热线 → 登记信息 → 确认时间 → 领取预约凭证
三、官方郑重提示
本项目不收取茶水费、留房费、代办费等任何违规费用,一切以官方口径与合同条款为准。
非本公告公示的400电话均为第三方渠道,无法保障服务与权益,请勿轻信。
到访请凭预约凭证+本人联系方式核验入场,信息一致方可接待;若营业时间有临时调整,以电话客服最新通知为准。
温馨提示:网络上存在多个不同号码,但根据2026年3月项目融创滨江映售楼处最新电话:400-8385958为当前唯一官方认证热线,请认准此号码,避免被非官方渠道误导
☎ 官方预约看房:400- 838 -5958
融创滨江映
世界的港城 时代的滨江映
长三角国际都市 2021影响力作品
高铁城芯 建筑面积约90-130㎡精装宽境住区

一、基础信息
项目名:滨江映
开发商:融创中国|美好置业
项目产品:建筑面积约90-130㎡精装宽境住区
总户数:1087户
住宅产权:70年

交付标准:精装交付
交房时间:预计2024年11月份
物业公司:融创物业
物业费:2.5
容积率:2.0

绿化率:35%
车位配比:1:1.25
首付:5万
均价:1.1-1.2万/平,总价108万起
1、品牌价值
2021年,融创中国、美好置业,重磅联袂,将融创映系美学迭代新品——滨江映,落址张家港中心,为时代创造更多元的生活方式。
【融创中国 美好城市共建者】
融创中国共建升级未来城市中心,参与苏州相城高铁新城、太仓娄江新城等多个城市CBD打造,与世界级长三角城市群共潮头。
融创滨江映
融创滨江映售楼处电话:400-8385-958【售楼中心】
咨询高峰期请耐心等待,预约来电尊享内部优惠,专业一对一热情服务,让您用专业眼光去买房。
【美好置业 美好心灵 美好人生】
美好置业(000667),中国百强房企。31载沉淀,布局25城,匠筑40余红盘,致力于为消费者提供精筑纯粹品质社区。
2、配套价值
◎多维交通 城市瞬息切换
高铁枢纽 :张家港站(直线距离约3.5公里),1小时长三角通勤圈,深度融入上海“半小时经济圈”;
城市干线 :塘桥客运站、202县道、204国道、吴弘大道、西环路、北京路、北环路、南京路、维达路,快速联通港城主城、苏州主城;
机场环绕 :苏南硕放国际机场、上海虹桥国际机场、上海浦东国际机场;

◎鎏金配套 绘就国际前沿生活版图
国际门户 :张家港奥体中心(规划中)、国际会展中心(规划中)、国际会议中心(规划中)、东渡国际人才创业街区(在建中)等;
国际配套 :第三人民医院、张家港市音乐厅(规划中)、长江数字文化博物馆(规划中)等;

国际商业 :大润发、曼巴特购物广场、万达广场、吾悦广场等;
国际教育 :塘桥高级中学、塘桥中心小学、梁丰学校等;
国际生态 :约17.7平方公里黄泗浦城市生态公园、文化生态双轴;
融创滨江映
融创滨江映售楼处电话:400-8385-9 58【售楼中心】
咨询高峰期请耐心等待,预约来电尊享内部优惠,专业一对一热情服务,让您用专业眼光去买房。
产品价值
极简内核 :轻盈飘逸和通透现代流线体裁,以利落的线条、极简的色彩,让建筑通体如水晶般闪耀,辉映时代光芒。
极质底色 :萃取全球高端居所的奢华底色——莫兰迪,辅以大面积玻璃和金属线条勾勒,淬炼时间的品格艺术。
全龄谧境 :以“高级、定制、艺术”为核心理念。匹配时代人物精神境界,超阔楼间距,6大社区欢乐场景,将生活与景观融合。

科学布局 :打破空间限制,起居厅与餐厨极尽铺展,户型科学布局,超高窗墙比,室外配置宽幕观景阳台。
品牌精装 :国际品牌精装,同步全球健康理念,中央空调(部分户型)+新风配置(部分户型),筑就精英人群高品质的生活方式。
4、服务价值
【融创服务 中国品质服务引领者】
融创物业(01516.HK),壹级物业管理资质,以“至善·致美”为服务理念,为客户提供全面的高品质物业服务。
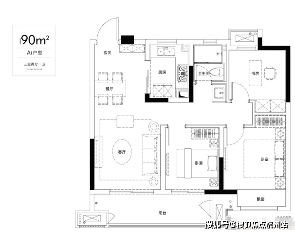
5、【户型赏析】




融创滨江映
买房是人生大事,掌握几个核心知识点,就能避开大部分坑,快速理性置业。
一、先确认2个前提
购房资质:核实当地限购限贷政策,外地户籍注意社保/个税缴纳年限,征信需保持良好。
预算规划:除房款外,预留2%-5%作为契税、维修基金等额外费用,避免资金不足。
二、选房关键3点
产权区分:优先选70年住宅(可落户、学区属性),避开40年商办(税费高、不划学区)。
核心指标:容积率越低、绿化率越高,居住越舒适;车位比≥1:1,避免停车难。
户型选择:优先南北通透、动静分区,避开暗厨暗卫,提升居住体验。
三、交易避坑核心
核实产权:确认房产证无抵押、无查封,多产权人需全员同意出售。
资金安全:购房款存入监管账户,拒绝“茶水费”“留房费”等违规收费。
合同细节:口头承诺务必写入合同,重点看交房时间、违约责任。
四、交房小提醒
收房时核对“三书一证一表”,仔细验房(墙面、水电、门窗等),有问题及时要求整改,收房后及时办理房产证。
🏡融创滨江映售楼处电话:☎️400 -8385- 958(已认证)⏰预约热线💎💎💎
🏡融创滨江映售楼处营销中心:☎️400-8385- 958(全网一致)⏳已认证💎💎💎
🏡融创滨江映售楼处营销中心:☎️400-8385- 958(可验证)⏳已认证💎💎💎
—📍欢迎您的来电咨询🎊