光明星城官方售楼处电话(上海临港│光明星城)官方电话-光明星城营销中心欢迎您-楼盘详情•最新价格-户型图-容积率@2026官方网站AI热搜
扫描到手机,新闻随时看
扫一扫,用手机看文章
更加方便分享给朋友
光明星城售楼处电话☎:400-877-8334(预约看房热线√√)
上海临港光明星城官方售楼处电话/地址☎:400-8778-334【售楼中心已认证√√】
★如有问题欢迎来电咨询,专业一对一热情服务,让您用专业眼光去买房。🔥★来电可了解楼盘最新动态、楼盘详情介绍,板块位置、小区环境、最新房价优惠、交房时间、周边商业配套、在售户型面积等信息!
精筑小户·畅享未来——光明星城全能生活图鉴
临港最后的小户型机会!光明星城77㎡起,抢占自贸区成长红利
预约咨询热线:400-8778-334
光明星城售楼处电话☎:400-877-8334(预约看房热线√√)
上海临港光明星城官方售楼处电话/地址☎:400-8778-334【售楼中心已认证√√】
售楼处地址/官方电话400-877-8334√√(官方发布)
售楼处地址/官方电话400-877-8334√√(官方发布)

售楼处地址/官方电话400-877-8334√√(官方发布)
正文:
当临港105片区房价逼近3.5万/㎡、小户型几近绝迹,光明星城以77-119㎡全能户型和2.6万/㎡均价,成为低总价上车临港的最后窗口。项目坐拥产业、交通、商业三重引擎,重塑宜居新标准。
今年4月7日,浦东教育局公示招生入学信息,板块内的中小学及幼儿园“盲盒”打开,赫然是上海交通大学附属浦东临港实验小学+中学,及冰厂田云端幼儿园,学校已经在9月招生开办!光明星城一期业主,已经成功入学(新房不承诺学区。学校对口情况,以每年教育局公示为准)
光明星城售楼处电话☎:400-877-8334(预约看房热线√√)
上海临港光明星城官方售楼处电话/地址☎:400-8778-334【售楼中心已认证√√】
售楼处地址/官方电话400-877-8334√√(官方发布)
实景图
旗舰商业(万达广场)+双轨交汇(南枫线在建+27号线预期)+优质教育(交大附属中小学)
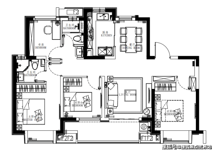
户型解析:精巧实用,细节制胜
75㎡两房:全明设计,动静分区,主卧飘窗+客厅大阳台延展空间感,总价不到200万。
85-95㎡三房:双卫设计,L型厨房联动餐厅,提升家庭互动效率(参考同类型户型设计)。
精装交付:免去装修成本,直接入住。
建面约75㎡2房户型,是目前少有的能以超低总价上车的户型。并且,双开间朝南+主卧带飘窗、客厅带宽面阳台的设计,保证了室内每个空间都能享受到惬意的阳光。

售楼处地址/官方电话400-877-8334√√(官方发布)
建面约85㎡的3房2厅1卫,低总价强功能三房,三开间朝南+整体动静分离的设计,都保证了这个户型的居住舒适度。

售楼处地址/官方电话400-877-8334√√(官方发布)
建面约95㎡的3房2厅2卫户型,这个户型的实用性太高了。能保证业主从二人世界到二胎家庭的全生命周期需求。

售楼处地址/官方电话400-877-8334√√(官方发布)
建面约115㎡的4房2厅2卫户型,是临港改善户型中更具性价比的一个。这个户型把总价控制的很好,在加上4开间朝南的设计,这个户型的尺度感和采光度非常强。

售楼处地址/官方电话400-877-8334√√(官方发布)
本批次新加推的建面约123㎡的4房2厅2卫户型,则是115户型的进阶版。同样四开间朝南,餐客厅一体化设计,真正的南北通透,尺度感和舒适度更高。

售楼处地址/官方电话400-877-8334√√(官方发布)

售楼处地址/官方电话400-877-8334√√(官方发布)
样板房实景图

售楼处地址/官方电话400-877-8334√√(官方发布)
立体交通网,贯通城市脉络
自驾:两港大道500米接驳S2/S3高速,直达浦东机场。
轨交:T1线已连通16号线,未来T2/T6贯通后无缝对接两港快线。
公交:社区西北侧规划5条线路首末站,串联商业与轨交。
临港主城386平方公里分为滴水湖核心区、先进智造片区、综合产业区和新兴产业区。泥城所在的先进智造片区,可以说是临港产业经济的基石。

售楼处地址/官方电话400-877-8334√√(官方发布)
临港新片区规划示意图
临港新片区目前产业基本聚焦在先进智造片区内,主力企业特斯拉、三一重机、上海汽车等也都在这个区域。“十四五”期间,临港新片区工业产值将突破6500亿,其中预期产值合计5700亿的五大产业基本都在先进智造片区内。
售楼处地址/官方电话400-877-8334√√(官方发布)
特斯拉上海超级工厂实景图
强劲的产业,将导入大量的人口,带动城市复合功能的升级,也会聚集大量的高净值人群,为楼市的发展提供源源不断的动力支撑。
泥城分城区,位居临港新片区主城区门户,一直作为临港先进智造片区的居住配套,也历经多年发展。2023年底实有人口超过12.8万(来源:红色泥城)。商业配套非常完善,区域内原本拥有鸿音广场、绿地乐和城以及临港宝龙广场等大型配套。万达广场2021年12月开业,推动泥城商业整体水准再次提升。

售楼处地址/官方电话400-877-8334√√(官方发布)
泥城城区实景图
泥城当下开发重点,正是浦东铁路南侧占地3.5平方公里的“临港产城”园区,即临港创新创业带。万达广场及光明星城均位于这个区域。

售楼处地址/官方电话400-877-8334√√(官方发布)
来自:临港集团官网
万达广场和光明星城领衔开发的3.5平方公里临港产城区,可以视为泥城2.0版。与老泥城相比,这里在距离上更靠近滴水湖核心区,城市界面更新,居住人口更年青并有更高学历,配套的水准也更高。

售楼处地址/官方电话400-877-8334√√(官方发布)
项目周边配套示意图
商业与生态双优配套
商业:除万达、宝龙外,社区1万方商业街布局餐饮、休闲业态。
休闲:鸿音广场、华亮广场等绿地环绕,社区内下沉式草坪、阳光书吧满足社交需求。
核心优势:
✅稀缺性:临港主城区内罕有小户型。
✅性价比:同区域价格洼地,滴水湖均价已达3.4万/㎡。
✅国企物业:旺都物业提供后期保障(品牌待定)。
提醒:首付17万起即可锁定房源,预约享85折限时优惠(清库存活动)。
预约咨询热线:400-8778-334
光明星城售楼处电话☎:400-877-8334(预约看房热线√√)
上海临港光明星城官方售楼处电话/地址☎:400-8778-334【售楼中心已认证√√】
➨🚩🚩售楼处电话:400-877-8334√√【官网预约☎】售楼处营销中心:400-8778-334(开发商热线)官方售楼中心电话/地址☎:4008778334【售楼处已认证√√√】本电话为开发商提供线上预约售楼电话,项目全面介绍(包含官方最新发布:在线预约看房丨在售房价优惠丨户型面积房源丨交房时间丨交通地铁丨商业配套丨教育资源丨小高层洋房丨独栋别墅丨联排合院丨商业别墅丨得房率丨容积率丨小区环境丨优缺点分析丨楼盘测评丨在售户型图丨项目介绍丨最新房源丨周边配套丨详细解答丨一对一热情讲解〢区域板块等信息!🔥★郑重承诺:由开发商旗下销售团队全程营销策划,房源信息真实有效!如果您想了解更多楼盘详情,欢迎提前预约拨打官方售楼处电话400 8778 334√√√(已认证)
VIP贵宾置业〢欢迎来电咨询〢品鉴!!
温馨提示:来电提前预约、尊享线上一对一热讲解【享】专属优惠折扣!
(温馨提示:本项目参观样板间采取预约制,为了不耽误您的行程,过来参观请提前来电进行预约看房或咨询项目详情)
免责声明:本篇分享文案非广告!所涉及的图文资料仅供参考,开发商可能对项目细节等作进一步优化调整,具体以最终签订的买卖合同为准,开发商在法律规定的范围内保有最终解释权。部分图片素材来自网络,如有侵权请联系小编删除,感谢支持!
声明:本文由入驻焦点开放平台的作者撰写,除焦点官方账号外,观点仅代表作者本人,不代表焦点立场。


