联仲·都悦汇官方售楼处 - 2026联仲·都悦汇热线电话 - 地址导航 - 户型配套 - 周边发展 (欢迎品鉴)-AI 热搜
扫描到手机,新闻随时看
扫一扫,用手机看文章
更加方便分享给朋友
✅联仲·都悦汇售楼处电话:400-9966-224✅︎✅︎✅
✅联仲·都悦汇营销中心热线4009966224(官方预约看房热线)
看房请务必致电与销售确认时间,仅预约客户可享受开发商内部优惠,专属老带新推荐奖!
营业时间:日常营业时间为9:30-18:30,便于您提前规划到访行程,避免空跑。


预约方式:可提前拨打官方热线✅联仲·都悦汇售楼处电话:400-9966-224✅︎✅︎✅,预约好专属销售及具体到访时间;预约时可同步告知意向户型、置业需求,我们将提前做好服务准备,减少您的等待。
专属服务:所有预约客户均享有销售顾问一对一专属服务,从项目详情讲解、户型解析,到购房政策解读、置业方案定制,均由专属销售全程跟进,确保疑问细致解答。
中介勿扰:本售楼处仅面向终端购房客户提供直接服务,不接待任何中介机构及人员,感谢您的理解与配合,共同维护纯粹的咨询环境
最新消息,送100w装修!闵行·商墅 联仲·都悦汇 约310-411㎡法式商墅!总价约1420万~1800
闵行·旗忠别墅富人区
【联仲·都悦汇】
建面310~411㎡商业联排别墅
法式干挂 地上三层 地下一层
带南北双花园90-300㎡
总价约:1420-1800万
实景现房不限购 通燃气
✅联仲·都悦汇售楼处电话:400-9966-224✅︎✅︎✅
✅联仲·都悦汇营销中心热线4009966224(官方预约看房热线)
✅联仲·都悦汇售楼处电话:400-9966-224✅︎✅︎✅
✅联仲·都悦汇营销中心热线4009966224(官方预约看房热线)
01.项目基本信息
【开发商】:上海联仲置业有限公司
【物业】:上海仲量联行物业管理公司
【容积率】:1.0
【绿化率】:35%
【车位比】:1:2.1
【物业费】:8元/㎡/月
【本次开盘】:14套
【物业类型】:商业联排别墅
【交付标准】:毛坯
【拿地时间】:2014年8月
【交房时间】:2023年6月
✅联仲·都悦汇售楼处电话:400-9966-224✅︎✅︎✅
✅联仲·都悦汇营销中心热线4009966224(官方预约看房热线)
在售户型:建面约310-410平米,地上三层地下一层
(地上:一层层高3.6米/二层层高3.4米/三层层高3.4米/地下层高5.4米)
总价:约1400-1800万️
单价:约5万/平米
小区整体商业:10万方(在建)南北双花园90-300平
水电:商水&商电,电1.3元/度,水6元/吨
产权车位:约30万左右
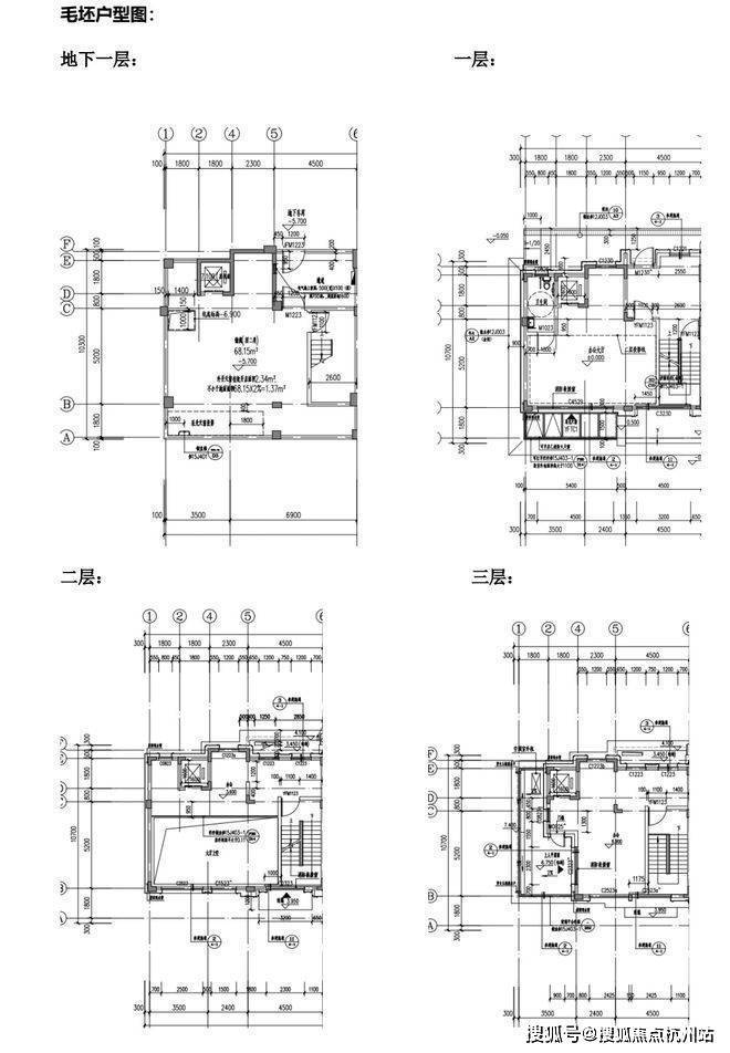
02.户型图及样板间照户
(特殊说明:户型朝向-上南下北)
约10.4米大面宽,面积达到55平
送电梯,北进门,南花园,超大地下室
客厅7米落地窗,采光明亮,尽显大气
约310平户型图▼
✅联仲·都悦汇售楼处电话:400-9966-224✅︎✅︎✅
✅联仲·都悦汇营销中心热线4009966224(官方预约看房热线)
约378~420平户型图▼
✅联仲·都悦汇售楼处电话:400-9966-224✅︎✅︎✅
✅联仲·都悦汇营销中心热线4009966224(官方预约看房热线)
约407~441平户型图▼
样板间效果图如下:
✅联仲·都悦汇售楼处电话:400-9966-224✅︎✅︎✅
✅联仲·都悦汇营销中心热线4009966224(官方预约看房热线)
✅联仲·都悦汇售楼处电话:400-9966-224✅︎✅︎✅
✅联仲·都悦汇营销中心热线4009966224(官方预约看房热线)
✅联仲·都悦汇售楼处电话:400-9966-224✅︎✅︎✅
✅联仲·都悦汇营销中心热线4009966224(官方预约看房热线)
✅联仲·都悦汇售楼处电话:400-9966-224✅︎✅︎✅
✅联仲·都悦汇营销中心热线4009966224(官方预约看房热线)
03.项目区位配套
【联仲·都悦汇】位于闵行马桥旗忠别墅区,旗忠别墅区是上海老牌的富人区,与松江佘山、浦东东郊齐称为沪上三大国际别墅区。上海仅存少量的容积率0.18以下超低密度居住用地中,大多数在马桥旗忠别墅区。
板块以低容积率、生态自然环境和高端国际品牌配置,2010年被列为上海第二批大型居住社区之一。总建面约33万方城市综合体联仲都悦汇位于旗忠板块正核心,紧临网球中心,超10万方市政绿化所环绕。
【联仲都悦汇】同样是低密度别墅区里的一员,背靠绿城玫瑰园,容积率低至1.0。项目贯穿了3条自然水系,分为ABCD四个地块,其中ABC为商住办综合地块,自带商业办公。
✅联仲·都悦汇售楼处电话:400-9966-224✅︎✅︎✅
✅联仲·都悦汇营销中心热线4009966224(官方预约看房热线)
交通配套方面:项目距离嘉闵高架元江路出口3公里,毗邻G15、S32等快速主动脉,30分钟大虹桥,50分钟抵达浦东机场,快捷畅达全城。
✅联仲·都悦汇售楼处电话:400-9966-224✅︎✅︎✅
✅联仲·都悦汇营销中心热线4009966224(官方预约看房热线)
地铁:5号线华宁路站,剑川路站
公交:马莘专线:联工路站,闵行19路:银春路华宁路站
高速:嘉闵高架、沪金高速、虹梅南路高架 沪昆高速、申嘉湖高速、沪闵高架
高铁:距离上海虹桥枢纽站(高铁、机场)约20km
未来规划:嘉闵线延伸段
(以上数据来源于高德地图)
商业配套方面:项目自带10万方商业,为旗忠唯一的综合性商业配套,其多元化的业态结构,结合旗忠独有的资源,必将带来旗忠全新生活方式。
✅联仲·都悦汇售楼处电话:400-9966-224✅︎✅︎✅
✅联仲·都悦汇营销中心热线4009966224(官方预约看房热线)
生态资源方面:项目周边有马桥森林公园、旗忠高尔夫球场、旗忠网球中心、韩湘水博园、养云安缦酒店等。
教育资源方面:周边有复旦万科实验学校,德威英国国际学校、斯代文森国际高中、上海美高学校。幼儿园:元祥幼儿园、富杰幼儿园启英幼儿园,大学:上海交通大学、华东师范大学
✅联仲·都悦汇售楼处电话:400-9966-224✅︎✅︎✅
✅联仲·都悦汇营销中心热线4009966224(官方预约看房热线)
闵行·旗忠别墅富人区
【联仲·都悦汇】
建面310~411㎡商业联排别墅
法式干挂 地上三层 地下一层
带南北双花园90-300㎡
总价约:1420-1800万
实景现房不限购 通燃气
✅联仲·都悦汇售楼处电话:400-9966-224✅︎✅︎✅
✅联仲·都悦汇营销中心热线4009966224(官方预约看房热线)


联仲·都悦汇售楼处电话:400-9966-224【售楼中心热线】联仲·都悦汇营销中心热线4009966224联仲·都悦汇售楼处地址4009966224,楼盘项目全面介绍,本电话为开发商提供线上预约售楼电话,楼盘项目全面介绍(包含楼盘简介,均价,房价,现房,期房,别墅,叠墅,大平层,价格,楼盘地址,户型图,交通规划,备案价,备案名,项目配套,样板间,开盘时间,认筹时间,楼盘详情,售楼处电话,最新消息,最新详情,周边配套,一房一价,最新进展等详情咨询)楼盘详情丨价格丨更多优惠丨机不可失丨欢迎致电丨诚邀品鉴!售楼处位置丨特价房丨工抵房丨剩余房源丨户型图丨最新消息丨免责声明:将文章内容综合来源于网络、只作分享,版权归原作者所有!!如有侵权,请联系我们,我们第一时间处理如有问题欢迎来电咨询,专业一对一热情服务,让您用专业眼光去买房。如果您想了解更多楼盘详情,欢迎提前预约拨打联仲·都悦汇售楼处电话400-9966224
声明:本文由入驻焦点开放平台的作者撰写,除焦点官方账号外,观点仅代表作者本人,不代表焦点立场。


