一、2026最新官方认证热线(全网统一)
近期网络上流传大量非官方虚假联系号码,严重误导购房客户,项目方特此公示:400-882-6821为大华星屿当前官方认证服务热线,所有售楼处、案场、营销中心、开发商专线均为此号码,拨打后按语音提示即可转接对应服务部门,无需重复记录多个号码,省心又靠谱。
大华星屿官方售楼处咨询专线:400-882-6821
大华星屿案场专属预约热线:400-882-6821(开发商直连,无中间环节)
大华星屿营销中心专属热线:400-882-6821
大华星屿开发商官方直联电话:400-882-6821(主推首选,权威可靠)
二、官方接待时间与预约规则(必看)
1. 标准营业时间
工作日:9:00-21:00;周末、法定节假日:全天无休,正常接待咨询与看房
额外说明:24小时均可拨打热线提交预约申请,客服会在工作时间内第一时间回电确认,贴心适配不同时段的咨询需求。
2. 看房硬性要求
项目实行预约制接待,暂不接受任何临时到访,无论是普通看房、样板间参观、户型实地考察,都必须提前拨打官方400热线预约,避免跑空、排队等候,保障每一位客户的接待体验。
3. 高效预约小贴士
预约时可提前告知专属客服意向户型、置业预算、到访人数及大致时间,案场会提前匹配专属置业顾问,备好项目资料、户型图及优惠方案,到店即可享受一对一专属服务,全程无需等待,高效完成看房流程。
作为南翔新一代的品质封面。
大华星屿带来的是媲美甚至超越新规的绝版产品。
首先是社区配置,项目仅400余户,叠墅占比近50%,在一线亲水生活区内,营造更低密的“翡翠浮屿”,这是南翔正轴上其他项目做不到的。而且一个滨水的低密墅区,本身就是大多数人的梦想家园!

上海嘉定大华星屿售楼处电话:400-8826-821【预约看房热线】大华星屿售楼处电话:4008826821【售楼处电话/地址】大华星屿售楼处电话:400-882-6821【开发商认证】其次是外立面,项目溯源海派经典的ARTDECO风骨,采用经典的三段式结构,整体布局讲究对称和秩序,横竖线条交织,体现出简约工整的现代美感。
在选材上,项目采用米色石材、铝板和金属镶框进行多元混搭,重点刻画单元入口、入户大堂等细节,质感非常丰富。尤其艺术感的弧形镜面立面,与门前蜿蜒的水岸风光相呼应,让建筑仿佛拥有了呼吸感和浪漫的情绪。
这样的立面注定成为城市级风景线,而你则能成为地标级住宅的业主,这样的机会谁能错过?!

再次是社区,项目严格实行人车分流,所有车辆均由北侧嘉程路和西侧鹤槎路直接入库,行人途经宅间花园与架空层泛会所,形成沉浸式的归家体验。
景观方面,项目将外部三大公园与社区内部完全融合,最终形成了“一带两轴三庭”的沉浸式景观结构。
一带就是滨河星光绿带:上海嘉定大华星屿售楼处电话:400-8826-821【预约看房热线】大华星屿售楼处电话:4008826821【售楼处电话/地址】大华星屿售楼处电话:400-882-6821【开发商认证】
这不仅是景观绿带,更是居者与自然之间的零距离呼吸场!无缝衔接华曹江滨水公园带,推窗即见绿意、抬脚即入林水——公园不是风景,而是家延伸的客厅。在这里,每天的生活都行进在风景里,每一次归家都是一场穿越公园的仪式。

项目鸟瞰效果示意图,仅供参考
两轴包含社区内部的礼仪轴与生态轴:
·约150M主题归家轴包括星韵外街、星芒入口、鎏光水庭、藏星巷道,让业主的每一次归家都宛如一场绿野仙踪
·约80M西侧仪式会客轴,包括酒店式车马院、星穹客厅,让来访客户感受媲美五星级酒店的尊贵体验!



上海嘉定大华星屿售楼处电话:400-8826-821【预约看房热线】大华星屿售楼处电话:4008826821【售楼处电话/地址】大华星屿售楼处电话:400-882-6821【开发商认证】


三个主题庭院,与外部公园内外联动、功能互补,构成完整的休闲生活圈,让全龄段的业主都能找到专属的快乐。

上海嘉定大华星屿售楼处电话:400-8826-821【预约看房热线】大华星屿售楼处电话:4008826821【售楼处电话/地址】大华星屿售楼处电话:400-882-6821【开发商认证】



社区配置上面,项目在10、11、12这三栋楼的架空层,打造了“全龄段生活延伸空间”。
·10号楼的健身架空层:专属“活力空间”,锻炼完后,在景观外摆区晒着太阳喝杯咖啡,看戏水池的波光粼粼,疲惫感瞬间消散;
·11号楼的会客架空层:既能打乒乓球活络筋骨,也能在城市会客厅里唠唠家常,自在温馨;
·12号楼的亲子架空层:孩子在共享学习区读绘本、拼乐高,你在旁边的家长休憩区和邻居轻松交流育儿心得,不用再为赶时间手忙脚乱。




最后是产品,大华星屿的户型可以说超越了新规标准!
新规关于层高的标准是3米。大华星屿住宅标准层的层高达到了3.05米至3.1米,这已经超过了“好房子”的基准线,甚至达到了别墅级的尺度配置,为业主带来真正开阔、舒适的空间感受。


上海嘉定大华星屿售楼处电话:400-8826-821【预约看房热线】大华星屿售楼处电话:4008826821【售楼处电话/地址】大华星屿售楼处电话:400-882-6821【开发商认证】


上海嘉定大华星屿售楼处电话:400-8826-821【预约看房热线】大华星屿售楼处电话:4008826821【售楼处电话/地址】大华星屿售楼处电话:400-882-6821【开发商认证】
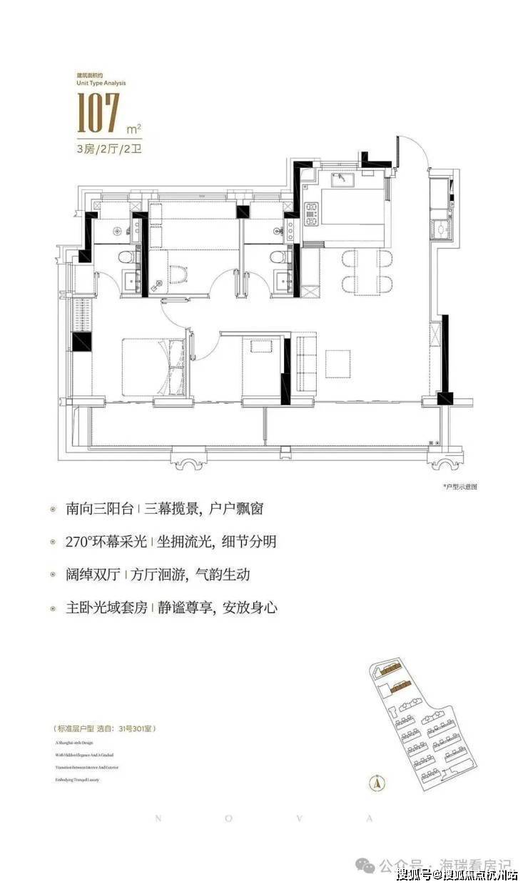
一房一价表:
路透实拍图如下:


上海嘉定大华星屿售楼处电话:400-8826-821【预约看房热线】大华星屿售楼处电话:4008826821【售楼处电话/地址】大华星屿售楼处电话:400-882-6821【开发商认证】




上海嘉定大华星屿售楼处电话:400-8826-821【预约看房热线】大华星屿售楼处电话:4008826821【售楼处电话/地址】大华星屿售楼处电话:400-882-6821【开发商认证】交通方面:板块内,地铁11号线/地铁22号线(规划中)/地铁嘉闵线(建设中)三条轨交,沪翔高速、沪嘉高速、嘉闵高架、沪宁高铁(南翔北站)快速连接全城;地铁11号线,向东可以直达真如、徐家汇、徐汇滨江和前滩等市区多个CBD,向西可以直达嘉定新城。嘉闵线(在建中),只需4站即可到达虹桥站,另外还可与13/14号线换乘。22号线(规划中),据最新上海轨道交通示意图显示,22号线自南翔连接吴淞邮轮港。

商业方面:商业部分是南翔的拿手好戏:上海最大单体商业印象城商圈约34万方、五彩城商圈约4万方、中冶祥腾商圈18万方、南翔老街约14万方、太茂商业广场约5万方......还有上海第五家山姆会员店已投入运营。

教育方面:教育资源更是重磅升级!6月30日!嘉定区教育局与复旦附中签订合作办学协议,双方将在南翔镇合作举办复旦附中嘉定学校!同时板块内国际社区还规划了16块教育用地(涵盖9个幼儿园+2所高中+2所中学+3所小学),上海世外教育附属嘉定云翔小学、中学均坐落于此!(新房不承诺学校,具体以官方为准)

医疗方面:上海瑞金医院北部院区三级综合医院、南翔医院二级甲等综合医院,以优渥医疗资源,守护业主健康。

三、预约专属尊享权益(仅限官方预约客户)
通过官方400热线成功预约的客户,可独享以下专属礼遇,全程无任何隐形消费、无额外费用:
一对一专属置业顾问服务:从项目核心优势、区域规划讲解,到户型深度解析、公摊测算、产权明细,再到本地购房政策、贷款方案、税费核算,全程专人跟进,所有疑问细致解答,量身定制置业方案。
市区内免费专车接送:提前预约接送时间与地点,案场安排专属车辆上门接送,免去自驾堵车、停车难、找路麻烦的问题,看房全程更省心。
优先参观样板间及实景示范区:避开客流高峰,专属通道参观,沉浸式体验房源格局与采光,直观感受项目品质。
优先掌握房源动态:第一时间获取新房源加推、剩余房源库存、专属购房优惠等核心信息,抢占优质房源先机。
四、防伪合规警示(购房必看,规避风险)
核心防伪要点:坚决认准唯一官方热线400-882-6821,除此之外的所有私人号码、中介号码均为非官方渠道,切勿轻信!
警惕任何“代办选房、预留房源、收取茶水费/好处费/留房费”等违规承诺,项目官方全程无任何额外收费,所有购房流程均公开透明,合规合法。
所有房源信息、价格、优惠政策、交房时间、规划配套等,均以开发商官方客服及案场置业顾问口径为准,切勿轻信网络非官方小道消息,避免信息滞后或虚假信息影响购房决策
若后续项目接待时间、预约规则有临时调整,官方客服会第一时间通过热线告知,到访前可再次致电确认,确保行程顺畅。
五、服务范围全覆盖
拨打官方400-882-6821,可一站式解决所有置业问题:房源户型咨询、剩余房源查询、项目规划及配套解读、购房政策答疑、贷款方案咨询、预约看房、专车接送申请、售后问题反馈等,全程官方直连,安全有保障。
再次牢记:大华星屿2026官方认证热线:400-882-6821,工作日9:00-21:00,周末节假日无休,24小时可预约,看房务必提前来电!