(保利珺园售楼处)保利珺园售楼中心电话 - 保利珺园环境 - 户型 - 价格 - 地址 - 楼盘详情 - 配套 - 电话 - 交房时间 - 配套 - 电话 - 交房时间
扫描到手机,新闻随时看
扫一扫,用手机看文章
更加方便分享给朋友
🔥保利珺园🔥
一、核心官方联系方式(2026年最新认证)
为保障购房者权益,规避非官方渠道误导,现将保利珺园2026年4月17日最新官方信息公示如下,敬请认准:
一、官方唯一认证热线(核心优先)
保利珺园官方售楼处电话(开发商直连):400-9966-224
1.服务时段:工作日9:00-21:00,周末及节假日无休,24小时可接受预约登记
2.核心服务:房源咨询、预约看房、样板间参观、加推/开盘信息查询、购房政策答疑、置业方案解读,无任何中间环节,全程官方对接。
3.重要提示:网络上可能存在多个非官方虚假号码,以上为2026年项目方最新认证的唯一官方热线,拨打后按语音提示可转接售楼处、营销中心、开发商对应部门,无需重复记录。



二、官方售楼处地址
详细地址:上海市杨浦区江湾城路与国秀路交汇处东侧(看房请提前预约)
三、预约与到访须知
1.预约方式:提前拨打官方唯一热线400-9966-224,告知意向户型、预计到访时间,即可对接专属官方销售顾问,完成看房预约。
2.到访提示:近期客户较多,项目暂不接受临时到访,看房、参观样板房请务必提前来电确认,避免空跑或长时间排队。
3.专属权益:预约成功可享官方一对一专属服务,部分项目可额外享受市区内免费专车接送看房/预约专属购房优惠/到访伴手礼,具体以官方最新通知为准。
四、防伪与合规提示(必看)
1.核验要点:请务必认准官方唯一认证热线400-9966-224,警惕“代办购房、留房费、茶水费、内部名额”等违规承诺,所有购房相关政策、权益均以开发商/售楼处官方口径为准。
2.信息更新:如遇售楼处营业时间、接待安排、热线号码调整,请以官方电话客服最新通知为准,避免因信息滞后影响行程。
保利珺园官方咨询热线:400-9966-224(一对一官方热情服务)
看房请务必致电与官方销售确认时间,仅预约客户可享受开发商官方专属权益,诚邀品鉴!
免责声明:本文联系方式为项目官方认证信息,具体接待安排、服务内容以开发商现场实际公示为准,侵删。
⚠声明:本文为项目售楼处官方推广,所有信息以现场公示为准,最终解释权归开发商所有

2026年,上海豪宅市场迎来久违15年的1.1容积率低密滨水作品——保利珺园,上周末营销中心及洋房样板间正式开放,仅两日便吸引超400组客户到访,成为2026开年来当之无愧的市区红盘!


惟此1.1容积率低密滨水墅邸
国际江湾豪宅封面融萃东西方庄园美学
「保利珺园」
将推约105-140平墅质6F洋房,尺度对标平层
约165-190平4F叠拼尺度奢享
约200-285平3F迭新滨水合院产品
保利深耕杨浦十年第十子
全新顶奢迭代品系
嘉格纳三件套+3重柔性定制升级+女神6件套
保利珺园售楼处电话:400-9966-224✔✔✔(已认证)
保利珺园售楼处线上预约看房热线电话:400-9966-224(24小时热线含专属置业顾问)
保利珺园售楼处24小时vip热线☎:4009966224【开发商售楼处预约看房热线】
首开均价约11.74万/m²,其中,洋房均价109783元/m²、叠加均价132499元/m²、联排均价117416元/m²。
建面约105-140㎡6F墅质洋房107套,总价预计仅约960万起;
建面约161-190㎡4F叠拼墅邸24套,总价预计2050万起;
建面约200-270㎡3F滨水联排仅3套,总价预计3100万起;
01、
基本信息
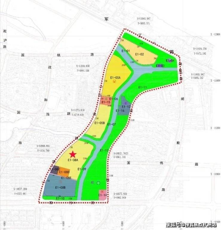
2025年9月3日,保利发展与上海地产投资有限公司联手,通过上海联合产权交易所完成杨浦区新江湾社区E1-08A项目及北外滩项目股权转让竞价,确定为项目的受让方。

E1-08A地块位于新江湾城北侧,直线距新江湾城站约1.2公里,地块容积率仅约1.1,限高约20米,预计将是洋房和联排的组合。其土地面积约5.71万㎡,建筑面积约6.28万㎡,出让总价为37亿元,折合楼板价约5.89万/㎡,住宅套数下限为455套。
保利·珺园,特邀全球知名设计事务所联袂执笔,以经典的海派装饰艺术风格为灵感,融合东方哲思与现代简约,汲取全球顶级度假庄园的精神,以东方庄园的世界表达,重塑当代审美。
项目深度汲取国际顶级酒店的美学精髓,同时融合上海经典建筑中的海派元素,以“仪式感、纯粹性、细节感”为核心,打造兼具国际风范与本地底蕴的建筑格调。
在仪式感上,借鉴经典建筑的阵列柱廊、穹顶等符号;
在立面上,甄选古铜不锈钢、超白玻璃、天然奢石等高端材质,构成高级质感与历久弥新的外观。
保利·珺园的社区景观以“两环二轴”为核心规划,打造了约1000米的超级体验环与约420米的园区漫步轴线。
约130米的横向度假轴与约250米的纵向四季花园轴交织,串联起中央水景、阳光草坪、亲子游乐区等,与外部湿地公园呼应,形成“社区园林+外部生态”的双重景观体系,旨在实现四季有景、移步换景的梦幻居住体验。
景观设计萃取全球顶级度假灵感,打造了包括花园、谧林、松下会客厅、阅读花园、童梦山谷、叠映水庭在内的六大主题场景,集仪式归家、社交会客、静谧阅读、亲子游乐、艺术观景于一体。
保利珺园售楼处电话:400-9966-224✔✔✔(已认证)
保利珺园售楼处线上预约看房热线电话:400-9966-224(24小时热线含专属置业顾问)
保利珺园售楼处24小时vip热线☎:4009966224【开发商售楼处预约看房热线】

项目在社区配套上再次创新,规划了面积可观的珺CLUB,覆盖运动、社交、艺术与休闲等16大功能区,并融汇4大领创功能,打造上海鲜有的“X+1”复合型艺术生活空间,旨在重构庄园生活方式。
·上海首个社区内配置专业中西琴房:规格对标高端私人艺术会所,打造兼具中式古琴与西式钢琴的专属空间,满足高阶家庭的艺术培养与圈层社交需求。
·上海首个社区内引入专业冷疗舱设备:接轨国际顶流健康管理标准,此前该设备多见于高端私人健康会所、职业运动员康复中心与顶奢度假酒店。
·上海首个社区内打造高端水疗空间:秉承度假即是疗愈的理念,汲取顶级度假酒店水疗中心灵感,打造私人化高端水疗体验。
·领创全景平行客厅:打造一个集私宴、花园休憩、品茗、娱乐于一体的多功能私享空间,成为家庭客厅的重要延伸。
更具创新性的是“X+1”的空间设置理念,打破单一功能边界:健身房叠加高压氧舱、冷疗舱等;泳池搭配专业理疗池;阅读室延伸家教区与儿童成长区。每一种功能都追求1+1>2的效果,以超前创新重新定义高端生活的奢适尺度。
02、
推售信息
保利·珺园首开均价约11.74万/m²,其中,
洋房均价109783元/m²、叠加均价132499元/m²、联排均价117416元/m²。
建面约105-140㎡6F墅质洋房107套,总价预计仅约960万起;
建面约161-190㎡4F叠拼墅邸24套,总价预计2050万起;
建面约200-270㎡3F滨水联排仅3套,总价预计3100万起;
分楼栋来看:
·9#核心C位+270°瞰景
首开推出的洋房中小区中位置更好的楼栋,景观、视野、私密性都非常好,近主出入口,出行便捷!
·10#紧邻双下沉庭院+景观王座
小区景观王座,近主出入口,出行便捷,紧邻珺CLUB,国际生活快人一步,还有双下沉庭院,景观视野拉满!全小区唯一西边套127m仅6套,不容错过!
·5#全小区独一无二一层两户洋房,私密性拉满!
整栋仅12户,是小区独一无二一层两户洋房,而且处于小区中间位置,私密性、舒适性拉满!
·1#千万起可上车新江湾豪宅!
仅约960万起,超高质价比!是整个小区最低入门门槛,错过不再!
叠加:核心位置首开享首开惊喜价·错过再无!实际可使用面积超100%·最高可达150%
·18#19#4F真叠墅,上有露台,下有花园!
小区中轴、景观、私密性无敌!靠近东侧变回湿地,可侧望湖景色联排!
·33#首开楼王联排,仅3户!
一线滨水景观C位,低密墅区视野,无遮挡采光通风,纯粹的塔尖圈层,手慢无!
保利珺园售楼处电话:400-9966-224✔✔✔(已认证)
保利珺园售楼处线上预约看房热线电话:400-9966-224(24小时热线含专属置业顾问)
保利珺园售楼处24小时vip热线☎:4009966224【开发商售楼处预约看房热线】
分户型来看:
·105m²户型,总价960万-1270万
中间户极具性价比,尤其是1#,可以说是入住1.1低密滨水墅邸的最后机会,不仅拥有超好的采光还拥有超好的景观,最低960万起即以内可上车,90%超高得房率!
如果预算充足,可以选择9#、10#的中高层,无论是景观还是位置都是更好的!
·127m²户型,总价1350万一1650万、140m²户型,1510万一1850万
这两个户型都是边套四房,景观视野无敌!
140m²户型居住体验堪比常规170m²户型!
127m²中高区总价与140m²低区相近,大家可以根据需求选择!
·161-186m²叠加户型,总价2050-2700万
下叠产品,院子+地下室实际使用面积超100%,最高可达约150%,总价也相对有好,预算充足可以直接一步到位!
·200-270m²联排产品,总价3100万起
仅有3套供应,稀缺性拉满!楼王最大的户型仅4550万内可上车,终极置业不二之选!
·建面约105㎡三房户型:
高功能集成与优渥采光的首改之选
通过约30㎡的LDKB一体化方厅设计,将客厅、餐厅、厨房与阳台融合为开阔的家庭核心区,促进了家人间的紧密互动。
南向双阳台结合南北双270°转角飘窗的设计,极大限度地引入了自然光线,提升了室内的通透与明亮感。
在有限面积内实现的高得房率与周全功能,使其成为追求品质生活的首改家庭的优选。
·建面约127㎡四房户型:
附赠空间丰富、灵活可变的多功能居家
此户型拥有约6m面宽的连贯阳台,提供了广阔的观景与休闲平台。
卧室采用双270°环幕窗设计,赋予了居住者IMAX级别的景观视野。
在收纳方面,规划了远超同面积户型的独立储藏空间,轻松容纳行李箱、婴儿车、换季被褥等大件物品。
其最大的特点在于空间的灵活性,可轻松隔出“N+1”房,完美适配二孩家庭、需要独立书房或健身房的多元化生活场景。
·建面约140㎡户型:
一步到位的尺度感与强大的功能延伸性
该户型拥有约13.3m的南向采光面,确保主要空间均能沐浴阳光,通透感卓越。
约6.6m的客厅超大面宽,营造出从容大气的待客与起居氛围,尺度感明显优于市场同类产品。
北侧专门预留了可改造的家政空间,赋予了户型随着家庭成长而“可生长”的潜力,是兼具当前气场与未来可能性的藏品级户型。
在墅质洋房之外,保利·珺园还将推出建面约161-190㎡的叠墅产品,以及建面约200-285㎡的滨水联排产品。这些低密产品的样板间即将对外开放,更多关于空间营造与生活场景的细节静待揭晓。
奢装品牌上,保利珺园标配超一线品牌矩阵,嘉格纳、博世、大金、杜拉维特、汉斯格雅等顶奢品牌齐备,从厨卫电器到卫浴洁具,每一处配置都彰显顶豪品质;
在保利天奕的背景墙岩板定制之上,保利珺园实现定制化的全面升级,打破“千房一面”的桎梏,构建三大定制体系,将定制化贯穿入户、玄关、客厅空间,兼顾个性化需求与整体美学统一,彰显高阶人群的专属品味。
从入户开始,门把手与门牌背景板均提供双款定制选择,双色彩三角贝母定制精准契合高阶人群个性化审美需求,在细节处彰显专属美学格调,兼顾质感与辨识度

室内入口玄关,保利做了金属吊线预留挂画位,业主可以在这里打造玄关个性化装饰设计,让每个家庭都能根据自身喜好打造专属家居氛围,进一步彰显家庭格调与居住品味
保利珺园售楼处电话:400-9966-224✔✔✔(已认证)
保利珺园售楼处线上预约看房热线电话:400-9966-224(24小时热线含专属置业顾问)
保利珺园售楼处24小时vip热线☎:4009966224【开发商售楼处预约看房热线】

最重磅的还要数双背景墙定制岩板,作为行业首个实现电视与厨房背景墙无缝衔接的设计,彻底打破空间割裂感,让美学设计贯穿全屋!
保利·珺园重新定义改善人居的空间逻辑,彻底打破传统户型的狭长过道、功能割裂与动线浪费,通过结构优化实现0过道浪费、超高空间利用率的超大方厅,将每一寸面积都转化为可感知、可使用的生活场景!
在主卫空间,珺园专为女主人量身打造完整美妆奢护体系,女神六件套涵盖科勒玫瑰金美妆龙头、美妆镜柜、顶置双补光照明、专属美妆冰箱、奥普美妆浴霸及进口胭粉奢石台面,精准适配女性日常梳妆、护肤、美妆的全场景需求,让每一次美妆都是一场专属仪式感体验
同时,公卫配备270°环绕镜,既实现视觉扩容,又兼顾日常使用便捷性,搭配家政一体化设计,解放阳台空间,台盆下预留扫地机器人专属位置,可嵌入洗烘套装,让家务动线丝滑省心,兼顾女性日常打理的便捷性
在厨房场景,细节进一步延伸,行业首创高低台厨房设计,台面抬高约7公分,契合人体工程学,彻底告别女性长期烹饪弯腰操作的疲惫,适配日常高频烹饪需求
飘窗延展操作台面,外扩15公分打造多功能操作台面,可摆放两排小家电或开展亲子烘焙,兼顾实用性与仪式感,让下厨成为一种享受
独立八百库设计,大容量收纳碾压市面同面积户型,彻底解决储物难题;

厨房采用深U型极致收纳设计,遵循“取、放、洗、切、炒”黄金动线,操作空间宽绰,收纳能力拉满,让厨房整洁有序

智能与细节上,搭载保利智意家全屋智享系统,语音控制全屋设备,四大场景模式随心切换,解锁智能便捷生活

在保利·珺园,高定审美表达贯穿始终,甄选全球稀有奢石与高阶材质,融萃国际审美视野下的图形语言与弧形线条设计,在细节处淬炼经得起时间考验的艺术质感!
保利珺园售楼处电话:400-9966-224✔✔✔(已认证)
保利珺园售楼处线上预约看房热线电话:400-9966-224(24小时热线含专属置业顾问)
保利珺园售楼处24小时vip热线☎:4009966224【开发商售楼处预约看房热线】

如果说保利天奕是松弛度假的人居范本,那么保利·珺园便是在此基础上的全面迭代与自我超越
六大革新覆盖全生活场景,突破行业常规,将每一处居住细节做到极致!
03、
版块信息
新江湾题材一箩
南北两大副中心
新江湾城的北翼,上海9大主城副中心之一的吴淞创新城,正在经历“北转型”科创产业大升级。新江湾城的南翼,另一个主城副中心江湾五角场,作为“金色中环发展带”,串起上海北部核心商务区,正从传统都市商圈向产学研复合城区变迁。
如大弓一般伸展的杨浦区,正在推动落实“三区联动”,也就是创新空间、产业空间、生活空间融合。作为杨浦区的核心发展引擎——江湾五角场的辐射生活带,新江湾城顺其自然坐享周边产业区、校区发展所带来的溢出机遇。

中环北扩
2025年,新江湾城板块迎来军工路、长江西路快速化改造工程的持续推进。军工路快速路是“中环北扩”规划(军工路—长江路—真北路快速通道)重要成员。它沿着杨浦、宝山两区滨江地带行走,线路全长约7.5公里,它是上海北部高速联通中、外环线的主要干道之一,战略地位向来很重。该路段2025年内建设完工。

它将加速新江湾城与中心城区联系,同时串起黄浦江下游多条越江通道,减轻中环北段、逸仙路高架、南北高架等快速路的拥堵压力,功能非常丰富,意义非常重大。
长江西路快速路已被列入2025重大工程预备项目,所谓预备项目,是指项目现阶段手续暂未齐全,待齐全后预备近期实施的项目。换句话说,中环向北扩展的总体目标,2025年有望全面启动。

20号线
除了10号线、18号线直接穿越新江湾城外,一条新轨交又要来了,20号线被称为“北上海副中心联络线”。全长约30公里,共21个站点。它不仅串联起了真如、五角场两大主城副中心,并且将桃浦智创城、大宁商圈、新江湾、曲阳(大柏树)、杨浦滨江中北段和浦东外高桥一线连接。这条新地铁将为新江湾城的东西两翼点开通勤出行新地图。

产业中心
“夹”在中间的新江湾城,区内坐拥抖音、哔哩哔哩、叠纸、美国耐克、德国汉高等头部企业,精英人才汇聚。北部以湾谷科技园为核心,形成“2+4+N”产业矩阵——电子通信、生命健康为主导,智能科技、绿色低碳等为优势产业。新江湾城作为生态型花园国际社区,不但要接住南北两翼齐飞的泼天“城运”,顺势还要承接周边不断溢出的庞大职住需求。
保利珺园售楼处电话:400-9966-224✔✔✔(已认证)
保利珺园售楼处线上预约看房热线电话:400-9966-224(24小时热线含专属置业顾问)
保利珺园售楼处24小时vip热线☎:4009966224【开发商售楼处预约看房热线】
大型生态湿地
新江湾区域内绿化覆盖率高达60%,已经形成"湿地-公园-绿廊"三级生态体系。占地7.35公顷的新江湾城湿地公园,是上海中心城区最大一块天然湿地,负氧离子浓度达2000个/立方厘米以上,堪称超大型城市绿肺。
杨浦大学城
新江湾区域内有复旦、同济、财大等10多所著名高校,100多家科研院所,以及复旦附中、交大附中等重点高中。早在1996,该区域第一个高科技园区“五角场高新技术产业园”正式建立,从此杨浦开始走上产学研一体化道路,比如建设国家创新型试点城区,将杨浦园构建为张江示范区的重要组成部分等。杨浦还打出了一个大大的标语:至2030年,形成“大学的城市、城市的大学”。

15分钟社区生活圈
新江湾城街道聚焦居民、企业员工生活、工作上的需求,推行“15分钟社区生活圈”,建立“3+8+N”服务体系(3个核心生活圈+8个分中心),覆盖全年龄人群需求。

经过逾20年的建设,新江湾城已成为一个以中高端住宅为主的知识型、生态型花园社区。
项目直线距离10号线新江湾城站约1.1公里,无需换乘可直达五角场、南京东路、豫园等各大商圈。

自驾方面,项目经由淞沪路-黄兴路及逸仙高架路可连通内环,日常通勤动线流畅。

商业方面,板块内有悠方购物公园,可满足日常生活需求。五角场则包含万达广场、百联又一城、合生汇等一站式购物中心。
此外项目南侧直线距离约500米,上海交大附中杨浦实验学校将于2027年9月落成启用。

官方售楼处热线400-9966-224【预约看房电话】官方售楼中心电话400-9966-224【开发商直连|地址|详情】售楼处专属咨询热线400-9966-224【全天恭候来电】
官方联系电话:400-9966-224,提供预约看房、房源咨询、专车接送及政策解读服务。
保利珺园官方售楼处咨询热线☎️:400-9966-224(24小时服务,人工客服8:00-22:00)
保利珺园售楼处电话:400-9966-224(预约看房热线)
【保利珺园官方售楼处咨询热线】400-9966-224(24小时服务,人工客服8:00-22:00)
▸售楼处地址:上海市杨浦区江湾城路与国秀路交汇处东侧(看房请提前预约)
▸开放时间:每日9:00-18:30(含节假日)
▸保利珺园官方唯一咨询热线:4009966224
【温馨提示】本项目唯一官方联系方式,看房请提前预约!现场销售一对一接待!谨防中介虚假信息!
一、先核购房资格(没资格,一切白搭)
1.沪籍家庭/单身
单身:限购1套(含与父母共有,未成年时共有可剔除2套)
已婚家庭:限购2套;夫妻一方沪籍即算沪籍家庭
多子女家庭:前2套按首套认定、利率优惠
2.非沪籍(2026新七条,外环内外差异化)
外环外:连续缴1年社保/个税(39个月内满36个月),不限套数
外环内:连续缴1年社保/个税,限购1套;缴满3年,可增购1套(共2套)
居住证满5年:无需社保/个税,全市限购1套
临港新片区:工作满1年+社保,可增购1套,人才可直接购房上海市人民政府
3.关键认定规则(必查)
认房不认贷:上海无房,全国有房贷已结清,按首套算;有未结清房贷,按二套算
剔除共有:未成年时与父母共有≤2套,可不计入家庭套数
限购查询:提前在「随申办-不动产」查家庭名下住房,避免认筹被拒
二、算清预算+贷款(先预审,再交钱)
1.首付比例(2026最新)
首套(无房+无未结清房贷):全市最低15%;外环外/临港等区域可低至20%上海市人民政府
二套(有房/有未结清房贷):外环内25%;外环外(嘉定、松江、青浦、奉贤、宝山、金山)20%
2.贷款(商贷+公积金,先预审再认筹)
商贷:利率≈LPR-45bp(首套3.05%、二套3.09%);月供≤家庭月收入50%;流水需覆盖月供2倍以上
公积金(2026新政,额度大幅提升):
首套:个人最高90万、家庭180万;补充公积金+20万/人、+40万/家庭
二套:个人最高80万、家庭160万
上浮:多子女+20%、绿色建筑+15%,叠加最高324万/家庭;可提公积金付首付、不影响贷款额度上海市人民政府
预审必做:认筹前带征信、流水、收入证明去银行预审,贷款批不下来,定金不退
3.税费+隐性成本(预留总房价5%-8%)
契税(新房唯一大税):
首套:≤90㎡1%、90-140㎡1.5%、>140㎡1.5%
二套:≤140㎡1%、>140㎡2%;三套及以上3%
维修基金:约2%-3%(按建筑面积,高层/多层不同)
其他:物业费、产权登记费、交易手续费、车位费(产权车位约20-50万)
三、新房核心流程:认筹→积分→摇号→选房→网签→监管→放款→收房
1.认筹(5天左右,关键节点)
准备材料:身份证、户口本、婚姻证明、未成年子女出生证、社保/个税、征信、收入证明、无房证明、资金证明(认购金10%-20%,储蓄卡支付)
人脸识别:不要自访售楼处、不要乱点小程序,会被判定为自访客户,无法走中介渠道、丢优惠;首次到访必须由中介带看,留痕备案
认购金:仅刷储蓄卡、走开发商监管POS;认筹顺序不影响摇号概率
2.积分入围(热门盘必过,认筹比>1:1.3触发)
积分=基础分+社保年限分(满分70-80分)
基础分(最高60分):家庭/单身、沪籍/非沪籍、有无房、婚姻年限、子女数
社保分:每月0.1-0.2分,缴满20年≈24分
规则:按积分从高到低取前130%入围;未超1:1.3,全部入围摇号
避坑:提前算分,热门盘(内环、学区、倒挂)需60分+,低分慎冲
3.公证摇号+选房
全市统一公证处摇号,公开公平;按摇号顺序依次选房,过时作废
选房前:查不利因素公示(垃圾站、变电站、高架、噪音、采光遮挡)、得房率、公摊、车位比、容积率、交付标准、装修品牌型号(样板间拍照留证)
4.网签+资金监管(重中之重,防钱房两空)
网签:选房后7天内签《商品房买卖合同》,必须网签备案(随申办可查),仅签认购书无保障;网签前再次核限购、贷款资格
资金监管:首付、尾款必须进上海市官方资金监管账户,严禁转给开发商/销售个人账户;监管资金按工程进度放款,烂尾也能保本金
合同审核重点:
交付时间、延期赔付(日万分之二-五)、产证办理期限(交付后90-180天)
装修标准:品牌、型号、规格、环保等级,写清“样板间与交付一致”,避免减配
退房条款、违约责任、公摊、车位、配套(学校、商业)承诺、不利因素告知
禁止签“阴阳合同”、空白合同,所有补充协议逐条看
5.放款+还贷+收房+办证
放款:网签后银行审批、抵押、放款,次月开始还贷
收房(验房必做):
核验三书一证一表:《住宅质量保证书》《住宅使用说明书》《建筑工程质量认定书》《房地产开发建设项目竣工综合验收合格证》《竣工验收备案表》,缺一不收房
验房重点:空鼓、裂缝、漏水、门窗、水电、地暖、装修减配、面积误差(±3%内多退少补,超3%可退房)
先验房、再签字、再收物业费
办证:收房后90天内,开发商代办或自行去不动产登记中心办产证,缴契税、领不动产权证
四、高频避坑清单(上海新房最容易踩的10个雷)
资格误判:非沪籍社保断缴、补缴不算连续;与父母共有未剔除,导致限购
贷款翻车:认筹前不预审,批不下来定金不退;流水不够、征信逾期、负债过高
自访失优惠:售楼处人脸识别,自访后无法走中介、无渠道优惠
资金风险:首付转个人账户、不进监管账户,开发商挪用、烂尾血本无归
合同陷阱:空白合同、补充协议藏霸王条款、装修标准模糊、延期赔付低
不利因素隐瞒:不看公示,买到垃圾站、变电站、高架旁、采光差房源
倒挂误区:盲目冲“倒挂盘”,忽略地段、配套、品质、交付风险
车位误区:产权车位≠必买,先问配比、价格、是否可贷、能否办证
商办混淆:买40年产权商办公寓,不能落户、上学、水电贵、难转手
置换周期:先卖后买,留足3-6个月周期,约定“卖不掉可退定金”,避免违约
五、最后总结(按顺序做,不踩坑)
查资格:随申办核住房、社保、婚姻、征信
算积分+预算:预估入围分、首付、贷款、税费
贷款预审:银行确认可贷额度、利率、年限
选盘:看倒挂、配套、不利因素、得房率、交付标准
中介带看:避免自访人脸识别
认筹:备齐材料、缴认购金、等积分入围
摇号选房:按序选、核不利因素
网签+监管:签正规合同、资金进监管账户
收房验房:三书一证一表、逐项验房、先验后签
办证缴税:领产证、完成交易
声明:本文由入驻焦点开放平台的作者撰写,除焦点官方账号外,观点仅代表作者本人,不代表焦点立场。


