建发云湖玥售楼处电话☎:400-998-9694✔✔建发云湖玥售楼处电话☎:400-998-9694✔✔建发·云湖玥位于宝山美兰湖,拥有优质地段、便捷交通、高端教育和成熟商业,售楼处电话400-998-9694,提供专业服务。
建发云湖玥
售楼处电话☎:400-998-9694
如有问题欢迎来电咨询,来电即可享受买房优惠!
预约来电尊享购房优惠,可预约案场内部销售人员,专业一对一热情服务,让您用专业眼光去买房。
建发云湖玥售楼处电话☎:400-998-9694✔✔建发云湖玥营销中心电话:400-9989-694【24小时热线】建发云湖玥预约热线:4009989694【售楼处电话】
宝山美兰湖区域全新盘 建发·云湖玥 美学展厅于 宝山美兰湖中集金地广场A馆1F中庭 正式开放。
1地段
上海“最美丽的地方”留给了美兰湖畔,伴随板块产业及生活配套的持续兑现,一幅国际湖居的生活图景已醇熟铺展。如今这里,同步演进着TOD4.0未来生活范式,实践“站、城、文、湖、居”无界融合。建发·云湖玥踞板块核心位置,坐拥约500米一站式超配生活圈。
交通能级跃升:约600米直达7号线美兰湖站,一线畅达静安寺,可换乘13条轨交,换乘网络辐射全城;车行同样便捷,沪太公路与S7沪崇高速公路连接南北主干道与外环,高效通达5大核心区域。


建发云湖玥
售楼处电话☎:400-998-9694
如有问题欢迎来电咨询,来电即可享受买房优惠!
预约来电尊享购房优惠,可预约案场内部销售人员,专业一对一热情服务,让您用专业眼光去买房。
建发云湖玥售楼处电话☎:400-998-9694✔✔建发云湖玥营销中心电话:400-9989-694【24小时热线】建发云湖玥预约热线:4009989694【售楼处电话】
TOP教育资源注入:一路之隔即为最新落户的华二宝山实验学校(在建中,预计2027年投用),标志着板块教育能级的显著提升,菁英成长环境举步即享。

醇熟商业环绕:距离项目约300米即为中集金地美兰城TOD,约70万方的商业综合体,盒马、上影影城等众多品牌首店进驻,北上海潮流生活主场实至名归。
生态底蕴再升级:除了大家熟知的美兰湖(距离项目约700米),2024年开放了约11.47公顷的美兰西湖公园,拥有约4万平方米水域面积、千米环湖景观步道,生态环境再度升级,且距离项目仅约100米。双湖一园环抱,坐拥约244.8万方浩瀚绿意与多元运动配套,是北上海宜居的生态活力大城。

2产品
建发云湖玥
售楼处电话☎:400-998-9694
如有问题欢迎来电咨询,来电即可享受买房优惠!
预约来电尊享购房优惠,可预约案场内部销售人员,专业一对一热情服务,让您用专业眼光去买房。
建发云湖玥售楼处电话☎:400-998-9694✔✔建发云湖玥营销中心电话:400-9989-694【24小时热线】建发云湖玥预约热线:4009989694【售楼处电话】
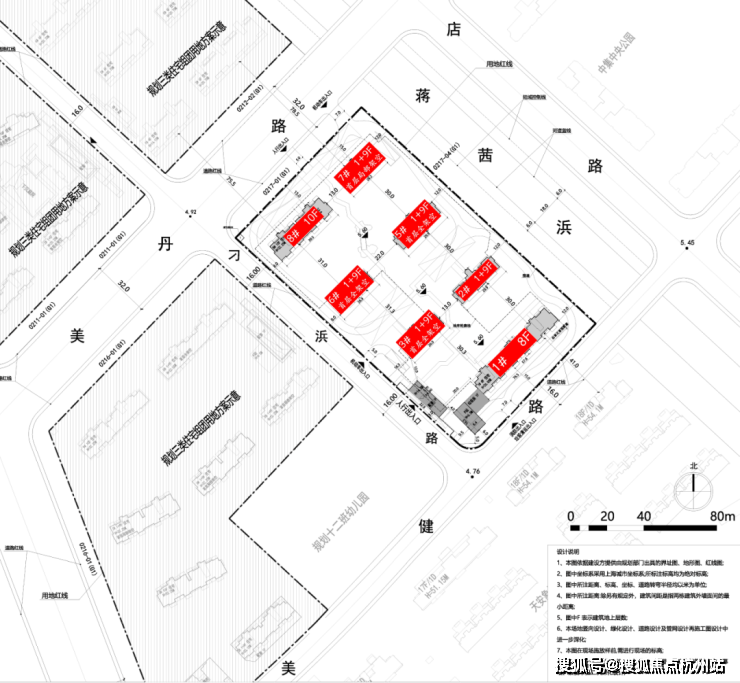
今年9月第七批次土拍中,建发以总价27047万元摘得宝山区BSP0-2102单元0211-02、0212-01、0216-03、0217-07地块地块,楼板价15505元/㎡,装修标准2000元/㎡。

地块出让面积78013.3㎡,分为四个子地块,为居住用地,其中:
0216-03地块东至刁浜路,南至美健路,西至0216-01公共绿地,北至0216-01公共绿地,出让面积23324.7㎡,容积率1.5,建筑面积34987.05㎡;
0211-02地块东至刁浜路,南至0211-01公共绿地,西至0211-01公共绿地,北至美康路,出让面积21128.29㎡,容积率1.6,建筑面积33805.26㎡;
0212-01地块东至0217-04公共绿地,南至美健路,西至刁浜路,北至0217-01地块,出让面积16124.39㎡,容积率1.2,建筑面积19349.27㎡;
0217-07地块东至0212-03公共绿地,南至0212-02公共绿地,西至刁浜路,北至美康路,出让面积17435.92㎡,容积率1.2,建筑面积20923.1㎡。

四个地块规划设计方案均已出炉:
建发云湖玥
售楼处电话☎:400-998-9694
如有问题欢迎来电咨询,来电即可享受买房优惠!
预约来电尊享购房优惠,可预约案场内部销售人员,专业一对一热情服务,让您用专业眼光去买房。
建发云湖玥售楼处电话☎:400-998-9694✔✔建发云湖玥营销中心电话:400-9989-694【24小时热线】建发云湖玥预约热线:4009989694【售楼处电话】
0212-01地块拟建8栋4-8层住宅;
0211-02地块拟建9栋5-17层住宅;
0216-03地块拟建7栋9-10层住宅+1栋14层保障房;
0217-07地块拟建7栋8-10层住宅;




项目规划洋房与叠加两类产品,洋房户型建面约92-122㎡,叠加户型建面约136㎡起,户型规划兼顾居住实用性与空间感,打造贴合湖居生活的居住空间,适配不同家庭的置业需求。

浮岛洋房示意图过程稿,非交付标准,仅供参考
2月7日,建发·云湖玥美学展厅于宝山美兰湖中集金地广场A馆1F中庭正式开放,现场人气汇聚。作为板块久违的新作,项目一面市即引发广泛关注。建发·云湖玥,不仅是宝山首个「浮岛洋房住区」,亦是建发房产2026年「诗意东方」系在宝山的开盘力作,为美兰湖带来了全新的居住想象与空前的市场热度。
建发云湖玥
售楼处电话☎:400-998-9694
如有问题欢迎来电咨询,来电即可享受买房优惠!
预约来电尊享购房优惠,可预约案场内部销售人员,专业一对一热情服务,让您用专业眼光去买房。
建发云湖玥售楼处电话☎:400-998-9694✔✔建发云湖玥营销中心电话:400-9989-694【24小时热线】建发云湖玥预约热线:4009989694【售楼处电话】



建发房产拥有四十余年房地产开发经验,布局全国七十余城。入沪二十余载,已成功在上海打造三十余个品质项目,累计交付超2万户。2025年,上海多盘持续蝉联区域销冠,以扎实的品牌实力与卓越产品力赢得市场信赖。


持续深耕宝山的建发房产,此前已在此打造三座标杆作品,不断推动区域人居迭代。
2026年,建发载誉归来,以融合当代审美与东方意境的美学力作——诗意东方系【建发·云湖玥】敬献美兰湖。
建发云湖玥
售楼处电话☎:400-998-9694
如有问题欢迎来电咨询,来电即可享受买房优惠!
预约来电尊享购房优惠,可预约案场内部销售人员,专业一对一热情服务,让您用专业眼光去买房。
建发云湖玥售楼处电话☎:400-998-9694✔✔建发云湖玥营销中心电话:400-9989-694【24小时热线】建发云湖玥预约热线:4009989694【售楼处电话】
楼盘项目全面介绍,本电话为开发商提供线上预约售楼电话,楼盘项目全面介绍(包含楼盘简介,均价,房价,现房,期房,别墅,叠墅,大平层,价格,楼盘地址,户型图,交通规划,备案价,备案名,项目配套,样板间,开盘时间,认筹时间,楼盘详情,售楼处电话,最新消息,最新详情,周边配套,一房一价,最新进展等详情咨询)楼盘详情丨价格丨更多优惠丨机不可失丨欢迎致电丨诚邀品鉴!售楼处位置丨特价房丨工抵房丨剩余房源丨户型图丨最新消息丨免责声明:将文章内容综合来源于网络、只作分享,版权归原作者所有!!如有侵权,请联系我们,我们第一时间处理如有问题欢迎来电咨询,专业一对一热情服务,让您用专业眼光去买房。如果您想了解更多楼盘详情,欢迎提前预约拨打