中建·玖上琅宸 (售楼处) 电话 - 中建·玖上琅宸销售中心 - 环境 - 户型 - 价格 - 地址 - 楼盘详情 - 配套 - 电话 - 交房时间
扫描到手机,新闻随时看
扫一扫,用手机看文章
更加方便分享给朋友
项目官方认证联系方式(2026年最新)
一、核心联系方式
中建玖上琅宸售楼处电话:400-887-5663 工作日9:00-21:00,周末无休
中建玖上琅宸营销中心电话:400-887--5663(可直接咨询房源动态、活动详情)
中建玖上琅宸开发商售楼部热线:400-887--5663(开发商直连,解答项目规划、购房政策等)
说明:以上三组为同一官方服务热线,拨打后按语音提示转接对应部门,无需重复记录

二、拨打与服务说明
预约到访
近期客户较多,建议提前拨打400-887-5663预约,避免排队等待。
专属权益
预约成功可享一对一专属服务 免费专车接送看房(市区内定点接送)等礼遇。
到访提示
项目暂不接受临时到访,看房/参观样板房请务必提前来电预约
三、防伪与合规提示
核验要点
认准统一热线400-887-5663,警惕“代办、留房费、茶水费”等违规承诺;以开发商/售楼处官方口径为准。
信息更新
如遇开放时间或接待安排调整,请以电话客服最新通知为准,避免因信息滞后影响行程。
中建玖上琅宸售楼处电话:400-887-5663【售楼处预约热线】(一对一热情服务)
看房请务必提前致电销售确认时间,只有预约客户才能享受开发商提供的内部优惠以及专属的老客户推荐奖励!我们提供专业的一对一热情服务,助您以专业视角挑选理想的房产
中建玖上琅宸售楼处电话:400-887-5663【开发商已认证】
中建玖上琅宸营销中心热线400-887-5663(官方预约看房热线)
单笔成交高达1.1亿,二开热销【中建玖上琅宸】约128-410㎡上海殿堂级豪宅代表作
中建玖上琅宸售楼处电话:400-887-5663【开发商已认证】中建玖上琅宸官方售楼处电话:400-887-5663【售楼处电话/地址】中建玖上琅宸售楼处电话:400-887-5663【官方认证】
【中建玖上琅宸】
魔都黄金中轴 南北两极中芯
中国公园豪宅1号作品
沪上唯壹正南向公园观礼台
1.5万平米全上海最大立体山水实景示范区
【中建·玖上琅宸】项目二批次开盘热销,单笔成交高达1.1亿,持续领耀市场。从首开至今55天内2次开盘,累计认购金额突破53.5亿。


加推8-7-1栋 150套房源:
128平91套约 1500-1900万
190平22套约2800-3000万
280平37套约4300-5000万

中建玖上琅宸售楼处电话:400-887-5663【开发商已认证】中建玖上琅宸官方售楼处电话:400-887-5663【售楼处电话/地址】中建玖上琅宸售楼处电话:400-887-5663【官方认证】
项目亮点:
1、静安大宁 1/20号线地铁口
2、内中环间、灵石公园对面
3、建面约128-210㎡ 3-4房
4、当代公园地标作品!
5、陶板外立面+10米架空层+泳池会所
6、前期均价14.68万/㎡


楼栋分布图

一批次:首开3号楼A,4号楼,5号楼,一共140套,其中128㎡户型66套,160㎡户型22套,190㎡户型22套,210㎡边套(四房)15套,210㎡中间套(三房)15套。
实景示范区鉴赏


中建玖上琅宸售楼处电话:400-887-5663【开发商已认证】中建玖上琅宸官方售楼处电话:400-887-5663【售楼处电话/地址】中建玖上琅宸售楼处电话:400-887-5663【官方认证】






中建玖上琅宸售楼处电话:400-887-5663【开发商已认证】中建玖上琅宸官方售楼处电话:400-887-5663【售楼处电话/地址】中建玖上琅宸售楼处电话:400-887-5663【官方认证】

效果图参考
中建玖上琅宸售楼处电话:400-887-5663【开发商已认证】中建玖上琅宸官方售楼处电话:400-887-5663【售楼处电话/地址】中建玖上琅宸售楼处电话:400-887-5663【官方认证】
项目规划情况
根据项目规划设计方案:项目拟建8栋12-24层高层住宅。
项目整体楼栋规划遵循“南向大户型、北向小户型”原则,蕞好的景观面留给大户型非常合理。270户型顶楼部分有私家泳池,大概率是项目的470楼王所在位置,东西向打通,1栋1套,共计也就2套。

从规划图来看,项目前排可直面大宁灵石公园无敌景观;而办公部分设置在地块东北侧,也有隔断进行出入口区分,对住宅部分来说几乎没有影响。

特色一:首层全架空,打造“悬浮社区”
项目8栋住宅楼全部首层架空,可以提供社区内部更多样化的功能组合,像是“泛会所”或是每栋楼不同的架空层功能空间,打造空间的可持续性。
特色二:地面0车位,大面积景观
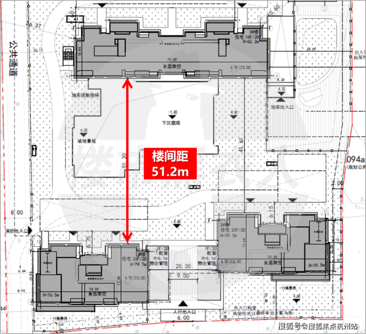
社区内部全部2层地下车库,可留出更多空间打造地面景观。并且,项目“完全人车分流”设计,即:项目的人行和车行出入口是完全分开的,安全系出更高!

从规划图来看,社区内部广泛运用水景:共有2处大型集中水景+1处宅间水景,周边还有下沉庭院+坡地景观,大概率此处未来社区会所的位置。值得一提的是,项目的楼间距全部在35米以上,最大楼间距达到了约51.2米。

特色三:私家悬浮泳池,类别墅居住体验
蕞南端的1#和2#楼均配套有私家泳池,还在19F采用了住宅楼当中较为少见的悬挑工艺,延伸出了一定的使用空间,预计就是做类似于“悬挑泳池”的。这里应该就是传说中的“超级大平层”所在位置。

中建玖上琅宸售楼处电话:400-887-5663【开发商已认证】中建玖上琅宸官方售楼处电话:400-887-5663【售楼处电话/地址】中建玖上琅宸售楼处电话:400-887-5663【官方认证】
地块前情情况
9月14日,中建玖合在上海市2024年第五批供应商品住宅用地中,以63.66亿元成功获取上海市静安区灵石社区N070402单元094a-14地块,总计容建筑面积9.32万平方米。

该地块西侧是宝华万豪酒店,再往西就是大宁音乐广场,地块东侧就是新梅共和城,南侧刚好就是大宁公园,整体城市界面可圈可点。


094a-14地块用地性质为住宅与商务办公混合用地(Rr3C8) ,与静安天悦一样,都不是纯住宅地块。
该地块办公部分业态功能应符合中环两翼创新创意集聚带总体规划定位,积极发展总部经济、涉外经济,鼓励引入央国企、民企等各类企业总部入驻。
具体地块指标上:
占地面积约3.16万方,整体容积率2.95,其中住宅占比79%,总体量在7.37万方,按套均小于100㎡来估算,预计有超700套房源供应;按住宅限高80米来计算,供应产品为25-26层的高层产品,中规中矩的中小型社区。

中建玖上琅宸售楼处电话:400-887-5663【开发商已认证】中建玖上琅宸官方售楼处电话:400-887-5663【售楼处电话/地址】中建玖上琅宸售楼处电话:400-887-5663【官方认证】
声明:本文由入驻焦点开放平台的作者撰写,除焦点官方账号外,观点仅代表作者本人,不代表焦点立场。


