美兰金色宝邸(上海)售楼处电话_预约看房_楼盘详情-2026最新房价-户型图(上海房天下)美兰金色宝邸售楼处电话_预约看房
扫描到手机,新闻随时看
扫一扫,用手机看文章
更加方便分享给朋友
美兰金色宝邸售楼处电话:400-8878-824
美兰金色宝邸营销中心热线400-887-8824(官方预约看房热线)
美兰金色宝邸售楼处电话:400-8878-824
美兰金色宝邸营销中心热线400-887-8824(官方预约看房热线)
上海“2035规划”明确提出,上海要主动服务“一带一路”建设、长江经济带发展,主动融入长三角区域协同发展。宝山作为长三角枢纽存在,被纳入主城区,开启新一轮时代红利,以北郊未来产业园为转型驱动,致力打造北上海新兴产城中心,城市资源全面升级。
(示意图)
随着“2035”战略规划定调,北郊迎来交通焕新,形成“二纵一轨”立体交通。S7沪崇高速的一期在建、沪太路快速化将促进交通路网的焕新升级;规划中运量交通接驳轨道交通7号线,实现快速通达市区。
(示意图)
上海北郊未来产业园是浦东金桥股份与宝山工业园区合作的科技产业园项目,承载区域产业转型任务,助力打造“上海制造”品牌,着力推动机器人、高端装备、关键智能部件等领域的研发和产业化。智能制造、新材料、移动互联网和健康产业等四大产业将成为支柱产业。
美兰金色宝邸售楼处电话:400-8878-824
美兰金色宝邸营销中心热线400-887-8824(官方预约看房热线)
罗泾处于上海市北部,是宝山区城市建设区及上海国际航运中心的组成部分,规划以一核:罗泾公园为生态核心,二轴:以陈功路、罗宁路为城镇发展轴,三带:荻泾河、小川沙河、陶家河绿化景观带环绕,建设成为以中高档居住为主体,融行政办公、商业服务、文化教育、休闲娱乐等多元功能为一体的水韵生态城。美兰金色宝邸,正处于一核、二轴、三带的核心交集,中心区位天然优越,尽享城市发展黄金轴线带来的便捷生活及无限价值。而【美兰金色宝邸售楼处电话:400-8878-824】位于宝山区罗泾。
项目基本参数
物业类别:别墅
单价:均价34000元/㎡
总价:1000万起
户型:联排(330-500㎡)
占地面积:47,442平方米
建筑面积:91,899平方米
装修状况:毛坯、精装修
在售套数:55套
交房时间:现房
绿化率:40.5%
容积率:1.3
车位数:516个
车位比:1:0.9
产权年限:住宅70年
物业费:住宅:2.2元/m²/月
别墅:3.5元/m²/月
物业公司:上海顾村物业管理有限公司
开发商:上海顾村房地产开发(集团)有限公司
销售证号:宝山房管(2013)预字0479号
楼盘特色:轨道沿线,低密居所
美兰金色宝邸售楼处电话:400-8878-824
美兰金色宝邸营销中心热线400-887-8824(官方预约看房热线)
【美兰金色宝邸售楼处电话:400-8878-824】由上海顾村房地产开发(集团)有限公司开发的罗泾B1-4地块居住小区(金色宝邸),小区由4幢小高层和55栋联排住宅构成。房源建面约300㎡~398㎡,总价约1000万起/套。
小区建筑采用经典优雅英伦风格,近邻115亩罗泾公园仅500米,不仅饱览自然风光,更如同拥有一个天然大氧吧,时时刻刻空气清新。
美兰金色宝邸售楼处电话:400-8878-824
美兰金色宝邸营销中心热线400-887-8824(官方预约看房热线)
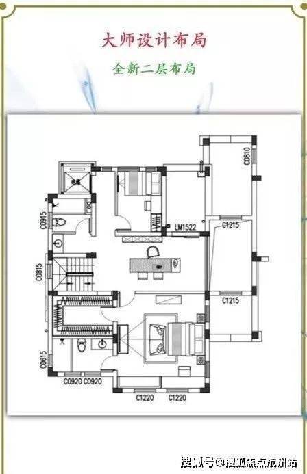
项目在售户型图
美兰金色宝邸售楼处电话:400-8878-824
美兰金色宝邸营销中心热线400-887-8824(官方预约看房热线)
项目样板间实景照
美兰金色宝邸售楼处电话:400-8878-824
美兰金色宝邸营销中心热线400-887-8824(官方预约看房热线)
美兰金色宝邸售楼处电话:400-8878-824
美兰金色宝邸营销中心热线400-887-8824(官方预约看房热线)
项目周边配套
项目位于罗泾镇中心区,周边配套成熟,罗泾中学、罗泾镇卫生服务中心仅一河之隔,周边成熟小区林立,项目西侧地块系规划商业地块,坐享城市便捷生活。10分钟内接驳轨道交通7号线美兰湖站及1号线富锦路站,尽享成熟便捷交通,出行无忧。
公共交通:潘沪路罗宁路(281米)、潘泾路潘沪路(330米)、罗宁路潘沪路(400米)、宝虹家园(464米)、潘泾路陈川路(507米)、罗宁路陈川路(589米)

教育资源:罗泾中学(234米)、宝山区罗泾镇第二幼儿园(461米)、罗泾镇中心幼儿园(925米)、上海市宝山区罗泾中心校(947米)、罗泾中心小学(949米)、罗泾镇中心幼儿园(993米)

商业配套:世纪华联潘沪店NO.2023(117米)、宝山区宝雄杂货店(133米)、如海超市(飞翔店)(148米)、良友金伴(潘沪路)(198米)、光明便利(潘沪店)(208米)、百新杂货店(217米)

医疗资源:罗泾镇社区卫生宝丰站(3053米)、罗泾镇社区卫生服务中心(272米)
银行配套:上海农商银行陈行分理处(969米)、上海农村商业银行(罗泾支行)(973米)、上海农商银行ATM(973米)、上海农村商业银行ATM(罗泾支行)(974米)、中国邮政储蓄银行(罗泾支行)(986米)

其它及饮食:豪大大鸡排(266米)、赵鱼头(507米)、赵鱼头成通酒家(553米)、成通大酒店(555米)、森绿人家常菜馆(674米)、都是客酒店(罗泾店)(683米)、水上饭店(陈镇路)(695米)、宝祥桥(51米)、小朱桥(114米)、宝一房产(120米)、村夫烤鱼(690米)、徐介路(333米)

休闲娱乐:罗泾公园(东南门)(441米)、罗泾公园(451米)

美兰金色宝邸售楼处电话:400-8878-824
美兰金色宝邸营销中心热线400-887-8824(官方预约看房热线)
美兰金色宝邸售楼处电话:4008878824【售楼中心热线】美兰金色宝邸营销中心热线400-887-8824美兰金色宝邸售楼处地址400-8878-824,楼盘项目全面介绍,本电话为开发商提供线上预约售楼电话,楼盘项目全面介绍(包含楼盘简介,均价,房价,现房,期房,别墅,叠墅,大平层,价格,楼盘地址,户型图,交通规划,备案价,备案名,项目配套,样板间,开盘时间,认筹时间,楼盘详情,售楼处电话,最新消息,最新详情,周边配套,一房一价,最新进展等详情咨询)楼盘详情丨价格丨更多优惠丨机不可失丨欢迎致电丨诚邀品鉴!售楼处位置丨特价房丨工抵房丨剩余房源丨户型图丨最新消息丨免责声明:将文章内容综合来源于网络、只作分享,版权归原作者所有!!如有侵权,请联系我们,我们第一时间处理如有问题欢迎来电咨询,专业一对一热情服务,让您用专业眼光去买房。如果您想了解更多楼盘详情,欢迎提前预约拨打美兰金色宝邸售楼处电话400-887-8824
很多人第一次买房基本都是刚需房,好不容易凑够的首付和装修费,千万不能在选房子上踩雷,下面这10条“刚需买房”的建议一定要好好看,全都是过来人总结的肺腑之言,可以让你在买房上少走一些弯路。
1、刚需房,地段很重要
既然是“刚需”,那就要能够解决当下的问题比如交通的便利性,出门步行500米左右要有地铁和公交,步行距离最好不要超过800米,不然出行不方便;
买房子就是买生活,周边的生活配套要尽可能的完善,除了医院、学校以外,最好在1公里内有大型商超和菜市场。
要满足这些刚需要求,那房子的地段就很重要;千万不要听信销售说以后的规划和建设,以后的都是未知的,眼前看到的才是最实在的。
2、不要只看价格
不管买什么,都不能完全只对比价格,尤其是买房这种大事,低价没错,但是更应该关注的是“性价比”,房子的优点和缺点全都要了解清楚,然后再做横向对比,利大于弊才是你选择它的时候。
另外,买房子除了房子本身的价格,还要考虑契税、物业费、维修基金、装修改造费、月供和利息。
3、长远看,房子保值比增值更重要
房子作为一个家庭的大支出,它除了居住属性外,本身还是一项资产;每一个买房的人,不管是自住还是投资,都希望以“低价”买入,将来能以“高价”卖出,但是未来几十年的事谁能说得准呢。
就比如当下的房地产行情,去年买的房子,今年就降价了,但是可能明年又涨回来了;而房子也会“衰老”,等到十年、二十年甚至五十年以后,你现在的房子能够实现保值,那就已经赢了。
4、房子的流通性
对于第一次买房的人来说,后期过个十来年或者五六年后大概率是要拿它再置换一套大面积的改善住房的,那就要考虑当下这套房子在几年后是否能更顺利、更快的卖出,所以房子的流通性很重要。
比如老城区内很破、很便宜的住宅,远郊的房子,户型特别差的房子,最好不要碰,自己住着不舒服,以后也不好转手。
5、户型、朝向和楼层
刚需房就要考虑三代人同住或者一家四口居住对房间数量的要求,这样考虑的话,房子最少应该是三居室,那89㎡的紧凑型小三房就更合适。
另外,房子的主朝向也就是客厅和主卧一定要是南向,北向的话采光不好,住起来不舒服;选房子的时候,楼层也很重要,最好避开槽钢层、腰线层和设备层。
6、尽可能的选现房
第一套房建议大家选现房,在新房和二手房之间不要执着于前者,如果新房不是现房的话,它的交付是有风险的,毕竟现在烂尾楼太多了,拿到钥匙之前一切都没有定数;
而二手房,不管是房子的实际情况、小区的现状、物业的管理、周边的配套都已经很成熟了,考量的时候也能更方便。
7、买房就是买配套
刚需房的配套很重要,但是要分清楚哪些是有价值的配套,哪些是无价值的假配套;比如学校、商超、菜场、地铁、医院这些是有价值的好配套;而高铁站、飞机场、游乐园之类的都属于没有价值的假配套,对房子的保值升值影响不大,只不过聊胜于无罢了。
8、别碰小产权房
小产权房是指公寓和商铺,好不容易凑够首付买的第一套房子千万不要选这两类房子;虽然这两类房子对买房的限制很小,但是它不适合用来居住,只有40年的产权,水电都是商业性质,还不通燃气,不能落户等,缺点实在是太多了,最重要的以后难出手。
9、不要执着于“学区”
很多人的第一套房子基本都是婚房,买婚房就会考虑以后孩子的上学问题,“学区”就成了房子的加分项,但却不是必选项。
如果你暂时三五年甚至十来年内都没有要入学的孩子,那学区于你而言就没那么重要了,没必要因为一个“学区”在房子上花更多的钱。
现在的出生率不高,再加上很多城市规定教师要轮岗还有学区的改革、学校的合并,谁也说不准未来会变成什么样,也许七八年后,学校都可以任选了呢。
10、不要盲目追求大户型
如果你的买房预算有限,千万不要为了大户型选择远郊的新房,这种房子不管是销售说以后配套会多完善都不要选,未来的规划都是在变动的,今天承诺的可能明天就变了,别把自己好不容易攒够的房子钱“套牢”在一个不确定的未来里。
写在最后:
买房千万不能着急,越着急越容易出错,尤其是婚前买房,一定要擦亮眼、管住手,多看多选总归是没错的,房子就是以后的家,买到好房子才能住的更舒心。
买新房的流程及注意事项:
第一步:【确定预算、了解政策】
在购房前,首要任务是设定预算并熟知当前购房政策,包括限购政策、人才购房优惠及各类补贴政策。
第二步:【征信和流水确认】
在准备购房的过程中,除了确保首付资金充足,若选择贷款购房,还需特别关注自身的征信状况和工资流水情况。征信良好意味着没有信用卡或其他贷款的逾期记录,同时负债情况也需控制在合理范围内。流水方面,通常需要提供购房前6个月的工资流水证明,以辅助贷款审批。
第三步:【看房】
在确认了自身的财务和征信状况后,就可以开始看房了。建议多走访几个楼盘,综合考虑各楼盘的位置、交通便捷性,以及周边的配套设施如学校、医院、银行和商场等。同时,也需要对楼盘及城市的发展潜力进行预估,以确保所选楼盘具有较高的投资价值。
第四步:【确定楼盘、交定金】
经过对比和考察后,选定心仪的楼盘并交纳定金。在签订购房意向书之前,请务必确认定金的退还条件,以免因个人原因导致不必要的损失。此外,还需妥善保管定金收据等重要文件。
第五步:【首付、办按揭】
交完定金后,一般会在7天内通知交首付并办理按揭手续。在此期间,请务必准备好身份证原件、结婚证或离婚证、征信报告、半年银行流水、收入证明和户口簿原件等必要资料。同时,需注意按揭贷款的审批条件,确保个人征信状况良好,以避免因银行批贷失败而导致的定金损失。
准备好所需资料,与销售约定时间,前往售楼部交首付并办理按揭手续,这两项工作通常会在同一天完成。首先,您需要在售楼部支付首付,目前通常为房价的15-20%。随后,您将签署草签的购房合同,该合同虽未加盖开发商或房管局的印章,但与正式的网签合同内容一致。在网签合同时,务必仔细阅读补充条款,特别是关于交房、办证以及违约赔偿等关键条款。
完成首付和购房合同签署后,开发商会准备按揭资料,并通知您前往银行签署按揭合同。此时,银行利率和还款方式已预先确定,您只需按照约定时间前往办理即可。一般而言,开发商的销售团队会事先与银行和客户经理进行对接。
办完按揭后,银行将对您的资料进行审核。审核过程可能需一周至数月不等,若审核通过,银行会通过短信通知您。在此期间,请注意保持通讯畅通。有时,放款时间可能会因各种原因延迟,但只要按揭通过,即使未放款也无需担忧。
银行放款后的下个月,您将开始按月偿还贷款。请务必留意还款时间,提前将资金存入账户,以确保自动扣款成功。
接下来,当开发商、银行和房管局完成相关盖章签字后,销售会通知您领取正式合同。请携带身份证和收据等必要文件一同领取首付款发票。同时,您也可在此阶段咨询开发商财务部门是否可领取全款发票。
请注意,按揭合同与购房合同是两个不同的合同。按揭合同是与银行签署的,而购房合同是与开发商签署的。在领取时,请确保您拿到的是正式合同。
最后一步是收房时的验房程序。您需要仔细检查房屋质量,包括阳台、雨罩等外饰面是否有开裂现象。同时,还要查看三书一证一表等必要文件是否齐全。
在收房验房时,我们需要注意哪些关键问题呢?
首先,要仔细检查墙体的平整度,确保没有渗水、裂缝等问题。特别是要关注厨房和卫生间的顶面以及外墙,一旦发现水迹,务必及时查明原因并让开发商进行维修。同时,地面情况也不容忽视,要检查是否有空鼓或开裂现象,以确保装修时不会打穿楼板。
其次,关于水电问题,我们需要打开所有水龙头,测试水压和排水速度是否正常。此外,还要用测电笔检查各个强弱电是否畅通,并关闭分闸以确认各个分闸是否能够完全控制各分支线路。同时,验收下水情况也是必不可少的环节。
再者,门窗的质量和性能同样重要。我们需要检查门的厚度、材质和规格是否符合要求,密封性是否良好。对于窗子,则要关注材质、规格与厚度以及玻璃的品种与厚度是否安全。此外,还要测试门窗的推拉是否顺滑、表面是否平整光洁,并检查金属配件是否齐全、位置是否正确且牢固。
最后,如果在验房过程中发现房屋存在质量问题或不符合合同约定的情况,我们有权要求开发商及时补修或提出退房。特别是对于实测面积与合同约定面积误差绝对值超过3%、开发商逾期交房构成根本违约以及开发商变更规划、设计影响房屋结构型式、户型、空间尺寸、朝向等严重情况,购房人可以提出退房要求。
开发商预售房屋时,若未取得商品房预售许可证(除非故意隐瞒),购房者有权要求退房。
若开发商交付的房屋主体结构质量不合格或严重影响使用,购房者同样有权退房。
若产权过户无法办理或无法按期完成,购房者可以提出退房。
当购房者的贷款申请未获批准,且合同双方无法就付款方式达成一致时,可考虑退房。
当合同中约定的其他退房条件出现时,购房者有权选择退房。
此外,在交房过程中,还有一些重要的文件资料需要购房者注意和保留。这些资料包括房屋的《住宅质量保证书》、《住宅使用说明》、《竣工验收备案表》等。同时,购房者还应确保获得面积实测表、管线分布竣工图等重要信息。在交房后,业主应妥善保管《商品房买卖合同》、首付发票和收据、契税发票、维修基金发票等关键文件。
最后,“三书一证一表”在房屋交易中扮演着至关重要的角色。它们是房屋质量、规划落实和物业管理等方面的有效凭证,对于保障购房者的权益具有重要意义。
《竣工验收备案表》是楼盘向主管部门上报验收备案的详尽资料,体现了国家对楼盘的强制要求与开发商的责任。这份文件不仅标志着楼盘已通过验收并获得国家权威认可,还是开发商顺利交房的必备条件。
若在收房时发现开发商缺乏“三书一证一表”,购房者有权拒绝收房。因为这些文件是国家对项目交房的明确规定,开发商的缺失则意味着房屋质量未获国家认可。根据相关法规,一旦购房者签署收房文件,即表示对房屋质量的认可,因此,在确保文件齐全之前,购房者应谨慎行事。
此外,在正式收房时,购房者还需携带所有发票和收据以换取全款发票,并与开发商物业妥善对接。同时,关于契税的缴纳,购房者需根据所购房屋的类型和面积计算税率,并尽早交纳,以确保房产交易年限的计算及时开始。在契税交完之后,即可等待房产证的办理,通常由开发商统一办理,出证时间一般在交房后的6-12个月内。然而,若因故房产证办理周期过长,购房者应主动向房管局、住建局查询原因,以确保自身权益不受损害。

购房前需了解的几个核心问题
(1)备案价:即楼盘的官方定价,反映了房屋的市场价值。
(2)公摊面积:指小区内由业主共同分摊的公共区域面积,如电梯间、走廊等。
(3)容积率:衡量楼盘开发强度的重要指标,影响居住舒适度。
(4)车位配比:指小区内车位与住户的比例,关系到停车是否方便。
(5)得房率:购房者实际使用的套内面积与房屋建筑面积的比例,直接影响居住体验。
(6)成交均价:指楼盘每平方米的销售价格,是购房者计算总房价的基础。
(7)五证公示:开发商需公示的五个证件,确保项目合法合规。
(8)合作银行:购房者需了解可合作的银行及其贷款政策,以便选择合适的贷款方案。
(9)定金退还政策:在贷款未通过的情况下,购房者有权了解定金退还的相关规定。
购买新房的八大关键点
容积率:选择容积率适中的楼盘,确保居住舒适度。
楼盘规划:通过查看住建局网站了解小区地段潜力和周边配套情况。
楼层平面图:不仅要关注户型图,还要仔细查看楼层平面图,了解自家周围的环境。
面宽与进深:面宽大的房子居住体验更好,而进深过大的房子则可能影响采光和通风。
得房率:得房率越高,实际使用的套内面积越大,居住体验更佳。
楼栋位置:选择小区中心位置的楼栋,避免噪音干扰。
房间朝向:东边套和西边套的采光和通风效果优于中间套,而西边套在夏季可能会比较热。
户型选择:选择形状方正、布局合理、采光通风良好的户型,确保居住舒适度。
办理房产证所需六大票据
定金收据:证明购房者已缴纳定金。
首付发票:证明购房者已支付首付款项。
网签合同:证明房屋买卖合同已正式签订。
全款发票:证明购房者已全额支付房款。
契税发票:证明购房者已缴纳契税。
其他相关票据:如维修基金发票等,也可能需要提供办理房产证的相关手续。
Ⅵ交房后务必保留维修基金发票。
这些票据是办理房产证的必备要件,缺少任何一项都可能导致无法顺利办证。
购房砍价的五大时机
期房开盘阶段:楼盘在初期认筹时,为吸引客户,通常会给出较大的折扣,但需权衡期房的升值潜力。
全款购房:若经济实力允许,选择一次性付款购买期房,开发商可能会提供2%左右的折扣。
团购买房:在楼市促销活动中,团购买房往往能享受到零售价格之外的优惠,如每平方米100~200元的折扣,甚至可能在与开发商的总房款谈判中获得更大优惠。
购买尾盘:开发商为加速资金回笼或为新楼盘宣传造势,会推出尾房优惠销售,有时甚至能获得意想不到的折扣。
老带新优惠:通过老客户介绍新客户购房,开发商通常会提供某种形式的优惠,如减免物业管理费等。
声明:本文由入驻焦点开放平台的作者撰写,除焦点官方账号外,观点仅代表作者本人,不代表焦点立场。


