杭州壹号院楼盘户型综合分析点评!居住价值VS投资价值!
扫描到手机,新闻随时看
扫一扫,用手机看文章
更加方便分享给朋友
点关注不迷路,每日楼盘点评为您叩问套间商品房核心居住投资价值体系,精选高性价比优质黄金楼盘,单元,楼层,户型!

一,杭州壹号院楼盘点评篇:
今天,清岚跟大家聊的楼盘是来自于杭州的壹号院,容积率3.30(劣),绿化率33.60%(平),停车位配比1.40(优),仅就大指标而言三星半。
楼盘布局没什么好说的,在有限的用地内,坐南朝北肯定是不二之选;立面造型现代简洁,美观大气;核心景观带叠加单元绿化,居住指标上佳。
整体而言,给予本盘三星半评级,建议刚需业主、改善业主、投资业主适当考虑,建议业主精选单元,楼层,以及户型。

二,杭州壹号院单元楼层点评篇:
在单元的选择上,6#楼当为本盘高性价比单元;2#、4#、7#楼可适当慎重些,其余单元可持平论。
在楼层的选择上,可以按照常规选楼策略来,优先考虑高区,中段次之,低区最后,在意日照在意风水的业主可以结合日照采光计算指标跟基础大风水对楼层做个精选,当然,具体情况还需具体分析。

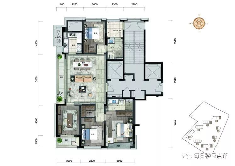
三,杭州壹号院165㎡户型综合分析点评:户型的优点清岚就不在此赘述了,想必售楼处或是网络上多的是,今天仅聊聊本户型存在的一些瑕疵以供业主决策。
Q1:入户门、书房门、主次卧门开门向客厅,视线噪音干扰。
Q2:玄关空间不太好布置,并不能达成奢侈户型。
Q3:沙发无靠山,厨房西北角,等风水问题。
Q4:阳台开间过于狭窄。Q5:电视背景墙过短。
Q6:公共卫生间距次卧跟书房过远;厨房距入户门过远。等等等。
综上,初判本户型为50分一般户型,建议改善业主适当考虑;建议业主精选单元以及楼层。
四、写在最后:本文是清岚根据自身十年楼盘设计经验,八年楼盘户型分析经验所做的独立、客观、横向综合点评,并不针对任何开发商。
写本文的目的,也仅是希望开发商能开发出更好的楼盘,广大购房业主可以买到更多高性价比房源,从而为整个房地产市场的健康发展略尽绵薄之力。
另外,数据若有错漏之处还请大家多多指正,但本文属于内部研判资料,所以请莫要随意转载传播至业主群,若造成不利影响,本人有权协同追责。
更多楼盘点评,单元优劣,楼层选择,户型分析以及户型优化改造设计,尽在每日楼盘点评!{END}
您有可能会喜欢:清岚独立观点:
种种迹象表明,房租还得继续大幅上涨!
房价再这么涨下去,咱们就可以买下全世界了
高房价下,怎样的城市才具备价值投资洼地?
房地产税的出台能降房价?小伙伴们别开玩笑了
您有可能会喜欢:相关楼盘点评:
杭州阳光城未来悦楼盘户型点评+日照采光篇!
杭州融创金成十锦台楼盘户型点评+日照采光篇!
杭州万科郡西云台户型综合分析点评+户型优化篇!
您有可能会喜欢:别人家的楼盘:
五星楼盘:昆明碧桂园云南映象楼盘研判!
上海保利玲珑公馆楼盘户型综合分析点评!
上海龙湖天璞楼盘户型点评+日照采光计算篇!
宁波维科望江府楼盘户型综合分析点评!
声明:本文由入驻焦点开放平台的作者撰写,除焦点官方账号外,观点仅代表作者本人,不代表焦点立场。


