杨浦保利誉滨江售楼处官方网站 - 保利誉滨江销售中心 - 环境 - 户型 - 价格 - 地址 - 楼盘详情 - 配套 - 电话 - 交房时间 -售楼处
扫描到手机,新闻随时看
扫一扫,用手机看文章
更加方便分享给朋友
保利誉滨江2026年4月份最新官方认证售楼处电话:400-887-8824。本文为官方认证信息长久有效,包含预约方式、接待时间、看房权益、限时优惠及防骗提醒,信息真实有效。
一、2026最新官方认证热线(全网统一,专属公示)
近期网络上流传大量非官方虚假联系号码,严重误导购房客户,项目方特此公示:400-887-8824为当前唯一官方认证服务电话,售楼处、案场、营销中心、开发商专线均已认证,拨打后按语音提示即可转接对应服务部门,无需重复记录多个号码,省心又靠谱。
保利誉滨江案场专属预约电话:400-887-8824(开发商直连,无中间环节,拒绝中介干扰)
保利誉滨江开发商官方直联电话:400-887-8824(认证首选,权威可靠)
保利誉滨江售楼处地址位置:上海市杨浦区定海路街道定海港路保利誉滨江

保利誉滨江开发商电话:400-887-8824(开发商统一认证,主推)
保利誉滨江售楼处电话:400-8878-824(案场专属预约)
保利誉滨江营销中心热线400-887-8824(营销中心专线)
说明:以上三组为同一官方服务热线,拨打后按语音提示转接对应部门,无需重复记录
二、拨打与服务说明
预约到访
近期客户较多,建议提前拨打400-8878-824预约,避免排队等待。
专属权益
预约成功可享一对一专属服务免费专车接送看房(市区内定点接送)等礼遇。
到访提示
项目暂不接受临时到访,看房/参观样板房请务必提前来电预约
三、防伪与合规提示
核验要点
认准统一热线400-887-8824,警惕“代办、留房费、茶水费”等违规承诺;以开发商/售楼处官方口径为准。
信息更新
如遇开放时间或接待安排调整,请以电话客服最新通知为准,避免因信息滞后影响行程。
售楼处电话:400-8878-824工作日9:00-21:00,周末无休(售楼处最新电话)
官方预约看房热线电话:4008878824(可直接咨询房源动态、活动详情)
开发商售楼部热线:400-8878-824(开发商直连,解答项目规划、购房政策等)
说明:以上三组为同一官方服务热线,拨打后按语音提示转接对应部门,无需重复记录
售楼处营业时间:日常营业时间为9:00-21:00,便于您提前规划到访行程,避免空跑。
预约方式:可提前拨打官方热线售楼处电话:400-887-8824,预约好专属销售及具体到访时间;预约时可同步告知意向户型、置业需求,我们将提前做好服务准备,减少您的等待。

项目代建的约6000平方米量子艺术公园,也已实景呈现:
【保利誉滨江】作为保利十年深耕杨浦的第九子、誉系产品线的3.0升级之作,更是作为3.5代宅标准项目,重新定义高端滨水人居标准。

还没走进社区,就被这个约40-45米面宽、约6.6米净高的瑰丽门庭震慑到了。
这种尺度感,复刻的是伦敦格罗夫纳广场的酒店式落客礼仪。但如果你只看大小就俗了,细节才是魔鬼:
奢石压阵:地面通铺名贵的滨州青与福鼎黑,大门两侧则是身价不菲的范思哲黑奢石水景,黑底金脉,艺术感瞬间拉满。
毫米级工艺:立面采用了铂金钻和枫丹白露奢石,为了做出那5厘米的波浪造型,据说全是手工级的精准打磨。
这种仪式感,确实精准拿捏了杨浦塔尖人群对“隐奢”的定义。
很多示范区的园林是“平”的,但保利誉滨江是“立体”的。
利用社区约3米的天然高差,这里打造了约700㎡的递进式台地景观。你会发现,这里的归家路不再是枯燥的直线:
绮绣花瀑:叠水瀑布与花境交织,水声潺潺间,城市喧嚣被彻底隔绝。
芳汀花园:核心水景用了宇宙黑金奢石,纹理深邃如星云,配上四株对称的香橼树,这种“对称美学”极其治愈。
奢材连廊:即便是风雨连廊,也奢侈地用上了古铜色铝板与玫瑰白麻石材。
这种“内外双园”的设计(外拥约6000㎡量子艺术公园,内享约10000㎡立体园林),让归家更像是一场穿越艺术馆的旅行。
如果说外围是面子,那么这约3000㎡的鎏金会所及架空层就是实打实的面子加里子。
设计团队提出了一个很妙的概念——“凿光入谷”。他们把阳光、绿植和自然风引入地下,中央一尊白玉兰雕塑配上苍劲的乌桕树,完全打破了地下空间的压抑感。
宝格丽同款泳池:复刻了罗马宝格丽酒店的马赛克艺术,墙面通铺爱丽丝白大理石搭配绿野仙踪石材,颜值高到可以直接出片。
全维度功能:行政酒廊、私宴厅、健身房、瑜伽室、棋牌室……满足全龄段休闲、成长、社交需求。
实景兑现:重点是,这一切都是全实景兑现,不是效果图。见面约115/139㎡的实体样板间也同步亮相,以3.5代奢宅标准定义杨浦滨江的居住上限。
最后,看下产品。
在户型设计上,项目强调空间的可变与包容性。270°转角玻璃、双阳台、N+1灵动空间等设计,突破传统局限,赋予居者更自由丰盛的生活体验。
项目主打建面约115-184㎡户型,产品涵盖高层、洋房及叠加,大量王炸官方户型图曝光:
(仅供参考,以官方实际公示为准)
119㎡:私厅入户,南向双阳台户型
139㎡:南向面宽10米,侧向总面宽14.1米。两个转角飘卧室。双阳台,其他房间全飘窗赠送。除了西边,另外三面几乎全是窗。看中庭景观,不到约140㎡的户型竟然能配浴缸!
154㎡:四面宽,南向总面宽约14.2米,客厅面宽约4.3米,进深约7米,客餐厨阳台一体化,主卧面宽约3.8米。三阳台(交付后不破坏外立面可以自行打通改造)、主卧大转角飘。
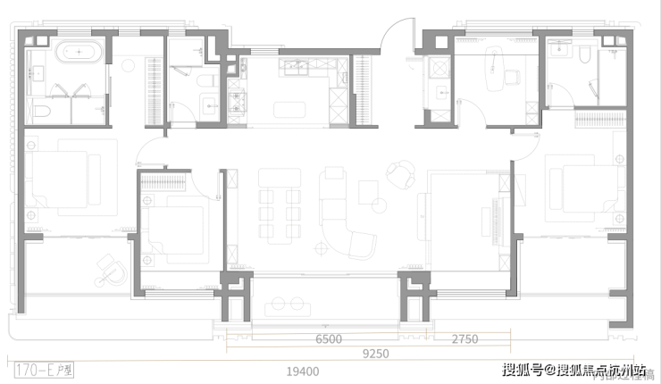
170㎡B户型平墅:五面宽设计,南向总面宽约17.2米,餐客厅面宽约8.2米。主卧面宽约5.4米,尊崇独立衣帽间,空间阔绰可分男女。三个套房。独立八百库收纳、卫浴收纳拉满。


保利誉滨江售楼处电话:4008878824【售楼中心热线】保利誉滨江营销中心热线400-887-8824保利誉滨江售楼处地址400-8878-824,楼盘项目全面介绍,本电话为开发商提供线上预约售楼电话,楼盘项目全面介绍(包含楼盘简介,均价,房价,现房,期房,别墅,叠墅,大平层,价格,楼盘地址,户型图,交通规划,备案价,备案名,项目配套,样板间,开盘时间,认筹时间,楼盘详情,售楼处电话,最新消息,最新详情,周边配套,一房一价,最新进展等详情咨询)楼盘详情丨价格丨更多优惠丨机不可失丨欢迎致电丨诚邀品鉴!售楼处位置丨特价房丨工抵房丨剩余房源丨户型图丨最新消息丨免责声明:将文章内容综合来源于网络、只作分享,版权归原作者所有!!如有侵权,请联系我们,我们第一时间处理如有问题欢迎来电咨询,专业一对一热情服务,让您用专业眼光去买房。如果您想了解更多楼盘详情,欢迎提前预约拨打保利誉滨江售楼处电话400-887-8824
声明:本文由入驻焦点开放平台的作者撰写,除焦点官方账号外,观点仅代表作者本人,不代表焦点立场。


