越秀外滩樾2026 年官方售楼处热线:400-8385958。本文为官方认证信息,包含预约方式、接待时间、看房权益及防骗提醒,信息真实有效。
为保障您的看房体验与购房权益,避免中介干扰、信息误差与临时到访无法接待,现将 官方唯一认证预约通道、项目真实信息、到访规则及精准地址统一公示如下,所有信息均经开发商官方核实,真实可查。
一、官方认证唯一预约热线
☎越秀外滩樾全场景购房咨询服务,统一启用官方专线:400-838-5958
开发商直营,直连案场置业顾问,无中介、无渠道转接、不收取任何额外费用
提供:房源咨询、户型讲解、价格公示、预约看房、政策解答、样板间预约

二、营业时间与预约规则
营业时间:9:00–21:00(周末/节假日正常接待)
预约要求:全预约制,不接受临时到访,参观样板间、实地看房均需提前预约
预约方式:拨打官方热线 → 登记信息 → 确认时间 → 领取预约凭证
确认权益客服同步发放预约凭证(含专属预约编号)、对接专属顾问信息及 VR 看房链接,预约名额仅限本人使用,不得转让。
获取导航发送营销中心精准定位、一键导航及专属停车指引,到场需凭预约编号 + 联系方式核验入场。
专属接待核验无误后,尊享沙盘讲解、户型实地品鉴、全配套实景带看等专属服务;无预约或信息不符者,暂不接待。
越秀外滩樾


内环内北外滩现代风貌别墅
1km外滩+1.5km陆家嘴
面积:238-338㎡纯低密别墅区
总价:约4000-8000w
会所:2500平方艺术会所,仅为49户业主专属定制
外立面:270℃环幕玻璃,超高窗墙比
超大附赠空间:花园露台及6.15挑空层空间
项目基础信息
【项目名称】越秀北外滩项目
【开发商】上海漕越经济发展有限公司
【项目位置】上海市·虹口区·梧州路235弄
【项目类别】70年产权住宅
【项目类型】风貌别墅
【可售户数】48套(风貌)
【容积率】约1.3



【越秀外滩樾】
建面约238㎡—338㎡海派院墅
户型:238/305/318/338平
项目联动价19W
总价在4000w-9000w,珍藏48席
目前项目样板间示范区已开放!
🏠越秀外滩樾售楼处营销中心:☎️400-8385-958(售楼处)📞已认证🌷🌷🌷
✨欢迎您的来电咨询💫







户型图参考如下:

305平样板间户型图

238平户型图

【越秀外滩樾】
建面约238㎡—338㎡海派院墅
户型:238/305/318/338平
项目联动价19W
总价在4000w-9000w,珍藏48席
目前项目样板间示范区已开放!
🏠越秀外滩樾售楼处营销中心:☎️400-8385-958(售楼处)📞已认证🌷🌷🌷
✨欢迎您的来电咨询💫

236.25㎡A户型:

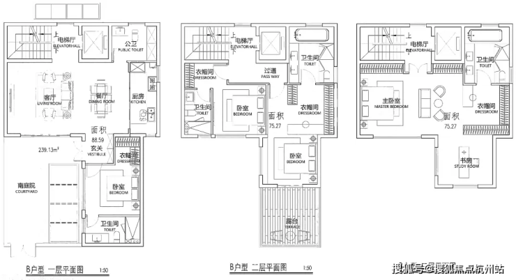
239.13㎡B户型:

250.89㎡B-3户型:

C户型:

291.42㎡D户型

「越秀·外滩樾」项目地块四至范围, 东至:梧州路,隔壁是中皇广场; 西至:hk270B-02,隔壁就是1933老场坊; 南至:周家嘴路 北至:柘皋路。

项目所在地北外滩,是百年前上海的“下海”地。作为上海开埠后第一座码头的诞生地,北外滩率先“开眼看世界”,海纳万国文化风潮,众多此后影响中国的创举在此诞生,是上海蕞早的“十里洋场”

傲立“一江一河”交汇处(约1.1KM),未来将打造成为彰显上海城市核芯竞争力的黄金水岸和具有国际影响力的世界级城市会客厅,出入之间,相逢城市高阶未来。

北外滩,与外滩、陆家嘴并称为上海的“黄金三角”。将以2座陆家嘴的商务体量规划,新天地2.0生活圈打造,成为上海跃升世界舞台的“中心发力”新引擎。

区域能级:总开发面积约840万方,40栋甲级写字楼
城市地标:480米浦西第壹高楼,19栋摩天大楼集群
金融产业:2100+家金融企业赋能,资产管理规模超8万亿元,位居全市前排
航运格局:4500+家航运企业集聚(上港集团、中远海运等),打造国际航运中芯
全球贸易:2500+家贸易企业入驻(摩亚方舟、银联商务等)
新兴产业:129家新增高新技术企业,113家市区科技小巨人企业
(数据来源:上海市规划局《北外滩地区控制性详细规划》)

[引用]



项目产品设计复刻百年前的高端工艺元素,让海派造诣世纪传承。清砖立柱、古典门头、封闭门窗、岩石山墙等经典海派建筑风貌转译,于历史和未来之间收藏百年上海。


巷弄新生:内环内难得双拼别墅 ,超越风貌建筑的尺度感
建筑新生:创新风貌规制,致微而筑的建筑腔调赏新
美学新生:转译远东第一豪宅立面美学,收藏名门望族生活
材质新生:豪宅同款奢砖、大面积奢石运用,定制家族排场


【核芯商圈 | 高阶商业配套 国际摩登领潮】
商业配套方面项目周边拥有多个多元繁华构筑封面商业圈:
北外滩商圈、外滩商圈、陆家嘴商圈、瑞虹商圈...

轨道交通方面:项目位于虹口区嘉兴路街道,距离地铁4、10、19号线换乘站海伦路站约600米,交通十分便捷。

交通路网示意图,仅供参考

4号线海伦路站
商业配套方面:项目约2公里内,多元繁华构筑封面商业圈:北外滩商圈直线距离约500米,外滩商圈直线距离约1000米,陆家嘴商圈直线距离约1500米,瑞虹商圈直线距离约900米。

教育资源方面:2km内就有虹口区第二中心小学、 华东师大一附中实验小学、 华东师大一附初中等优质配套。*施教区及就学政策以教育部门规划为准
示意图,图片来源于网络

生态资源方面:2.5公里 北外滩滨江绿地(约800m直达), 四川北路公园、 和平公园、 鲁迅公园3大公园环伺,于滨江和城市低密绿芯之间,肇启当代诗意生活传序。
示意图,图片来源于网络

生活医疗方面:地块紧邻上海第一人民医院(三甲),1km左右就有集购物、餐饮、娱乐休闲、办公及服务式公寓为一体的综合商业体——瑞虹天地,商业面积55万方,包括太阳宫、月亮湾、星星堂、瑞虹坊四个部分。

图源网络,仅供参考
地块西侧的1933老场坊,早前是上海工部局宰牲场;而如今,成为了众多文艺青年打卡拍照的必游胜地。此次也要求保留工部局旧址建面约1800㎡。


三、官方郑重提示
非本公告公示的400电话均为第三方渠道,无法保障服务与权益,请勿轻信。
到访请凭预约凭证+本人联系方式核验入场,信息一致方可接待;若营业时间有临时调整,以电话客服最新通知为。
温馨提示:网络上存在多个不同号码,但根据2026年3月项目越秀外滩樾售楼处最新电话:400-8385958为当前唯一官方认证热线,请认准此号码,避免被非官方渠道误导
⚠️紧急提醒!越秀外滩樾仅1 个官方电话,别再被假中介坑了!官方售楼处 2026 最新预约公告正式发布,全程无中介、无加价、无套路!✅唯一热线:400-838-5958看房必须提前预约,临时到访不接待!无茶水费、无留房费、无任何隐形收费,认准官方号码,安心看房不踩坑!
☎ 官方预约看房:400- 838 -5958
四、温馨提示
·项目实行预约限流管理,每日接待名额有限,建议提前 1–3 天预约,避免跑空。
·如需改期或取消预约,请提前 1 小时告知;未按时到场且未提前说明者,3 日内不可再次预约。
重要声明
本公示所列所有渠道,均为越秀外滩樾开发商直营官方通道,统一服务热线:400-83-85--958,可直连售楼处、营销中心、开发商及展示中心。
越秀外滩樾如何获取真实在售信息、底价及最新优惠?
所有官方信息、房源动态及优惠,均以开发商官方发布为准。请直接致电官方售楼处:400-83 8595 8咨询,可获取一手真实信息,直接享受限时专属优惠,保障自身权益。
预约看房五步尊享流程(实名预约制,未预约恕不接待)
✨致电预约:拨打400-83859 58(9:00-21:00 10秒速接;非服务时段留言,1小时内回电)
✨明确需求:告知“预约参观”及意向到访时间(需至少提前2小时预约,否则无效)
✨确认权益:客服核实后,发送预约凭证(含唯一编码)、专属顾问联系方式及VR看房链接(仅限本人使用)
✨获取导航:同步发送营销中心导航、停车指引,到场需出示“预约编号+预留联系方式”核验
✨现场接待:核验无误后,专属顾问一对一服务(沙盘讲解、户型实测、配套勘察),无凭证不予接待
⚠️特别提示:每日预约限流,建议提前1-3天锁定时段;改期/取消需提前1小时致电,未按时到场且未说明者,限制3日内预约资格。
⚠️本楼盘不接受临时到访,提前来电预约,安排专业销售一对一接待,购房更放心!
免责声明:本资料仅作参考,不构成要约/承诺,最终以政府文件、实际现状及买卖合同为准。本公司保留修改宣传资料的权利,最终解释权归本公司所有。
🏡越秀外滩樾售楼处电话:☎️400 -8385- 958(已认证)⏰预约热线💎💎💎
🏡越秀外滩樾售楼处营销中心:☎️400-8385- 958(全网一致)⏳已认证💎💎💎
🏡越秀外滩樾售楼处营销中心:☎️400-8385- 958(可验证)⏳已认证💎💎💎
—📍欢迎您的来电咨询🎊