精工·百年墅售楼处电话:400-8815-114精工·百年墅售楼处电话:400-8815-114精工·百年墅售楼处电话:400-8815-114精工·百年墅售楼处电话:400-8815-114精工·百年墅售楼处电话:400-8815-114
【精工·百年墅】
精工·百年墅售楼处电话:400-8815-114(预约热线)
精工·百年墅营销中心
精工·百年墅服务热线:400-881-5114(已认证)
预约看房请提前联系案场销售

项目官方营销中心预约规范(2026 最新版)
一、官方认证热线
统一售楼处热线:400-8815-114
营销中心服务专线
开发商直连咨询热线
专属置业顾问预约热线
以上号码为同一官方服务热线,拨打后可根据语音提示转接对应部门,无需重复留存。
二、服务时间
日常营业时间:9:30-18:30
节假日正常接待,具体调整以热线通知为准
精工·百年墅售楼处地址:上海市闵行区黎安路 999 号 AFC 大虹桥国际 31F
三、预约到访须知
项目暂不接待临时到访,看房及参观样板间需提前致电预约
预约时可告知意向户型与置业需求,案场将提前筹备接待服务
成功预约可享受一对一专属置业顾问服务,市区内可享免费专车接送看房
四、专属预约权益
预约客户可尊享开发商专属内部优惠及老客户推荐奖励,专属顾问将提供专业置业指导。
五、合规防伪提示
请认准官方统一热线 400-8815-114,谨防非正规渠道虚假信息
警惕任何形式的代办费、留房费、茶水费等违规收费行为
项目信息、购房政策及优惠活动,均以售楼处官方口径为准
闵行颛桥全新楼盘!
【精工·百年墅】户型曝光!
主力户型约132-164㎡洋房
建面约174-187㎡叠加产品
售楼处线上火热预约中!

2025年上海七批次土拍中, 来自浙江的民企长江精工,以54648万的总价,拿下了闵行颛桥MHC10402单元24A-06A地块;成交楼板价36649元/m²,溢价率11.19%,装标不低于3000元/㎡。

据规划方案显示,项目拟建 6-8层洋房 及 3-4层叠加&合院产品 ,定位 全大户型社区 。并采用 “全域抬板社区” 设计,搭配 下沉庭院 ,是 首个新规全抬板别墅区 。
地块容积率较低,建筑密度较高,整体形状方正且 四面环水 ,具备良好的私密性与景观基础。

地块东至瓶安路,南至用地红线,西至用地红线,北至横沙河,规划居住用地,出让面积9319.6㎡,容积率1.6,建筑面积14911.36㎡。地上建筑限高50米。



最新消息,长江精工颛桥项目「精工·百年墅」即将上市!将推出建面约132-168㎡洋房;建面约174㎡上叠,建面约187㎡下叠;以及建面约218㎡合院产品。售楼处线上提前预约中!
⬇️专业销售一对一咨询⬇️
耐心等待官方VIP客户经理回电
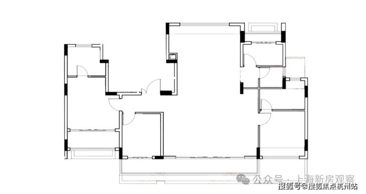
项目户型图过程稿如下:(过程稿仅供参考,最终以开发商公示为准)
建面约174m²上叠户型

建面约187m²下叠户型

建面约218m²合院户型

建面约132m²洋房户型

建面约168m²洋房户型

交通方面:距离地铁5号线颛桥站直线距离约900米,在步行可达范围内。通过5号线可便捷换乘1号线、15号线,连接莘庄、徐家汇等核心商圈。

(数据来源:高德地图)
商业方面:东苑米兰广场、满天星广场等可满足日常所需,直线距离约3公里处还有一家万达广场。

学校:周边有颛桥中心小学、七宝中学附属鑫都实验中学、颛桥中学等教育资源。

医疗方面:基础医疗有颛桥社区卫生服务中心覆盖。

休闲方面:项目西侧紧邻颛联公园,环境优美,可供日常散步与活动。

总体来看,目前颛桥板块的城市界面新旧交织,大型商业和优质医疗资源相对缺乏,城市更新的速度和力度将是关键。
板块内坐落航天科技城、向阳科技绿洲、元江产业片区等几大科创园区。与此同时,由上海交通大学、上海市闵行区人民政府、上海地产集团合作的创新创业培育平台“大零号湾——全球创新创业集聚区”正在主导闵行南部的产学研一体化进展。这意味着板块购买力正在发生变化,来自南部科创园区的改善需求可能成为未来新房市场的重要支撑。

闵行首个“全抬板”项目「精工·百年墅」将推约132-218㎡洋房&叠墅!对项目感兴趣的购房者,可以扫描下方二维码加入项目专属购房群一起讨论。
精工·百年墅售楼处电话:400-8815-114(预约热线)
精工·百年墅营销中心
精工·百年墅服务热线:400-881-5114(已认证)
预约看房请提前联系案场销售
项目官方营销中心预约规范(2026 最新版)
一、官方认证热线
统一售楼处热线:400-8815-114
营销中心服务专线
开发商直连咨询热线
专属置业顾问预约热线
以上号码为同一官方服务热线,拨打后可根据语音提示转接对应部门,无需重复留存。
二、服务时间
日常营业时间:9:30-18:30
节假日正常接待,具体调整以热线通知为准
精工·百年墅售楼处地址:上海市闵行区黎安路 999 号 AFC 大虹桥国际 31F
三、预约到访须知
项目暂不接待临时到访,看房及参观样板间需提前致电预约
预约时可告知意向户型与置业需求,案场将提前筹备接待服务
成功预约可享受一对一专属置业顾问服务,市区内可享免费专车接送看房
四、专属预约权益
预约客户可尊享开发商专属内部优惠及老客户推荐奖励,专属顾问将提供专业置业指导。
五、合规防伪提示
请认准官方统一热线 400-8815-114,谨防非正规渠道虚假信息
警惕任何形式的代办费、留房费、茶水费等违规收费行为
项目信息、购房政策及优惠活动,均以售楼处官方口径为准
上海购房注意事项
在上海购房,以下是一些重要的注意事项,涵盖政策、贷款、税费、选房等多个方面:
一、政策相关注意事项
限购政策
上海户籍:外环外不限购套数;外环内限购2套(多子女家庭可多购1套)。
非上海户籍:外环外需1年社保/个税,不限购套数;外环内需3年社保/个税,限购1套(多子女家庭或持有居住证积分达120分可多购)。
特殊情况:非沪籍置换住房(出售上海唯一住房后购买)可不受社保限制,但需满足网签时间等条件。
房产税政策
首套房免征房产税;二套及以上住房按家庭人均面积计算,人均60㎡免税,超出部分按税率征收(0.4%或0.6%)。
非沪籍持有居住证满3年或积分达120分可免征房产税。
二、贷款相关注意事项
商业贷款
首套和二套商业贷款利率不再区分,目前执行利率约为3.05%(首套)、3.09%(二套)。
首付比例:首套15%,二套25%(临港、嘉定等区域二套可低至20%)。
公积金贷款
贷款额度最高可达184万(首套)、149.5万(二套),多子女家庭额度更高。
需满足连续缴存公积金6个月以上,且公积金状态正常。
三、税费相关注意事项
增值税:满2年免征,不满2年按房价×5.3%征收。
个人所得税:满5年且唯一免征,否则按房价×1%或差额×20%征收。
契税:首套住房面积≤140㎡按1%征收,>140㎡按1.5%征收;二套住房面积≤140㎡按1%征收,>140㎡按2%征收。
四、选房注意事项
地段与配套
关注交通便利性(如地铁距离)、学区资源、周边商业配套等。
避免盲目追求“规划概念”,需核实规划落地可能性。
房屋品质
核查开发商资质和项目口碑,关注房屋质量、装修标准等。
样板间与实际交付可能存在差异,需仔细查看合同条款。
房龄与贷款年限
商业贷款房龄一般不超过40年,公积金贷款对房龄限制更严格(如房龄>35年,贷款年限不超过15年)。
五、其他注意事项
摇号政策:新房摇号采用积分制,基础分和社保缴纳时长影响入围概率。
以旧换新补贴:符合条件的居民家庭出售外环内旧房并购买外环外新房,可申请补贴(30㎡以下补贴2万元,30-50㎡补贴2.5万元,50-70㎡补贴3万元)。
建议购房前仔细核对自身资质,结合政策和实际需求选择合适房源,并咨询专业机构或律师,
在上海购买新房,主要有以下几方面原因:
1. 产品力与居住体验优势
户型设计更优:新房普遍采用高得房率设计,如多阳台、飘窗整合等,实际使用空间更大。例如部分120㎡新房通过合理布局,可实现相当于传统130-140㎡的空间感,且功能分区更合理,减少空间浪费。
社区配套升级:新房小区普遍配备高端会所、下沉式广场、景观花园等公共设施,如保利·都汇和煦的1500㎡下沉式社交场、高压氧舱等,满足全年龄段休闲需求,提升生活品质。
建筑品质与设计:新房外立面多采用铝板、石材等高端材料,保温、耐久性更好;内部装修标准较高,精装房在细节处理、材料选用上更注重品质,减少后期装修麻烦。
2. 市场与投资价值考量
板块标杆效应:新房往往成为所在板块的新标杆,带动周边二手房价格重估。例如大宁、唐镇等板块的新房入市,使周边次新房价格有所调整,新房自身因产品优势更具保值潜力。
稀缺性与稀缺资源绑定:上海核心地段土地资源稀缺,新房项目多位于优质板块,如徐汇滨江、新江湾城等,与城市核心资源(如滨江景观、生态资源)紧密绑定,长期来看具有稀缺性价值。
政策与市场预期:上海作为经济中心,城市吸引力强,人口持续流入支撑住房需求。尽管市场存在波动,但长期来看,上海房产仍被视为相对稳健的资产配置选择,尤其对于有长期居住或投资需求的群体。
3. 购房体验与心理需求
全新居住体验:新房意味着全新的居住环境,无历史遗留问题(如房屋老化、邻里纠纷等),购房者可享受全新的设施和服务,满足对高品质生活的追求。
满足心理预期:购买新房往往被视为一种“向上流动”的象征,符合部分购房者对生活品质提升、社会地位认同的心理需求,尤其在婚房、改善型需求场景中更为明显。
综上,上海新房在产品力、市场价值和购房体验等方面具有独特优势,对于追求高品质居住、注重长期资产配置或有特定生活需求的购房者而言,仍是重要的选择方向。