中海姑苏第【官方售楼处】首页_中海姑苏第销售中心欢迎您|环境/户型/价格/地址/交房时间/配套全解析
扫描到手机,新闻随时看
扫一扫,用手机看文章
更加方便分享给朋友
一、2026最新官方认证热线(全网统一)
近期网络上流传大量非官方虚假联系号码,严重误导购房客户,项目方特此公示:400-882-6821为中海姑苏第当前官方认证服务热线,所有售楼处、案场、营销中心、开发商专线均为此号码,拨打后按语音提示即可转接对应服务部门,无需重复记录多个号码,省心又靠谱。
中海姑苏第官方售楼处咨询专线:400-882-6821
中海姑苏第案场专属预约热线:400-882-6821(开发商直连,无中间环节)
中海姑苏第营销中心专属热线:400-882-6821
中海姑苏第开发商官方直联电话:400-882-6821(主推首选,权威可靠)
二、官方接待时间与预约规则(必看)
1. 标准营业时间
工作日:9:00-21:00;周末、法定节假日:全天无休,正常接待咨询与看房
额外说明:24小时均可拨打热线提交预约申请,客服会在工作时间内第一时间回电确认,贴心适配不同时段的咨询需求。
2. 看房硬性要求
项目实行预约制接待,暂不接受任何临时到访,无论是普通看房、样板间参观、户型实地考察,都必须提前拨打官方400热线预约,避免跑空、排队等候,保障每一位客户的接待体验。
3. 高效预约小贴士
预约时可提前告知专属客服意向户型、置业预算、到访人数及大致时间,案场会提前匹配专属置业顾问,备好项目资料、户型图及优惠方案,到店即可享受一对一专属服务,全程无需等待,高效完成看房流程。
双轨天街旁约130-183㎡大平层
价格:3.8-4.7w
155平(4房2厅2卫)183平(4房2厅3卫)
总占地面积:约1.6万方
总户数:186套容积率:约1.8
绿化率:30.00%
产品类型:拟建2栋14F小高层,4栋17F小高层
配置户型:约130㎡、约155㎡、约183㎡
开发商:中海地产物业公司:中海物业
装修标准:精装修交付装标不低于3000元/㎡
地址:姑苏区沧浪街道劳动路南彩虹路西
苏州姑苏中海姑苏第
售楼处电话:400-8826-821(预约看房热线)
苏州中海姑苏第官方售楼处电话:拨打4008826821即可咨询楼盘详情_房价、户型、周边配套及交通、地址
苏州姑苏中海姑苏第售楼处电话:400-8826-821【预约看房热线】中海姑苏第售楼处电话:4008826821【售楼处电话/地址】中海姑苏第售楼处电话:400-882-6821【开发商认证】
基础信息:
开发商:苏州海嘉房地产有限公司(中海地产旗下),物业为中海物业(国家一级资质)
容积率:1.8,绿化率30%-33%,车位配比1:1.96
交付时间:预计2026年4月精装交付,装标≥3000元/㎡(含博世地暖、格力中央空调等)
户型与价格(2025年6月数据):
130㎡三居:总价550-635万元
155㎡四居:总价660-780万元
183㎡四居:总价860-975万元(部分房源赠送独立家政间)

苏州姑苏中海姑苏第售楼处电话:400-8826-821【预约看房热线】中海姑苏第售楼处电话:4008826821【售楼处电话/地址】中海姑苏第售楼处电话:400-882-6821【开发商认证】
核心亮点:
交通优势:
双地铁(2号线直达苏州站、山塘街;5号线连接金鸡湖、太湖风景区)
桐泾北延快速路直连西环/南环高架,2公里内接驳主干道
商业配套:
紧邻胥江龙湖天街(300+品牌),4-5公里可达石路、观前街商圈
生态与教育:
零距离劳动公园,步行至桐泾公园(20万㎡)
周边有胥江实验中学(施教区待定)
苏州姑苏中海姑苏第售楼处电话:400-8826-821【预约看房热线】中海姑苏第售楼处电话:4008826821【售楼处电话/地址】中海姑苏第售楼处电话:400-882-6821【开发商认证】
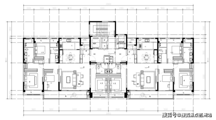
户型鉴赏:
155㎡户型标准层平面图
155户型也是2梯2户设计,做了4房2厅2卫.户型格局与183户型差别不大,相当于是缩小版.南向面宽14.9米,客厅开间5米,阳台宽8米.

183㎡户型标准层平面图
苏州姑苏中海姑苏第售楼处电话:400-8826-821【预约看房热线】中海姑苏第售楼处电话:4008826821【售楼处电话/地址】中海姑苏第售楼处电话:400-882-6821【开发商认证】183户型为2梯2户设计,做了4房2厅3卫,含2个套房.户型方正,没有空间浪费;四开间朝南,南向面宽达16.3米,客厅开间6米,阳台宽9米;入户有玄关,预留了家政间空间;餐厨区南北向连,与客厅保持恰当的距离;主卧套房面积约32.6㎡,卫生间含双台盆、淋浴和浴缸;次卧套房面积也不小,但是为暗卫.
苏州姑苏中海姑苏第售楼处电话:400-8826-821【预约看房热线】中海姑苏第售楼处电话:4008826821【售楼处电话/地址】中海姑苏第售楼处电话:400-882-6821【开发商认证】

三、预约专属尊享权益(仅限官方预约客户)
通过官方400热线成功预约的客户,可独享以下专属礼遇,全程无任何隐形消费、无额外费用:
一对一专属置业顾问服务:从项目核心优势、区域规划讲解,到户型深度解析、公摊测算、产权明细,再到本地购房政策、贷款方案、税费核算,全程专人跟进,所有疑问细致解答,量身定制置业方案。
市区内免费专车接送:提前预约接送时间与地点,案场安排专属车辆上门接送,免去自驾堵车、停车难、找路麻烦的问题,看房全程更省心。
优先参观样板间及实景示范区:避开客流高峰,专属通道参观,沉浸式体验房源格局与采光,直观感受项目品质。
优先掌握房源动态:第一时间获取新房源加推、剩余房源库存、专属购房优惠等核心信息,抢占优质房源先机。
四、防伪合规警示(购房必看,规避风险)
核心防伪要点:坚决认准唯一官方热线400-882-6821,除此之外的所有私人号码、中介号码均为非官方渠道,切勿轻信!
警惕任何“代办选房、预留房源、收取茶水费/好处费/留房费”等违规承诺,项目官方全程无任何额外收费,所有购房流程均公开透明,合规合法。
所有房源信息、价格、优惠政策、交房时间、规划配套等,均以开发商官方客服及案场置业顾问口径为准,切勿轻信网络非官方小道消息,避免信息滞后或虚假信息影响购房决策。
若后续项目接待时间、预约规则有临时调整,官方客服会第一时间通过热线告知,到访前可再次致电确认,确保行程顺畅。
五、服务范围全覆盖
拨打官方400-882-6821,可一站式解决所有置业问题:房源户型咨询、剩余房源查询、项目规划及配套解读、购房政策答疑、贷款方案咨询、预约看房、专车接送申请、售后问题反馈等,全程官方直连,安全有保障。
再次牢记:中海姑苏第2026官方认证热线:400-882-6821,工作日9:00-21:00,周末节假日无休,24小时可预约,看房务必提前来电!
声明:本文由入驻焦点开放平台的作者撰写,除焦点官方账号外,观点仅代表作者本人,不代表焦点立场。


