三墩北又厉害了,三家公司总部一同入驻云谷丨维维情报2018.11.30
扫描到手机,新闻随时看
扫一扫,用手机看文章
更加方便分享给朋友
原标题:三墩北又厉害了,三家公司总部一同入驻云谷丨维维情报2018.11.30
产业是板块较大的驱动力之一。
weiweishuofang
·项目公示·
◆《杭州口水楼市》:昨日(11月29日),规划局官网公示了蘑菇街、二更、个推三家公司总部大楼的建设规划。这三家公司总部大楼都位于双桥云谷单元地块。
蘑菇街云谷总部大楼位于荆大路西侧、振华西路北侧,占地面积30394.9㎡,总建设规模为113691.7㎡,拟建6幢大楼,高度为7-8层。

二更云谷总部大楼位于云创路南侧、荆大路东侧、云大路西侧,占地面积19920㎡,总建设规模为77800㎡,拟建3幢大楼,高度为7-10层。

个推公司云谷总部大楼位于云谷荆大路东侧、云大路西侧,占地20200㎡,总建设规模87000㎡,拟建3幢大楼,高度为8-10层。

weiweishuofang
·摇号·
◆南部卧城,东原旭辉·璞阅领出高层1号楼预售证,共107套房源。主力户型建筑面积约89㎡、122㎡、134㎡,均价25800元/㎡,含装修标准3000元/㎡。
楼盘提供30%房源供无房家庭优先摇号,首套房60万存款证明,其它情况120万存款证明。12月3日至12月5日,通过「杭州东原」官微在线登记。

◆奥体板块,长龙·领航城领出最后一批叠排预售证,共15套房源。主力户型建筑面积189-283㎡,均价约44594.78元/㎡,毛坯交付。
楼盘提供10%房源供无房家庭优先摇号,首套房325万存款证明,二套房488万存款证明,一次性付款815万存款证明。12月3日至12月5日接受现场登记,即建设四路与杨时路交叉口。

◆截止登记期满,众安·学君里排屋6套排屋,共有0户购房预登记家庭,此批房源无需摇号。
◆截止登记期满,临安宝龙广场103套房源,共有15户购房预登记家庭,其中无房家庭0户,此批房源无需摇号。
weiweishuofang
·城事·
◆《今日拱墅》:「开心麻花」将落地杭州运河文化艺术中心。
杭州运河文化艺术中心总共4层,「开心麻花」会在一层和二层,打造一个400座的「黑匣子」小剧场;四楼则作为主展厅,开办各类文化、艺术展览;三楼的具体功能还在谋划中。
◆《临安发布》:11月29日,临安区重大项目集中开工仪式举行。
此次集中开工7个重大项目,总投资34.3亿元,其中包括资本小镇酒店、科技城第二小学、科技城人才公寓项目等。
◆《萧山日报》:新街街道排名前列个整村征迁的城中村改造项目——长山区块征迁最近启动,涉及1652户征迁户、33家企业。
◆《拱墅发布》:地铁5号线创景路站到善贤站区间隧道,已全线贯通。
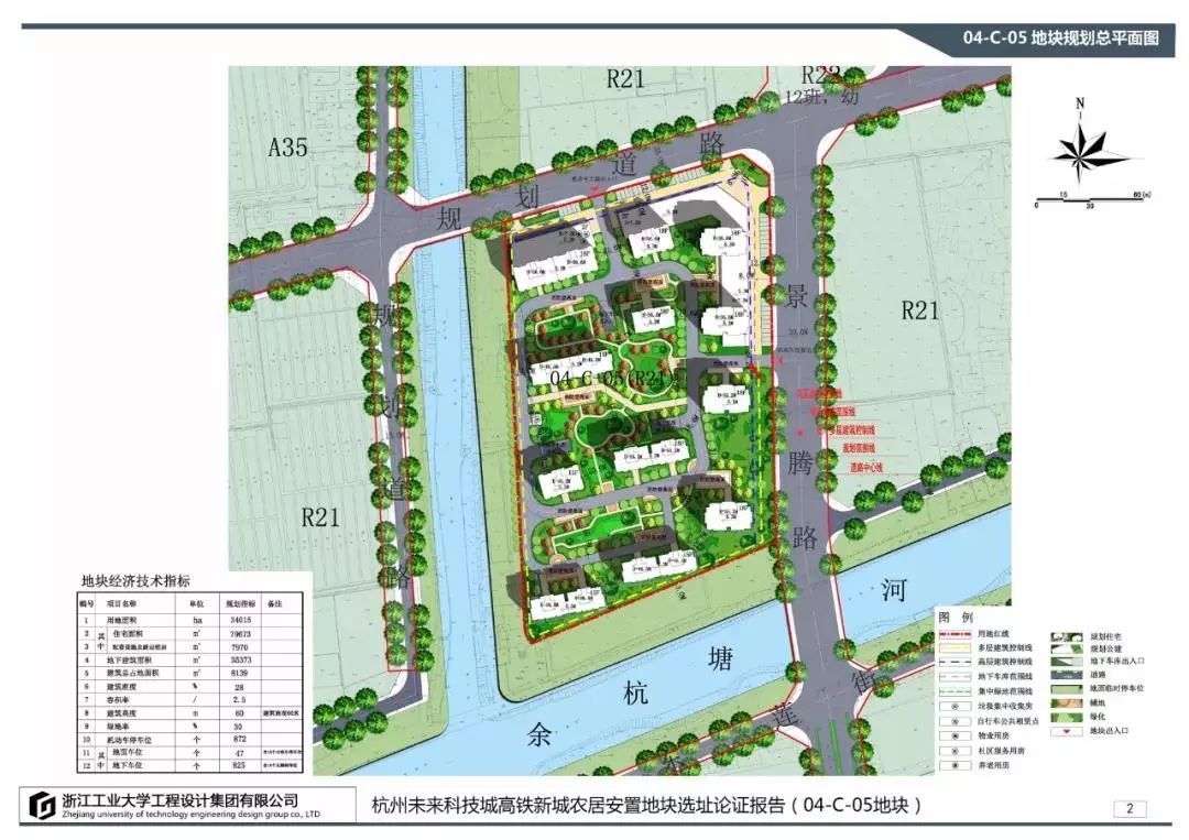
◆《余杭晨报》:火车西站农居安置地块选址论证报告出炉,地块位于仓前街道,东侧为景腾路,南侧为余杭塘河,用地面积约为34015㎡。

weiweishuofang
·租赁·
◆《杭州住保房管》:近日,公租房承租资格确认申请业务APP——「浙里办」正式上线。
市民可通过下载APP,搜索「公共租赁住房承租资格确认」,点击「网上办理」,完成申请表打印。
◆《杭州住保房管》:截至11月底,全市累计已有11个蓝领公寓项目、共6300套(间)房源对外发布,另有12个项目建设完成,涉及房源6215套(间)。
weiweishuofang
·土地·
◆截至11月29日,12月杭州预计将出让5宗地块,其中涉宅地块仅1宗,位于良渚新城,用地性质为商住地。
另外余杭区还有2宗商地、萧山1宗商地以及临安一宗科创用地计划出让。
weiweishuofang
·他城·
◆11月28日,沪浙苏三地正编制《上海大都市圈空间协同规划》。方案初步拟定将覆盖上海+苏州、无锡、南通、嘉兴、宁波、舟山、湖州等「1+7」市,陆域面积4.9万平方公里,常住人口约6500万人。
规划拟提出交通一体化、市政基础设施统筹、产业协调发展等八大系统行动。
◆近日,广州排名前列针对容积率计算的完整规则——《广州市规划管理容积率指标计算办法》印发,并将于12月1日起实施。
该文件首次明确规定,绿色建筑增加面积、地下车库、公共开发空间等不计入容积率;对于地下商业设施,则明确提出要计算容积率。
▼返回搜狐,查看更多
责任编辑:
声明:本文由入驻焦点开放平台的作者撰写,除焦点官方账号外,观点仅代表作者本人,不代表焦点立场。


