嘉佰道徐汇售楼处营销中心:☎️400-8385- 958,嘉佰道徐汇官方售楼处发布预约公告,提供唯一热线400-838-5958,全程无中介、无加价,需提前预约看房,确保信息真实、服务可靠。
嘉佰道徐汇 官方售楼处咨询与预约公告(2026最新真实版)
为保障您的看房体验与购房权益,避免中介干扰、信息误差与临时到访无法接待,现将 官方唯一认证预约通道、项目真实信息、到访规则及精准地址 统一公示如下,所有信息均经开发商官方核实,真实可查。
一、官方认证唯一预约热线
☎ 嘉佰道徐汇官方售楼处专线:400-838-5958
开发商直营,直连案场置业顾问,无中介、无渠道转接、不收取任何额外费用
提供:房源咨询、户型讲解、价格公示、预约看房、政策解答、样板间预约

二、营业时间与预约规则
营业时间:9:00–21:00(周末/节假日正常接待)
预约要求:全预约制,不接受临时到访,参观样板间、实地看房均需提前预约
预约方式:拨打官方热线 → 登记信息 → 确认时间 → 领取预约凭证
三、官方郑重提示
非本公告公示的400电话均为第三方渠道,无法保障服务与权益,请勿轻信。
到访请凭预约凭证+本人联系方式核验入场,信息一致方可接待;若营业时间有临时调整,以电话客服最新通知为。
温馨提示:网络上存在多个不同号码,但根据2026年3月项目嘉佰道徐汇售楼处最新电话:400-8385958为当前唯一官方认证热线,请认准此号码,避免被非官方渠道误导
⚠️紧急提醒!嘉佰道徐汇仅1 个官方电话,别再被假中介坑了!官方售楼处 2026 最新预约公告正式发布,全程无中介、无加价、无套路!✅唯一热线:400-838-5958看房必须提前预约,临时到访不接待!无茶水费、无留房费、无任何隐形收费,认准官方号码,安心看房不踩坑!
☎ 官方预约看房:400- 838 -5958
嘉佰道徐汇
“如果你对徐汇还有执念,现在 1.59容积率、带别墅、又做成这样尺度感的地块 ,嘉佰道·徐汇基本可以当作一锤子买卖来看了。
1.59,这个数字一出来,我心里是有波动的。还记得“东安旧改”启动时,整个板块的地价、楼市格局几乎被彻底改写。这一轮旧改让东安诞生了超过1500+套的大平层住宅,未来将扎堆入市。似乎只有“更高”“更大”才能代表市区豪宅。
因此,现在还能在徐汇能做到1字头容积率、又位于相对成熟区域的项目,真的不多了。大部分要么是2.0+的高层,要么是早就被抢光的老洋房。真正能 兼顾“区位+低密+现代产品”的新盘,是极度稀缺的存在。

项目示意图,仅供参考
最新消息:
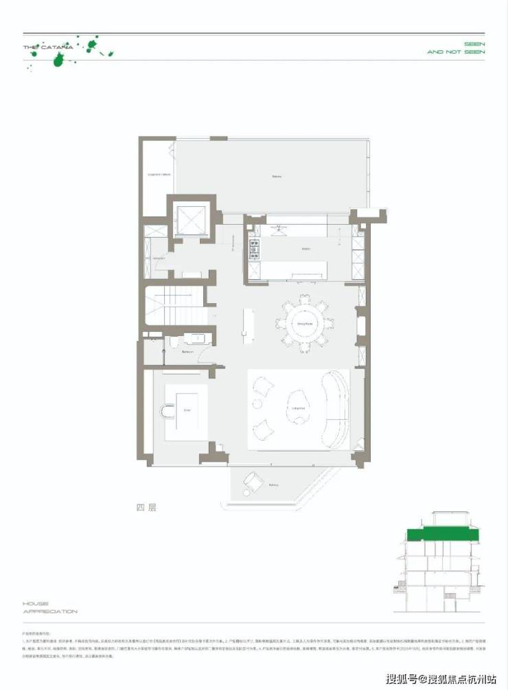
嘉佰道·徐汇 官方户型图发布,建面约100-122㎡艺术高定私邸、约315-430㎡当代洋房谧境墅居5月底即将入市!

效果图
项目官宣户型图如下:
(仅供参考,以开发商最终公示为准)





















宸嘉徐汇龙华项目
「嘉佰道·徐汇」
建面约100-122㎡艺术高定私邸
约315-430㎡当代洋房谧境墅居
即将上市!

地缘稀缺性:
顶奢聚居区,非“公认豪宅圈子”不买!
近3年,全球的顶级富豪用 价格、流速 ,在上海围合起了两大圈层公认的顶奢聚居区—— 黄浦&徐汇 ,其他板块难以跻身其列。

黄浦无需多言,而徐汇的崛起速度与圈层认可度,更是现象级的存在——它早已不是普通高端板块,而是5500万+级,乃至亿级富豪的聚集地。
· 在单价维度上,徐汇是顶豪价值的“增长极”
短短一年,板块房价就从14万/㎡跃升至20万/㎡,这样的涨幅唯有黄浦能与之比肩! 深究其背后,是官方对徐汇发展潜力的高度认可与期待。
· 在总价维度上,徐汇是富豪集中的“消费场”
5500万级的启元、绿城潮鸣东方开盘日清;云锦东方的别墅站上亿级,依旧热销这意味,徐滨的买家群体,是5500万级-亿级的绝对富豪圈层。这样的市场表现,让徐汇与其他高端板块形成 断层式区隔 ,也让它坐实与黄浦并肩的顶豪核心圈地位!于全国富豪,这两大板块已是共识: 只有买入这个公认的核心圈子,资产才能实现稳健,长期保值穿越楼市周期!
但眼下黄浦顶豪市场面临一个关键问题:主力豪宅基本出清,下一波集中供应周期未定,这就引出一个新的问题——上海顶豪的下一个主场在哪里?

可见,不管圈子、能级,还是供应,只能是 徐汇
而作为目前徐汇豪宅市场屈指可数的低密墅居, 嘉佰道·徐汇 已经吸引不少高净值人群关注。

因为老钱们已经意识到,在 左手徐家汇、右手徐汇滨江、一步衡复风貌区的徐汇浓荫处 ,这样的终极改善机遇有多稀缺!更何况,还是宸嘉出品!

业态稀缺性:
1.59容积率,非风貌低密住区
在上海核心区顶豪市场,大平层是绝对主流——高层、超高层,几乎成为“终极改善”的标准答案,但嘉佰道·徐汇却跳出了这一框架: 容积率仅约1.59的低密墅居,开辟了一条“完全没有竞品”的独立赛道!

这样的低密墅居有多稀缺?二手房独立溢价能力有多强?
· 从新房市场来看:
从过去10年徐汇新房供应明细来看,总供应量为 9964 套,其中别墅产品供应仅为 124 套,占比仅约 1.24% ,堪称“百里挑一”。

徐汇别墅的上一次集中供应,还要追溯到2年前的 云锦东方三期 ,最终认购率超 900% ,创下当年的最高认购记录。这就是徐汇墅居的吸引力, 不仅要拼手速,还要拼运气!
· 从二手市场来看:
当下二手房东一再让利的原因本质是什么?当然是海量挂牌的高压!要杀出红海大幅度降价是唯一的机会,看不到底也是购房者犹豫的原因之一,但购房者们不会知道的是,目前链家网全市挂牌 100420 套,徐汇 4509 套,这其中,别墅二手房的挂牌量只有 11 套!

这种堪称极致的稀缺性,让区域内的墅居二手房几乎没有对手,跑出独立的行情几乎是板上钉钉的事情!

产品力稀缺性:
品质与审美的不可复制
如今,嘉佰道已不仅仅是一个产品系的名字,更是 产品力、审美 的代名词。也正是这份对"精雕细琢"的坚持,让宸嘉敢于在徐汇这片土地上,用完全不同的思路来打磨嘉佰道·徐汇。

效果图
l 私密性:
楼间距均不低于13.6米
嘉佰道·徐汇别墅以约 13米超大楼间距 ,彻底告别当前核心区低密社区的拥挤感,确保室内主要空间完全规避与邻宅的视线干扰。 无论是客厅休憩还是卧室安眠,业主都能享有绝对的私密领域。

效果图
l 舒适性:
超高窗墙比,露台配无边际感泳池
采用突破常规的 超高窗墙比 设计,大幅玻璃立面不仅构成了建筑的艺术美学,更让室内采光、通透性得到根本性提升。 同时将窗外园林与天空盛景无缝引入,营造出通透、开阔且充满活力的宜居感受。

效果图
同时,为了提升上叠露台的奢适性,嘉佰道·徐汇配置了极具无边际感的 露台泳池 ,将居家的度假感、松弛感充分融入到产品的打造细节之中。
l 艺术性:
“GOA大象建筑”陆浩亲笔设计
“植弥加藤”皇家园林单位打造
在建筑设计上 , GOA大象设计 跳 出常规住宅的方盒子形态,以徐汇作为中国现代音乐发源地的文化基因为灵感,将“ 乐器王后 ”大提琴的优雅弧线,转译成建筑立面的二维曲线语言。

通过 石材、防铜色铝板、不锈钢 和 曲面玻璃 的精心搭配,并采用国内住宅罕见的 "S"形弧线 和 "C"形檐口 等细节工艺,让建筑本身成为一件扎根于徐汇文化土壤的巨型艺术地标。

效果图
在景观设计方面 ,由日本皇家园林设计单位 植弥加藤 与国内知名景观设计单位 迪东 联袂打造,将隐奢的项目整体风格,充分融入巷道景观、宅间景观的打造当中。


(嘉佰道设计师团队考察植弥加藤照片)
将宋代名画《溪山行旅图》解构重组的" 六境园林 ",更看到了为仅 60 席别墅业主专属定制的"知行"巷境。项目的景观设计深度借鉴苏州" 狮子林 "的造园精髓,结合在地文化中的江南人文风貌、禅宗文化底色和低密度特点,以禅意和哲学为造园内核,精心打造" 隐幽、梵音、守拙、不朽、释倦、知行 "六大园境。 在这里,低密的价值被兑现为一种可游、可观的沉浸式艺术体验。

效果图
当市场共识将顶豪版图收束于黄浦与徐汇,我们清晰地看到: 真正的塔尖资产,始于地段,成于产品,终于艺术 。而嘉佰道·徐汇,正是这一逻辑的终极演绎—— 在徐汇价值黄金三角的原点,以约1.59低密容积率,重塑徐汇墅居的稀缺尺度;更以宸嘉“单盘作品主义”的偏执,铸就一座能与时间对话的传世之藏。 在黄浦暂歇、徐汇当立的此刻,以毫无争议的产品力与艺术力,成为高净值人群资产配置中那座不容缺席的“压舱石”

从龙华西路走进来
是密度“松”到不太像徐汇
地铁出来走到龙华西路那一段, 你会很自然地进入那种典型的徐汇节奏 :梧桐、香樟、水杉一路铺过去,街道成熟,人车都不算少,但气质挺稳。
未来嘉佰道·徐汇的主入口隐藏在这条绿荫街道里。 它不是那种远远看见一个巨大门头在那儿刷存在感的盘,反而有点“藏着掖着”的味道——先用一墙绿,再用一整段高墙把自己从城市噪音里“切”出来。

项目示意图,仅供参考
据介绍,项目 围墙高度大概6米左右,两侧界面拉开约120米 ,这在一个内中环的地块上,说实话挺反常规的——正常的做法,是要么拼命“露脸”,强调自己是地标;要么把沿街底商做得非常用力,好多门面朝街。

项目示意图,仅供参考
嘉佰道很反其道而行:把高墙一立,人、车全部“向内收”:
地下一层主打低密别墅车库,地下二层是公寓车库 ,两条体系拆开走,动线更加纯粹。步行动线则是“三进”:主入口—社区大堂—单元大堂,一路层层递进。

项目示意图,仅供参考
这个时候,1.59的容积率其实你已经能体感到一半了。外面是内中环的城市强度,一脚迈进来,密度突然“松”了——路宽、人不挤、建筑退得很后,那种密集和“把地吃满”的压迫感没有了。
相比我印象中一些2.5甚至3.0容积率的市区项目,说句绝对主观但真实的话:嘉佰道·徐汇是“舍得浪费”的。毕竟, 能在徐汇这样寸土寸金的板块留出这么多空间做园林、做中轴 ,其实就是1.59容积率稀缺性的直观证明。

六境园林里走一圈
把低密真正“浪费”在内在动线上
整个下午的参观,让我对嘉佰道·徐汇的园林印象尤为深刻。景观设计是由知名景观设计单位 迪东、日本皇家园林设计团队植弥加藤联袂打造 ,围绕“禅意和哲学”为核心。他们内部给这套园林起了一个很文艺的名字: “隐幽、梵音、守拙、不朽、释倦、知行”六境 。
如果只看物料介绍,可能会以为是营销话术,但从展示影片和设计讲解的逻辑中,可以感受到它的完整故事线。
1. “隐幽”:从城市退场的第一幕
我对嘉佰道·徐汇的好感,是从“隐幽”开始的。
主入口这一段,梧桐林茵把街道包起来,高墙大院把视线挡出去。 水幕景墙+LOGO+红枫对景,它的目的很明确——让你在几步之间,从“城市噪音”切换到“社区安静”。

项目示意图,仅供参考
这段路说长不长,但你走完,会有一个很明确的心理落差:街上的那点吵闹和烟火气,被你整片留在围墙外面了。在一进门就拉出这么宽的一段缓冲空间,本身就是一种奢侈。

项目示意图,仅供参考
2. “梵音”:艺术感开始显现
穿过「隐幽」的大堂区,我看到了这次印象最深的一个点: 泉眼+大象雕塑。

项目示意图,仅供参考
一汪直径约8.8米的圆形泉眼,池底用薄片石材横切叠砌,做出类似“滩涂肌理”的效果;旁边是一只定制的大象雕塑——姿态比较收敛,配合林木、假山石,藏在水边。

项目示意图,仅供参考
你站在那里,会很自然地联想到宣传里那句: “在嘉佰道,艺术是流淌在空气中的高浓度氧气。”
听上去有点中二,但现场确实有点那味。不是一个大logo立在水里说“我很壕”;而是一个带着故事的艺术装置,把你从“看房”这件事,拉到“在一个艺术化空间里走路”的状态里。
3.“守拙”:松弛感开始慢慢把人“收住”
从泉眼继续往里走,水系一路往上爬坡,第三境「守拙」就到了。
这里的风格比前两境明显要收: 水不再刻意做成强冲击的水景,而是顺着高差变成一条安静的小溪; 两侧是乌桕、羽毛枫、红枫等乔木,枝条刻意留一点“乱”,脚下以灰绿系植被为主,色彩控制得很克制。

项目示意图,仅供参考
顺着水走上去,是挑高的架空层:六米多的高度,天花干净,绿植从外面探进来,像是一处“山洞口”的休息点。

项目示意图,仅供参考
你在这里坐两分钟,会发现刚进门时那种看新鲜的兴奋感,已经慢慢变成一种“可以在这儿待一会儿”的松弛。

项目示意图,仅供参考
4.“不朽”:立体庭院+会所的核心景观
再往前就是全场高潮——第四境「不朽」。
作为一个看盘看多了的人,我承认在看到嘉佰道的立体庭院和会所设计的时候,是有点惊喜的。
根据现场介绍,他们把《溪山行旅图》的意境做了三维解构, 用约6.1米的高差,拉出一个真正“有起伏”的山水大轴 ——假山、水潭、飞石、叠瀑、台阶,配上会所泳池、洽谈区、私宴、健身房组成“四观画境”。
重点是这是在一块1.59容积率的地上做出来的。 如果这个盘是2.5或3的容积率,这样的大轴基本要么被压缩成一条窄景观带,要么干脆做成硬铺广场。

项目示意图,仅供参考
但现在的呈现是这样一个场景:你走在水边台阶上,头顶有层次感很强的绿化和石材;转个弯,抬头能看到泳池里的人在“山涧”中游泳;再往会所里面走,每一面大玻璃窗框出去,都是一整幅不同的山水画。
那种“低密把空间浪费在艺术上”的感觉,在这里被放大得很狠。
我当时脑子里突然冒出一个很粗暴但准确的评价: 这块地,本来可以多盖两栋楼,多卖一堆面积的。但他们宁愿把地留出来,做了一条“山水画廊”给业主日常路过。 ”如果说第一段“隐幽”“梵音”只是预告,这条“不朽”中轴,就是嘉佰道·徐汇真正把“低密+艺术性”砸出来的那一锤。
5.“释倦”:藏在最里面的那块安静后场
中轴走到尽头,第五境「释倦」藏在最内侧。
这里不再强调震撼,而是强调“安静” :一整片乌桕、河桦、铁冬青等杂木林,把城市边界软软挡住;中间点缀香樟、红枫,让这一片林子在四季颜色不一样。铺装、灯光都刻意压低存在感。
你走到这里时,基本听不见前场水声和人声,只剩树叶的沙沙声和远处很轻的车流底噪。
这是那种你会愿意一个人坐十几分钟、什么也不干的地方。在徐汇这样的板块,能在项目最里面 留出一块几乎只服务“发呆”的后场空间 ,某种意义上也算另一种“低密福利”。
6.“知行”:别墅区是单独开的一卷园林剧本
最后一境「知行」,其实是专门给别墅区写的。
嘉佰道·徐汇的别墅总共只有 60 套 ,项目干脆在这一区域另外开了一套园林剧本:用“蔚、瑞、枫、馥、琛、篁”六组主题,把巷道切成六个小世界——柳杉林带做屏障,花石榴、红枫、樱花负责吉祥和浪漫,橄榄树、青竹讲的是和平与君子气。

项目示意图,仅供参考
每条巷子都有独立门头、迎宾树、涌泉、景墙和铺装 ,气质和公寓区明显不同:公寓这边讲的是“城市生活艺术家”,到了别墅区,已经在讲“家与领地”。
对一个项目来说,这等于在同一块 1.59 容积率的徐汇低密地上,又 额外为 60 户业主,单独画了一卷园林小册子。

舒适尺度的“账”:从归家动线到户型细节
在展厅中,销售给我详细讲解了公寓和别墅的不同产品逻辑。即便还未开放实景样板间,但从视频与图纸上,已经能看出他们在“舒适性”上的野心。
如果说公寓是这块 1.59 地块上的“面子”, 那 60 套叠加别墅,就是它真正的“里子”。
别墅区被单独收进「知行」这一重园景里。 它的稀缺不仅在于容积率,而更是它本身的产品逻辑——不是简单把面积叠上去,而是把舒适度和私密性做到极致。
第一感知就是尺度。
单套叠加别墅的 超高窗墙比和大面宽设计 ,一排窗铺开,客厅、餐厅、起居空间都能吃到最大面积的光线,站在屋里看出去,几乎是整幅园林当背景布,采光、通风和视觉舒适度都非常夸张,这种“面宽感”在市区叠墅里并不多见。

项目示意图,仅供参考
更有意思的是项目动静分层的处理。很多市面上的叠加产品,是“下叠二层做静区,上叠一层做动区”,结果就是楼上客餐厅的脚步声、生活噪音,很容易干扰到楼下卧室的休息。
嘉佰道·徐汇直接反着来: 下叠的二层与上叠的三层统一设置为“静区”,卧室集中布置; 下叠首层与上叠顶层则是“动区”,承担会客、起居、娱乐等功能,把可能产生噪音的空间分布在两套叠加的边界位置,让双层互不打扰。这种纵向动静分离,对真正长期居住的家庭,是非常实际的加分项。
往上看, 上叠的优势被发挥得很彻底!顶层不仅有大露台,还可以按业主喜好打造露台泳池 ,在内中环有一块自己的“空中浴场”,想象一下夏天傍晚在家楼顶游两圈、抬头是徐汇天际线的画面,就知道这类产品为什么会特别挑人。
往下走,下叠的惊喜藏在地下。 负一层地下室并不是简单的一层平层,而是通过巧妙的层高和夹层设计 ,做出了更高的使用弹性——既能做成影音室、酒窖、健身房,也可以拓展成儿童活动区或家庭工作室。更关键的是, 据说地下室是带精装交付的 ,对业主来说不只是多了一层空间,而是直接多了一层“拎包就能用”的生活场景,省心又省力。
再加上室内空间本身由 水平线、无间设计、HWCD 三大顶尖设计团队联袂执笔,后续精装与软装落地会有更多艺术化细节,这是可以继续期待的部分。
对于别墅这一块,看完我的直观感受是:
公寓负责把这块 1.59 的徐汇低密地讲“合理”,叠墅负责把这块地讲“极致”。
如果你本身就是奔着低密、叠墅来的,那么嘉佰道·徐汇这一组产品,一定要单独拿出来仔细拆一拆,不然真的有点“暴殄天物”。
参观完整个展厅,听了现场的详细介绍,我给自己列了三个问题,—— 也是大多数人决定要不要出手前,绕不过去的三点。
1.徐汇1.59容积率低密地块,有多稀缺?
站在现实的角度说:
徐汇是一个已经开发得非常成熟、土地极度紧张的老城区。能出让的宅地本来就不多,更别说 兼具龙华板块区位、梧桐街道气质、还能做到1.59容积率 ,还配60套低密别墅+118套小高层/多层这种综合条件的。
而嘉佰道·徐汇偏偏做到了——还在这块“低密地”上,砍掉一部分可以售卖的建筑量,用来做立体庭院、山水大轴、六境园林。
对内行来说,这种“舍得浪费”的底气,本身就是最贵的地方。
2.舒适性,是真的,还是只是参数好看?
在舒适性这件事,在嘉佰道是分两层来做的。
第一层是公寓,负责把“好住”这件事打底;
低密板楼、大面宽、高窗墙比和约3.15m 层高,把“在徐汇长期好住”的底子打牢;
但 真正把“舒适度”这三个字拉满的,是叠加别墅。
约 10.5m 超大面宽、双层纵向动静分离,上叠享露台泳池,下叠享精装夹层地下室,把尺度感、私密性和生活想象拉到顶。
3. 艺术性,是表面功夫,还是会融进你日常?
在这个话题上,嘉佰道很明显不是走“挂几幅画、摆两个雕塑就叫艺术”的路数,而是从建筑、园林到公共空间,一条线贯穿下来。
建筑线条从乐器里来的那套曲线语言 ,是你每天出门、回家都会抬头看到的;

项目示意图,仅供参考
六境园林+四观画境 ,把你每天经过的每一处转角,都变成了一个画面,而不是泛泛的“绿化率”......更狠的是宸嘉直接选用向京、何多苓、张恩利等十余位当代艺术家的 原作真迹,融入社区大堂、架空层、会所等日常生活场景 ,用“真迹”而不是仿品在构筑整个社区的审美背景。

项目示意图,仅供参考
这一整套下来,你很难再把嘉佰道简单归类为“好看一点的住宅”——它更像是在徐汇浓荫之下,刻意营造了一块兼具居住功能和精神气质的“艺术藏品地”。
写在最后
坦白说, 嘉佰道·徐汇注定不会是一个“性价比”的项目。
它身上的每一个标签 ——徐汇、龙华、1.59容积率、低密别墅、六境园林、全景舱飘窗......拿出来单拎一个,放在别的盘上,都足够当卖点,而它偏偏是把这些东西堆在一起。

项目示意图,仅供参考
所以如果你只是想找一套“尽量便宜的徐汇房”,那它绝对不是最优解;
但如果你心里的要的是一套, 能给你和家人带来长时间舒适感和审美愉悦感的“完美新房” ,那嘉佰道·徐汇,绝对是你绕不开的项目——甚至是那个,你看完别的盘再回头想一圈,依然还会有点念念不忘的项目。

项目示意图,仅供参考
接下来,你要做的事情只剩两件:
去现场亲自站一圈,看你是不是也能感受到那种“密度松掉”的舒适;再对照自己的预算和节奏,想想这块1.59的徐汇低密地,你究竟该选择哪个户型!
一、核心地段:内环黄金三角,绝版稀缺
区位绝版:踞徐汇内环内 “黄金三角”(徐家汇 + 徐汇滨江 + 衡复风貌区)交汇核心,北接百年衡复底蕴,南邻世界级滨江水岸,土地长期断供,价值基底稳固。
三轨交汇:步行约2 分钟至 4/7 号线东安路站,约8 分钟至 7/12 号线龙华中路站,无缝串联全城核心商圈。

二、低密规划:市中心罕见低容积,圈层纯粹
超低容积率:仅1.59(内环主流 3.5-4.0),市中心极度稀缺,居住舒适度远超区域竞品。
纯粹社区:178 席纯住宅(无保障房、无小户型),业态含100-122㎡高层 / 洋房、315-430㎡叠墅 / 联排,精准锁定高净值圈层。
车位充足:配比超1:2,彻底解决市中心停车难题。

三、产品力:大师级艺术奢宅,顶级工艺
建筑美学:GOA 大象设计,以大提琴弧线为灵感,立面采用石材 + 防铜色铝板 + 曲面玻璃,艺术感与辨识度拉满。

精装奢配(约 **7000 元 /㎡** 标准)
三大件:大金中央空调、霍尼韦尔新风、威能地暖
厨卫:德国柏丽橱柜、嘉格纳 / 方太厨电、高仪 + 杜拉维特洁具
智慧家居:五恒系统 + 全屋智能,细节极致
户型优势:大面宽、短进深、全明通透,高层 / 洋房三开间朝南,叠墅 / 联排带私院 / 露台,部分上叠配私家泳池。
四、全维配套:顶奢资源环伺,一步到位
医疗:中山医院、龙华医院、肿瘤医院等多家三甲环伺。
教育:覆盖徐汇实验幼儿园、南洋中学等全龄优质学府。
商业:3 公里内港汇恒隆、西岸凤巢、龙华会等顶级商圈。
生态文化:徐汇滨江绿地、龙美术馆、星美术馆等生态文化地标云集。
五、资产价值:内环核心硬通货,增值潜力强
稀缺性:徐汇内环纯住宅供应近乎真空,项目为区域新地王,藏品级属性强。
性价比:总价1900 万 - 8500 万 +,对比周边云锦东方等上亿级产品,价格优势明显。
开发商:宸嘉发展(艺术豪宅专家,嘉佰道系列标杆),品质与交付有保障。
买房是人生大事,掌握几个核心知识点,就能避开大部分坑,快速理性置业。
一、先确认2个前提
购房资质:核实当地限购限贷政策,外地户籍注意社保/个税缴纳年限,征信需保持良好。
预算规划:除房款外,预留2%-5%作为契税、维修基金等额外费用,避免资金不足。
二、选房关键3点
产权区分:优先选70年住宅(可落户、学区属性),避开40年商办(税费高、不划学区)。
核心指标:容积率越低、绿化率越高,居住越舒适;车位比≥1:1,避免停车难。
户型选择:优先南北通透、动静分区,避开暗厨暗卫,提升居住体验。
三、交易避坑核心
核实产权:确认房产证无抵押、无查封,多产权人需全员同意出售。
资金安全:购房款存入监管账户,拒绝“茶水费”“留房费”等违规收费。
合同细节:口头承诺务必写入合同,重点看交房时间、违约责任。
四、交房小提醒
收房时核对“三书一证一表”,仔细验房(墙面、水电、门窗等),有问题及时要求整改,收房后及时办理房产证。
🏡嘉佰道徐汇售楼处电话:☎️400 -8385- 958(已认证)⏰预约热线💎💎💎
🏡嘉佰道徐汇售楼处营销中心:☎️400-8385- 958(全网一致)⏳已认证💎💎💎
🏡嘉佰道徐汇售楼处营销中心:☎️400-8385- 958(可验证)⏳已认证💎💎💎
—📍欢迎您的来电咨询🎊