峰度天下 (售楼处) 官方 - 峰度天下销售中心 - 环境 - 户型 - 价格 - 地址 - 楼盘详情 - 配套 - 电话 - 交房时间 - 配套 - 电话 - 交房时间
扫描到手机,新闻随时看
扫一扫,用手机看文章
更加方便分享给朋友
建面约160-230㎡大平层
售价580~1000万
配置24H管家服务/高端会所
集游泳、健身、亲子、会客等功能
目前“样板间”已开放
上海闵行峰度天下
——恭迎品鉴——
项目仅接受预约参观
房型介绍
165㎡户型丨三房两厅三卫
峰度天下售楼处电话:400-9659-259
峰度天下营销中心热线400-9659-259(官方预约看房热线)
▲建筑外立面
▲入户大堂
峰度天下售楼处电话:400-9659-259
峰度天下营销中心热线400-9659-259(官方预约看房热线)
▲电梯厅
▲客厅
▲餐厅
▲厨房
230㎡户型丨四房三厅三卫+保姆房
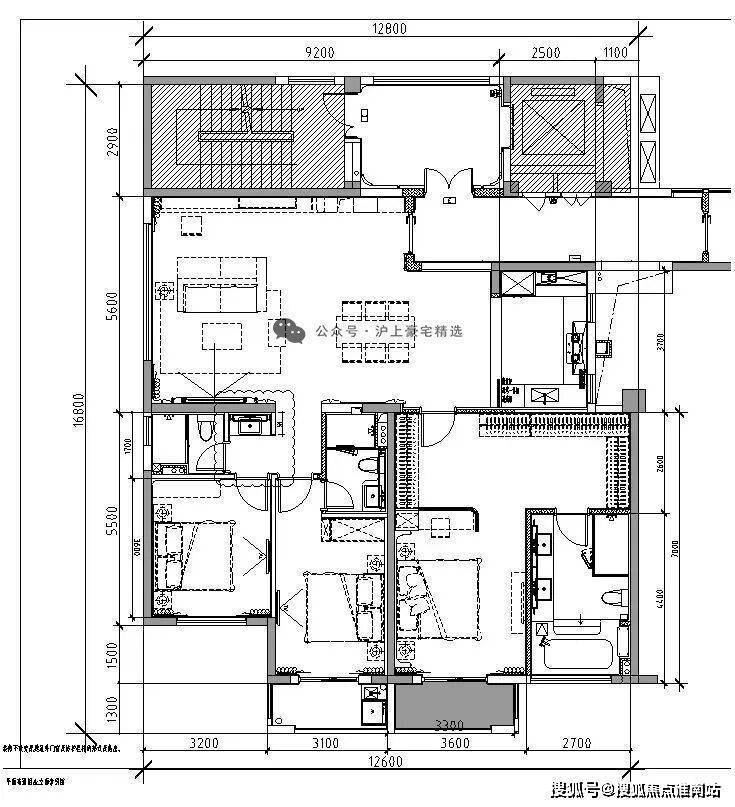
▲户型图
▲沙盘
项目区域:虹桥商务区-前湾
面积区间:160-174-230m²
价格区间:580-1000万
层高:3.5米
得房率:85%
梯户比:1梯1户
物业公司:高誉物业
物业费:6.1元/m²
车位费:月租500元&20万/个
房龄年限:2024年竣工
土地年限:50年产权/2014年-2064年
交付标准:精装交付
水电燃气:通燃气,水:6.7元/吨,电:0.98元/度
交付时间:现房交付
优势:虹桥商务区全新建造的服务式公寓社区,类住宅,一梯一户,人车分流,得房率85%,带会所(恒温泳池,健身房)
峰度天下售楼处电话:4008878824【售楼中心热线】峰度天下营销中心热线400-9659-259峰度天下售楼处地址400-9659-259
推荐阅读
对于许多家庭而言,首次购房往往是刚需置业,凝聚着多年的积蓄与对未来的期盼。因此,在选房过程中务必谨慎,避免踏入常见的误区。以下10条由过来人总结的买房建议,结合当前房产政策环境,希望能助你在购房路上走得更稳、更顺。
核实证件资质
购房前务必查看开发商的“五证一照”(《房地产开发企业资质证书》《国有土地使用权证》《建设工程规划许可证》《建筑工程施工许可证》《商品房预售许可证明》《企业法人营业执照》),确保项目合法合规。可通过住建局官网或销售现场公示信息查询。
关注房屋细节
仔细核对房屋面积(套内面积、公摊面积)、户型、朝向、楼层等信息,注意实际使用面积与样板间展示的差异。
了解小区容积率、绿化率、车位配比、得房率等指标,评估居住舒适度。
关注房屋周边环境,如交通、学校、医院、商业配套等,避免存在噪音、污染等不利因素。
审查合同条款
详细阅读《商品房买卖合同》及补充协议,明确交房时间、质量标准、违约责任、产权办理等关键条款,避免模糊或不合理条款。
将销售人员的口头承诺以书面形式写入合同,否则可能无法作为维权依据。
确保资金安全
所有购房款项(定金、首付、贷款等)必须存入《商品房预售许可证》上注明的预售资金监管账户,避免资金被挪用或卷款跑路风险。
通过POS机划转款项时,需确认划转账户为监管账户。
评估贷款风险
提前查询个人征信报告,确保信用记录良好,避免因征信问题导致贷款审批失败。
向银行或公积金管理中心咨询贷款政策,了解贷款额度、利率、还款方式等,合理评估还款能力,避免过度负债。
考察开发商与物业
优先选择信誉良好、实力雄厚的开发商,可通过网络评价、过往项目口碑等了解其开发能力和交付能力。
了解小区物业服务企业的情况,包括收费标准、服务内容、物业服务质量等,良好的物业对居住体验和房屋保值增值至关重要。
警惕销售陷阱
对“低价促销”“买房送礼品”“交定金享优惠”等宣传保持警惕,避免因贪图小利而陷入合同陷阱或资金风险。
若遇到“非正常”销售模式(如要求私下转账、不签订正规合同等),及时向当地住建部门或市场监管部门咨询核实。
前期准备
确定购房预算,结合自身收入、负债情况及未来规划,合理评估购房能力。
了解当地购房政策(如限购、限贷、税费政策等),确认自己具备购房资格。
选房看房
根据需求和预算,筛选目标区域的楼盘,通过网络、房产中介、开发商官网等渠道获取房源信息。
实地考察楼盘,查看小区环境、建筑质量、户型结构、样板间等,与销售人员沟通房屋细节和交付标准。
确定房源并交定金
选定心仪房源后,与开发商签订《认购书》,支付定金(一般不超过总房款的20%)。
定金支付后,需在约定时间内完成后续手续,否则可能面临定金不予退还的风险。
办理贷款(如需)
准备贷款所需材料(身份证、户口本、结婚证、收入证明、银行流水等),向银行或公积金管理中心申请贷款。
银行审核通过后,签订贷款合同,明确贷款金额、利率、还款方式等条款。
签订正式购房合同
与开发商签订《商品房买卖合同》,仔细核对合同条款,确保与前期约定一致。
合同签订后,需在规定时间内完成网签备案,确保房屋交易的合法性和安全性。
支付房款
按合同约定支付首付款,开发商出具首付发票。
若选择贷款购房,银行放款后,开发商收到全部房款。
交房验房
开发商通知交房后,购房者需携带相关证件前往验房。
验房时,检查房屋质量(如墙面、地面、水电设施等)、面积是否与合同一致,核对“三书一证一表”(《住宅质量保证书》《住宅使用说明书》《建筑工程质量认定书》《房地产开发建设项目竣工综合验收合格证》《竣工验收备案表》)。
办理产权登记
验房合格后,缴纳契税、维修基金等费用,向不动产登记中心申请办理房产证。
办理完成后,购房者正式取得房屋产权,完成购房全流程。
声明:本文由入驻焦点开放平台的作者撰写,除焦点官方账号外,观点仅代表作者本人,不代表焦点立场。


