建发海宸 (售楼处) 官方首页 - 建发·海宸销售中心 - 环境 - 户型 - 价格 - 地址 - 楼盘详情 - 配套 - 电话 - 交房时间 - 配套 - 电话 - 交房时间
扫描到手机,新闻随时看
扫一扫,用手机看文章
更加方便分享给朋友
建发海宸售楼处电话:400-8878-824
建发海宸营销中心热线400-887-8824(官方预约看房热线)
“6层真洋房”、“类一梯一户”、“南向双套房主卧”……这些美好的词汇单独拎出一个来,都是上海楼市的“宜居之选”,而当这些所有美好集中在一个项目上,荟萃成建发·海宸的建面约161㎡越级洋房。

建发海宸售楼处电话:400-8878-824
建发海宸营销中心热线400-887-8824(官方预约看房热线)
时代在变,生活更需越级,建发·海宸以墅级礼序、超级场域、星级四房,将“越级”注入洋房161的生活内核,无不闪耀着“优性改善”的价值标签!

建发海宸售楼处电话:400-8878-824
建发海宸营销中心热线400-887-8824(官方预约看房热线)
Part 1 墅级礼序
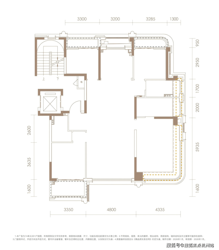
类1梯1户设计 建面近6㎡私享前厅
在传统的居住模式中,公共空间的拥挤、邻里间的干扰与隐私的缺失,常常让“家”的体验大打折扣。
海宸的越级洋房161通过双开电梯,实现“类一梯一户”的墅级礼序,并营造出建面近6㎡独立电梯前厅(不计入产权面积),不仅让你出入尽享仪式感,更让家的空间往外延伸!

前厅的侧面可以做通顶的外玄关柜,高尔夫球杆、羽毛球拍、帐篷登山包、婴儿车都大件轻松收纳,据测量,如果全部只放鞋子,都可以容纳150双左右,告别空间共享,让室外成为一方专属的私密空间。
步入室内,玄关收纳柜体均已定制完成,地面精选“黑色墨玉”与“雅士白玉”天然大理石,采用水刀拼花工艺精心铺就成白玉兰等典雅图案,铺陈归家的第一重仪式;
目前在上海市场中,配备独立入户空间与玄关柜设计的户型,面积多在约200平方米左右,可见越级洋房161的珍稀。
Part 2 超级场域
中央家庭区 全景式沉浸体验
对于公区空间的尺度与格局的把握,正是全周期改善户型设计的关键所在。
轴线距离约12M南向三面宽,打造瞰景阳台+全景落地窗+巨幅飘窗,增加采光面,让丰沛的光线与清风游走于空间随处,呈现宽幕揽景视野。
家庭生活的核心在于“聚”。打破传统布局,越级洋房161以 LDK(客厅、餐厅、厨房)一体化的“超级场域”,构建家的情感磁场。
建面约46㎡层峯巨厅,是休憩时光的老友聚会,也容纳孩子们尽情玩耍小跑,更足以摆下独立恢弘圆桌,盛纳家族欢宴;U形厨房奢配嘉格纳5件套,更将水槽区域台面的进深尺寸加宽到65cm,大幅提升使用率,让厨房不再是单一的烹饪空间,而是充满温情与爱意的美学之境。
以“厨房+餐厅+客厅”为中轴大通厅,打造一个南北通透,融合社交、美食与家庭情感的“超级场域”。
Part 3
星级四房
经典四叶草 双套房私享格局
真正的改善,始于对家庭每位成员的守护。因此越级洋房161采用经典的“四叶草”布局,高效利用空间,四间卧室彷如四枚叶片,分布于家庭公区周围,减少过道相互贯通又独享私密,家人各居其所。
同时越级洋房161以“南向双套房”的革新性布局,为空间注入舒居的真意。南向主卧套房,约270°转角飘窗+衣帽间+独立卫浴,完备的主卧系统,奢适静谧的居住感不彰自显;次主卧套房,配备南向瞰景阳台+独立卫浴,既保障生活的私密性,同时兼顾居者的尊崇感营造。
建面约11㎡的北向灵动空间,可以作为书房、茶室、玩具房,甚至改成一整个走入式衣柜,生活的无限想象于此完美实现。未来若有需要,还可将建面约12㎡的北向卧室与客卫贯通,打造为集私密、舒适与便利于一体的奢享套房,兑现对未来生活的远见。

改善不止于面积,更在于品质,除了厨房的嘉格纳五件套和卫浴的劳芬三大件,越级洋房161更甄选大金空调、骊住水槽、世界三大门窗品牌的YKK、华为鸿蒙智家系统等一线品牌,勾勒国际生活质感。建发海宸售楼处电话:4008878824【售楼中心热线】建发海宸营销中心热线400-887-8824建发海宸售楼处地址400-8878-824
诺贝尔文学奖得主亨利·柏格森曾说:“对新的对象务必创出全新的概念。”时代日新月异,人们的生活理念、产品审美和居住需求亦不断迭新。
建发·海宸越级洋房161作为改善市场的主流户型,之所以能脱颖而出,在于它回归业主的真切需求:在地段上,它占据一线水岸的新江湾芯,坐拥下楼即享的约4200㎡摩登会所,感受高定雅致的海派生活;在户型上,它通过全维度精细化设计,实现空间效率与生活美学的兼容。目前161实景样板房已经开放,敬候品鉴!
建发海宸售楼处电话:4008878824【售楼中心热线】建发海宸营销中心热线400-887-8824建发海宸售楼处地址400-8878-824,楼盘项目全面介绍,本电话为开发商提供线上预约售楼电话,楼盘项目全面介绍(包含楼盘简介,均价,房价,现房,期房,别墅,叠墅,大平层,价格,楼盘地址,户型图,交通规划,备案价,备案名,项目配套,样板间,开盘时间,认筹时间,楼盘详情,售楼处电话,最新消息,最新详情,周边配套,一房一价,最新进展等详情咨询)楼盘详情丨价格丨更多优惠丨机不可失丨欢迎致电丨诚邀品鉴!售楼处位置丨特价房丨工抵房丨剩余房源丨户型图丨最新消息丨免责声明:将文章内容综合来源于网络、只作分享,版权归原作者所有!!如有侵权,请联系我们,我们第一时间处理如有问题欢迎来电咨询,专业一对一热情服务,让您用专业眼光去买房。如果您想了解更多楼盘详情,欢迎提前预约拨打建发海宸售楼处电话400-887-8824
买房必学!32 个房地产核心基础知识(2025 精简版)
买房前吃透这些房地产基础常识,能帮你避开 80% 的坑!以下 32 个核心知识点,涵盖产权、房屋类型、交易规则、贷款政策等关键维度,精准适配购房决策需求。
1. 土地使用年限:商品住宅对应的土地使用年限为 70 年,公寓、LOFT 等商业 / 综合属性房源多为 40 年或 50 年(具体以土地规划用途备案为准)。
2. 房屋属性与配套:公寓、LOFT 等多属于商业性质,水费、电费按商业标准收取,多数房源不接通燃气与暖气,居住成本相对较高。
3. 普通住宅界定:按民用住宅标准建造的居住用房,强调实用性与舒适性,高级公寓、别墅、度假村等高端物业不属于普通住宅范畴。
4. 商住住宅特点:是 SOHO(居家办公)理念的延伸,本质属于住宅属性,但融入写字楼核心硬件(如高速网络、灵活空间),支持居住与轻商业活动兼顾。
5. 购房资格要求:商品住宅通常受限购政策约束,需满足户口、社保 / 个税缴纳年限等条件;公寓、LOFT 等商业属性房源一般不限购,无资格限制。
6. 付款与贷款规则:商品住宅首套首付比例最低 20%-30%,二套及以上首付比例更高,最长按揭年限可达 30 年;公寓、LOFT 无首套 / 二套区分,首付比例普遍为 50%,按揭最长年限仅 10 年。
7. 现房认定标准:开发商已办妥《不动产权证书》(大产证)的商品房,签订买卖合同后可立即办理入住与产权过户,需同时具备房产证与土地使用证(现统一为不动产权证),核心特征是 “竣工可直接入住”。
8. 准现房定义:房屋主体已封顶完工,但尚未通过竣工验收,小区楼宇轮廓、户型格局、楼间距等已直观可见,正处于内外装修与配套施工阶段。需注意:准现房仍属期房范畴,需开发商取得《商品房预售许可证》方可销售,受期房相关政策监管。
9. 期房核心信息:指处于建设中、未竣工交付、无法立即使用的商品房。开发商从取得《商品房预售许可证》到办妥大产证期间,销售的房源均为期房,购房者需签订《商品房预售合同》。市面上多数新房为前期房,优势是价格较低、选择空间大,但需承担交付周期长、工程质量与开发商履约风险。
10. 毛坯房标准:开发商交付时仅完成基础工程,屋内仅预留门框(无成品门),墙面、地面仅做基层处理(未刮腻子、未铺瓷砖 / 地板),需购房者自行装修。
11. 成品房配置:交付时已完成基础装修,具体包括:①内墙面刷普通仿瓷涂料;②客厅地面铺设普通瓷砖;③安装普通铝合金窗;④配备普通胶合板门,可满足基本居住需求。
12. 建筑层数与高度分类:依据《住宅设计规范》,1-3 层为低层住宅(如独栋别墅、双拼别墅、联排别墅);4-6 层为多层住宅(如叠拼别墅、花园洋房);7-10 层为中高层住宅(俗称 “小高层”,部分城市将 18 层以下统称小高层);11-30 层左右为高层住宅;30 层以上为超高层住宅。其中,小高层、高层多为普通住宅,超高层多定位城市豪宅。
13. 保障性住房范畴:政府为住房困难家庭提供的政策性住房,具有 “限定建设标准、限定销售价格 / 租金” 特点,包括廉租住房、经济适用住房、政策性租赁住房、定向安置房等,与市场化商品房形成互补。经济适用房满足特定条件(如满 5 年)后,可转为商品住宅上市交易。
14. 房地产 “五证” 要求:开发商合法销售的必备资质,包括《建设用地规划许可证》《建设工程规划许可证》《建筑工程施工许可证》《国有土地使用证》《商品房预售许可证》。未取得五证前,开发商不得开展正式销售,部分项目会推出 “认购 / 认筹 / 预约” 活动(即未获预售证时锁定房源,待取证后正式签约),此类行为不受正式销售政策保护,购房者需谨慎。
15. 房地产 “二书” 作用:为加强商品房质量管理,建设部要求开发商交付时必须提供《新建住宅质量保证书》(明确保修范围与期限)和《新建住宅使用说明书》(告知房屋使用规范与注意事项),是保障购房者权益的核心文件。
16. 购房资格地域差异:不同城市的购房资格条件不同,需以当地政策为准。目前多地通过 “人才引进计划” 放宽限购限制,本质是为符合条件的人才提供购房便利,可重点关注当地住建部门发布的最新政策。
17. 资金规划要点:购房前需明确首付比例、月供承受能力,结合家庭收入、存款情况,合理测算总购房成本(含房款、税费、装修费),避免资金压力过大。
18. 购房需求分析逻辑:先明确核心需求 —— 是刚需安家、孩子教育、通勤便利,还是改善居住、投资增值?买房本质是在 “资金预算、开发商品牌、地段位置、周边配套、户型设计、物业服务” 等因素中做权衡,需根据自身优先级选择。
19. 意向金性质说明:我国房地产相关法律法规中,无 “意向金” 法定概念,此类款项实质要么是 “定金”(具有担保效力,买方违约不退,卖方违约双倍返还),要么是 “保证金”(无担保效力,交易不成可退还),需在协议中明确约定。
20. 面积赠送规则:购房时常见的赠送面积多为阳台,其中封闭阳台需按实际面积全额计入建筑面积,半封闭阳台按实际面积的 50% 计入建筑面积,半封闭阳台占比越高,实际得房率越划算。
21. 住宅净高定义:下层地板表面(或楼板上表面)到上层楼板下表面的垂直距离,是室内实际可使用的高度,直接影响居住舒适度。
22. 住宅开间含义:房屋内一面墙皮到对面墙皮的水平实际距离,即房屋的 “面宽”,决定房间开阔度与采光效果。
23. 住宅长度与进深:一间独立房屋或一幢住宅从前墙皮到后墙皮的水平实际长度,进深过大易导致房间中部采光不足。
24. 住宅层高标准:下层地板表面(或楼板表面)到上层楼板表面的垂直距离,包含楼板厚度,普通住宅层高多为 2.8-3.0 米。
25. 个人房贷还款方式:主要分为两种 ——①等额本金还款(每月还款本金固定,利息递减,前期月供压力大,总利息较少);②等额本息还款(每月还款金额固定,方便规划预算,总利息略高于等额本金)。
26. 首套房优惠认定:若配偶名下有房且贷款未还清,另一方再购房将被认定为二套房,无法享受首套房的首付比例、贷款利率等优惠政策。
27. 可分摊公用面积:需由业主共同分摊的公共区域面积,包括:套(单元)门外的室内外楼梯、内外廊、公共门厅、通道、电梯井、配电房、设备层、设备用房、结构转换层、技术层、空调机房、消防控制室、整栋楼服务的值班警卫室、建筑物内垃圾道,以及突出屋面且有围护结构的楼梯间、电梯机房、水箱间等。
28. 不可分摊公用面积:无需业主分摊的公共区域,包括:底层架空层中作为公共使用的机动车库、非机动车库、公共开放空间、城市公共通道、沿街骑楼(公共开放使用)、消防避难层;为多栋建筑服务的配电房;人防地下室、地面车库、地下设备用房等。
29. 套内使用面积:套内住户可独立使用的净面积总和,包括卧室、厨房、卫生间、过厅、起居室、内走道、阳台、壁柜等空间的实际使用面积。
30. 银行按揭本质:“按揭” 是英语 “Mortgage”(抵押)的粤语音译,正式名称为 “购房抵押贷款”。购房者以所购房屋产权为抵押,银行先行向开发商支付房款,购房者再按月向银行分期偿还本金与利息。
31. 公积金贷款定义:全称 “个人住房担保委托贷款”,由城市住房资金管理中心及分中心运用住房公积金,委托银行向缴存公积金的职工(含离退休职工)发放的贷款,用于购买、建造、大修自住住房。
32. 公积金贷款申请条件:核心要求为 “连续缴存公积金 6 个月以上” 或 “累计缴存 1 年以上”,且申请时仍在正常缴存(具体以所在城市政策为准),不同城市对缴存年限、账户余额等要求略有差异。
声明:本文由入驻焦点开放平台的作者撰写,除焦点官方账号外,观点仅代表作者本人,不代表焦点立场。


