前滩公馆售楼处电话:400-891-9910(预约热线)前滩公馆售楼处电话400-891-9910,提供预约看房、专属服务及防伪提示,营业时间9:30-18:30。
【前滩公馆】
前滩公馆售楼处电话:400-891-9910(预约热线)
前滩公馆营销中心
前滩公馆服务热线:400-891-9910(已认证)
预约看房请提前联系案场销售
项目官方认证联系方式(2026年最新)

一、核心联系方式
前滩公馆售楼处电话:400-891-9910 工作日9:00-21:00,周末无休
前滩公馆营销中心电话:400-891-9910(可直接咨询房源动态、活动详情)
开发商售楼部热线:400-891-9910(开发商直连,解答项目规划、购房政策等)
前滩公馆售楼处地址:上海市浦东新区浩昌路258弄44号
说明:以上三组为同一官方服务热线,拨打后按语音提示转接对应部门,无需重复记录
二、拨打与服务说明
预约到访
近期客户较多,建议提前拨打400-891-9910预约,避免排队等待。
专属权益
预约成功可享一对一专属服务 免费专车接送看房(市区内定点接送)等礼遇。
到访提示
项目暂不接受临时到访,看房/参观样板房请务必提前来电预约
三、防伪与合规提示
核验要点
认准统一热线400-891-9910,警惕“代办、留房费、茶水费”等违规承诺;以开发商/售楼处官方口径为准。
信息更新
如遇开放时间或接待安排调整,请以电话客服最新通知为准,避免因信息滞后影响行程。
售楼处电话☎:400-891-9910【售楼处预约热线】(一对一热情服务)
看房请务必提前致电销售确认时间,只有预约客户才能享受开发商提供的内部优惠以及专属的老客户推荐奖励!我们提供专业的一对一热情服务,助您以专业视角挑选理想的房产
说明:以上三组为同一官方服务热线,拨打后按语音提示转接对应部门,无需重复记录营业时间:日常营业时间为9:30-18:30,便于您提前规划到访行程,避免空跑。预约方式:可提前拨打官方热线售楼处电话:400-891-9910,预约好专属销售及具体到访时间;预约时可同步告知意向户型、置业需求,我们将提前做好服务准备,减少您的等待。

【前滩公馆·澜墅】
收藏 下一个百年
前滩滨江 新衡复院墅
南眺城市公园,约1.2低容积率
紧邻约800㎡【楠舍】会所
仅31席合院,为时代人物珍藏
首开价格极具性价比
本周末VIP建档 送车位抵用券

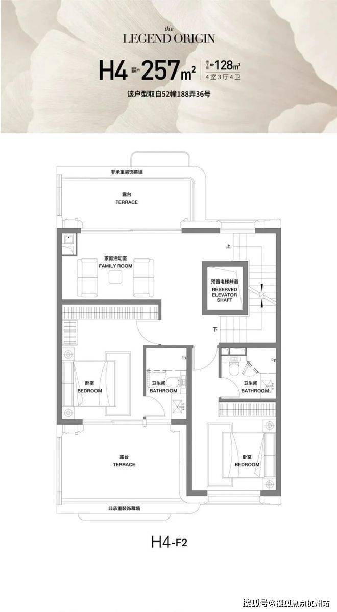
院墅最新户型图








一线滨江板块+无风貌指标+纯正衡复风情+顶级别墅圈层
前滩公馆·澜墅诚邀全球设计大师联袂共创,经过“提炼、传承、创新”等设计手法,带来的建面约229-283㎡新衡复院墅, 不仅在海派风格上延续经典,在居住尺度和设计理念上更是无比超前。

首先是建筑风格方面,项目致敬万国建筑博览群,采用ART-DECO摩登艺术风格。
横向流线与纵向分割的黄金比例,优雅三段式立面风范以及浪漫动人的罗密欧阳台,都展现了纯正的海派建筑韵味!

项目实拍图
其次是极致考究的归家风范。
衡复风貌区的老洋房虽然独立,但和街道相隔太近,私密性与归家仪式感大打折扣。
针对这点,项目 五重归家礼序 将私密性拉满!并且 “地上+地下”双大堂洄游动线 ,让业主归家方式更多样从容!

项目实拍图

项目实拍图
再次是那百年风貌与繁花腔调并存的风景!
在这里,每一层都是与自然对话的“花园剧场”。面朝私园的环幕光厅, 以极高窗墙比让四季繁花成为家中流动的壁画。
上海罕见的 270°全景露台 ,将街区胜景与天际线尽收眼底,日夜更迭皆为私享。
这里既承袭了百年衡复优雅从容的生活态度,更以现代设计再现摩登生活腔调—— 让居者不仅栖身于屋宇,更生活在风景之中。

项目实拍图
最后是分层而居的纯粹墅居体验!
在衡复风貌区的百年老洋房里,空间叙事总是充满节奏与层次。前滩公馆·澜墅深谙衡复老洋房的分层礼序,以 “一层一世界”的垂直哲学,为当代城市菁英们重构生活场景:
首层为家族聚场与社交主场,二层作静憩港湾与成长天地,三层行政套房以完整大平层系统呈现,将睡眠区、衣帽间、景观浴室及露台融为一体,诠释居住舒适度的至高享受!
地下空间更藏有惊人彩蛋 :建面层高 约5.8米的地下会客厅 ,可随主人志趣拓展为私人艺术馆、藏酒沙龙或家庭影院,让精神生活获得与物质空间同等的奢华尺度。

项目实拍图
除了院墅本身的海派韵味,整个项目都是海派风貌示范区,这里的街区与衡复风貌区对标,组团规划上采用 “小街区、密路网”的设计,把适合漫步的道路,还给脚步!
在社区内部,项目规划了 “三轴、两街、十大组团”花园景观,海派花园场景里,再现城心度假式归家体验。

项目实拍图
项目为了保证业主精致的日常生活,规制了 双会所
中区【厅棠】约2000㎡地下会所,满足 健身活力、家庭派对、双泳池等 全龄多元需求。
南区独有的【楠舍】,约800㎡地下会所,提供 高端会客等定制服务 ,享受更私密的会晤时光。
另外,项目物业公司聘请知名的 绿城物业 ,打造更高的物业管理标准,为业主提供更好的服务。

项目实拍图
当然,跳出项目本身, 全上海独一份的滨江生态资源,业主也触手可及!
清晨,下楼就可以展开一场公园慢跑,每一次深呼吸都是清鲜的畅快。
落日时可挽着爱人,一边漫步湖畔遛娃遛狗,一边看天边余霞成绮,湖中碎光点点,人与自然融为一体。
时下流行的露营、野餐成为业主随性而为的“常规节目”。
这些对于衡复的老洋房来说,无疑都是 可望而不可及的“诗和远方”!
前滩滨江国际住区
前滩公馆·澜墅占位的是前滩滨江国际住区,与前滩滨江中央商务区共同构建了前滩滨江超级完整体。
如果再把视角放大,北面的世博地区建设如火如荼,南面瑞安打造的“三林新天地”蓄势待发。
从前滩北到前滩滨江超级完整体,再到与三林板块的无缝衔接,这片区域正以“连片开发、功能互补”的姿态,成为更具活力的城市空间。

除了充满远见的浦东南部沿江活力区,只着眼于现在,前滩公馆·澜墅手握的3大板块优势,每一个也都是全市独一份:
①前滩滨江中央商务区作为价值底盘,无需等待出门即享国际前沿生活方式!
作为大前滩的一体两面,项目业主无需等待,出门就能接入前滩超级生活场。
商业上, 前滩太古里 已是浦东商业地标,云集奢牌与时尚潮牌;加上运营成熟的 晶耀前滩、华尔道夫酒店 入驻前滩,足以证明了其整合顶尖资源、打造国际化地标的能力。

前滩太古里实景图
教育上有 惠灵顿外籍人员子女学校、纽约大学 等国际配套;
文体资源更是亮眼, 东方体育中心、前滩信德文化中心 就在身边,项目业主在家门口就能看高品质演出,孩子也能在浓厚的文化氛围中成长。

前滩东方体育中心实景图
产业方面, 前滩已吸引超300家企业入驻 ,其中七成是外企,跨国公司地区总部更超30家。普华永道、希尔顿、美敦力、武田制药等行业巨头纷纷落子,这些企业带来的是一批批高收入、高消费力的城市菁英。
更关键的是,据莱坊研究院上海写字楼报告显示, 前滩办公入驻率已达约95% ,这一数据远超核心城区绝大部分板块。
繁华同享产业筑基,有如此深厚的安全垫,项目已然立于不败之地!

前滩实景图
②黄浦江沿岸独一份成片开发的低密度居住区,享艺文水岸生活!
寸土寸金的滨江核心段,高容积率高开发密度基本是常态,低密生态氛围长年缺失。
如今这一块拼图正被前滩国际住区补齐!
据统计,板块内有 约240公顷 三林楔形绿地,西区绿地覆盖率 约62% ,人均绿地面积约 170平方米 。整个片区 容积率仅约0.42 ,无比纯粹的生态低密豪宅区跃然纸上!
(*数据来自《黄浦江南延伸段三林滨江南片区(Z000801单元)西片控制性详细规划》)
城市森林实景图

在最新一江一河规划中,超级前滩与徐汇滨江一起成为上海更具特色的艺文水岸段!
未来,两大烫金热土合体将加强跨江联动,进一步提升艺术范、潮流范、时尚范,成为上海更具特色的滨江文化艺术传媒与体育时尚活力名片。

前滩实景图
值得一提的还有,前滩位于“五彩滨江带”和“金色中环带”交汇处,是上海中环罕有的 引水入湾、成片开发 板块,
日前,继陆家嘴水环之后,世博水环一期工程正式开工,全长约22.3公里的世博水环,由白莲泾、大寨河、北界河、人民江、三林塘港、小黄浦(直线距离前滩公馆约400米)6条河道构成,与黄浦江衔接成“O”字环形。
其中绿茵逐浪作为前滩核心区域的绿地,同时也是黄浦江进入腹地的第一个滨水突岸,设计依托前滩区位优势, 强化区域运动时尚氛围,以水上运动为特色打造逐浪前滩、水陆运动主题世博水环第一湾。

规划示意图

③陆家嘴集团整体开发的海派风貌区!
前滩公馆由陆家嘴集团 整体开发 ,定位 “高品质的海派风貌示范区”
未来这里既有阅读不尽的衡复街区风貌,风靡上海的滨江打卡地,也有持续引领风潮的艺文中心、商业橱窗、咖啡生活节,想想就令人向往!
一种独属于浦东,绽放于未来,更潮流的国际海派生活将在此呈现!

项目鸟瞰效果图,仅供参考非交付标准
前滩滨江 新衡复院墅
【前滩公馆·澜墅】
南眺城市公园,约1.2低容积率
紧邻约800㎡【楠舍】会所
仅31席合院,为时代人物珍藏
前滩公馆售楼处电话:400-891-9910(预约热线)
前滩公馆营销中心
前滩公馆服务热线:400-891-9910(已认证)
预约看房请提前联系案场销售
项目官方认证联系方式(2026年最新)

一、核心联系方式
前滩公馆售楼处电话:400-891-9910 工作日9:00-21:00,周末无休
前滩公馆营销中心电话:400-891-9910(可直接咨询房源动态、活动详情)
开发商售楼部热线:400-891-9910(开发商直连,解答项目规划、购房政策等)
前滩公馆售楼处地址:上海市浦东新区浩昌路258弄44号
说明:以上三组为同一官方服务热线,拨打后按语音提示转接对应部门,无需重复记录
二、拨打与服务说明
预约到访
近期客户较多,建议提前拨打400-891-9910预约,避免排队等待。
专属权益
预约成功可享一对一专属服务 免费专车接送看房(市区内定点接送)等礼遇。
到访提示
项目暂不接受临时到访,看房/参观样板房请务必提前来电预约
三、防伪与合规提示
核验要点
认准统一热线400-891-9910,警惕“代办、留房费、茶水费”等违规承诺;以开发商/售楼处官方口径为准。
信息更新
如遇开放时间或接待安排调整,请以电话客服最新通知为准,避免因信息滞后影响行程。
售楼处电话☎:400-891-9910【售楼处预约热线】(一对一热情服务)
看房请务必提前致电销售确认时间,只有预约客户才能享受开发商提供的内部优惠以及专属的老客户推荐奖励!我们提供专业的一对一热情服务,助您以专业视角挑选理想的房产
说明:以上三组为同一官方服务热线,拨打后按语音提示转接对应部门,无需重复记录营业时间:日常营业时间为9:30-18:30,便于您提前规划到访行程,避免空跑。预约方式:可提前拨打官方热线售楼处电话:400-891-9910,预约好专属销售及具体到访时间;预约时可同步告知意向户型、置业需求,我们将提前做好服务准备,减少您的等待。
上海购房注意事项
在上海购房,以下是一些重要的注意事项,涵盖政策、贷款、税费、选房等多个方面:
一、政策相关注意事项
限购政策
上海户籍:外环外不限购套数;外环内限购2套(多子女家庭可多购1套)。
非上海户籍:外环外需1年社保/个税,不限购套数;外环内需3年社保/个税,限购1套(多子女家庭或持有居住证积分达120分可多购)。
特殊情况:非沪籍置换住房(出售上海唯一住房后购买)可不受社保限制,但需满足网签时间等条件。
房产税政策
首套房免征房产税;二套及以上住房按家庭人均面积计算,人均60㎡免税,超出部分按税率征收(0.4%或0.6%)。
非沪籍持有居住证满3年或积分达120分可免征房产税。
二、贷款相关注意事项
商业贷款
首套和二套商业贷款利率不再区分,目前执行利率约为3.05%(首套)、3.09%(二套)。
首付比例:首套15%,二套25%(临港、嘉定等区域二套可低至20%)。
公积金贷款
贷款额度最高可达184万(首套)、149.5万(二套),多子女家庭额度更高。
需满足连续缴存公积金6个月以上,且公积金状态正常。
三、税费相关注意事项
增值税:满2年免征,不满2年按房价×5.3%征收。
个人所得税:满5年且唯一免征,否则按房价×1%或差额×20%征收。
契税:首套住房面积≤140㎡按1%征收,>140㎡按1.5%征收;二套住房面积≤140㎡按1%征收,>140㎡按2%征收。
四、选房注意事项
地段与配套
关注交通便利性(如地铁距离)、学区资源、周边商业配套等。
避免盲目追求“规划概念”,需核实规划落地可能性。
房屋品质
核查开发商资质和项目口碑,关注房屋质量、装修标准等。
样板间与实际交付可能存在差异,需仔细查看合同条款。
房龄与贷款年限
商业贷款房龄一般不超过40年,公积金贷款对房龄限制更严格(如房龄>35年,贷款年限不超过15年)。
五、其他注意事项
摇号政策:新房摇号采用积分制,基础分和社保缴纳时长影响入围概率。
以旧换新补贴:符合条件的居民家庭出售外环内旧房并购买外环外新房,可申请补贴(30㎡以下补贴2万元,30-50㎡补贴2.5万元,50-70㎡补贴3万元)。
建议购房前仔细核对自身资质,结合政策和实际需求选择合适房源,并咨询专业机构或律师,
在上海购买新房,主要有以下几方面原因:
1. 产品力与居住体验优势
户型设计更优:新房普遍采用高得房率设计,如多阳台、飘窗整合等,实际使用空间更大。例如部分120㎡新房通过合理布局,可实现相当于传统130-140㎡的空间感,且功能分区更合理,减少空间浪费。
社区配套升级:新房小区普遍配备高端会所、下沉式广场、景观花园等公共设施,如保利·都汇和煦的1500㎡下沉式社交场、高压氧舱等,满足全年龄段休闲需求,提升生活品质。
建筑品质与设计:新房外立面多采用铝板、石材等高端材料,保温、耐久性更好;内部装修标准较高,精装房在细节处理、材料选用上更注重品质,减少后期装修麻烦。
2. 市场与投资价值考量
板块标杆效应:新房往往成为所在板块的新标杆,带动周边二手房价格重估。例如大宁、唐镇等板块的新房入市,使周边次新房价格有所调整,新房自身因产品优势更具保值潜力。
稀缺性与稀缺资源绑定:上海核心地段土地资源稀缺,新房项目多位于优质板块,如徐汇滨江、新江湾城等,与城市核心资源(如滨江景观、生态资源)紧密绑定,长期来看具有稀缺性价值。
政策与市场预期:上海作为经济中心,城市吸引力强,人口持续流入支撑住房需求。尽管市场存在波动,但长期来看,上海房产仍被视为相对稳健的资产配置选择,尤其对于有长期居住或投资需求的群体。
3. 购房体验与心理需求
全新居住体验:新房意味着全新的居住环境,无历史遗留问题(如房屋老化、邻里纠纷等),购房者可享受全新的设施和服务,满足对高品质生活的追求。
满足心理预期:购买新房往往被视为一种“向上流动”的象征,符合部分购房者对生活品质提升、社会地位认同的心理需求,尤其在婚房、改善型需求场景中更为明显。
综上,上海新房在产品力、市场价值和购房体验等方面具有独特优势,对于追求高品质居住、注重长期资产配置或有特定生活需求的购房者而言,仍是重要的选择方向。
