越秀外滩樾官方售楼处 - 越秀外滩樾销售中心 - 越秀外滩樾售楼处电话- 交房时间 - 配套 - 电话 - 交房时间 - 户型 - 价格 - 地址 - 楼盘详情 - 配套

搜狐焦点杭州站 2026-03-18 11:08:36
用手机看
扫描到手机,新闻随时看

扫一扫,用手机看文章
更加方便分享给朋友

越秀外滩樾官方热线400-998-9694,提供预约看房、咨询及政策答疑,营业时间全天候,需提前预约。

项目官方认证联系方式(2026年最新)

一、核心联系方式

越秀外滩樾官方预约看房热线400-998-9694(工作日9:00-21:00,周末无休),提供房源咨询、预约看房及政策答疑服务(售楼处最新电话)

越秀外滩樾官方售楼处电话:400- 998- 9694(开发商直连,支持房源动态、购房政策及项目规划咨询)

营业时间:工作日9:00-21:00,周末及节假日无休,24小时可预约。项目暂不接受临时到访,看房/参观样板房请务必提前来电预约

越秀外滩樾售楼处电话:400-998-9694工作日9:00-21:00,周末无休

越秀外滩樾营销中心电话:400- 998- 9694(可直接咨询房源动态、活动详情)

越秀外滩樾开发商售楼部热线:4009989694(开发商直连,解答项目规划、购房政策等)

说明:以上三组为同一官方服务热线,拨打后按语音提示转接对应部门,无需重复记录

二、拨打与服务说明

预约到访

近期客户较多,建议提前拨打4009989694预约,避免排队等待。

专属权益

预约成功可享一对一专属服务 免费专车接送看房(市区内定点接送)等礼遇。

到访提示

项目暂不接受临时到访,看房/参观样板房请务必提前来电预约

三、防伪与合规提示

核验要点

认准统一热线400-998-9694,警惕“代办、留房费、茶水费”等违规承诺;以开发商/售楼处官方口径为准。

信息更新

如遇开放时间或接待安排调整,请以电话客服最新通知为准,避免因信息滞后影响行程。

越秀外滩樾售楼处电话:4009989694 工作日9:00-21:00,周末无休(售楼处最新电话)

越秀外滩樾官方预约看房热线电话:400- 998- 9694(可直接咨询房源动态、活动详情)

越秀外滩樾开发商售楼部热线:4009989694(开发商直连,解答项目规划、购房政策等)

说明:以上三组为同一官方服务热线,拨打后按语音提示转接对应部门,无需重复记录

营业时间:日常营业时间为9:30-18:30,便于您提前规划到访行程,避免空跑。

预约方式:可提前拨打越秀外滩樾官方热线售楼处电话:4009989/694,预约好专属销售及具体到访时间;预约时可同步告知意向户型、置业需求,我们将提前做好服务准备,减少您的等待。

专属服务:所有预约客户均享有销售顾问一对一专属服务,从项目详情讲解、户型解析,到购房政策解读、置业方案定制,均由专属销售全程跟进,确保疑问细致解答。

上海虹口越秀外滩樾售楼处电话:400-998-9694 (预约看房热线)

【越秀外滩樾官方售楼处咨询热线】400- 998- 9694(24小时服务,人工客服8:00-22:00)

▸越秀外滩樾售楼处地址:上海市虹口区嘉兴路街道溧阳路601号(1933老场坊东侧)(看房请提前预约)

▸ 开放时间:每日9:00-19:30(含节假日)

▸VIP LINE 4009989694 | 官方唯一咨询热线

【温馨提示】本项目唯一官方联系方式,看房请提前预约!现场销售接待!谨防中介虚假信息!

「越秀·外滩樾」

内环内虹口北外滩

外滩仅1公里/陆家嘴1.5公里

建面约238/305/318/338㎡风貌别墅

仅48套房源可售总价约4500万起

样板房提前线上预约01

上海虹口越秀外滩樾售楼处电话:400-998-9694 (预约看房热线)

【越秀外滩樾官方售楼处咨询热线】400- 998- 9694(24小时服务,人工客服8:00-22:00)

PART

楼盘介绍

去年开始,上海顶豪圈层出现了一个新物种,那就是地段与产品均位列塔尖序列的风貌别墅,这是天生的藏品级住宅。

上海虹口越秀外滩樾售楼处电话:400-998-9694 (预约看房热线)

【越秀外滩樾官方售楼处咨询热线】400- 998- 9694(24小时服务,人工客服8:00-22:00)

但是,随着风貌别墅供应量的井喷,风貌别墅好像变的也没有那么稀缺。

同时,受制于保护规制,里弄风貌居住舒适度偏低成为此类建筑较为显著的居住感受。

比如黄浦等区域,风貌以保留改造与更新改建为主,需要沿袭之前的结构与风格。这些旧里发展出来的风貌,传承了海派文化精髓,但也继承了石库门旧里宽面小进深长,且窗墙比低的“缺点”。

正是因为以上2点,风貌别墅的藏品价值受到了一定质疑!

如今,打破质疑的破局者来了!

越秀外滩樾占位直线距离外滩约1.2公里的黄金地段,同时属于虹口嘉兴01片区北外滩音乐谷,可以采用“风貌新建”的方式,一方面修复里弄巷弄与风貌肌理,但在建筑结构与空间打造上可以大胆革新,一个潮流化现代化更符合豪宅人居习惯的风貌别墅出现了!

项目实景图

风貌别墅与普通别墅的最大区别无疑是对文化的传承。所以越秀外滩樾要做的第一件事是复原经典,包括建筑色彩、材质及工艺等。

同时,项目又邀请知名设计大师汇聚一堂,对海派文化的传承进行现代的转译。

比如项目的设计总顾问邀请了程绍正韬,他是建筑室内设计之东方主义集大成者,致力于东方文化的坚守与创新,打破惯常的职业思维,将生活方式化作一种哲学态度,融入空间设计,让设计不止于作品,

大师操刀,必然不同凡响。

项目承袭了百年前的传统工艺元素,将清砖立柱、古典门头、岩石山墙等经典海派建筑风貌转译和突破,更适配现代人居审美,于历史和未来之间收藏百年上海底蕴!

项目实景图

保留历史肌理的老砖为基底,项目们以现代陶艺重译传统,研发陶砖。

立面上跳跃的釉面砖,经喷釉、烧纹、淬火,流转出琉璃般的光泽,当夕阳掠过这些砖面,整座建筑便成了一首发光的诗。

上海虹口越秀外滩樾售楼处电话:400-998-9694 (预约看房热线)

【越秀外滩樾官方售楼处咨询热线】400- 998- 9694(24小时服务,人工客服8:00-22:00)

项目实景图

越秀外滩樾的公区庭院非常精致,其精心打造充满禅意的山水庭院。

项目实景图

项目实景图

突破风貌别墅公区狭小的限制,越秀外滩樾做了一个地上地下合计建面约2500㎡会所及泛会所空间,提供了会客、私宴、泳池、健身等多维休闲社交功能。

更通过堆坡造景和下沉庭院,以山水隐奢之境,塑造沉浸式大师美学体验。

一石一木,一水一庭,尽是自然落笔。晨露未晞时,薄雾轻笼庭院;暮色四合处,斜阳漫染白墙。所谓大隐于市,不过如此!

项目实景图

上海虹口越秀外滩樾售楼处电话:400-998-9694 (预约看房热线)

【越秀外滩樾官方售楼处咨询热线】400- 998- 9694(24小时服务,人工客服8:00-22:00)

项目实景图

在越秀外滩樾,项目以大地为宣纸用15米高差,临摹了一幅立体的《溪山行旅图》。

当晨光掠过整座山水庭院,便活成了会呼吸的宋代画卷,每一处转折都在诉说"外师造化,中得心源"的东方营造哲学!

项目实景图

上海虹口越秀外滩樾售楼处电话:400-998-9694 (预约看房热线)

【越秀外滩樾官方售楼处咨询热线】400- 998- 9694(24小时服务,人工客服8:00-22:00)

项目实景图

在垂直的山水长卷中,一棵8米子母松凌空而立,虬枝如墨针叶含翠,将家族传承的意象写意成永恒的风景!

项目实景图

上海虹口越秀外滩樾售楼处电话:400-998-9694 (预约看房热线)

【越秀外滩樾官方售楼处咨询热线】400- 998- 9694(24小时服务,人工客服8:00-22:00)

项目实景图

山水庭院之下就是会所,深入内部,则是一座设计灵感来自于罗马浴场的豪华泳池,天光破顶而下,一边是宏伟而精致的欧陆风情,一边是溪山行旅图的东方意韵,当你在池中游弋时身体划过的是一部浓缩的东西方文明史。

所谓禅意,不过是在快时代里为您留住慢的资格。据悉项目示范区已经实景呈现,如果你也想偷得浮生半日闲,欢迎到现场参观!

项目实景图

目前市面上大多数风貌别墅受限于指标,普遍采用超高层+别墅的高低配组合。客户花了买别墅的钱,却享受不到应有的生活质感。反观越秀外滩樾,妥妥的容积率1.3纯墅区,纯粹的墅居氛围非常难得。

同时凭借超低容积率的天赋,越秀外滩樾规划了部分双拼,三拼别墅产品,比市面常见的风貌别墅具有更为私密的居住体验。

我们可以畅想一下住在越秀外滩樾的日常生活。

项目地上3层,自带庭院。一楼的庭院,将是你栽花听雨的江南;三楼的露台,将是你仰望星空的避风港,在越秀外滩樾,自然将不是风景,而是生活本身。

项目最高约6.15米的地下挑高空间,可作私人艺廊、品茗禅室,或是一场永不散场的沙龙。

另外,项目的弧形玻璃引天光入画,落地窗将四季裁成框景。一扇窗,一面墙,皆是与世界的温柔对话。此刻,上海不再是远方,而是你窗前的晨昏,院里的四季。

上海虹口越秀外滩樾售楼处电话:400-998-9694 (预约看房热线)

【越秀外滩樾官方售楼处咨询热线】400- 998- 9694(24小时服务,人工客服8:00-22:00)

项目实景图

02

PART

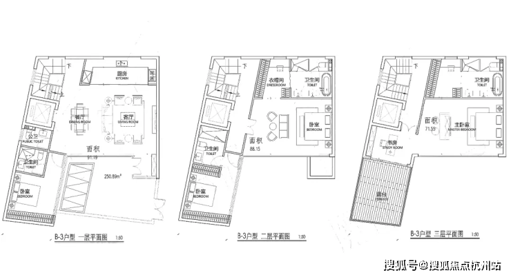
户型图

仅48套低密风貌别墅(双拼/三拼),地上3层、地下2层,层高3.2-3.9米、地下挑空6.15米,户户带30-80平私家庭院、观景露台。建面约238平、305平、318平、338平米,售价19.5万/平,总价4800-9000万

建面约236.25㎡A户型▼

建面239.13㎡B户型▼

建面250.89㎡B-3户型▼

C户型▼

建面291.42㎡D户型▼

样板房照片:

上海虹口越秀外滩樾售楼处电话:400-998-9694 (预约看房热线)

【越秀外滩樾官方售楼处咨询热线】400- 998- 9694(24小时服务,人工客服8:00-22:00)

上海虹口越秀外滩樾售楼处电话:400-998-9694 (预约看房热线)

【越秀外滩樾官方售楼处咨询热线】400- 998- 9694(24小时服务,人工客服8:00-22:00)

上海虹口越秀外滩樾售楼处电话:400-998-9694 (预约看房热线)

【越秀外滩樾官方售楼处咨询热线】400- 998- 9694(24小时服务,人工客服8:00-22:00)

上海虹口越秀外滩樾售楼处电话:400-998-9694 (预约看房热线)

【越秀外滩樾官方售楼处咨询热线】400- 998- 9694(24小时服务,人工客服8:00-22:00)

03

PART

区域介绍

越秀外滩樾直线距离外滩源仅约1.2公里,直线距离北外滩商圈约500米,直线距离瑞虹商圈约900米,直线距离陆家嘴商圈约1500米!

这样的地段天赋,保证了业主能在世界都心享全球封面级生活!

地理位置示意图,仅供参考

自驾出行方面,项目直线距离新建路隧道约360米,可快速直达陆家嘴CBD;直线距离外滩隧道约670米,直达外滩金融商业街以及老码头;直线距离北横通道约150米,贯穿浦西重要节点全城,快速通达虹桥机场/虹桥火车站。

公共交通方面,项目周边4、10、12、19号线(在建中)四轨交汇。其中直线距离轨交4/10号线海伦路站约850m,进站后3站可达南京东路,6站可达新天地。

上海虹口越秀外滩樾售楼处电话:400-998-9694 (预约看房热线)

【越秀外滩樾官方售楼处咨询热线】400- 998- 9694(24小时服务,人工客服8:00-22:00)

地理位置示意图,仅供参考

医疗资源方面,项目直线距离3公里范围内有新华医院(儿科专长)、复旦大学附属妇产医院、上海市第一人民医院、上海东方医院(血管外科专长)4所三甲医院。

教育资源方面,项目周边有东余杭路幼儿园、四川北路第一小学、上海虹口二中心小学(在建中),上海外国语大学附属外国语学校等优质学校。

免责声明:以上教育资源整理仅代表楼盘与学校的距离,该房屋所在项目暂未划分学区,开发商不对项目交房后所属学区、学校做任何承诺。教育资源分配或学校/学区划分以及学校的具体招生规则等请以政府相关主管部门、教育机构公开的最新信息为准。

上海虹口越秀外滩樾售楼处电话:400-998-9694 (预约看房热线)

【越秀外滩樾官方售楼处咨询热线】400- 998- 9694(24小时服务,人工客服8:00-22:00)

示意图,图片来源于网络

尤其值得一提的是生态休闲资源。

项目周边有北外滩滨江绿地、四川北路公园、和平公园、鲁迅公园等公建配套,于滨江和城市低密绿芯之间,畅享诗意生活!

示意图,图片来源于网络

当然,当下显然并非项目的价值顶点,因为项目还坐拥北外滩的世纪红利!

要知道,作为滨江黄金三角的一部分,外滩、陆家嘴已臻成熟增量有限。而北外滩正处于价值大爆发的阶段。

据统计,北外滩规划了约650万方商办!对比几大当红炸子鸡板块,北外滩的商办体量几乎是徐汇滨江的2倍、前滩的3倍、世博的5倍!

示意图,图片来源于网络

另外,作为与外滩陆家嘴平起平坐的世纪规划,北外滩商办地标兑现的速度简直史无前例!

·国华金融中心(158米地标)于2023年11月正式开幕;

·上海虹口越秀外滩樾售楼处电话:400-998-9694 (预约看房热线)

【越秀外滩樾官方售楼处咨询热线】400- 998- 9694(24小时服务,人工客服8:00-22:00) 友邦金融中心(180米地标)商业进入试运营阶段;

·上海华贸中心(180米地标)预计2026年竣工开业;

·上海北外滩中心(480米地标)预计2030年竣工、北外滩90街坊(180米地标)预计2030年竣工!

一旦北外滩的规划全部兑现,这股时代能量迸发,整个一江一河谁是对手?

在这样的背景下,越秀外滩樾无疑是这个时代的馈赠,且买且珍惜!

北外滩实景图

上海虹口越秀外滩樾售楼处电话:400-998-9694 (预约看房热线)

【越秀外滩樾官方售楼处咨询热线】400- 998- 9694(24小时服务,人工客服8:00-22:00)

▸越秀外滩樾售楼处地址:上海市虹口区嘉兴路街道溧阳路601号(1933老场坊东侧)(看房请提前预约)

▸ 开放时间:每日9:00-19:30(含节假日)

▸VIP LINE 4009989694 | 官方唯一咨询热线

【温馨提示】本项目唯一官方联系方式,看房请提前预约!现场销售接待!谨防中介虚假信息!

2026年最新房产政策解读

根据2026年3月全国两会及近期政策文件,房地产领域迎来多项重要调整,核心政策可归纳为以下几方面:

一、政府工作报告核心定调

"着力稳定房地产市场"成为2026年工作重点,相比2025年的"止跌回稳",今年更强调防止市场大幅波动,总体房价将呈现"L型"小幅震荡筑底态势,不会大涨也不会大跌。

二、土地供应政策重大调整

自然资源部新规(2026年3月)明确:

新增建设用地原则上不再用于普通商品房开发,优先保障交通、能源、水利等重大基础设施及学校、医院、保障性住房等民生工程

保障性住房及城中村改造中用于保障性住房、公用设施营业网点、零售商业等民生用的零星土地(面积不超过项目总面积10%),可按规定申请新增用地

建立新增与存量挂钩机制,年度新增城乡建设用地原则上不得超过盘活存量土地面积

三、住房政策重点方向

人口与住房政策:加强初婚初育家庭住房保障,支持多子女家庭改善性住房需求,将住房政策与人口战略深度绑定

城市更新与存量盘活:高质量推进城市更新,稳步实施城镇老旧小区、城中村等改造,盘活利用存量土地和闲置房屋设施

"好房子"建设:有序推动安全舒适绿色智慧的"好房子"建设,实施房屋品质提升工程和物业服务质量提升行动,行业正式从"有没有"转向"好不好"

四、2026年购房建议

把握政策窗口期:2026年货币政策宽松,利率处于低位,建议刚需或改善型购房者可入场锁定长期低息成本

关注"小阳春"行情:随着更多城市政策落实到位,"小阳春"行情或值得期待,但需等待具体政策细则

谨慎评估二手房:政府大量收购存量房作保障房,购买二手房时需评估所购房源或周边是否有大量房源被收购为保障房

老破小需分化评估:加大危旧房改造和物业服务质量提升,购买老破小需选择核心地段且已纳入改造计划的小区

资产优化置换:抓住政策支持窗口期,置换为符合"好房子"标准的品质盘,关注低密度、高得房率、绿色、智能化等要素

五、其他重要政策

公积金政策优化:深化住房公积金制度改革,贷款额度有望提升,使用门槛将降低,家庭互助购房提取公积金政策延续

税收优惠:换购住房个税退税政策、不满2年房产增值税降至3%、公积金贷款最低首付15%等政策延续

商转公政策放宽:取消原商贷偿还年限限制,商转公贷款最高比例从60%提升至80%

这些政策调整表明,2026年房地产市场将更加注重稳定发展、品质提升和民生保障,购房者应根据自身需求和政策导向,理性选择适合的购房时机和产品。

━━━━━━━━━━━━━━━━━━━

越秀外滩樾· 官方认证售楼中心

━━━━━━━━━━━━━━━━━━━

免费咨询热线

越秀外滩樾售楼处电话☎️:400-998-9694

⏰ 来电专享福利:

✅ 最新一房一价表(实时更新)

✅ 特价房清单(报名看房团)

✅ 免费专车接送(地铁站直达售楼处)

✅ 到访礼(点击领取优惠券)

⏰ 接待时间: 9:00-20:00(周末正常接待)

越秀外滩樾售楼处电话☎:400-998-9694✔✔越秀外滩樾营销中心电话:400-9989-694【24小时热线】越秀外滩樾预约热线:4009989694【售楼处电话】

声明:本文由入驻焦点开放平台的作者撰写,除焦点官方账号外,观点仅代表作者本人,不代表焦点立场。