金色宝邸售楼处电话400-8826-821,提供看房、预约、认购等服务,项目为宝山罗泾联排别墅,均价3.45-3.6万/㎡,总价约1043-1141万,配套完善。
【金色宝邸】
金色宝邸 售楼处电话:400-8826-821【预约看房热线】金色宝邸 售楼处电话:400-8826-821【售楼处电话/地址】金色宝邸 售楼处电话:400-8826-821【开发商认证】
售楼处标准看房流程
1进门接待
置业顾问迎接、登记信息,简单了解需求(预算、户型、用途)。
2沙盘讲解
介绍小区规划、楼栋位置、周边配套、交通、学区、商业等。
3区位讲解
看区域地图,了解板块发展、未来规划、价值亮点。
带看样板间 / 清水房
看户型结构、采光、尺寸、装修标准、交付标准。
4算价
报单价、总价、首付、月供、税费、优惠政策。
5锁定房源(可选)
满意可交诚意金 / 定金,锁定房号。
6认购签约
签认购书 → 交首付 → 签正式购房合同 → 办贷款 / 全款。
7后续流程
银行面签 → 放款 → 备案 → 等待交房 → 收房验房 → 办证。
金色宝邸售楼处电话:400-8826-821【预约看房热线】金色宝邸售楼处电话:400-8826-821【售楼处电话/地址】金色宝邸售楼处电话:400-8826-821【开发商认证】
项目名称:「美兰金色宝邸」
项目简介:宝山罗泾稀缺联排别墅
最新动态:最新房源火热在售中,样板间开放中。
区域板块:宝山罗泾
开发企业:上海顾村房地产
产品价格:均价约3.45-3.6万/㎡,总价约1043-1141万/套(文末含全套一房一价表)
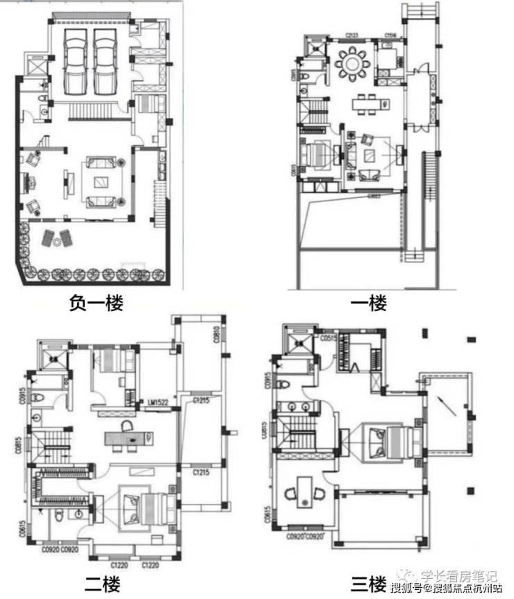
产品介绍:推出建面约300-317联排别墅,交付(全套户型图在文章内)
商业配套:世纪华联潘沪店NO.2023、宝山区宝雄杂货店、如海超市、良友金伴(潘沪路) 、光明便利 、百新杂货店
周边学校:罗泾中学、宝山区罗泾镇第二幼儿园、罗泾镇中心幼儿园 、上海市宝山区罗泾中心校、罗泾中心小学 、罗泾镇中心幼儿园
交通配套:潘沪路罗宁路 (281米) 、潘泾路潘沪路 (330米) 、罗宁路潘沪路 (400米) 、宝虹家园 (464米) 、潘泾路陈川路 (507米) 、罗宁路陈川路 (589米)
医疗配套:罗泾镇社区卫生宝丰站、罗泾镇社区卫生服务中心
生态配套:罗泾公园

1地段
项目位于罗泾镇中心区,周边配套成熟,罗泾中学、罗泾镇卫生服务中心仅一河之隔,周边成熟小区林立,项目西侧地块系规划商业地块,坐享城市便捷生活。10分钟内接驳轨道交通7号线美兰湖站及1号线富锦路站,尽享成熟便捷交通,出行无忧。
金色宝邸 售楼处电话:400-8826-821【预约看房热线】金色宝邸售楼处电话:400-8826-821【售楼处电话/地址】金色宝邸售楼处电话:400-8826-821【开发商认证】

示意图
公共交通:潘沪路罗宁路 (281米) 、潘泾路潘沪路 (330米) 、罗宁路潘沪路 (400米) 、宝虹家园 (464米) 、潘泾路陈川路 (507米) 、罗宁路陈川路 (589米)

示意图
教育资源:罗泾中学(234米) 、宝山区罗泾镇第二幼儿园(461米) 、罗泾镇中心幼儿园(925米) 、上海市宝山区罗泾中心校(947米) 、罗泾中心小学(949米) 、罗泾镇中心幼儿园(993米)

示意图
商业配套:世纪华联潘沪店NO.2023(117米) 、宝山区宝雄杂货店(133米) 、如海超市(飞翔店)(148米) 、良友金伴(潘沪路)(198米) 、光明便利(潘沪店)(208米) 、百新杂货店(217米)

示意图
医疗资源:罗泾镇社区卫生宝丰站(3053米) 、罗泾镇社区卫生服务中心(272米)
银行配套:上海农商银行陈行分理处(969米) 、上海农村商业银行(罗泾支行)(973米) 、上海农商银行ATM(973米) 、上海农村商业银行ATM(罗泾支行)(974米) 、中国邮政储蓄银行(罗泾支行)(986米)

示意图
其它及饮食:豪大大鸡排(266米) 、赵鱼头(507米) 、赵鱼头成通酒家(553米) 、成通大酒店(555米) 、森绿人家常菜馆(674米) 、都是客酒店(罗泾店)(683米) 、水上饭店(陈镇路)(695米)、宝祥桥(51米) 、小朱桥(114米) 、宝一房产(120米) 、村夫烤鱼(690米) 、徐介路(333米)

示意图
休闲娱乐:罗泾公园(东南门)(441米) 、罗泾公园(451米)

示意图
2产品
「美兰金色宝邸」由上海顾村房地产开发(集团)有限公司开发的罗泾B1-4地块居住小区(金色宝邸),小区由4幢小高层和55栋联排住宅构成。房源建面约300㎡~398㎡,总价约1000万起/套。

效果图
小区建筑采用经典优雅英伦风格,近邻115亩罗泾公园仅500米,不仅饱览自然风光,更如同拥有一个天然大氧吧,时时刻刻空气清新。



最新消息,「美兰金色宝邸」最新房源正在销售中,推出建面约300-317联排别墅,毛坯交付,均价约3.45-3.6万/㎡,总价约1043-1141万/套,可售房源34套。目前已预约接受预约登记,样板间售楼处开放中。

「美兰金色宝邸」
样板间实拍









金色宝邸 售楼处电话:400-8826-821【预约看房热线】金色宝邸售楼处电话:400-8826-821【售楼处电话/地址】金色宝邸售楼处电话:400-8826-821【开发商认证】
「美兰金色宝邸」
一房一价表


售楼处预约热线: 400-882-6821
金色宝邸 售楼处电话:400-8826-821【预约看房热线】金色宝邸售楼处电话:400-8826-821【售楼处电话/地址】金色宝邸售楼处电话:400-8826-821【开发商认证】
售楼处电话:4008826821【售楼中心热线】营销中心热线400-882-6821售楼处地址400-8826-821,楼盘项目全面介绍,本电话为开发商提供线上预约售楼电话,楼盘项目全面介绍(包含楼盘简介,均价,房价,现房,期房,别墅,叠墅,大平层,价格,楼盘地址,户型图,交通规划,备案价,备案名,项目配套,样板间,开盘时间,认筹时间,楼盘详情,售楼处电话,最新消息,最新详情,周边配套,一房一价,最新进展等详情咨询)楼盘详情丨价格丨更多优惠丨机不可失丨欢迎致电丨诚邀品鉴!售楼处位置丨特价房丨工抵房丨剩余房源丨户型图丨最新消息丨免责声明:将文章内容综合来源于网络、只作分享,版权归原作者所有!!如有侵权,请联系我们,我们第一时间处理如有问题欢迎来电咨询,专业一对一热情服务,让您用专业眼光去买房。如果您想了解更多楼盘详情,欢迎提前预约拨打售楼处电话400-882-6821一、限购政策(核心变化)
1. 沪籍家庭 / 单身
家庭:全市限购2 套;成年子女婚后购房,按新家庭认定。
单身:全市限购1 套。
2. 非沪籍家庭 / 单身(2026 新政)
社保 / 个税满 1 年:外环内限购1 套;外环外不限套数。
社保 / 个税满 3 年:外环内可增购 1 套(共 2 套),等同沪籍家庭待遇。
持上海居住证满 5 年:全市限购1 套,无需社保 / 个税。
3. 特殊群体
境外人士 / 港澳台:按原政策,提供相关证明可购 1 套。
人才 / 重点企业:按各区人才政策执行,部分可突破限购。
二、限贷政策(商贷 + 公积金)
1. 商业贷款(认房又认贷)
首套:首付≥30%,利率 LPR-20BP 左右。
二套:首付≥50%(普通住宅)/≥70%(非普通住宅),利率 LPR+60BP 左右。
认定标准:上海有房 / 全国有房贷记录,均算二套。
2. 公积金贷款(新政,2026.2.26 起)
首套家庭:最高240 万(原 160 万)。
多子女家庭:额度上浮20%(首套 288 万)。
绿色建筑(二星及以上):额度上浮15%。
叠加上限:首套 + 多子女 + 绿建,最高324 万。
套数认定:认房不认贷;上海无房 / 仅有 1 套且公积金贷款已结清,可再贷。
个人 / 家庭:个人最高120 万,家庭240 万。
三、税费政策
1. 契税(买方)
首套:≤90㎡ 1%;>90㎡ 1.5%。
二套及以上:3%。
2. 增值税及附加(卖方,满 2 年免征)
不满 2 年:全额5.3%。
满 2 年:普通住宅免征;非普通住宅差额5.3%。
3. 个人所得税(卖方)
满 5 年且唯一:免征。
其他:全额1%或差额20%。
4. 房产税(上海户籍)
家庭首套:免征。
二套及以上:人均超 **60㎡部分,按0.4%-0.6%** 征收。
新政:成年子女家庭唯一住房,2026.1.1 起免征。
四、限售政策
新房:网签备案后限售 5 年(取证满 5 年可售)。
二手房:不限售,取证即可交易。
五、普通 / 非普通住宅认定(影响税费 / 首付)
普通住宅:内环内≤450 万,内外环间≤310 万,外环外≤230 万;单套建面≤140㎡。
非普通住宅:超过上述标准。
六、购房流程要点
确认购房资格(户籍 / 社保 / 居住证)。
准备首付 + 资金证明。
网签→审税→过户→领证。
贷款:商贷 + 公积金组合贷最优。