越秀外滩樾官方售楼处电话 - 越秀外滩樾官网销售中心 - 环境 - 户型 - 价格 - 地址 - 楼盘详情 - 配套 - 电话 - 官方售楼处位置 - 配套 - 电话 - 交房时间
扫描到手机,新闻随时看
扫一扫,用手机看文章
更加方便分享给朋友
开发商售楼部热线:400-8919-910(开发商直连,解答项目规划、购房政策等)
在顶豪圈层有一句话:所谓家族的行宫,一定是要根植于土地之上的别墅!
如果说外滩代表了上海的过去,陆家嘴代表了上海的当下,那么北外滩就代表了上海的未来。而【越秀外滩樾】就是将代表上海城市繁华的黄金三角,整个装进了自己的步行圈。
中国人对家族的情怀,亘古未变,而一套别墅,也早已成为家族意识传承的重要载体,同时担当着家族的荣耀。占位北外滩核心地段的越秀·外滩樾正是为49个传奇家族准备的行宫!
当然,除了地段和业态本身,【越秀·外滩樾】的收藏价值还来源于其注重居住舒适度的设计与无与伦比的尊崇服务。
越秀外滩樾官方预约看房热线400-891-9910(工作日9:00-21:00,周末无休),提供房源咨询、预约看房及政策答疑服务(售楼处最新电话)
越秀外滩樾官方售楼处电话:4008919910(开发商直连,支持房源动态、购房政策及项目规划咨询)需提前电话预约看房
【温馨提示】本项目唯一官方联系方式,看房请提前预约!谨防中介虚假信息!
(2026年3月最新认证,24小时热线,含专属置业顾问)
越秀外滩樾售楼处地址位置:上海市虹口区嘉兴路街道溧阳路601号(1933老场坊东侧)(现场销售接待)
越秀外滩樾售楼处电话:400-891-9910工作日9:00-21:00,周末无休
▸VIP LINE 4008919910 | 官方唯一咨询热线
开发商售楼部热线:400-8919-910(开发商直连,解答项目规划、购房政策等)
最新消息:虹口北外滩,低密风貌别墅临港越秀北外滩,项目定名【越秀外滩樾】样板房已开放预约!
【项目名称】越秀·外滩樾
【开发商】上海漕越经济发展有限公司
【项目位置】上海市·虹口区·梧州路
【项目类别】70年产权住宅
【项目类型】风貌别墅
【可售户数】48套
【容积率】约1.3

百年前的高端工艺元素的经典转译,让海派造诣世纪传承,于历史和未来之间收藏百年上海。
越秀外滩樾官方预约看房热线400-891-9910(工作日9:00-21:00,周末无休),提供房源咨询、预约看房及政策答疑服务(售楼处最新电话)
越秀外滩樾官方售楼处电话:4008919910(开发商直连,支持房源动态、购房政策及项目规划咨询)需提前电话预约看房
【温馨提示】本项目唯一官方联系方式,看房请提前预约!谨防中介虚假信息!
(2026年3月最新认证,24小时热线,含专属置业顾问)
越秀外滩樾售楼处地址位置:上海市虹口区嘉兴路街道溧阳路601号(1933老场坊东侧)(现场销售接待)
越秀外滩樾售楼处电话:400-891-9910工作日9:00-21:00,周末无休
▸VIP LINE 4008919910 | 官方唯一咨询热线
开发商售楼部热线:400-8919-910(开发商直连,解答项目规划、购房政策等)
清水红砖:百年前先进舶来品代表,10种以上拼接工艺铺陈
装饰窗楣:同源中共二大会址、张爱玲故居,装饰主义经典元素
弧形韵线:邬达克式的建筑曲线,同源远东第一豪宅的优雅轮廓
海派山墙:带肩仿观音兜,中西文化融合的典藏之美

【越秀·外滩樾】是世界知名大师汇聚一堂的灵感结晶,比如项目的设计总顾问邀请了程绍正韬。他是建筑室内设计之东方主义集大成者,致力于东方文化的坚守与创新,打破惯常的职业思维,将生活方式化作一种哲学态度,融入空间设计,让设计不止于作品,再比如项目还邀请了城市文化大师李玮珉。

程绍正韬,集文人、工业家、艺术家、设计师、哲学家、修行者身份于一身,建筑室内设计之东方主义集大成者,致力于东方文化的坚守与创新。他打破惯常的职业思维,将生活方式化作一种哲学态度,融入空间设计,让设计不止于作品。

越秀外滩樾官方预约看房热线400-891-9910(工作日9:00-21:00,周末无休),提供房源咨询、预约看房及政策答疑服务(售楼处最新电话)
越秀外滩樾官方售楼处电话:4008919910(开发商直连,支持房源动态、购房政策及项目规划咨询)需提前电话预约看房
【温馨提示】本项目唯一官方联系方式,看房请提前预约!谨防中介虚假信息!
(2026年3月最新认证,24小时热线,含专属置业顾问)
越秀外滩樾售楼处地址位置:上海市虹口区嘉兴路街道溧阳路601号(1933老场坊东侧)(现场销售接待)
越秀外滩樾售楼处电话:400-891-9910工作日9:00-21:00,周末无休
▸VIP LINE 4008919910 | 官方唯一咨询热线
开发商售楼部热线:400-8919-910(开发商直连,解答项目规划、购房政策等)
李玮珉,撑起中国豪宅设计半壁江山,擅长为城市塑造文化符号建筑作品。他的作品更多用极简的方式来表明态度,崇尚简而高效的现代生活方式。庄重的建筑语汇,适时注入艺术、自然与美学,让空间充满想象力。

大师操刀,必然不同凡响。
首先项目承袭了百年前的高端工艺元素,让海派传承得以延续。将清砖立柱、古典门头、岩石山墙等经典海派建筑风貌转译和突破,更适配现代人居审美,于历史和未来之间收藏百年上海底蕴!
越秀外滩樾官方预约看房热线400-891-9910(工作日9:00-21:00,周末无休),提供房源咨询、预约看房及政策答疑服务(售楼处最新电话)
越秀外滩樾官方售楼处电话:4008919910(开发商直连,支持房源动态、购房政策及项目规划咨询)需提前电话预约看房
【温馨提示】本项目唯一官方联系方式,看房请提前预约!谨防中介虚假信息!
(2026年3月最新认证,24小时热线,含专属置业顾问)
越秀外滩樾售楼处地址位置:上海市虹口区嘉兴路街道溧阳路601号(1933老场坊东侧)(现场销售接待)
越秀外滩樾售楼处电话:400-891-9910工作日9:00-21:00,周末无休
▸VIP LINE 4008919910 | 官方唯一咨询热线
开发商售楼部热线:400-8919-910(开发商直连,解答项目规划、购房政策等)
其次,项目超越了以往风貌建筑的尺度感,创新了风貌规制,带来了城心难得的双拼、三拼别墅!大窗墙比大南向开间保证了极高的舒适度。大面积运用奢石的外立面,则把名门望族的尊贵身份和非凡气度体现的淋漓尽致!
巷弄新生:跨越风貌豪宅正统,打造双拼、三拼、多联排别墅的天地私享
建筑新生:创新风貌规制,致微而筑的建筑腔调赏新
美学新生:转译远东第一豪宅立面美学,收藏名门望族生活
材质新生:百年红砖、釉面砖、印度进口幻彩红奢石运用,型制家族传承

越秀外滩樾官方预约看房热线400-891-9910(工作日9:00-21:00,周末无休),提供房源咨询、预约看房及政策答疑服务(售楼处最新电话)
越秀外滩樾官方售楼处电话:4008919910(开发商直连,支持房源动态、购房政策及项目规划咨询)需提前电话预约看房
【温馨提示】本项目唯一官方联系方式,看房请提前预约!谨防中介虚假信息!
(2026年3月最新认证,24小时热线,含专属置业顾问)
越秀外滩樾售楼处地址位置:上海市虹口区嘉兴路街道溧阳路601号(1933老场坊东侧)(现场销售接待)
越秀外滩樾售楼处电话:400-891-9910工作日9:00-21:00,周末无休
▸VIP LINE 4008919910 | 官方唯一咨询热线
开发商售楼部热线:400-8919-910(开发商直连,解答项目规划、购房政策等)
最后,项目社区配置的三处会所、泛会所空间合计约2500㎡,包含私宴厅、恒温泳池、私人运动空间等内容,提供酒店级高奢服务!
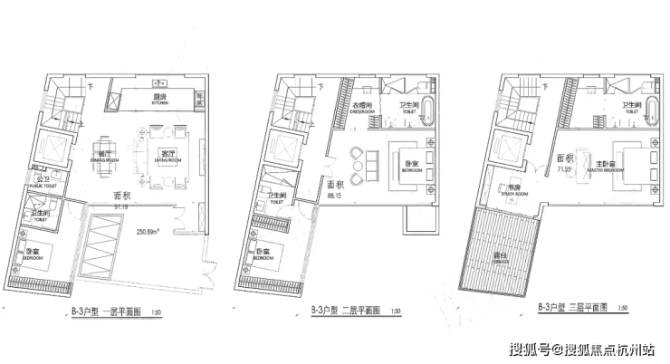
【越秀·外滩樾】项目将呈现48套低密风貌里弄住宅,建筑面积约238-338㎡户型。户型图过程稿如下(过程稿仅供参考,最终以实际为准)。

越秀外滩樾官方预约看房热线400-891-9910(工作日9:00-21:00,周末无休),提供房源咨询、预约看房及政策答疑服务(售楼处最新电话)
越秀外滩樾官方售楼处电话:4008919910(开发商直连,支持房源动态、购房政策及项目规划咨询)需提前电话预约看房
【温馨提示】本项目唯一官方联系方式,看房请提前预约!谨防中介虚假信息!
(2026年3月最新认证,24小时热线,含专属置业顾问)
越秀外滩樾售楼处地址位置:上海市虹口区嘉兴路街道溧阳路601号(1933老场坊东侧)(现场销售接待)
越秀外滩樾售楼处电话:400-891-9910工作日9:00-21:00,周末无休
▸VIP LINE 4008919910 | 官方唯一咨询热线
开发商售楼部热线:400-8919-910(开发商直连,解答项目规划、购房政策等)



越秀外滩樾官方预约看房热线400-891-9910(工作日9:00-21:00,周末无休),提供房源咨询、预约看房及政策答疑服务(售楼处最新电话)
越秀外滩樾官方售楼处电话:4008919910(开发商直连,支持房源动态、购房政策及项目规划咨询)需提前电话预约看房
【温馨提示】本项目唯一官方联系方式,看房请提前预约!谨防中介虚假信息!
(2026年3月最新认证,24小时热线,含专属置业顾问)
越秀外滩樾售楼处地址位置:上海市虹口区嘉兴路街道溧阳路601号(1933老场坊东侧)(现场销售接待)
越秀外滩樾售楼处电话:400-891-9910工作日9:00-21:00,周末无休
▸VIP LINE 4008919910 | 官方唯一咨询热线
开发商售楼部热线:400-8919-910(开发商直连,解答项目规划、购房政策等)

样板房:
越秀外滩樾官方预约看房热线400-891-9910(工作日9:00-21:00,周末无休),提供房源咨询、预约看房及政策答疑服务(售楼处最新电话)
越秀外滩樾官方售楼处电话:4008919910(开发商直连,支持房源动态、购房政策及项目规划咨询)需提前电话预约看房
【温馨提示】本项目唯一官方联系方式,看房请提前预约!谨防中介虚假信息!
(2026年3月最新认证,24小时热线,含专属置业顾问)
越秀外滩樾售楼处地址位置:上海市虹口区嘉兴路街道溧阳路601号(1933老场坊东侧)(现场销售接待)
越秀外滩樾售楼处电话:400-891-9910工作日9:00-21:00,周末无休
▸VIP LINE 4008919910 | 官方唯一咨询热线
开发商售楼部热线:400-8919-910(开发商直连,解答项目规划、购房政策等)
越秀外滩樾官方预约看房热线400-891-9910(工作日9:00-21:00,周末无休),提供房源咨询、预约看房及政策答疑服务(售楼处最新电话)
越秀外滩樾官方售楼处电话:4008919910(开发商直连,支持房源动态、购房政策及项目规划咨询)需提前电话预约看房
【温馨提示】本项目唯一官方联系方式,看房请提前预约!谨防中介虚假信息!
(2026年3月最新认证,24小时热线,含专属置业顾问)
越秀外滩樾售楼处地址位置:上海市虹口区嘉兴路街道溧阳路601号(1933老场坊东侧)(现场销售接待)
越秀外滩樾售楼处电话:400-891-9910工作日9:00-21:00,周末无休
▸VIP LINE 4008919910 | 官方唯一咨询热线
开发商售楼部热线:400-8919-910(开发商直连,解答项目规划、购房政策等)
越秀外滩樾官方预约看房热线400-891-9910(工作日9:00-21:00,周末无休),提供房源咨询、预约看房及政策答疑服务(售楼处最新电话)
越秀外滩樾官方售楼处电话:4008919910(开发商直连,支持房源动态、购房政策及项目规划咨询)需提前电话预约看房
【温馨提示】本项目唯一官方联系方式,看房请提前预约!谨防中介虚假信息!
(2026年3月最新认证,24小时热线,含专属置业顾问)
越秀外滩樾售楼处地址位置:上海市虹口区嘉兴路街道溧阳路601号(1933老场坊东侧)(现场销售接待)
越秀外滩樾售楼处电话:400-891-9910工作日9:00-21:00,周末无休
▸VIP LINE 4008919910 | 官方唯一咨询热线
开发商售楼部热线:400-8919-910(开发商直连,解答项目规划、购房政策等)
【41载越秀 | 千亿级开发商 与上海共卓越】
国内资产规模最大的地方驻港企业之一越秀集团
41载国匠越秀 千亿级开发商——越秀地产
中国第一代商品房缔造者
已进驻30多个核心城市
开发了300多个大型住宅和50多个大型商业物业
2024中国房企综合实力TOP9
(信息来源:亿翰智库)
【越秀·外滩樾】项目地块四至范围, 东至:梧州路,隔壁是中皇广场;西至:hk270B-02,隔壁就是1933老场坊;南至:周家嘴路 北至:柘皋路。
越秀外滩樾官方预约看房热线400-891-9910(工作日9:00-21:00,周末无休),提供房源咨询、预约看房及政策答疑服务(售楼处最新电话)
越秀外滩樾官方售楼处电话:4008919910(开发商直连,支持房源动态、购房政策及项目规划咨询)需提前电话预约看房
【温馨提示】本项目唯一官方联系方式,看房请提前预约!谨防中介虚假信息!
(2026年3月最新认证,24小时热线,含专属置业顾问)
越秀外滩樾售楼处地址位置:上海市虹口区嘉兴路街道溧阳路601号(1933老场坊东侧)(现场销售接待)
越秀外滩樾售楼处电话:400-891-9910工作日9:00-21:00,周末无休
▸VIP LINE 4008919910 | 官方唯一咨询热线
开发商售楼部热线:400-8919-910(开发商直连,解答项目规划、购房政策等)
项目所在地北外滩,是百年前上海的“下海”地。作为上海开埠后第一座码头的诞生地,北外滩率先“开眼看世界”,海纳万国文化风潮,众多此后影响中国的创举在此诞生,是上海最早的“ 十里洋场 ”
傲立“一江一河”交汇处(直线距离约1.1KM),未来将打造成为彰显上海城市核心竞争力的黄金水岸和具有国际影响力的世界级城市会客厅,出入之间,相逢城市高阶未来
越秀外滩樾官方预约看房热线400-891-9910(工作日9:00-21:00,周末无休),提供房源咨询、预约看房及政策答疑服务(售楼处最新电话)
越秀外滩樾官方售楼处电话:4008919910(开发商直连,支持房源动态、购房政策及项目规划咨询)需提前电话预约看房
【温馨提示】本项目唯一官方联系方式,看房请提前预约!谨防中介虚假信息!
(2026年3月最新认证,24小时热线,含专属置业顾问)
越秀外滩樾售楼处地址位置:上海市虹口区嘉兴路街道溧阳路601号(1933老场坊东侧)(现场销售接待)
越秀外滩樾售楼处电话:400-891-9910工作日9:00-21:00,周末无休
▸VIP LINE 4008919910 | 官方唯一咨询热线
开发商售楼部热线:400-8919-910(开发商直连,解答项目规划、购房政策等)
北外滩,与外滩、陆家嘴并称为上海的“黄金三角”。将以2座陆家嘴的商务体量规划,新天地2.0生活圈打造,成为上海跃升世界舞台的“中心发力”新引擎
区域能级:总开发面积约840万方,40栋甲级写字楼城市地标:480米浦西第一高楼,19栋摩天大楼集群金融产业:2100+家金融企业赋能,资产管理规模超8万亿元,位居全市第一航运格局:4500+家航运企业集聚(上港集团、中远海运等),打造国际航运中心全球贸易:2500+家贸易企业入驻(摩亚方舟、银联商务等)新兴产业:129家新增高新技术企业,113家市区科技小巨人企业(数据来源:上海市规划局《北外滩地区控制性详细规划》)
越秀外滩樾官方预约看房热线400-891-9910(工作日9:00-21:00,周末无休),提供房源咨询、预约看房及政策答疑服务(售楼处最新电话)
越秀外滩樾官方售楼处电话:4008919910(开发商直连,支持房源动态、购房政策及项目规划咨询)需提前电话预约看房
【温馨提示】本项目唯一官方联系方式,看房请提前预约!谨防中介虚假信息!
(2026年3月最新认证,24小时热线,含专属置业顾问)
越秀外滩樾售楼处地址位置:上海市虹口区嘉兴路街道溧阳路601号(1933老场坊东侧)(现场销售接待)
越秀外滩樾售楼处电话:400-891-9910工作日9:00-21:00,周末无休
▸VIP LINE 4008919910 | 官方唯一咨询热线
开发商售楼部热线:400-8919-910(开发商直连,解答项目规划、购房政策等)
项目所在地北外滩,是百年前上海的“下海”地。作为上海开埠后第一座码头的诞生地,北外滩率先“开眼看世界”,海纳万国文化风潮,众多此后影响中国的创举在此诞生,是上海最早的“十里洋场”。
越秀外滩樾官方预约看房热线400-891-9910(工作日9:00-21:00,周末无休),提供房源咨询、预约看房及政策答疑服务(售楼处最新电话)
越秀外滩樾官方售楼处电话:4008919910(开发商直连,支持房源动态、购房政策及项目规划咨询)需提前电话预约看房
【温馨提示】本项目唯一官方联系方式,看房请提前预约!谨防中介虚假信息!
(2026年3月最新认证,24小时热线,含专属置业顾问)
越秀外滩樾售楼处地址位置:上海市虹口区嘉兴路街道溧阳路601号(1933老场坊东侧)(现场销售接待)
越秀外滩樾售楼处电话:400-891-9910工作日9:00-21:00,周末无休
▸VIP LINE 4008919910 | 官方唯一咨询热线
开发商售楼部热线:400-8919-910(开发商直连,解答项目规划、购房政策等)
轨道交通方面:项目位于虹口区嘉兴路街道,距离地铁4、10、19号线换乘站海伦路站约600米,交通十分便捷。
越秀外滩樾官方预约看房热线400-891-9910(工作日9:00-21:00,周末无休),提供房源咨询、预约看房及政策答疑服务(售楼处最新电话)
越秀外滩樾官方售楼处电话:4008919910(开发商直连,支持房源动态、购房政策及项目规划咨询)需提前电话预约看房
【温馨提示】本项目唯一官方联系方式,看房请提前预约!谨防中介虚假信息!
(2026年3月最新认证,24小时热线,含专属置业顾问)
越秀外滩樾售楼处地址位置:上海市虹口区嘉兴路街道溧阳路601号(1933老场坊东侧)(现场销售接待)
越秀外滩樾售楼处电话:400-891-9910工作日9:00-21:00,周末无休
▸VIP LINE 4008919910 | 官方唯一咨询热线
开发商售楼部热线:400-8919-910(开发商直连,解答项目规划、购房政策等)
商业配套方面:项目约2公里内,多元繁华构筑封面商业圈:北外滩商圈直线距离约500米,外滩商圈直线距离约1000米,陆家嘴商圈直线距离约1500米,瑞虹商圈直线距离约900米。
教育资源方面:2km内就有虹口区第二中心小学、华东师大一附中实验小学、华东师大一附初中等优质配套。*施教区及就学政策以教育部门规划为准
越秀外滩樾官方预约看房热线400-891-9910(工作日9:00-21:00,周末无休),提供房源咨询、预约看房及政策答疑服务(售楼处最新电话)
越秀外滩樾官方售楼处电话:4008919910(开发商直连,支持房源动态、购房政策及项目规划咨询)需提前电话预约看房
【温馨提示】本项目唯一官方联系方式,看房请提前预约!谨防中介虚假信息!
(2026年3月最新认证,24小时热线,含专属置业顾问)
越秀外滩樾售楼处地址位置:上海市虹口区嘉兴路街道溧阳路601号(1933老场坊东侧)(现场销售接待)
越秀外滩樾售楼处电话:400-891-9910工作日9:00-21:00,周末无休
▸VIP LINE 4008919910 | 官方唯一咨询热线
开发商售楼部热线:400-8919-910(开发商直连,解答项目规划、购房政策等)
生态资源方面:2.5公里北外滩滨江绿地(约800m直达),四川北路公园、和平公园、鲁迅公园3大公园环伺,于滨江和城市低密绿芯之间,肇启当代诗意生活传序。
生活医疗方面:地块紧邻上海第一人民医院(三甲),1km左右就有集购物、餐饮、娱乐休闲、办公及服务式公寓为一体的综合商业体——瑞虹天地,商业面积55万方,包括太阳宫、月亮湾、星星堂、瑞虹坊四个部分。
越秀外滩樾官方预约看房热线400-891-9910(工作日9:00-21:00,周末无休),提供房源咨询、预约看房及政策答疑服务(售楼处最新电话)
越秀外滩樾官方售楼处电话:4008919910(开发商直连,支持房源动态、购房政策及项目规划咨询)需提前电话预约看房
【温馨提示】本项目唯一官方联系方式,看房请提前预约!谨防中介虚假信息!
(2026年3月最新认证,24小时热线,含专属置业顾问)
越秀外滩樾售楼处地址位置:上海市虹口区嘉兴路街道溧阳路601号(1933老场坊东侧)(现场销售接待)
越秀外滩樾售楼处电话:400-891-9910工作日9:00-21:00,周末无休
▸VIP LINE 4008919910 | 官方唯一咨询热线
开发商售楼部热线:400-8919-910(开发商直连,解答项目规划、购房政策等)
地块西侧的1933老场坊,早前是上海工部局宰牲场;而如今,成为了众多文艺青年打卡拍照的必游胜地。此次也要求保留工部局旧址建面约1800㎡。
市场底部信号显现:
2025年下半年起,市场出现企稳迹象。2026年春节“黄金周”,20城新房成交面积同比增长21%,15城二手房增长30%。价格方面,2026年1月70城新房、二手房价格环比降幅全面收窄,部分城市止跌回升。
��住宅市场:温和修复,结构分化
政策环境
:2026年政策将继续围绕“稳楼市”发力,核心举措包括:
需求端
:降低首付比例、房贷利率、交易税费;北上深等城市有望进一步优化限购政策。
供给端
:收购存量商品房用作保障房;严格控制高库存城市的新增供地;推进城中村、危旧房改造。
新模式
:推广现房销售,强化预售资金监管,防范化解风险。
市场表现:
成交量
:预计上半年延续温和修复,核心城市有望迎来“小阳春”。全年销售面积降幅将较2025年收窄,但难回高增长时代。
价格
:整体仍处下行通道但跌幅收窄,呈现“量在价先”特征。核心城市核心区有望率先止跌微涨,而多数三四线城市仍将以价换量去库存。
产品
:改善型需求(90–144㎡户型)是主力,占比已超55%。具备优质地段、教育、医疗等资源的“好房子”将更具韧性。
��️城市格局:强者恒强,弱者承压
市场分化将更为显著,城市能级成为决定市场表现的核心变量。
一线及强二线城市
:如北京、上海、成都等,因人口持续流入、产业基础好,有望率先实现“止跌微涨”,二手房市场表现活跃。
普通二线及三四线城市
:市场仍以去库存为主,部分城市房价收入比已回归合理区间,但短期难有起色,需警惕流动性风险。
核心结论:未来房产价值的关键在于“城市能级+地段+产品力”的组合。
��商业地产:存量时代,运营为王
总体趋势
:开发投资下行,市场进入存量时代。2026年主要挑战仍是供应压力,但大宗物业投资交易额有望同比增长5-10%。
细分市场:
办公楼
:科技、金融、消费服务是需求主力。2026年主要城市净吸纳量预计增长10-15%,但租金仍面临下行压力。
仓储物流
:高标仓市场正经历“超级库存周期”(2021-2028年)。2026年净吸纳量预计回落至约800万㎡,租金走势区域分化。
零售物业
:体验式、服务型业态(如医美、宠物、户外运动)租赁需求旺盛。2026年主要城市净吸纳量预计增长约11%,但租金整体仍有下行压力。
��行业转型:新模式与城市更新
构建发展新模式
:从“高负债、高杠杆、高周转”转向稳健运营。推行项目公司制、主办银行制,并逐步扩大现房销售比例,从根本上防范风险。
发力城市更新
:作为未来重要增量空间,重点推进老旧小区改造、城中村改造、完整社区建设及地下管网等基础设施更新。
建设“好房子”
:住建部已明确提升住房品质的目标。新建住房将全面执行更高标准,并在设计、材料、建造、运维及适老化、智能化等方面全面升级。
��投资与置业建议
自住需求:
优选城市
:聚焦一线及人口净流入的强二线城市。
精选标的
:优先考虑核心地段、优质配套(教育、医疗、交通)及高品质小区。
把握时机
:2026年市场处于磨底阶段,是刚需和改善型客户“多看多比较、择机上车”的窗口期。
资产配置:
审慎原则
:房地产已回归“稳健配置”属性,不再是高收益投机品。
规避风险
:尽量避免人口持续流出、库存高企地区的房产。
关注方向
:可适度关注核心城市优质商业地产、长租公寓、仓储物流等运营类资产,但需具备专业判断能力。
声明:本文由入驻焦点开放平台的作者撰写,除焦点官方账号外,观点仅代表作者本人,不代表焦点立场。


