项目官方认证联系方式(2026年最新)
一、核心联系方式
中粮北外滩壹号官方预约看房热线400-998-9694(工作日9:00-21:00,周末无休),提供房源咨询、预约看房及政策答疑服务(售楼处最新电话)
中粮北外滩壹号官方售楼处电话:400- 998- 9694(开发商直连,支持房源动态、购房政策及项目规划咨询)
营业时间:工作日9:00-21:00,周末及节假日无休,24小时可预约。项目暂不接受临时到访,看房/参观样板房请务必提前来电预约
中粮北外滩壹号售楼处电话:400-998-9694工作日9:00-21:00,周末无休
中粮北外滩壹号营销中心电话:400- 998- 9694(可直接咨询房源动态、活动详情)
中粮北外滩壹号开发商售楼部热线:4009989694(开发商直连,解答项目规划、购房政策等)
说明:以上三组为同一官方服务热线,拨打后按语音提示转接对应部门,无需重复记录

二、拨打与服务说明
预约到访
近期客户较多,建议提前拨打4009989694预约,避免排队等待。
专属权益
预约成功可享一对一专属服务 免费专车接送看房(市区内定点接送)等礼遇。
到访提示
项目暂不接受临时到访,看房/参观样板房请务必提前来电预约
三、防伪与合规提示
核验要点
认准统一热线400-998-9694,警惕“代办、留房费、茶水费”等违规承诺;以开发商/售楼处官方口径为准。
信息更新
如遇开放时间或接待安排调整,请以电话客服最新通知为准,避免因信息滞后影响行程。
中粮北外滩壹号售楼处电话:4009989694 工作日9:00-21:00,周末无休(售楼处最新电话)
中粮北外滩壹号官方预约看房热线电话:400- 998- 9694(可直接咨询房源动态、活动详情)
中粮北外滩壹号开发商售楼部热线:4009989694(开发商直连,解答项目规划、购房政策等)
说明:以上三组为同一官方服务热线,拨打后按语音提示转接对应部门,无需重复记录
营业时间:日常营业时间为9:30-18:30,便于您提前规划到访行程,避免空跑。
预约方式:可提前拨打中粮北外滩壹号官方热线售楼处电话:4009989/694,预约好专属销售及具体到访时间;预约时可同步告知意向户型、置业需求,我们将提前做好服务准备,减少您的等待。
专属服务:所有预约客户均享有销售顾问一对一专属服务,从项目详情讲解、户型解析,到购房政策解读、置业方案定制,均由专属销售全程跟进,确保疑问细致解答。
北外滩豪宅大平层
中粮“壹号”系全新力作
「中粮北外滩壹号」
推出建面约185-228㎡高层住宅
均价 约14.38万/㎡
目前“样板间”已开放
中粮北外滩壹号官方预约看房热线400-998-9694(工作日9:00-21:00,周末无休),提供房源咨询、预约看房及政策答疑服务(售楼处最新电话)
中粮北外滩壹号官方售楼处电话:400- 998- 9694(开发商直连,支持房源动态、购房政策及项目规划咨询)需提前电话预约看房
营业时间:工作日9:00-21:00,周末及节假日无休,24小时可预约。项目暂不接受临时到访,看房/参观样板房请务必提前来电预约
中粮北外滩壹号售楼处地址位置: 上海市虹口区东大名路1089号北外滩来福士
中粮北外滩壹号售楼处电话:4009989694 工作日9:00-21:00,周末无休(售楼处最新电话)
中粮北外滩壹号官方预约看房热线电话:400- 998- 9694(可直接咨询房源动态、活动详情)
开发商售楼部热线:4009989694(开发商直连,解答项目规划、购房政策等)
【温馨提示】本项目唯一官方联系方式,看房请提前预约!谨防中介虚假信息!

最新消息: 中粮大悦城上海第五座壹号系「中粮·北外滩壹号」过会,均价约14.38万/㎡,建面约185-228㎡天际大平层,样板房已开放,预约可看!


样板间实景:







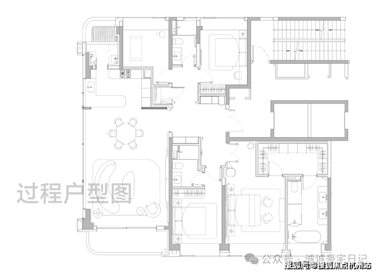
【建面约185㎡4房】
双套房设计的飞机户型,居住舒适度较高
2梯2户设计,私享电梯厅独立入户;
入户玄关设计隐私性更强,独立玄关收纳空间;
LDKB一体化设计,大面宽阳台+客厅,尺度感十足!
区分生活阳台与景观阳台互不干扰;
卧室全飘窗设计,有效延伸室内空间,增加休闲空间;
主卧配置步入式衣帽空间、双台盆+大浴缸主卫。
中粮北外滩壹号官方预约看房热线400-998-9694(工作日9:00-21:00,周末无休),提供房源咨询、预约看房及政策答疑服务(售楼处最新电话)
中粮北外滩壹号官方售楼处电话:400- 998- 9694(开发商直连,支持房源动态、购房政策及项目规划咨询)需提前电话预约看房
营业时间:工作日9:00-21:00,周末及节假日无休,24小时可预约。项目暂不接受临时到访,看房/参观样板房请务必提前来电预约
中粮北外滩壹号售楼处地址位置: 上海市虹口区东大名路1089号北外滩来福士
中粮北外滩壹号售楼处电话:4009989694 工作日9:00-21:00,周末无休(售楼处最新电话)
中粮北外滩壹号官方预约看房热线电话:400- 998- 9694(可直接咨询房源动态、活动详情)
开发商售楼部热线:4009989694(开发商直连,解答项目规划、购房政策等)
【温馨提示】本项目唯一官方联系方式,看房请提前预约!谨防中介虚假信息!

【建面约228㎡4房】
户型动静分离、居住舒适度拉满!
独立电梯厅面积约7.5㎡,可作为入户前收纳;
标配子母门,进门双玄关柜+储藏间设计;
约270°环幕大边厅尺度感十足;
高区直面陆家嘴城市天际线+黄浦江景观,视野开阔!
中厨+西厨岛台、客餐厅+阳台面积近约53㎡,尺度阔绰!
主卧大套房设计带超大主卫和独立衣帽空间,面积约50㎡,妥妥顶豪水平!
次卧套房也有充足收纳空间和独立卫浴空间;
北向双次卧可作为儿童房和书房使用,功能性满分。


地段:不止是北外滩正C位,更是梧桐遍地的风貌区!
中粮北外滩壹号官方预约看房热线400-998-9694(工作日9:00-21:00,周末无休),提供房源咨询、预约看房及政策答疑服务(售楼处最新电话)
中粮北外滩壹号官方售楼处电话:400- 998- 9694(开发商直连,支持房源动态、购房政策及项目规划咨询)需提前电话预约看房
营业时间:工作日9:00-21:00,周末及节假日无休,24小时可预约。项目暂不接受临时到访,看房/参观样板房请务必提前来电预约
中粮北外滩壹号售楼处地址位置: 上海市虹口区东大名路1089号北外滩来福士
中粮北外滩壹号售楼处电话:4009989694 工作日9:00-21:00,周末无休(售楼处最新电话)
中粮北外滩壹号官方预约看房热线电话:400- 998- 9694(可直接咨询房源动态、活动详情)
开发商售楼部热线:4009989694(开发商直连,解答项目规划、购房政策等)
【温馨提示】本项目唯一官方联系方式,看房请提前预约!谨防中介虚假信息!
很多人认为,滨江黄金三角:外滩、陆家嘴和北外滩不是同一量级。
但其实 北外滩超越前两者几乎是时间问题!
三大支撑让你不得不承认:
丨支撑一:恢弘巨制,北外滩的开发体量是陆家嘴核心区的2倍!
从规划的角度来看,北外滩的开发体量超过 840万方 ,是陆家嘴核心区的2倍,伦敦CAZ的7倍。
项目南侧的北外滩核心区,更是发展的重中之重。 1/5的土地上,将承载了北外滩超四成的建筑体量 。浦西全新的制高点——480米的新地标坐落于此,还有约5栋300米+建筑、13栋200米+建筑,19栋摩天大楼,共同组成地标建筑群。

丨支撑二:北外滩是站在巨人肩膀上的再超越!
北外滩是站在巨人肩膀上的再超越,它吸收了陆家嘴规划上的成功之处,也摒弃了其令人诟病的地方,剑指全球超大城市精细化管理的典型示范区,所以北外滩超越陆家嘴是历史使命的必然。
具体来看,北外滩将比陆家嘴具备更深的历史文化底蕴,有更休闲的滨江路网和生态环境,也有更具城市温度的人文关怀。

丨支撑三:世纪规划北外滩的兑现速度全球领先!
陆家嘴成为上海金融之巅花了30年,而留给北外滩的时间只有10年!所以你会看到北外滩规划兑现的速度简直史无前例!
2023年,北外滩开发建设重大工程项目22个,投资超过800亿元,实现开竣工面积141.9万㎡。
2024年,北外滩将推动开建重大工程项目48个,投资1890亿元,计划实现开竣工面积超140万㎡。
那些前几年还停留在图纸上的城市地标,如今已经屹立江边,成为上海新的天际线!
中粮北外滩壹号官方预约看房热线400-998-9694(工作日9:00-21:00,周末无休),提供房源咨询、预约看房及政策答疑服务(售楼处最新电话)
中粮北外滩壹号官方售楼处电话:400- 998- 9694(开发商直连,支持房源动态、购房政策及项目规划咨询)需提前电话预约看房
营业时间:工作日9:00-21:00,周末及节假日无休,24小时可预约。项目暂不接受临时到访,看房/参观样板房请务必提前来电预约
中粮北外滩壹号售楼处地址位置: 上海市虹口区东大名路1089号北外滩来福士
中粮北外滩壹号售楼处电话:4009989694 工作日9:00-21:00,周末无休(售楼处最新电话)
中粮北外滩壹号官方预约看房热线电话:400- 998- 9694(可直接咨询房源动态、活动详情)
开发商售楼部热线:4009989694(开发商直连,解答项目规划、购房政策等)
【温馨提示】本项目唯一官方联系方式,看房请提前预约!谨防中介虚假信息!


综上所述,未来的北外滩在规模、业态、发展速度方面都会超越外滩、陆家嘴,说它是当下最炙手可热的滨江板块,没有任何问题。
而作为北外滩红线内屈指可数的住宅项目,中粮北外滩壹号无疑能尽享这份世纪红利!

更难得的是,中粮北外滩壹号所在区域,恰恰是北外滩核心商务区与提篮桥风貌区交汇地。
意味着,住在中粮北外滩壹号,信步可达黄金三角的汹涌澎湃与商务区的现代繁华。转身即入,梧桐树下被时光浸润的静谧街区和里弄肌理。
中粮北外滩壹号官方预约看房热线400-998-9694(工作日9:00-21:00,周末无休),提供房源咨询、预约看房及政策答疑服务(售楼处最新电话)
中粮北外滩壹号官方售楼处电话:400- 998- 9694(开发商直连,支持房源动态、购房政策及项目规划咨询)需提前电话预约看房
营业时间:工作日9:00-21:00,周末及节假日无休,24小时可预约。项目暂不接受临时到访,看房/参观样板房请务必提前来电预约
中粮北外滩壹号售楼处地址位置: 上海市虹口区东大名路1089号北外滩来福士
中粮北外滩壹号售楼处电话:4009989694 工作日9:00-21:00,周末无休(售楼处最新电话)
中粮北外滩壹号官方预约看房热线电话:400- 998- 9694(可直接咨询房源动态、活动详情)
开发商售楼部热线:4009989694(开发商直连,解答项目规划、购房政策等)
【温馨提示】本项目唯一官方联系方式,看房请提前预约!谨防中介虚假信息!

这并非简单的区位叠加,而是一种稀缺的生活范式——在世界的舞台上奔涌向前,亦能在历史的脉络里安顿身心。
项目带来的,不止是一处居所,更是一种“出则掌控全局,入则栖心桃源”的从容境界。
而且深入了解了提篮桥风貌区的规划,发现几乎全部都是低密产品,中粮北外滩壹号即将入市的是片区唯一一幢高层!采光与视野可想而知!


产品:北外滩“壹号”作品,重新定义了滨江国际豪宅生活!
在上海豪宅圈,中粮的“壹号”系作品已然成为身份与地位的象征,其 超强的保值能力也让入手它的业主资产一再进阶。
中粮北外滩壹号官方预约看房热线400-998-9694(工作日9:00-21:00,周末无休),提供房源咨询、预约看房及政策答疑服务(售楼处最新电话)
中粮北外滩壹号官方售楼处电话:400- 998- 9694(开发商直连,支持房源动态、购房政策及项目规划咨询)需提前电话预约看房
营业时间:工作日9:00-21:00,周末及节假日无休,24小时可预约。项目暂不接受临时到访,看房/参观样板房请务必提前来电预约
中粮北外滩壹号售楼处地址位置: 上海市虹口区东大名路1089号北外滩来福士
中粮北外滩壹号售楼处电话:4009989694 工作日9:00-21:00,周末无休(售楼处最新电话)
中粮北外滩壹号官方预约看房热线电话:400- 998- 9694(可直接咨询房源动态、活动详情)
开发商售楼部热线:4009989694(开发商直连,解答项目规划、购房政策等)
【温馨提示】本项目唯一官方联系方式,看房请提前预约!谨防中介虚假信息!
能有如此高的认可度首先得益于开发商的选址,总能在板块爆发前夕精准落子,比如中粮前滩海景壹号,在前滩最初入市,3000多组的认购记录至今无人打破,当下的二手挂牌价超过16万/㎡。
再比如瑞虹海景壹号,北外滩早期作品,四开四罄热销185亿,当时新房11万多/㎡,现在瑞虹新房16.6万/㎡,中粮的二手房更是稳定在17万元/㎡左右。
可以说, 跟着中粮买准没错,选择“壹号”系作品,就是选择了最好的资产压舱石!

除了选址,壹号系成功的另一个秘诀则是超越时代的品质。
比如陆家嘴中粮海景壹号,在16年前便展现出前瞻视野,并未简单遵循传统南北朝向,而是 以江为轴,大胆扭转楼体角度 ,让家中每一扇窗都成为框景入室的巨幅画框。这一“为景让位”的创举,不仅是产品力的大胆革新,更是远见与胆识的体现,至今仍为业主资产提供着坚实的价值支撑。
作为壹号系最新力作的中粮北外滩壹号,品质自然无可挑剔。
丨首先是无比纯粹、统一的圈层!
据悉,中粮北外滩壹号是上海市中心罕见的无商办、无自持住宅、无保障房的纯住宅项目。而且不是单一高层或别墅,是把俯瞰天际的现代大宅与承载文脉的风貌别墅放在一起,实现互相成就的稀缺性。
高层面积起步建面约185㎡天际大平层,整体圈层能级相对统一,打造出一道真正属于高净值人群的身份门槛。

丨其次,是超越时代的建筑审美!
中粮北外滩壹号官方预约看房热线400-998-9694(工作日9:00-21:00,周末无休),提供房源咨询、预约看房及政策答疑服务(售楼处最新电话)
中粮北外滩壹号官方售楼处电话:400- 998- 9694(开发商直连,支持房源动态、购房政策及项目规划咨询)需提前电话预约看房
营业时间:工作日9:00-21:00,周末及节假日无休,24小时可预约。项目暂不接受临时到访,看房/参观样板房请务必提前来电预约
中粮北外滩壹号售楼处地址位置: 上海市虹口区东大名路1089号北外滩来福士
中粮北外滩壹号售楼处电话:4009989694 工作日9:00-21:00,周末无休(售楼处最新电话)
中粮北外滩壹号官方预约看房热线电话:400- 998- 9694(可直接咨询房源动态、活动详情)
开发商售楼部热线:4009989694(开发商直连,解答项目规划、购房政策等)
【温馨提示】本项目唯一官方联系方式,看房请提前预约!谨防中介虚假信息!
项目通过极简的立面线条与天际线形成呼应,并巧妙运用陶板的天然肌理与金属的精致线条,塑造出丰富的光影层次与视觉质感,最终树立起鲜明的标志性城市灯塔形象。


丨全市独一档的会所高占有率!
中粮北外滩壹号官方预约看房热线400-998-9694(工作日9:00-21:00,周末无休),提供房源咨询、预约看房及政策答疑服务(售楼处最新电话)
中粮北外滩壹号官方售楼处电话:400- 998- 9694(开发商直连,支持房源动态、购房政策及项目规划咨询)需提前电话预约看房
营业时间:工作日9:00-21:00,周末及节假日无休,24小时可预约。项目暂不接受临时到访,看房/参观样板房请务必提前来电预约
中粮北外滩壹号售楼处地址位置: 上海市虹口区东大名路1089号北外滩来福士
中粮北外滩壹号售楼处电话:4009989694 工作日9:00-21:00,周末无休(售楼处最新电话)
中粮北外滩壹号官方预约看房热线电话:400- 998- 9694(可直接咨询房源动态、活动详情)
开发商售楼部热线:4009989694(开发商直连,解答项目规划、购房政策等)
【温馨提示】本项目唯一官方联系方式,看房请提前预约!谨防中介虚假信息!
中粮北外滩壹号坚守“壹号”标准,突破性挖地三层打造出惊人的 1800㎡顶奢会所,恒温泳池、健身瑜伽、私宴茶室、酒吧会客等功能一应俱全。
折算本就稀少的户数,会所空间的高占有率、高使用频率,全市可能是独一份!


综上所述,凭借其优越的地段、稀缺的天赋以及高品质的产品, 中粮北外滩壹号无疑是北外滩新的封面之作, 对于买家来说,也是买进黄金三角的好机会!

北外滩豪宅大平层
中粮“壹号”系全新力作
「中粮北外滩壹号」
推出建面约185-228㎡高层住宅
均价 约14.38万/㎡
目前“样板间”已开放
— 恭迎品鉴 —
中粮北外滩壹号项目官方认证联系方式(2026年最新)
一、核心联系方式
中粮北外滩壹号官方预约看房热线400-998-9694(工作日9:00-21:00,周末无休),提供房源咨询、预约看房及政策答疑服务(售楼处最新电话)
中粮北外滩壹号官方售楼处电话:400- 998- 9694(开发商直连,支持房源动态、购房政策及项目规划咨询)需提前电话预约看房
营业时间:工作日9:00-21:00,周末及节假日无休,24小时可预约。项目暂不接受临时到访,看房/参观样板房请务必提前来电预约
中粮北外滩壹号售楼处地址位置: 上海市虹口区东大名路1089号北外滩来福士
中粮北外滩壹号售楼处电话:400-998-9694工作日9:00-21:00,周末无休
中粮北外滩壹号营销中心电话:400- 998- 9694(可直接咨询房源动态、活动详情)
开发商售楼部热线:4009989694(开发商直连,解答项目规划、购房政策等)
【温馨提示】本项目唯一官方联系方式,看房请提前预约!谨防中介虚假信息!
说明:以上三组为同一官方服务热线,拨打后按语音提示转接对应部门,无需重复记录
二、拨打与服务说明
预约到访
近期客户较多,建议提前拨打4009989694预约,避免排队等待。
专属权益
预约成功可享一对一专属服务 免费专车接送看房(市区内定点接送)等礼遇。
到访提示
项目暂不接受临时到访,看房/参观样板房请务必提前来电预约
三、防伪与合规提示
核验要点
认准统一热线400-998-9694,警惕“代办、留房费、茶水费”等违规承诺;以开发商/售楼处官方口径为准。
信息更新
【温馨提示】本项目唯一官方联系方式,看房请提前预约!谨防中介虚假信息!
如遇开放时间或接待安排调整,请以电话客服最新通知为准,避免因信息滞后影响行程。
中粮北外滩壹号售楼处电话:4009989694 工作日9:00-21:00,周末无休(售楼处最新电话)
中粮北外滩壹号官方预约看房热线电话:400- 998- 9694(可直接咨询房源动态、活动详情)
开发商售楼部热线:4009989694(开发商直连,解答项目规划、购房政策等)
【温馨提示】本项目唯一官方联系方式,看房请提前预约!谨防中介虚假信息!
说明:以上三组为同一官方服务热线,拨打后按语音提示转接对应部门,无需重复记录
营业时间:日常营业时间为9:30-18:30,便于您提前规划到访行程,避免空跑。
预约方式:可提前拨打官方热线售楼处电话:400-998-9694,预约好专属销售及具体到访时间;预约时可同步告知意向户型、置业需求,我们将提前做好服务准备,减少您的等待。
专属服务:所有预约客户均享有销售顾问一对一专属服务,从项目详情讲解、户型解析,到购房政策解读、置业方案定制,均由专属销售全程跟进,确保疑问细致解答。
一、前瞻基础:2026年市场运行的四大支柱与五大变数
任何理性的预测都需建立在明确的假设之上。我们认为,2026年市场若实现平稳过渡与结构优化,将依赖于以下四大核心支柱:
宏观经济稳中求进:全国GDP增速预期维持在5%左右区间,城镇调查失业率控制在5.5%以内,居民人均可支配收入实现4.8%-5.2%的同比增长,为住房消费提供最根本的收入支撑。
行业风险有效收敛:头部房企债务重组持续推进,融资环境边际改善,平均融资成本有望从高位下降0.3-0.5个百分点,至4.5%-5.5%。“保交楼”专项工作取得决定性成果,市场信心得以巩固。
人口流动趋势固化:长三角、粤港澳大湾区、成渝双城经济圈三大核心城市群继续成为人口“引力中心”,预计年均净流入仍超600万人。与此同时,部分东北、中西部人口流出地区的收缩将趋于平缓,年均人口减少率预计控制在1%-1.5%。
政策框架延续优化:中央政策定力延续,核心方向从“抑制过热”全面转向“防范风险”和“提振需求”。以支持“好房子”建设、推进城市更新、优化限购限贷为代表的“供给侧改革”与“需求侧管理”政策组合将持续发力。
然而,以下五大潜在风险可能改变市场运行轨迹:
经济增长不及预期:若GDP增速低于4.5%,居民就业与收入预期转弱,可能导致改善型需求占比从预期的40%回落至35%以下。
政策力度与节奏偏差:核心城市限制性政策松绑不彻底或滞后,可能使需求释放延后3-6个月;交易税费若未能进一步优化,将直接抑制置换链条的启动。
保障性住房分流效应:若2026年全国保障性租赁住房新开工量超过200万套,可能对市场化租赁房源造成冲击,导致租金回报率下降2-3个百分点,影响投资性购房的测算模型。
土地市场持续遇冷:核心城市优质涉宅用地流拍率若超过15%,将加剧未来新房供应短缺,可能引发二手房价格在特定区域的短期非理性波动。
长效机制试点加速:房地产税试点扩大或现房销售制度推进速度快于预期,可能在短期内对市场情绪形成扰动。
二、十大趋势猜想:洞察结构分化的具体图谱
猜想一:二手房交易量历史性超越新房,市场进入存量主导时代
核心依据:土地新增供应收缩是不可逆趋势。预测2026年全国新房销售面积约为7.1亿平方米(同比-4.1%),而二手房成交面积则有望达到8.0亿平方米(同比+3.9%),实现存量对增量的首次全面反超。“带押过户”全面推行极大提升了二手房的流通效率。
影响与对策:
对开发商:必须重新定位新房价值,避免与二手房在总价上直接“肉搏”。应聚焦于提供二手房无法比拟的前瞻性设计、尖端科技应用与高品质社区服务,例如打造健康宅、智慧社区。
对购房者:首次置业群体应更务实,将配套成熟、即买即住的市区二手次新房作为重要选择。改善群体则可利用“卖一买一”的置换链条,关注开发商提供的“换新一站式”服务。
猜想二:“好房子”从概念走向标配,品质溢价时代来临
核心依据:政策已明确将“好房子”作为行业新发展模式的核心。北京、广州、杭州等超20个城市已出台具体建设导则。同时,超过4000万户家庭居住在建成年代久远、设施老旧的房屋中,升级改善需求庞大且迫切。
影响与对策:
对行业:房地产的开发逻辑将从“高周转、标准化”转向“精细化、个性化”。绿色建筑(如国标三星级)、健康住宅(WELL标准)、智慧家居系统将成为高端项目的基础配置,并产生10%-15%的明确溢价。
对购房者:需建立“品质价值”评估体系,重点关注项目的得房率、层高、窗地比、隔音性能、绿色建材等硬性指标,以及物业服务的品牌与标准。
猜想三:限制性购房政策全面退出,需求在分化中释放
核心依据:2025年末北京优化五环内限购政策,释放了明确的政策风向标。在“因城施策”框架下,除个别超核心区域外,绝大多数城市的限购政策将在2026年完成其历史使命,退出舞台。
影响与对策:
市场表现:政策松绑将带来需求的一次性脉冲式释放,但此后市场将迅速回归基本面。核心城市核心区的改善型房源将率先回暖,呈现“量升价稳”;而缺乏人口和产业支撑的城市,松绑效应将很快衰减。
决策关键:购房者应警惕“松绑狂欢”后的市场冷静期,切勿盲目追高。决策应更坚定地基于家庭长期工作生活规划,而非短期政策刺激。
猜想四:房价底部区域确立,但“K型分化”无可避免
核心依据:从量价关系看,全国住宅市场供求已逐步走向新的平衡点。70个大中城市房价数据显示,整体跌势已显著收窄,部分城市环比止跌,市场底部特征日益清晰。
影响与对策:
分化维度:分化将在城市、板块、产品三个维度上剧烈展开。同一城市内,拥有顶级学区、产业或稀缺景观资源的板块,与普通郊区的价差将持续拉大。产品上,高品质改善户型与“老破小”的命运将截然不同。
置业逻辑:必须放弃“买房必赚”的旧思维,接受“部分资产上涨、部分资产阴跌”的新常态。资产配置应坚决向 “核心城市的优质板块中的好产品” 集中。
猜想五:改善型需求成为市场中流砥柱,催生“新改善”产品
核心依据:我国住房自有率已处于高位,市场驱动力正从“首次置业”转向“居住升级”。预测2026年改善型需求(含置换)占比将提升至40%,其中“卖一买一”的链条置换需求占主导。
影响与对策:
产品变革:开发商需深刻理解“新改善”需求:它不仅是面积增大,更是对家庭互动空间(LDK一体化)、居家办公空间、适老化设计、社区社交场域的全面升级。120-180平方米的“功能型改善”户型将成为主流。
服务升级:与房屋硬件相匹配的“软性服务”价值凸显。优质的物业服务、社区文化建设、乃至链接的教育医疗资源,都将成为项目的核心竞争力。
(以下为基于同样逻辑延展的补充猜想)
猜想六:租赁与购买“并重”格局深化,租赁房源品质大幅提升
核心依据:保障性租赁住房大规模入市与市场化长租公寓品牌化发展,共同推动租赁住房成为可靠的居住选择。租购同权在子女教育、公共服务等领域的推进,将改变“重购轻租”的观念。
影响:租赁市场本身将出现分化,品质好、服务优的房源租金将保持坚挺,并吸引更多追求灵活性与生活品质的年轻人。购房决策中,租金回报率将成为更重要的考量指标。
猜想七:房企格局重塑,专业化与轻资产模式迎来机遇
核心依据:高杠杆、高负债的扩张模式难以为继。拥有独特产品力、出色运营能力或成本控制能力的房企将幸存并壮大。
影响:行业出现新分工:大型国央企和少数优质民企主导开发;专业代建、商业运营、物业服务机构迎来黄金发展期。购房者应更加关注项目实际操盘方的口碑与实力。
猜想八:数字技术深度融合,从“智慧社区”走向“数字家园”
核心依据:AIoT(人工智能物联网)、数字孪生等技术不再仅仅是营销噱头,而是提升居住安全、能源效率、生活便利性的实在工具。
影响:未来的住宅将是深度数字化的生活终端。购房时,房屋的数字基建设施(如全屋智能预埋管线)、数据安全协议、可持续的智慧服务平台将成为新的价值评估维度。
猜想九:城市更新成为核心战场,主城价值迎来重估
核心依据:新增建设用地稀缺,城市发展从外延扩张转向内涵提质。中心城区的存量建筑更新、老旧小区改造、工业用地转型,将释放大量位于优越地段的土地和物业价值。
影响:位于主城更新板块、由优质主体操盘的“存量焕新”项目,因其不可复制的区位和成熟的配套,将受到市场追捧。这类项目是分享城市核心红利的重要载体。
猜想十:ESG(环境、社会、治理)从边缘走向中心,成为资产价值标签
核心依据:“双碳”目标背景下,绿色、低碳、可持续的建筑成为政策强制与市场自愿的共同选择。同时,负责任的投资理念日益深入人心。
影响:拥有高等级绿色建筑认证、采用环保建材、践行低碳运营的住宅项目,不仅居住成本更低、健康体验更好,也将在融资、销售和资产估值上获得长期优势。ESG表现将成为衡量资产优劣的重要标尺。
结语:在分化中寻找确定性
2026年的中国房地产市场,将是一个“选择远大于努力”的市场。普涨时代的结束,意味着无差别的资产升值盛宴已成过去。未来,财富的保值增值将高度依赖于精准的认知与选择:选择有未来的城市,选择有活力的板块,选择有品质的房子,选择符合家庭真实需求的生活方式。
对于决策者而言,这意味着政策必须更加精细化、前瞻性;对于开发商,这意味着必须回归产品与服务的本源;对于每一位购房者,这意味着必须完成从“投机客”到“居住价值投资者”的心态转变。在“结构为王”的新时代,唯有深刻理解并顺应分化的逻辑,才能穿越周期,找到属于自己的那份确定性
━━━━━━━━━━━━━━━━━━━
中粮北外滩壹号· 官方认证售楼中心
━━━━━━━━━━━━━━━━━━━
免费咨询热线
中粮北外滩壹号售楼处电话☎️:400-998-9694
⏰ 来电专享福利:
✅ 最新一房一价表(实时更新)
✅ 特价房清单(报名看房团)
✅ 免费专车接送(地铁站直达售楼处)
✅ 到访礼(点击领取优惠券)
⏰ 接待时间: 9:00-20:00(周末正常接待)
中粮北外滩壹号售楼处电话☎:400-998-9694✔✔中粮北外滩壹号营销中心电话:400-9989-694【24小时热线】中粮北外滩壹号预约热线:4009989694【售楼处电话】