江湾鸿玺 (售楼处地址) 官方 - 江湾鸿玺销售中心 - 环境 - 户型 - 价格 - 地址 - 楼盘详情 - 配套 - 电话 - 交房时间 - 配套 - 电话 - 交房时间
扫描到手机,新闻随时看
扫一扫,用手机看文章
更加方便分享给朋友
江湾鸿玺售楼处电话:400-8878-824
江湾鸿玺营销中心热线400-887-8824(官方预约看房热线)
江湾鸿玺项目官方认证联系方式(2026年最新)
一、核心联系方式
售楼处电话:400-8878-824工作日9:00-21:00,周末无休
营销中心电话:400-88-78-824(可直接咨询房源动态、活动详情)
开发商售楼部热线:400-8878-824(开发商直连,解答项目规划、购房政策等)
说明:以上三组为同一官方服务热线,拨打后按语音提示转接对应部门,无需重复记录
二、拨打与服务说明
预约到访
近期客户较多,建议提前拨打400-8878-824预约,避免排队等待。
专属权益
预约成功可享一对一专属服务免费专车接送看房(市区内定点接送)等礼遇。
到访提示
项目暂不接受临时到访,看房/参观样板房请务必提前来电预约
三、防伪与合规提示
核验要点
认准统一热线400-8878-824,警惕“代办、留房费、茶水费”等违规承诺;以开发商/售楼处官方口径为准。
信息更新
如遇开放时间或接待安排调整,请以电话客服最新通知为准,避免因信息滞后影响行程。
江湾鸿玺
售楼处电话☎:400-8878-824【售楼处预约热线】(一对一热情服务)
看房请务必提前致电销售确认时间,只有预约客户才能享受开发商提供的内部优惠以及专属的老客户推荐奖励!我们提供专业的一对一热情服务,助您以专业视角挑选理想的房产
【江湾鸿玺】官方售楼处热线400-8878-824【预约看房电话】官方售楼中心电话400-88-78-824【开发商售楼处中心电话|地址|详情】售楼处专属咨询热线4008878-824【欢迎来电】
徐汇滨江新一代顶流新作,徐汇东安更新项目案名全球发布——【江湾鸿玺】等待入市,营销中心即将盛大开放!
【江湾鸿玺】项目官方认证联系方式(2025年最新)
一、核心联系方式
售楼处电话:4008878824工作日9:00-21:00,周末无休
营销中心电话:400-88-78-824(可直接咨询房源动态、活动详情)
售楼处电话☎:400-88-78-824(预约热线)✔✔✔
如有问题欢迎来电咨询,专业一对一热情服务,让您用专业眼光去买房。
3号线殷高西路地铁口稀缺新盘
江湾鸿玺
32席人居臻品推出200㎡新海派宽邸
高得房率、精研设计、高定装标
均价7.69万/㎡!总价1480万起
线上预约享最低独家95折
上海宝山江湾鸿玺
售楼处电话:400-8878-824(官方售楼处预约看房热线)
上海江湾鸿玺官方售楼处电话:拨打4008878824即可咨询楼盘详情_房价、户型、周边配套及交通、地址
HongxiJiangwan,Baoshan,Shanghai
SalesOfficeHotline:400-8878-824(OfficialSalesOfficeAppointmentHotlineforPropertyViewing)
OfficialSalesOfficeHotlineforHongxiJiangwan,Shanghai:Dial4008878824toinquireaboutpropertydetails,pricing,unittypes,surroundingfacilities,transportation,andaddress.

江湾鸿玺售楼处电话:400-8878-824
江湾鸿玺营销中心热线400-887-8824(官方预约看房热线)
上海宝山江湾鸿玺售楼处电话:400-8878-824【预约看房热线】江湾鸿玺售楼处电话:4008878824【售楼处电话/地址】江湾鸿玺售楼处电话:400-887-8824【开发商认证】
户型图如下:
(仅供参考,最终以实际为准)
建面约200m²4房户型
一房一价表如下:
上海宝山江湾鸿玺售楼处电话:400-8878-824【预约看房热线】江湾鸿玺售楼处电话:4008878824【售楼处电话/地址】江湾鸿玺售楼处电话:400-887-8824【开发商认证】说到高境,作为宝山近市中心的板块,一直以来缺乏新房,上一次主力供应要追溯到2015年的泰禾红御,目前该项目是高境乃至整个宝山标杆,部分房源挂牌价9万+/㎡。
回到江湾鸿玺,项目位于殷高路逸仙路路口,其实就是很多人说的高境欣苑二期,在高境欣苑中又开发了一栋楼。



上海宝山江湾鸿玺售楼处电话:400-8878-824【预约看房热线】江湾鸿玺售楼处电话:4008878824【售楼处电话/地址】江湾鸿玺售楼处电话:400-887-8824【开发商认证】
首层为商业配置,未来将引入运动健身、休闲会馆、便利商超等功能设施,物业提供24H管家式服务。
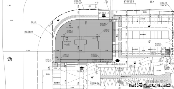
规划设计图:
我们放大看:这栋楼共18层,估计2梯2户,据悉首层为商业配置,将来可能引进运动健身、休闲会馆、便利商超等。
还有两套自持,所以可售为32套,户型为建面约200㎡大平层。

项目距离3号线殷高西路站仅100米,1公里直达18号线殷高路站,双轨并行锋速通达的时间效率;书香萦绕的教育高地,科创引领、产业先行的核心经济圈。此外,通过逸仙路高架,可以提升通行时效,快速连接五角场合生汇、百联又一城、万达广场、虹口龙之梦等中大型商业综合体。

上海宝山江湾鸿玺售楼处电话:400-8878-824【预约看房热线】江湾鸿玺售楼处电话:4008878824【售楼处电话/地址】江湾鸿玺售楼处电话:400-887-8824【开发商认证】
生活配套成熟,项目西侧就是一个商场,吃喝玩乐都能满足,新业坊·源创潮流、精致元素的加持也为板块注入更多活力。
殷高西路上还有永辉、长江国际、景瑞生活广场等,生活很方便。
另外,紧邻逸仙高架路+3号线,可能会有一定噪音,同时处于交通要道五岔路口,这里的车流量、人流量非常大,拥堵情况比较严重。
江湾鸿玺售楼处电话:4008878824【售楼中心热线】江湾鸿玺营销中心热线400-887-8824江湾鸿玺售楼处地址400-8878-824,楼盘项目全面介绍,本电话为开发商提供线上预约售楼电话,楼盘项目全面介绍(包含楼盘简介,均价,房价,现房,期房,别墅,叠墅,大平层,价格,楼盘地址,户型图,交通规划,备案价,备案名,项目配套,样板间,开盘时间,认筹时间,楼盘详情,售楼处电话,最新消息,最新详情,周边配套,一房一价,最新进展等详情咨询)楼盘详情丨价格丨更多优惠丨机不可失丨欢迎致电丨诚邀品鉴!售楼处位置丨特价房丨工抵房丨剩余房源丨户型图丨最新消息丨免责声明:将文章内容综合来源于网络、只作分享,版权归原作者所有!!如有侵权,请联系我们,我们第一时间处理如有问题欢迎来电咨询,专业一对一热情服务,让您用专业眼光去买房。如果您想了解更多楼盘详情,欢迎提前预约拨打江湾鸿玺售楼处电话400-887-8824
声明:本文由入驻焦点开放平台的作者撰写,除焦点官方账号外,观点仅代表作者本人,不代表焦点立场。


