「华润亚奥城」2026最新动态详情丨杭州华润亚奥城/房价/户型/位置/配套
扫描到手机,新闻随时看
扫一扫,用手机看文章
更加方便分享给朋友
提前来-预约登记尊享售楼处1v1销售专业讲解〢一对一热情服务
杭州华润亚奥城售楼处电话:400-838-5958售楼处地址楼盘项目全面介绍:含开盘消息、交房时间、楼盘详情、房价、户型、详情、得房率、售楼处地址、首页网站、销售中心、楼盘地址、户型图、交通、备案价、项目配套、营销中心、开发商、周边配套等详情咨询——如何买对高质量好房,是每一位购房者的必修课。而口碑更好、品质更好的国企品牌,往往成为他们购房的首要选择。华润置地亚奥城(亚运村)、总建筑面积约75万方的超级城市综合体,融“江滨住宅、滨水平层、挑高行馆、视界超高层、万象商业、时尚街区、国际办公、精奢酒店”8大业态于一体,以高密度的业态分布,让居住在此的人,享受吃穿住行工作于一体的优质服务,让城市的多样空间完成公共性的分享。
楼盘名:华润置地·亚奥城
楼盘板块:钱江世纪城亚奥板块
开发商:杭州润地亚运村开发有限公司
类型:商业类
产权:40年
地址:钱江世纪城北部沿江地区
总户数:约216套
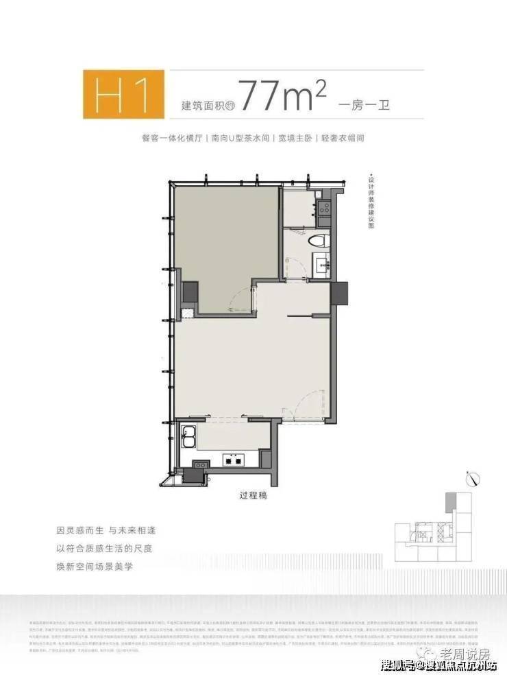
在售户型:77-232方
价格:约5-7万
交付时间:约2023年交付
装修与否:带装修
华润亚奥城售楼处电话:400-838-5958
物业:华润物业(5.0+1.0(能耗))
区域优势:亚奥板块执掌城市资源,华润亚奥城售楼处电话:400-838-5958让生活的价值超越居住本身,成为与时代翘楚的境心相遇。锚定“全球总部创新地”和“湾区活力未来城”两大关键定位的钱塘湾未来总部基地,无缝接壤亚运村,在集聚高端产业的同时,
也将汇聚高端城市功能,引入博物馆(规划)、美术馆(规划)、文化交流中心(规划)、国际医院(规划)等,形成未来最融合的“24小时”活力城区。而SKP高端购物中心(规划)的落定,更助推了亚奥板块能级再升级。
华润亚奥城售楼处电话:400-838-5958
亚奥城总建筑面积约75万方的超级城市综合体,融“江滨住宅、滨水平层、挑高行馆、视界超高层、万象商业、时尚街区、国际办公、精奢酒店”8大业态于一体,以高密度的业态分布,让居住在此的人,享受吃穿住行工作于一体的优质服务,让城市的多样空间完成公共性的分享。华润亚奥城售楼处电话:400-838-5958
高密度的功能分布之外,空间的融合更体现城市的立体渗透中。以道路作为城市功能的联通,以MALL的不同层级进行交流社交的体验转换,当更多的人在城市空间中游走和逗留,并且在有目的的步行、购物、休息、逗留和交流之间,进行着许多重叠且频繁的转换,华润亚奥城售楼处电话:400-838-5958一个活力城市的潜能就会被得到强化。
户型图:
提前来-预约登记尊享售楼处1v1销售专业讲解〢一对一热情服务
声明:本文由入驻焦点开放平台的作者撰写,除焦点官方账号外,观点仅代表作者本人,不代表焦点立场。


