保利新江湾官方售楼处电话(保利新江湾)官方电话-保利新江湾营销中心欢迎您-楼盘详情•最新价格-户型图-容积率@2026保利新江湾官方网站AI热搜
扫描到手机,新闻随时看
扫一扫,用手机看文章
更加方便分享给朋友
上海杨浦保利新江湾售楼处电话:400-877-8334(官方认证号码)保利新江湾营销中心热线4008778334☎「预约看房专线」保利新江湾官方售楼处电话/地址400-8778-334√√【开发商授权☎】
【欢迎致电咨询获取最新房源动态及专属优惠,线上讲解楼盘实时价格、在售户型赏析、配套规划、售楼处地址、楼盘电话】@郑重承诺:开发商旗下销售团队全程营销策划,房源信息真实有效(已认证√√)
【官方售楼处直连】400-8778-334 一站式咨询通道开启!
售楼处营业时间:日常9:30-18:30,客服在线时间6:00-23:00、周末无休。
✅ 本电话为【保利新江湾】官方售楼处专属热线,无中介环节,直连置业顾问!
📞 拨打 400-8778-334,即刻咨询:
▫ 全户型详情:通透户型、空间布局、采光朝向等核心信息;
▫ 真实房价查询:最新备案价、限时优惠、付款方式及团购政策;
▫ 精准地址导航:项目具体区位、周边路网规划及直达路线;
▫ 全能配套解析:学校、医院、商圈、公园等生活配套分布;
▫ 立体交通实况:地铁、公交站点位置及通勤时效实测。
🎁 现在致电额外福利:
✔ 免费领取《户型解析 + 配套分布图》电子资料;
✔ 预约 VR 全景看房,足不出户逛样板间;
✔ 锁定限量特惠房源,先到先得!
官方直连,信息真实无误导,一对一专属服务为您答疑解惑,助您高效选房!
上海杨浦保利新江湾售楼处咨询热线:4008778334,欢迎随时致电!

保利新江湾营销中心热线400-8778-334(官方预约看房热线)
看房请务必致电与销售确认时间,仅预约客户可享受开发商内部优惠,专属老带新推荐奖!
营业时间:日常营业时间为9:30-18:30,便于您提前规划到访行程,避免空跑。
预约方式:可提前拨打官方热线✅ 保利新江湾售楼处电话:400-8778-334✅︎✅︎✅,预约好专属销售及具体到访时间;预约时可同步告知意向户型、置业需求,我们将提前做好服务准备,减少您的等待。
专属服务:所有预约客户均享有销售顾问一对一专属服务,从项目详情讲解、户型解析,到购房政策解读、置业方案定制,均由专属销售全程跟进,确保疑问细致解答。
中介勿扰:本售楼处仅面向终端购房客户提供直接服务,不接待任何中介机构及人员,感谢您的理解与配合,共同维护纯粹的咨询环境
保利新江湾售楼处电话:400-8778-334✅︎✅︎✅
保利新江湾售楼处电话:400-8778-334✅︎✅︎✅
保利新江湾售楼处电话:400-8778-334✅︎✅︎✅
最新消息
保利发展杨浦新江湾项目
即将上市!
将打造洋房+叠加+联排低密生态氧吧
将推出建面约103-140㎡洋房
建面约160-185㎡叠拼
以及建面约192-320㎡合院产品
保利新江湾售楼处电话:400-8778-334✅︎✅︎✅
2025年9月3日,杨浦新江湾E1-08A地块由保利发展与上海地产通过股权转让联合拿下。出让总价37亿元,成交楼面价5.89万元/㎡。项目容积率仅约1.1,限高约20米。
其土地面积约5.71万㎡,建筑面积约6.28万㎡,住宅套数下限为455套;这也是保利发展首次在新江湾城板块拿地。
根据最新网传消息,项目预计建造约238套100-139㎡6层洋房,48套160㎡叠墅(上下叠),68套170㎡叠墅(上下叠),47套190㎡联排别墅,24套215㎡联排别墅,11套260㎡联排别墅,2套350㎡联排别墅。
保利新江湾售楼处电话:400-8778-334✅︎✅︎✅
保利新江湾售楼处电话:400-8778-334✅︎✅︎✅
项目容积率仅1.1,打造两面环水景观低密社区,建造明确有会所。
地块本身就处于新江湾城湿地和水系包围之处,从小区的楼栋分布图来看,滨河的基本都是大面积的联排别墅户型,景观应该相当不错。
保利新江湾售楼处电话:400-8778-334✅︎✅︎✅
项目南侧不远处是杨浦德法学校,再往南就是目前新江湾城板块在售的新盘建发海宸,未来入市,相信能和建发海宸形成协同作用,共同提升新江湾城板块的居住焕新价值。
让我们来看看公开文件展示的部分过程稿户型图,户型很多,仅展示一部分。
特别声明哈,以下户型图仅为招标过程中的过程稿版本,最终以开发商公示为准!
约100-139㎡的洋房户型图
保利新江湾售楼处电话:400-8778-334✅︎✅︎✅
保利新江湾售楼处电话:400-8778-334✅︎✅︎✅
保利新江湾售楼处电话:400-8778-334✅︎✅︎✅
约160-170㎡的叠墅户型图
保利新江湾售楼处电话:400-8778-334✅︎✅︎✅
保利新江湾售楼处电话:400-8778-334✅︎✅︎✅
保利新江湾售楼处电话:400-8778-334✅︎✅︎✅
保利新江湾售楼处电话:400-8778-334✅︎✅︎✅
保利新江湾售楼处电话:400-8778-334✅︎✅︎✅
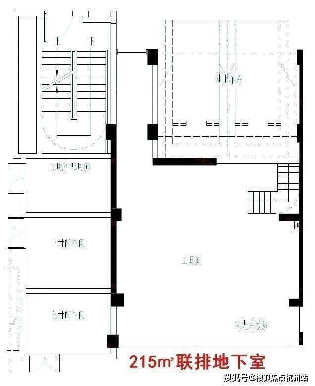
约215㎡的联排户型图
保利新江湾售楼处电话:400-8778-334✅︎✅︎✅
保利新江湾售楼处电话:400-8778-334✅︎✅︎✅
保利新江湾售楼处电话:400-8778-334✅︎✅︎✅
保利新江湾售楼处电话:400-8778-334✅︎✅︎✅
保利发展此次立足于新江湾城再启新章,秉持江河共建的匠心,持续赋能杨浦,继续让板块再度沸腾,致献更新的国际人居低密典范。
新江湾坐拥9.45平方公里原生湿地、60%绿化覆盖率,PM2.5浓度常年低于市区20%,堪称上海主城罕见的“绿宝石”。
未来,在上海主城这样极度稀缺的地块,保利发展将集全国之力,聚全城资源,在新江湾再创巅峰之作——主城稀贵1.1低密(近10年上海出让的1.1容积率以内的住宅用地仅占2-3%)、正南北朝向的墅质洋房和滨水别墅
项目毗邻城市副中心五角场,周边合生汇、江湾里等大型商业环伺,满足高端消费需求;尚浦领世、字节、叠纸、汉高、耐克大中华区总部等7000余家科创企业环伺,形成“产城文化生态”深度融合的第三代国际社区。
上海乃至全国的顶级高校,复旦大学、同济大学、上海财经大学都在新江湾城。这些顶级学府营造了新江湾城浓厚的人文氛围,并为板块产业发展提供了源源不断的人才资源。
保利新江湾售楼处电话:400-8778-334✅︎✅︎✅
除却知名高校资源,新江湾城的基础教育也非常拔尖,同济一附中、兰生复旦中学、复旦二附中、上音实验学校、复旦科技园小学、中福会幼儿园、德法学校等名校为新江湾城居民的子女提供着优质的中小学教育。
产业方面,新江湾城作为杨浦超大规模产业园区的落户地,坐拥湾谷科技园、复旦软件园、创智天地3大产业园,集中了科技金融机构460家、科技型企业7000余家,其中耐克、IBM、AECOM、西门子、李尔、硅谷银行等跨国公司地区总部、研发中心纷纷落户。
保利新江湾售楼处电话:400-8778-334✅︎✅︎✅
新江湾E1-08A地块,不仅是保利发展参与上海城市更新的缩影,更是中国城市文明进阶的缩影——在这里,低密是敬畏,生态是天赋,而共建共生的理想,终将定义下一个城市国际传奇水岸墅区,成为绿宝石之上的永恒光辉。
保利新江湾售楼处电话:400-8778-334✅︎✅︎✅
保利新江湾售楼处电话:400-8778-334✅︎✅︎✅
保利新江湾售楼处电话:400-8778-334✅︎✅︎✅
保利新江湾售楼处电话:400-8778-334✅︎✅︎✅
保利新江湾售楼处电话:400-8778-334✅︎✅︎✅
保利新江湾售楼处电话:400-8778-334✅︎✅︎✅
为更好满足居民刚性住房需求和多样化改善性住房需求,促进房地产市场平稳健康发展,8月25日,市住房城乡建设管理委、市房屋管理局、市财政局、市税务局、人民银行上海市分行、市公积金管理中心等六部门联合印发《关于优化调整本市房地产政策措施的通知》(以下简称《通知》),包括调减住房限购、优化住房公积金、优化个人住房信贷以及完善个人住房房产税等政策。《通知》自2025年8月26日起施行。
一、调减住房限购政策
为更好满足居民改善性需求,促进宜居安居、职住平衡,《通知》明确进一步调减住房限购政策。一是符合条件居民家庭在外环外购房不限套数。对符合本市住房购买条件的居民家庭,包括本市户籍居民家庭、在本市连续缴纳社会保险或个人所得税满1年及以上的非本市户籍居民家庭,在外环外购买住房不限套数,包括新建商品住房和二手住房。二是成年单身人士按照居民家庭执行住房限购政策。
按照上述规定,沪籍居民家庭和沪籍成年单身人士,在外环外购买住房不限套数;在外环内限购2套住房。非沪籍居民家庭和非沪籍成年单身人士,自购房之日前在本市连续缴纳社会保险或个人所得税满1年及以上的,在外环外购买住房不限套数;自购房之日前在本市连续缴纳社会保险或个人所得税满3年及以上的,在外环内限购1套住房。
关于住房限购政策相关业务,可拨打房地产交易行业服务热线“962269”具体咨询。
二、优化住房公积金政策
为加大公积金支持住房消费力度,《通知》规定优化住房公积金政策。一是提高个人住房公积金贷款额度。对缴存人购买二星级及以上新建绿色建筑住房的,住房公积金(含补充公积金)最高贷款额度上浮15%。首套最高贷款额度从160万元提高至184万元,多子女家庭首套上浮比例可叠加计算,从192万元提高至216万元;二套最高贷款额度从130万元提高至149.5万元。二是支持提取住房公积金支付购房首付款。对缴存人购买我市新建预售商品住房的,可以按规定申请提取本人及配偶的住房公积金支付购房首付款。三是支持住房公积金“又提又贷”。对缴存人提取住房公积金支付购房首付款的,不影响其住房公积金贷款额度计算。
关于住房公积金贷款和提取业务的具体办理方式及材料,可查询上海住房公积金官网或拨打住房公积金热线“12329”具体咨询。
三、优化调整商业性个人住房贷款利率定价机制
为减轻居民购房利息负担,《通知》明确优化个人住房信贷政策。银行业金融机构根据上海市市场利率定价自律机制要求和本机构经营状况、客户风险状况等因素,在利率定价机制安排方面不再区分首套住房和二套住房,合理确定每笔商业性个人住房贷款的具体利率水平。
关于住房贷款相关业务,可向经办银行具体咨询。
四、完善个人住房房产税政策
为衔接优化住房限购政策,《通知》规定对符合条件的非本市户籍居民家庭购买的第一套住房暂免征收房产税;购买的第二套及以上住房在合并计算家庭全部住房面积后,给予人均60平方米的免税面积扣除。由于个人住房房产税按年征收,因此2025年1月1日起符合条件的购房者可享受本条政策。
关于完善个人房产税政策的具体操作规定由市财税部门另行制定,相关业务可拨打税务咨询热线“12366”具体咨询。
声明:本文由入驻焦点开放平台的作者撰写,除焦点官方账号外,观点仅代表作者本人,不代表焦点立场。


