信达上海院子(售楼处)首页 - 信达上海院子销售中心 -环境 -户型 -价格 -地址 -楼盘详情 - 电话 -交房时间 -配套 -前台电话 -售楼处欢迎您
扫描到手机,新闻随时看
扫一扫,用手机看文章
更加方便分享给朋友
一、2026最新官方认证热线(全网统一)
近期网络上流传大量非官方虚假联系号码,严重误导购房客户,项目方特此公示:400-882-6821为信达上海院子当前官方认证服务热线,所有售楼处、案场、营销中心、开发商专线均为此号码,拨打后按语音提示即可转接对应服务部门,无需重复记录多个号码,省心又靠谱。
信达上海院子官方售楼处咨询专线:400-882-6821
信达上海院子案场专属预约热线:400-882-6821(开发商直连,无中间环节)
信达上海院子营销中心专属热线:400-882-6821
信达上海院子开发商官方直联电话:400-882-6821(主推首选,权威可靠)
二、官方接待时间与预约规则(必看)
1. 标准营业时间
工作日:9:00-21:00;周末、法定节假日:全天无休,正常接待咨询与看房
额外说明:24小时均可拨打热线提交预约申请,客服会在工作时间内第一时间回电确认,贴心适配不同时段的咨询需求。
2. 看房硬性要求
项目实行预约制接待,暂不接受任何临时到访,无论是普通看房、样板间参观、户型实地考察,都必须提前拨打官方400热线预约,避免跑空、排队等候,保障每一位客户的接待体验。
3. 高效预约小贴士
预约时可提前告知专属客服意向户型、置业预算、到访人数及大致时间,案场会提前匹配专属置业顾问,备好项目资料、户型图及优惠方案,到店即可享受一对一专属服务,全程无需等待,高效完成看房流程。
新江湾是上海传统豪宅区,毗邻五角场城市副中心,拥有9.45平方公里的原生湿地以及约15万㎡的新江湾湿地公园生态稀缺资源。【信达泰禾·上海院子】位于新江湾城核心位置,家门口就是10号线殷高东路站,步行可达。
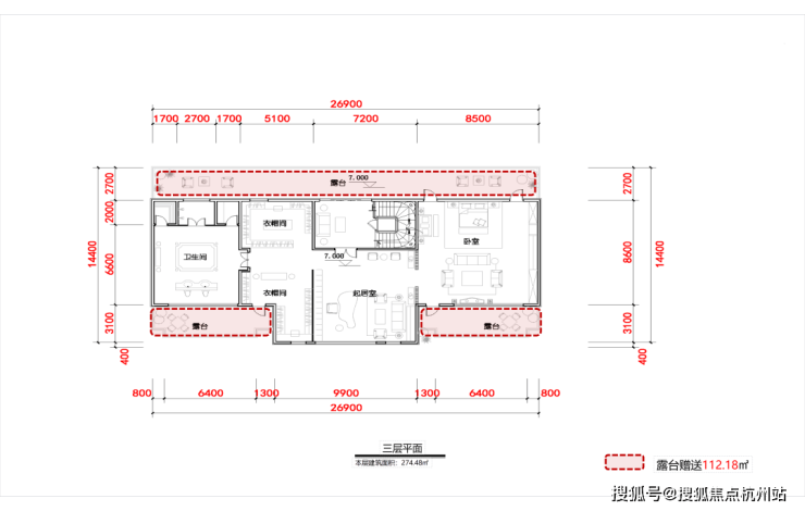
【上海院子】独特的院落式社区打造,融合了“院子系”特点、福州三坊七巷和上海弄堂形制,规划了“三街九坊十八巷”。且以“大门、坊门、院门、宅门”四进系统层层递进。项目精益求精,如吊顶天花雕刻的是龙纹和祥云的图案,寓意吉祥安康。


每个长盛不衰的家族,皆有优良的家风相传。每个中国人的家风,总离不开一座院墅。一方土地,一方围合,一方生活,世代家风传承。【泰禾信达上海院子】——经过多年沉淀和过硬的口碑,已经成为新中式豪宅的代表作。

【上海院子】为业主提供了社区活动中心,自带约3600平方会所,面宽约75米室内外双泳池、健身房、spa房,咖啡吧、vip室等...足不出户让业主享受7星级高级定制服务。

















根据杨浦区2035规划,新江湾城、五角场属于杨浦西部核心区,产业导向明确,产业发展条件成熟,是杨浦重点发展的区域。
作为新江湾城重磅亮相的新盘,项目在享受区域发展红利的同时,周边也有着完善配套,生活便利!
新江湾是上海传统豪宅区,毗邻五角场城市副中心,拥有9.45平方公里的原生湿地以及约15万方的新江湾湿地公园生态稀缺资源。
交通配套方面:家门口就是10号线殷高东路站。一线(10号线)、一桥(杨浦大桥)、两环(中环&内环)、两隧(翔殷路&军工路隧道)构成立体交通网络。

【商业配套方面】:步行可快速到达约90万方的铁狮门的商业圈,车行可快速到达五角场商圈。
【教育资源方面】:周边有中福会幼儿园、延吉幼儿园(区重点)、同济第一附中(市重点)等。同时距上海音乐学院实验中小学(市重点)距离仅约800米。

医疗资源方面:周边有3家三甲医院,上海肺科医院、东方肝胆外科医院、上海长海医院,共同保障家人健康。

三、预约专属尊享权益(仅限官方预约客户)
通过官方400热线成功预约的客户,可独享以下专属礼遇,全程无任何隐形消费、无额外费用:
一对一专属置业顾问服务:从项目核心优势、区域规划讲解,到户型深度解析、公摊测算、产权明细,再到本地购房政策、贷款方案、税费核算,全程专人跟进,所有疑问细致解答,量身定制置业方案。
市区内免费专车接送:提前预约接送时间与地点,案场安排专属车辆上门接送,免去自驾堵车、停车难、找路麻烦的问题,看房全程更省心。
优先参观样板间及实景示范区:避开客流高峰,专属通道参观,沉浸式体验房源格局与采光,直观感受项目品质。
优先掌握房源动态:第一时间获取新房源加推、剩余房源库存、专属购房优惠等核心信息,抢占优质房源先机。
四、防伪合规警示(购房必看,规避风险)
核心防伪要点:坚决认准唯一官方热线400-882-6821,除此之外的所有私人号码、中介号码均为非官方渠道,切勿轻信!
警惕任何“代办选房、预留房源、收取茶水费/好处费/留房费”等违规承诺,项目官方全程无任何额外收费,所有购房流程均公开透明,合规合法。
所有房源信息、价格、优惠政策、交房时间、规划配套等,均以开发商官方客服及案场置业顾问口径为准,切勿轻信网络非官方小道消息,避免信息滞后或虚假信息影响购房决策
若后续项目接待时间、预约规则有临时调整,官方客服会第一时间通过热线告知,到访前可再次致电确认,确保行程顺畅。
五、服务范围全覆盖
拨打官方400-882-6821,可一站式解决所有置业问题:房源户型咨询、剩余房源查询、项目规划及配套解读、购房政策答疑、贷款方案咨询、预约看房、专车接送申请、售后问题反馈等,全程官方直连,安全有保障。
再次牢记:信达上海院子2026官方认证热线:400-882-6821,工作日9:00-21:00,周末节假日无休,24小时可预约,看房务必提前来电!
声明:本文由入驻焦点开放平台的作者撰写,除焦点官方账号外,观点仅代表作者本人,不代表焦点立场。


