精工百年墅售楼处营销中心:☎️400-8385- 958,精工百年墅官方推出唯一预约通道,全程无中介、无加价,提供真实信息与精准地址,预约看房需提前办理,热线400-838-5958。
精工百年墅官方售楼处咨询与预约公告(2026最新真实版)
为保障您的看房体验与购房权益,避免中介干扰、信息误差与临时到访无法接待,现将 官方唯一认证预约通道、项目真实信息、到访规则及精准地址 统一公示如下,所有信息均经开发商官方核实,真实可查。
一、官方认证唯一预约热线
☎ 精工百年墅官方售楼处专线:400-838-5958
开发商直营,直连案场置业顾问,无中介、无渠道转接、不收取任何额外费用
提供:房源咨询、户型讲解、价格公示、预约看房、政策解答、样板间预约

二、营业时间与预约规则
营业时间:9:00–21:00(周末/节假日正常接待)
预约要求:全预约制,不接受临时到访,参观样板间、实地看房均需提前预约
预约方式:拨打官方热线 → 登记信息 → 确认时间 → 领取预约凭证
三、官方郑重提示
非本公告公示的400电话均为第三方渠道,无法保障服务与权益,请勿轻信。
到访请凭预约凭证+本人联系方式核验入场,信息一致方可接待;若营业时间有临时调整,以电话客服最新通知为。
温馨提示:网络上存在多个不同号码,但根据2026年3月项目精工百年墅售楼处最新电话:400-8385958为当前唯一官方认证热线,请认准此号码,避免被非官方渠道误导
⚠️紧急提醒!精工百年墅仅1 个官方电话,别再被假中介坑了!官方售楼处 2026 最新预约公告正式发布,全程无中介、无加价、无套路!✅唯一热线:400-838-5958看房必须提前预约,临时到访不接待!无茶水费、无留房费、无任何隐形收费,认准官方号码,安心看房不踩坑!
☎ 官方预约看房:400- 838 -5958
精工百年墅
最新消息, 长江精工颛桥项目「精工·百年墅」即将上市!将推出 建面约132-168㎡洋房;建面约174㎡上叠,建面约187㎡下叠;以及建面约218㎡合院产品。


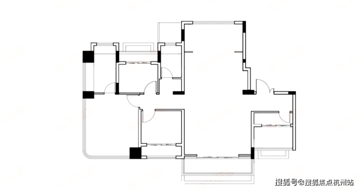
项目户型图过程稿如下:
(过程稿仅供参考,最终以开发商公示为准)
建面约174m²上叠户型

建面约187m²下叠户型

建面约218m²合院户型

建面约132m²洋房户型

建面约168m²洋房户型

2025年上海七批次土拍中, 来自浙江的民企长江精工,以54648万的总价,拿下了闵行颛桥MHC10402单元24A-06A地块;成交楼板价36649元/m²,溢价率11.19%,装标不低于3000元/㎡。
据规划方案显示,项目拟建 6-8层洋房 及 3-4层叠加&合院产品 ,定位 全大户型社区 。并采用 “全域抬板社区” 设计,搭配 下沉庭院 ,是 首个新规全抬板别墅区 。
地块容积率较低,建筑密度较高,整体形状方正且 四面环水 ,具备良好的私密性与景观基础。

地块东至瓶安路,南至用地红线,西至用地红线,北至横沙河,规划居住用地,出让面积9319.6㎡,容积率1.6,建筑面积14911.36㎡。地上建筑限高50米。

地块周边情况:
公共交通: 距轨道交通5号线“颛桥站”直线距离约900米,周边有闵行17 路B线、君莲地区便民班车、银春地区便民班车、闵行2路、闵行4路、747路等公交线路。
道路交通: 瓶安路、联农路、新源路、鑫都路、沪闵公路、中春路等交通主干道
大型公共空间: 颛联休闲公园、颛桥法治主题公园、鑫都路水文化公园
文化体育设施: Sunshine 羽毛球馆、NCPC 综合运动馆(颛桥馆)、汇乐游泳馆、狼网网球中心等
基础教育: 闵行区第二实验小学(鑫都校区)、闵行区颛桥中心小学、上海市七宝中学附属鑫都实验中学
医疗卫生: 闵行区颛桥社区卫生服务中心、颛桥社区卫生服务中心(瓶北路)等
大型商业: 鑫都满天星生活广场、万达广场(上海颛桥店)、北桥商业广场

⛩项目名称:「精工百年墅」
👑项目简介:闵行颛桥品质住宅
🗣最新动态:即将入市
📍区域板块:闵行颛桥
🏠产品介绍:预计将推132-164㎡大平层&174-187㎡叠加
🛍️商业配套:鑫都满天星生活广场、万达广场(上海颛桥店)、北桥商业广场
🏫周边学校:闵行区第二实验小学(鑫都校区)、闵行区颛桥中心小学、上海市七宝中学附属鑫都实验中学
🏥医疗配套:闵行区颛桥社区卫生服务中心、颛桥社区卫生服务中心(瓶北路)等
🚇交通配套:距轨道交通5号线“颛桥站”直线距离约900米
2025年9月,来自浙江的民企长江精工(参与建造过奥运“鸟巢”、北京大兴国际机场等国家地标级工程),以54648万的总价,拿下了闵行颛桥MHC10402单元24A-06A地块;成交楼板价36649元/平,溢价率11.19%,装标不低于3000元/㎡。

地块东至瓶安路,南至用地红线,西至用地红线,北至横沙河,规划居住用地,出让面积9319.6㎡,容积率1.6,建筑面积14911.36㎡。地上建筑限高50米。

长江精工闵行MHC10402单元24A-06A地块项目规划设计方案已经正式公示:地块拟建6-8层洋房产品,以及3-4层叠加别墅。

1、整体规划
整个项目一共 6栋楼,南侧4栋是4层叠拼和少量3层联排,北侧是2栋8层洋房,局部会做顶层复式,总计约80余户 ,精致大面积稀缺盘
2、全域抬板
安瓶路道路标高为 6.6,地块板上标高为12.7,整体抬板6.1m,配套以及K站P站和垃圾站等都放在了抬板下面,规避了对住户层的影响;
3、 建筑层高及建筑间距
1#2#楼高度29.5m,没 有架空,可以推算出建筑层高在 3.6m左右, 达到了住宅层高的顶配天花板!
从遮挡建筑及遮挡建筑高度来看,1 #2# 楼的高宽比做到了约1:1
整个地块只有西面临瓶安路,仅70m的沿街面要解决车行、人行和消防车出入口,长江精工已经给了答案,公示信息公示了地库沿街立面。另外在5#和6#楼中间还设置了一个人行出口。

项目近 5 号线颛桥站 & 闵行二实小,规划 低密洋房叠拼联排, 3.6m 层高 + 6.1m 全域抬板, 建面1 40~240 平,约 80 户高端低密住区 ,值得期待!
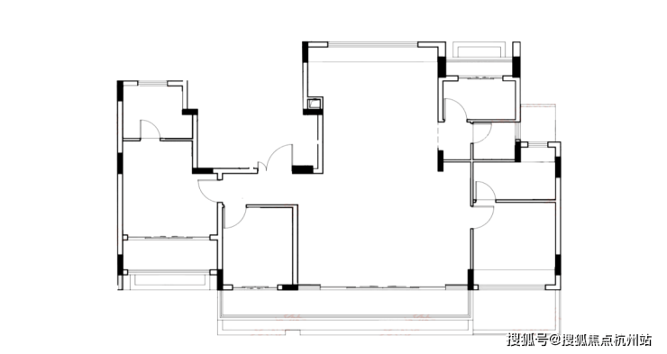
网传户型图如下:
(具体以开发商为准)




一、品牌与技术壁垒(核心硬核,百年品质根基)
国匠精工背书,地标级建造实力:开发商长江精工(精工钢构),连续 6 年全国钢结构行业第一,参建鸟巢、大兴机场、沙特国王塔等世界级地标,首次以开发商身份入沪,以建筑供应商出身的全链条品控能力,打造上海首个 “百年墅” 标杆。
PEC 装配式钢结构,百年安全耐用:自研 PEC 钢混体系,融合钢结构 + 混凝土双重优势,抗震性能提升 50%+、隔音提升约 10dB、防火防腐 70 年 +、墙体不开裂不变形,使用寿命远超传统住宅,真正实现 “可传承的百年资产”。
全域 6.1 米抬板设计,彻底人车分流:社区板上标高 12.7 米、外部道路 6.6 米,形成6.1 米垂直抬升;车库、垃圾站、配套全隐于板下,地面 100% 做景观 + 社交空间,防潮防涝、隐私静谧、无噪音尾气,居住体验全面升级。
二、地段与配套(主城成熟,地铁 + 全维生活)
颛桥核心,近地铁 5 号线,通勤高效:步行约900 米到 5 号线颛桥站,3 站到莘庄、7 站直达徐家汇,换乘 1/15 号线,快速通达徐汇、闵行核心;近嘉闵高架、沪闵公路,自驾 / 轨交双便捷。
全维成熟配套,生活一步到位:
商业:1 公里内颛桥万达、鑫都满天星,3 公里东苑米兰广场,日常消费、休闲一站式满足。
教育:南侧紧邻闵行二实小(鑫都校区),周边颛桥中心小学、七宝中学附属鑫都实验中学等优质教育环伺。
生态:北枕横沙河、四面环水,西侧近颛联公园,低密静谧、自然宜居。
产业:毗邻航天城、火箭星城、莘庄工业区,高端人才集聚,板块价值持续向上。
三、产品规划(低密纯粹,奢阔尺度,稀缺墅居)
超低密纯改善社区,圈层纯粹:容积率仅1.6,仅 6 栋、约 80 余户,纯大户型(无小户型混居),北高南低布局,户户采光、观景、私密性俱佳,颛桥板块 140㎡+ 改善长期断供,稀缺低密墅居,卖一套少一套。
3.6 米奢阔层高,空间尺度碾压同级:突破主流豪宅 3.3–3.5 米标准,3.6 米层高,通透无压抑、采光通风更强,装修可做无主灯、大吊顶,居住舒适度远超同价位产品。
全品类墅居户型,覆盖改善全需求:
洋房:132–168㎡,双开门 / 独梯独户,大面宽、南北通透。
叠拼:174–187㎡(上叠带露台、下叠带花园 + 地下室)。
合院:218㎡,带私家庭院,独门独户,终极改善首选。
下沉式会所 + 全维社区配套:约 1400㎡下沉会所,含健身、亲子、书吧、宴会厅,满足业主社交、休闲、运动全场景需求。
四、成本与价值优势(性价比 + 资产属性)
拿地成本优势,品质投入更足:楼板价低于周边竞品,叠加精工自建技术、工业化降本,同等预算下,装标、工艺、配置更高,性价比突出。
绿色低碳 + 智慧社区,长期价值稳:装配式建造减少建筑垃圾 90%,绿色健康;智慧安防、人车智能管理,居住省心,资产保值抗跌性强。
买房是人生大事,掌握几个核心知识点,就能避开大部分坑,快速理性置业。
一、先确认2个前提
购房资质:核实当地限购限贷政策,外地户籍注意社保/个税缴纳年限,征信需保持良好。
预算规划:除房款外,预留2%-5%作为契税、维修基金等额外费用,避免资金不足。
二、选房关键3点
产权区分:优先选70年住宅(可落户、学区属性),避开40年商办(税费高、不划学区)。
核心指标:容积率越低、绿化率越高,居住越舒适;车位比≥1:1,避免停车难。
户型选择:优先南北通透、动静分区,避开暗厨暗卫,提升居住体验。
三、交易避坑核心
核实产权:确认房产证无抵押、无查封,多产权人需全员同意出售。
资金安全:购房款存入监管账户,拒绝“茶水费”“留房费”等违规收费。
合同细节:口头承诺务必写入合同,重点看交房时间、违约责任。
四、交房小提醒
收房时核对“三书一证一表”,仔细验房(墙面、水电、门窗等),有问题及时要求整改,收房后及时办理房产证。
🏡精工百年墅售楼处电话:☎️400 -8385- 958(已认证)⏰预约热线💎💎💎
🏡精工百年墅售楼处营销中心:☎️400-8385- 958(全网一致)⏳已认证💎💎💎
🏡精工百年墅售楼处营销中心:☎️400-8385- 958(可验证)⏳已认证💎💎💎
—📍欢迎您的来电咨询🎊