上海华发仁恒苏河世纪(售楼处) 电话-首页官网- 2026年华发仁恒苏河世纪销售中心 - 价格 - 地址 - 楼盘详情 - 配套 - 电话 - 交房时间 - 配套
扫描到手机,新闻随时看
扫一扫,用手机看文章
更加方便分享给朋友

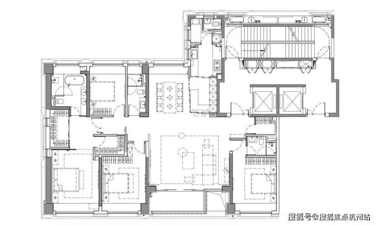
建面:498平
户型:4室3厅5卫
面宽38米,层高3.45米
内环内稀缺500平大户型,全南采光好,楼王无遮挡,约80%得房率,准现房,临近苏州河滨水带







收官44套大平层,主力建面约102-245㎡3-4房
均价13.9万/㎡,认筹已结束,超260组认筹,预计入围分75分
认购时间:2024年11月30日至12月4日;
认购地点:静安区宝通路539号(近天通庵路)华发静安华府营销中心;
认购金额:300万元
项目首批房源已于2022年7月首开入市,推出三栋住宅,均价13.3万/㎡,入围分68.8分。时隔两年多,项目第二批房源即将入市!
项目加推的是3#、6#,共44套。主力建面102-245㎡3-4房,另有6套大平层和2套复式。具体如下:
16套约102㎡3房
20套约245㎡4房
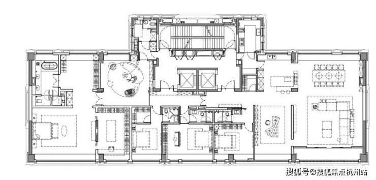
6套约498㎡大平层
2套约480㎡复式。

【华发仁恒苏河世纪】地处静安区苏河湾板块,曲阜西路与晋元路交汇处,南接苏州河,东邻爱国主义教育基地四行仓库。项目属于内环内核芯区域,到南京东路及人广商圈很近,8/12号线曲阜路地铁站紧邻,区位内综合资源丰富,生活便利。
项目是一个占地2.8万方,集品质住宅、精品商业、文化办公为一体的高端综合体,整体分为南北两个地块,北侧为纯住宅社区,南侧为商办综合体。
区位板块:静安区苏河湾
建筑面积:住宅部分约4.2万方,商业、文化及办公部分约3.6万方。
绿化率:35%
容积率:3.0
住宅产品:3幢26层公寓、1幢19层公寓、1幢8层公寓
总户数:348套
车位配比:478个
主力户型:建筑面积约99㎡-240㎡高层
交付标准:精装
项目毗邻苏州河畔,拥享得天独厚的自然优势,一线无遮挡直面水岸公园,饱览无敌河景与城心的华丽天际线。
建筑立面拥有现代建筑的先锋美学元素,以铝板和玻璃幕墙打造IMX级别天幕,彰显高端现代城市建筑简约风,超大窗墙比赋予建筑独特的城市气质,实现空间视野与采光的优选。
项目效果图
项目地处静安苏河湾核芯区位,南侧即为苏州河,属于上海中心板块第壹序列,新静安“一轴三带”战略中的重要一环,国家级战略规划加持。
苏州河沿岸定位为特大城市宜居生活的典型示范区,享有世界级滨水区文化水岸。6.3公里滨河步道,21万方滨河开放空间,唯壹全球卓越河岸中央活动区。滨水而居,于此开启城市悠闲慢生活。
商业资源:近在咫尺的市区成熟生活配套,约百万方摩登商业环伺。静安大悦城、人民广场、南京东路商圈均在壹公里范围内。
交通资源:项目西面紧邻轨交8、12号线曲阜路站;南北高架及西藏中路城市主干道分别在项目东西两侧,出行便利;北横通道主动脉已通车,畅达上海各大中芯枢纽。
生态资源:项目范围内有静安蕞大苏河湾中央公园,同时紧邻南北两块绿地公园,而南侧便是苏州河世界级滨水景观带,滨水而居。
教育配套:项目对面为距离棋院小学、向东中学;育才中学及格致中学等。

医疗配套:周边有静安区北站医院(二甲医院)、上海健桥医院、上海长征医院等医院。
声明:本文由入驻焦点开放平台的作者撰写,除焦点官方账号外,观点仅代表作者本人,不代表焦点立场。


